Schu­len nach Schwei­zer Norm

Öffentlicher Wiederaufbau

Das Erdbeben von 2010 zerstörte im haitianischen «Département Ouest» 80% aller Schulen. Mit der Beteiligung des Ingenieurunternehmen Basler & Hofmann entwickelte die DEZA drei Baustandards für erdbeben­sichere Schulen. Neun Schulanlagen sind eröffnet oder im Bau.

Publikationsdatum
21-05-2015
Revision
07-10-2015

Beim Erdbeben vom 12. Januar 2010 auf Haiti kamen tausende Schulkinder und Lehrpersonen ums Leben. Die schweizerische Direktion für Entwicklung und Zusammenarbeit (DEZA) enga­gierte sich nach der Nothilfephase vor allem im Wiederaufbau von Schulen, in enger Zusammenarbeit mit den lokalen Behörden und der internatio­nalen Gemeinschaft. Um die Bevölkerung in Zukunft besser vor Naturgefahren zu schützen, waren für den Wiederaufbau neue Standards im Schulhausbau nötig. Weil es vor Ort an Know-how fehlte, eröffnete die DEZA im Juli 2010 das Kompetenzzentrum CCR (Centre de compétence en reconstruction). Es unterstützt das ­Programm der DEZA aus ingenieurtechnischer Sicht und berät Partner und staatliche Institutionen bei Schulbauprojekten.

Experten des Schweizerischen Korps für humanitäre Hilfe und haitianische Baufachleute entwickelten in Kooperation mit den haitianischen Behörden Standards für erdbeben- und wirbelsturmsichere Schulen. Direkt nach dem Beben stellte das Schweizer Ingenieurbüro Basler & Hofmann einen Spezialisten für erdbebensicheres Bauen für ein Jahr zur Verfügung. Der Erfolg des Zentrums führte dazu, dass die DEZA ein Mandat für einen Erdbeben­spezialisten schuf. Seit 2014 beantworten Experten von der Schweiz aus Fachfragen und begleiten die Bau­ingenieure vor Ort mit temporären Einsätzen. 

Die DEZA erhielt als erste Institution Baubewilligungen für permanente Schulbauten und konnte 2012 neue Schulen einweihen. Im April 2014 erklärte das haitianische Bildungsministerium die von der DEZA entwickelten Bauplantypen für erdbeben- und wirbelsturmsichere Schulen zur verbindlichen Norm für alle Schulbauten. Damit war ein wesentlicher Meilenstein auf dem Weg zu sicheren Schulbauten erreicht: Andere Akteure vor Ort setzen die vorliegenden Planungsdokumente um und entfalten so eine Multiplikationswirkung.

SIA-Normen in Haiti 

Die Definition für ein erdbebensicheres Schulhaus ist in Haiti gleich wie in der Schweiz: Das Gebäude muss einem Beben mit einer Wiederkehrperiode von 500 Jahren standhalten. Die SIA Norm 261 bildet die Basis für die Projektierung der Schulen, die zur Bauwerksklasse 2 gehören. Das bedeutet einen 20-prozentigen Sicherheits­aufschlag auf das Maximalereignis, für das das Ge­bäude dimensioniert wird. Gemäss den «Initial Seismic Hazard Maps for Haiti» des United States Geological Survey beträgt die maximale Bodenbeschleunigung infolge eines 500-jährlichen Erdbebens in Haiti 4.0 m/s2; in der Schweiz sind es nur 1.6 m/s2. Für die Wirbelsturmsicherheit gelten die Standards des Eurocode 1, die Bauten halten Windgeschwindigkeiten von mindestens 150 km/h stand.

Das haitianische Bildungsministerium legte drei Anforderungskriterien für Schulen fest: Erstens wird eine hohe Erdbeben- und Wirbelsturmsicherheit gefordert, die Sicherheitsstandards müssen eingehalten werden und haben Vorrang vor anderen Kriterien. Zweitens werden eine Lebensdauer von mindestens 30 Jahren und eine robuste technische Ausstattung erwartet; und drittens soll der Nutzungskomfort verbessert werden, was natürliches Licht und Belüftung betrifft.

Bei der Entwicklung der Baustandards waren spezifische Rahmenbedingungen zu berücksichtigen, die für Haiti gelten: Im Land werden qualitativ meist schlechte Mauerwerksteine produziert. Alle anderen Baustoffe sind importiert. Es gilt daher, wirtschaftliche Lösungen mit geringem Materialverbrauch zu finden. Die Arbeiter auf dem Bau sind zudem schlecht ausgebildet. Die Dimensionierung zielt deshalb auf einfache Lösungen und hohe Bautoleranzen. Die erfahrungsgemäss schlecht unterhaltenen Schulen müssen ausserdem auch ohne Wartung über längere Zeit gebrauchstauglich bleiben. 

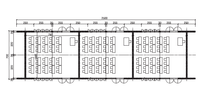
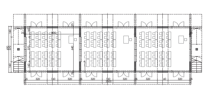
Das Raumprogramm einer staatlichen haitianischen Schule besteht aus zwei Kindergartenzimmern, einem Direktionsbüro sowie neun Klassenzimmern für je bis zu 40 Kinder. Sanitäre Anlagen sind in einem separaten Bau untergebracht. Bei grösseren Schulen, den sogenannten «écoles complètes», können weitere Räume wie ein Speisesaal hinzukommen. 

Drei Bauplantypen

Haiti braucht tausende neuer Schulen. Standardisierung ist nötig, um unter schwierigen Rahmenbedingungen die Qualität zu sichern. Die drei entwickelten Typen basieren auf den Erfahrungen von Vorläuferbauten. Sie sind angepasst an die örtlichen Gegebenheiten und je nach Raumprogramm modular zusammenstellbar.  

 Mehrgeschossiger Stahlbetonbau im städtischen Raum: Im knappen urbanen Raum müssen die Schulhäuser mindestens zweigeschossig gebaut werden. Das Grundmodell des städtischen Bautyps ist 25 m lang, 10 m breit und 6.5 m hoch. Die grossen Öffnungen des Gebäudes erlauben den Einbau nichttragender Fenster­elemente, die Licht und Luft in die Klassenzimmer ­lassen. Das Stahlbetontragwerk ist nicht in der vielerorts üblichen Rahmenbauweise, sondern mit duktilen Schotten ausgeführt. Diese Bauweise verhält sich toleranter gegenüber Ausführungsmängeln. Bei den Stahlbetondecken gab es Vorbehalte, waren doch 2010 viele Menschen unter solchen begraben worden. Deshalb konstruierte man bei der ersten Schule dieses Typs noch ein Stahldach. Es zeigte sich jedoch, dass Ausführungsfehler vor allem an den Schnittstellen und bei baulichen Details auftraten. Deshalb wurde dieser Bautyp zu einem reinen Stahlbetonbau weiterentwickelt, womit ein einziger Unternehmer das gesamte Gebäude erstellen kann. Es dürfen aber nur erfahrene Unternehmen im Stahlbetonbau zum Zug kommen – das sind in ­Haiti wenige. Die ersten dreigeschossigen Schulen sind zurzeit nach diesem Typ geplant. Durch den geringen Materialaufwand ist die Bauweise bei hohem Sicherheitsniveau kostengünstig.
   Eingefasstes Mauerwerk für den ländlichen Raum: Die Baustellen auf dem Land sind schlechter zugänglich. Hier werden traditionelle, grösstenteils vor Ort produzierte Baumaterialien eingesetzt. Der Bautyp «Eingefasstes Mauerwerk» (maçonnerie chaînée) besteht aus unabhängig tragenden Stahlbetonrahmen, die horizontal und vertikal Mauerwerksscheiben einfassen. Dieses Prinzip ist in Haiti weit verbreitet, jedoch häufig nicht erdbebensicher ausgeführt. Das Dach besteht aus einer Holzkonstruktion mit Wellblecheindeckung, die mit im Beton eingegossenen Stahlankern gegen Stürme gesichert ist.  
   Holzbauten für abgelegene Regionen: In schwer erreichbaren Gegenden werden Holztragwerke und Steinfundamente eingesetzt. Temporäre Arbeitsplätze für die Bevölkerung während des Baus gewährleisten, dass die Schulen vor Ort sozial verankert sind. Der Vor­läuferbau entsteht derzeit mit importiertem Holz und Wellblech, während Fundation und Fassadenaus­fachung aus lokalen Materialien bestehen. 

Materialtests mit Signalwirkung

Die neuen Schulgebäude sind nur erdbebensicher, wenn sowohl das eingesetzte Material als auch die Ausführung der Planung entspricht. Beides ist in Haiti eine Herausforderung. Dass so viele Bauten ohne Fachleute und mit schlechten Baumaterialien erstellt worden waren, hat dazu beigetragen, dass das Erdbeben so viele Opfer forderte. Eine der ersten Aufgaben im CCR war deshalb der Bau einer Materialprüfmaschine, die von lokalen Handwerkern gebaut, gewartet und repariert werden kann. Die Maschine testet Betonwürfel und Mauerwerksteine auf Druck und Armierungseisen auf Zug.

Heute führt die Bauaufsicht der DEZA pro Schule bis zu 100 Materialtests durch. Mindestens so wichtig wie die konkreten Tests ist die Signalwirkung: Jeder Unternehmer weiss, dass die Qualität seiner Materialien jederzeit überprüfbar ist. Parallel dazu hat das CCR Ingenieure und Handwerker geschult und Ausbildungskampagnen durchgeführt. 

Die Standardisierung der Schulhausbauten in Haiti ist ein grosser Schritt: Dank den zum staatlichen Standard erhobenen Plantypen ist es Bauherren und Unternehmern ohne grossen Planungsaufwand möglich, erdbeben- und wirbelsturmsicher zu bauen. Bis heute hat die DEZA drei Schulen gebaut und den Behörden übergeben, sechs weitere sind derzeit im Bau, und drei, die bis Ende 2017 fertiggestellt werden sollen, sind in Planung. Die Interamerikanische Entwicklungsbank, mit der die DEZA eng zusammenarbeitet, finanziert den Bau von 62 neuen Schulen nach diesen Standards. Die Bauplantypen machen Schule. 

Verwandte Beiträge