Raum­wun­der Froh­sinn

Die Liegenschaften Kramgasse 59 und Münstergasse 54 in der Altstadt von Bern wurden nach den Plänen der Berner 3B Architekten umfassend saniert. Entstanden ist ein Bijou aus Wohnungen, Ladengeschäft, Gastronomiebetrieb und einem altstadttypischen Innenhof.

Publikationsdatum
14-02-2023

Die rückseitig aneinandergrenzenden Liegenschaften aus dem 17. und 18. Jahrhundert gehören beide der Burgergemeinde Bern. Ein Glücksfall, denn dies erlaubte es, mit viel planerischem Geschick die Bauten so zu vereinen, dass sie nun ein zusammenhängendes Ganzes bilden. Früher beherbergte das Haus an der Kramgasse ein Waffengeschäft, an der Münstergasse befand sich das Restaurant Frohsinn, beide mit je eigenem Eingang. Das Treppenhaus diente wie heute beiden Häusern. Das Restaurant, nun mit einer Bar, findet sich in neuer Form am ursprünglichen Standort. Auf Seite Kramgasse ist nun ein kleines Ladengeschäft für Kulinarisches dem Frohsinn angegliedert.

Umfassende Erneuerung

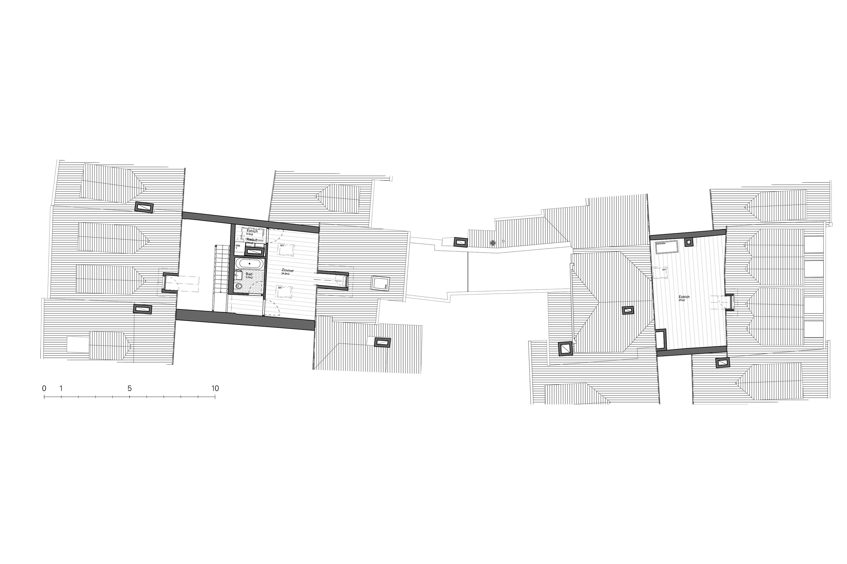
Gemäss der Bestandsaufnahme wurden die geschichtsträchtigen Häuser zwischen Kram- und Münstergasse letztmals vor rund 50 Jahren saniert. Die altersbedingten Mängel machten eine Gesamtsanierung unumgänglich, stellte die Burgergemeinde fest, vor allem in Bezug auf die Gebäudetechnik und den Brandschutz. Auch die Dachflächen waren komplett zu erneuern, denn es stellte sich heraus, dass die Holzkonstruktion des Dachstuhls in grossen Teilen angesengt und verkohlt war. Ein Brand in früheren Zeiten hatte dort seine Spuren hinterlassen.

Ein Wettbewerb im Planerwahlverfahren mit Skizzen-Wettbewerb ergab 2017 das nun von 2019 bis 2022 realisierte Umbauprojekt von 3B Architekten. Dabei stellten die Vorgaben des Denkmalschutzes für diese Sanierungsarbeiten einen wichtigen Teil dar. Mit den im Innern gewählten Farben und Materialien solle der barocke Raumeindruck erhalten werden, so die grundsätzliche Forderung von Seite Denkmalschutz und auch der Wille der Burgergemeinde als Bauherrschaft.

Komfort auf engem Raum schaffen

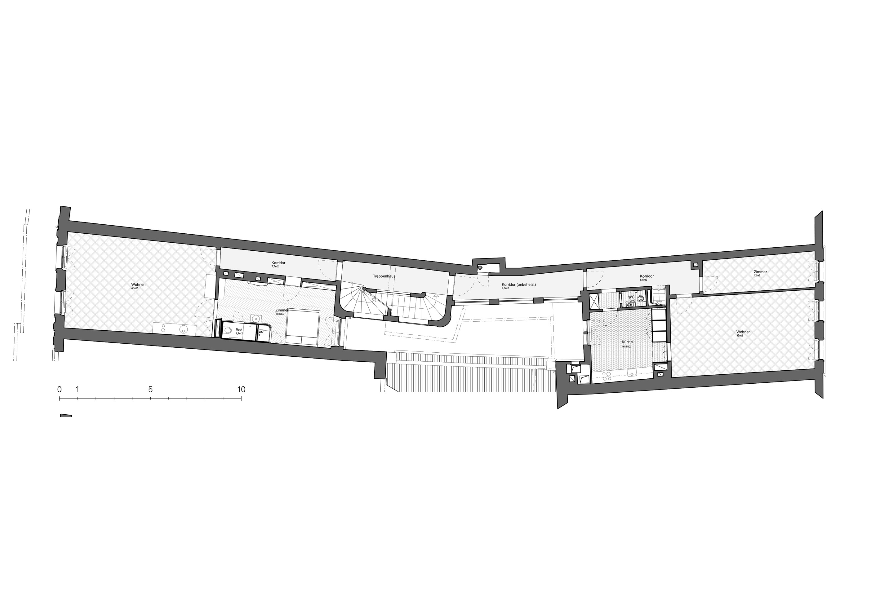
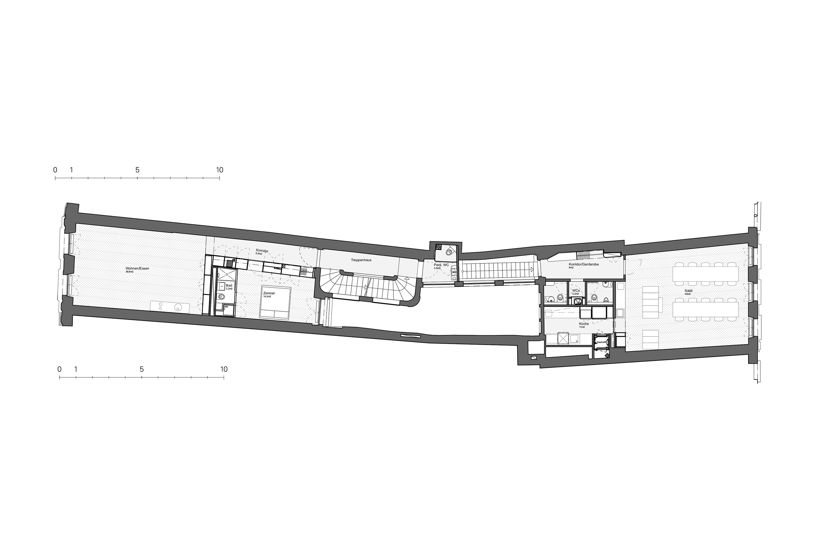
Der Bau an der Kramgasse hat zwei Fensterachsen und ist 5.80 Meter breit, jener auf Seite Münstergasse misst mit drei Fensterachsen 7.10 Meter. Von Gasse zu Gasse ist die gesamte Parzelle 41.50 Meter lang. Das Grundstück ist also recht schmal und gleichzeitig sehr tief, eine Situation, die in der Berner Innenstadt oft anzutreffen ist.

Die Architekten begegneten dieser Herausforderung mit einer Reihe von Massnahmen. Beide Gebäude sind durch einen spätbarocken Laubentrakt verbunden. Der Umbau zielte darauf ab, die Gebäudestruktur mit ihrem Innenhof wiederherzustellen. Er war seit vielen Jahren verbaut und hatte seit einer Sanierung in den 1970er-Jahren ein Flachdach aus Beton mit eingelegten Glasbausteinen über der Restaurantküche. Dieses Teil wurde nun entfernt und so konnte der Laubentrakt bis ins Erdgeschoss freigelegt und fehlende Teile ergänzt werden.

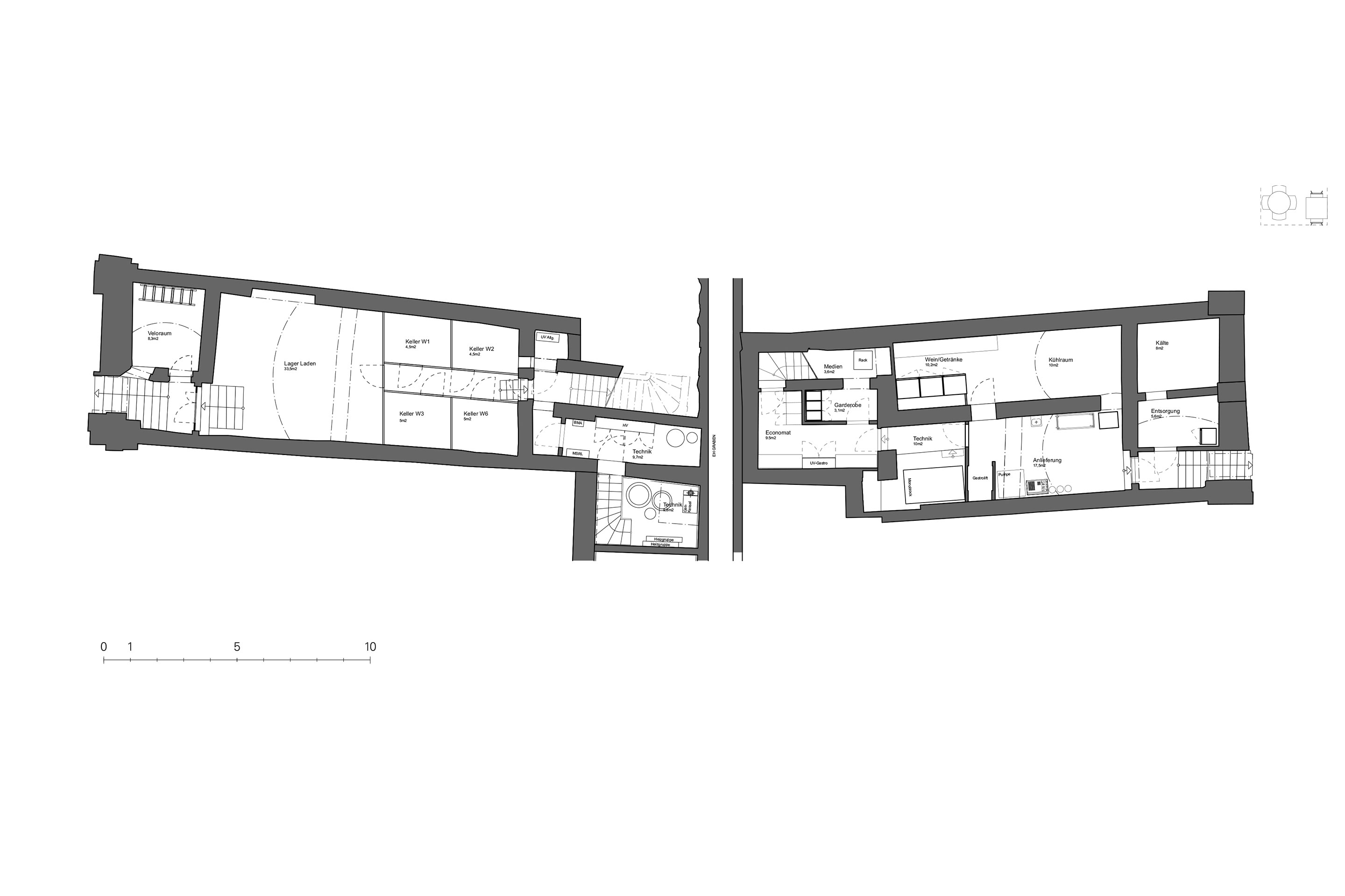
Die in den 1970er-Jahren gebaute Holztreppe vom Gastraum hinauf zum Saal im 1. Obergeschoss wurde abgebrochen, ebenso die durch eine Klapptüre zugängliche Metalltreppe ins Untergeschoss. Im Kellerbereich beider Häuser finden sich Lagerraum für den Gastro- und Ladenbetrieb sowie die Kellerabteile der Wohnungen. Wo vormals die Gastroküche war, ist das Restaurant bis in den nach oben verglasten, hellen Innenhof erweitert. Ein Durchgang führt zum Laden an der Kramgasse.

An der östlichen Innenwand führt eine neue Holztreppe zum 30 Personen fassenden Saal des Restaurants und zu den sanitären Anlagen in der ersten Etage. Die Treppe zu Saal ist als additiver, akustikwirksamer Kubus ausgebildet. Gekocht wird auf engem Raum und vor den Augen der Gäste, vor allem geschieht das im bis zu 500 Grad heissen Pizzaofen an der Rückwand der Bar. Dieser Gastraum bietet mit dem Innenhof Platz für 50 Gäste. Die abgerundete Zinkplatte der Bar und die Mantelhaken an den vertäfelten Wänden mit den dort baumelnden Zeitungshaltern erinnern an ein Bistrot. Das Ambiente lässt die Gäste vergessen, dass sie eigentlich in der Küche sitzen.

Barock Wohnen mit High-Tech-Touch

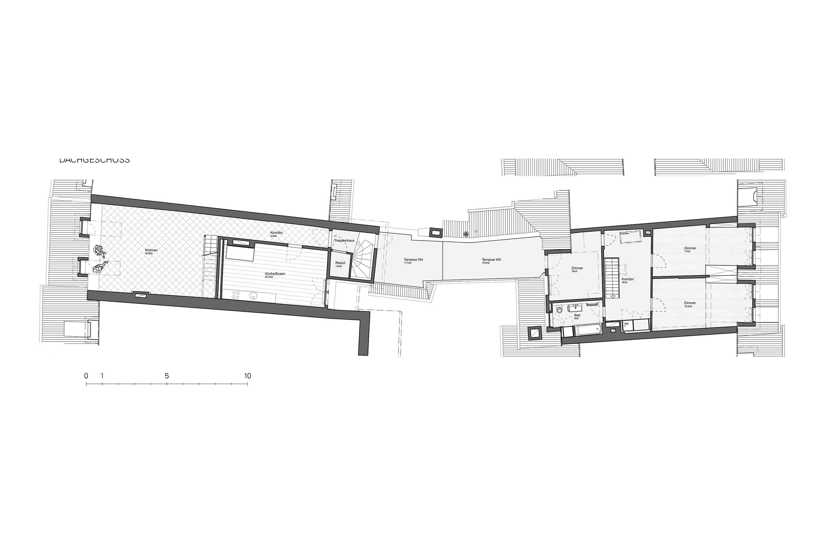
An der Kramgasse wurde in den vormals als Lager genutzten Räumen zusätzlicher Wohnraum geschaffen: drei Zwei-Zimmer-Wohnungen sowie eine grössere Zwei-Zimmer-Duplexwohnung. Die Räume im Erdgeschoss – Laden und zweistöckiger Gastronomiebereich – sind nun über den Innenhof miteinander verbunden. Auf Seite Münstergasse liegen eine Zwei-Zimmer- sowie eine Viereinhalb-Zimmer-Duplex-Wohnung.

In den Innenräumen der Wohngeschosse dominiert eine barocke Ausstattung. Hofgalerie, Treppenhaus und die Korridorbereiche der Wohnungen weisen grossformatige Sandsteinböden und gekalkte Wände auf. Die Zimmer verfügen über Vertäfelungen, einfache Stuckdecken und Berner-Parkettböden. Das prächtigste Ausstattungsstück ist zweifellos der von Peter Gnehm1 signierte Kachelofen im 2. Obergeschoss.

Besonders in den Wohnungen an der Kramgasse machen sich die engen Raumverhältnisse bemerkbar. Aber die Architekten haben aus der Not eine Tugend gemacht. So etwa sind Dusche und WC in der 2. und 3. Etage als kleine, wie Möbel wirkende, mit Aluminiumwellblech ummantelte Einbauten im Schlafzimmer eingesetzt.2 Das Lavabo ist, um Raum zu sparen, an deren Ausssenseite montiert. Die Küche wiederum steht in einer Ecke des Wohnraums und wirkt mit ihrer farbig lackierten MDF-Konstruktion wie ein Buffetmöbel. Die modernen Elemente integrieren sich ganz selbstverständlich in die historischen Räume.

Wie überlegt und sorgfältig diese Bauerneuerung angegangen wurde, zeigt sich auch in eigentlich unscheinbaren Details. Die Tür- und Fensterbeschläge aus alter Zeit wurden in hergebrachter Form erneuert und mit Produkten aus der Hager Manufaktur ergänzt. Die Oberlichter der Fenster sind mit Vorreibern geschlossen. Griffoliven wurden gereinigt und mechanisch ertüchtigt, ebenso die auf den Rahmen montierten Gestänge. Die Sprosseneinteilungen folgen den bauzeitlichen Vorbildern.

Reminiszenzen ans Casino

Für eine angenehme Raumakustik ohne Halleffekt sorgen im Restaurant Akustik-Paneels aus MDF mit fein gerippter Oberfläche3, die an den Rückenlehnen der Sitzbänke im Innenhof und an der Bar montiert sind. Die Bar und das Ladengeschäft haben einen im Fischgrätmuster verlegten Parkettboden. Bei jenem im Laden konnte das ursprüngliche Eichenparkett wieder verlegt werden. Im ehemals bekiesten Innenhof liegt ein Bodenbelag aus schwarzem Kalkstein (Nero Marquina mit Rollstockung). Unter einer rustikal wirkenden Verkleidung aus der Zeit des Waffengeschäfts erschien eine schlichte, vordem verbaute gestemmte Holztäfelung, die nun den Raum prägt.

Der Bodenbelag im Saal besteht aus massiver Eiche mit geölter Oberfläche, Was dort als erstes auffällt, sind die Restaurantstühle, die ein wenig aussehen, als würden sie aus dem Brockenhaus stammend. Tatsächlich handelt sich dabei um sorgfältig restaurierte Stühle aus dem benachbarten, kürzlich renovierten Casino, teils immer noch mit den rückseitig angebrachten Nummern versehen. Sie machen diesen mit langen Tischen ausgestatteten Raum zum klassischen Speiseraum wie aus dem Bilderbuch.

Ausgezeichnete Arbeit

Diese Gesamtsanierung wurde Ende 2022 mit dem Dr. Jost Hartmann-Preis der Stadt Bern ausgezeichnet. Dabei betonten die Laudatoren, dass dank dieser vorbildlichen Gesamtsanierung die Anforderungen des Brandschutzes, des Schallschutzes und der Gebäudetechnik ohne Beeinträchtigung geschickt in die wertvolle Bausubstanz integriert seien. Die Fassade erhielt mit der barocken Fensterteilung ihre ursprüngliche Ausdruckskraft zurück. Als besonders glücklich wird die strukturelle Öffnung des Innenhofs und die Rückführung der Hofgalerie gewertet. Heute präsentiere sich das Haus mit der stolzen Selbstverständlichkeit des Spätbarocks.

Anmerkungen

 

1 Peter Gnehm (* 1712 in Stein am Rhein; † 21. März 1799 in Bern) war ein Schweizer Fayence-Kachelofenmaler. Daneben betätigte er sich auch als Landschaftsmaler.

 

2 Fassadenelement Swiss Panel SP 18/1064 von Montana Bausysteme

 

3 Akustik-Panel von Topakustik, Produkt HR 9/2 M

Umbau und Instandsetzung Kramgasse 59  Münstergasse 54, Bern

 

Bauherrschaft
Burgergemeinde Bern

 

Architektur, Bauleitung
3B Architekten, Bern

 

Tragkonstruktion                         
WAM Planer und Ingenieure, Bern

 

Elektroplanung                        
Brücker Ingenieure, Bern

 

HLKS-Planung                        
Matter + Ammann, Bern

 

Bauphysik, Akustik                
Gartenmann Engineering, Bern

 

Brandschutzplanung                
Amstein + Walthert, Bern

 

Gastronomieplanung               
H plus S, Ittigen

Verwandte Beiträge