Da ca­po für das Ca­si­no Bern

Zwischen 2017 und 2019 wurde das für festliche Konzerte genutzte Gebäude rundum saniert. Um die komplexen technischen Neuerungen im historischen Bau unterzubringen, waren fast archäologische Recherchen und feines Fingerspitzengefühl der Architekten CampanileMichetti vonnöten.

Publikationsdatum
31-10-2019

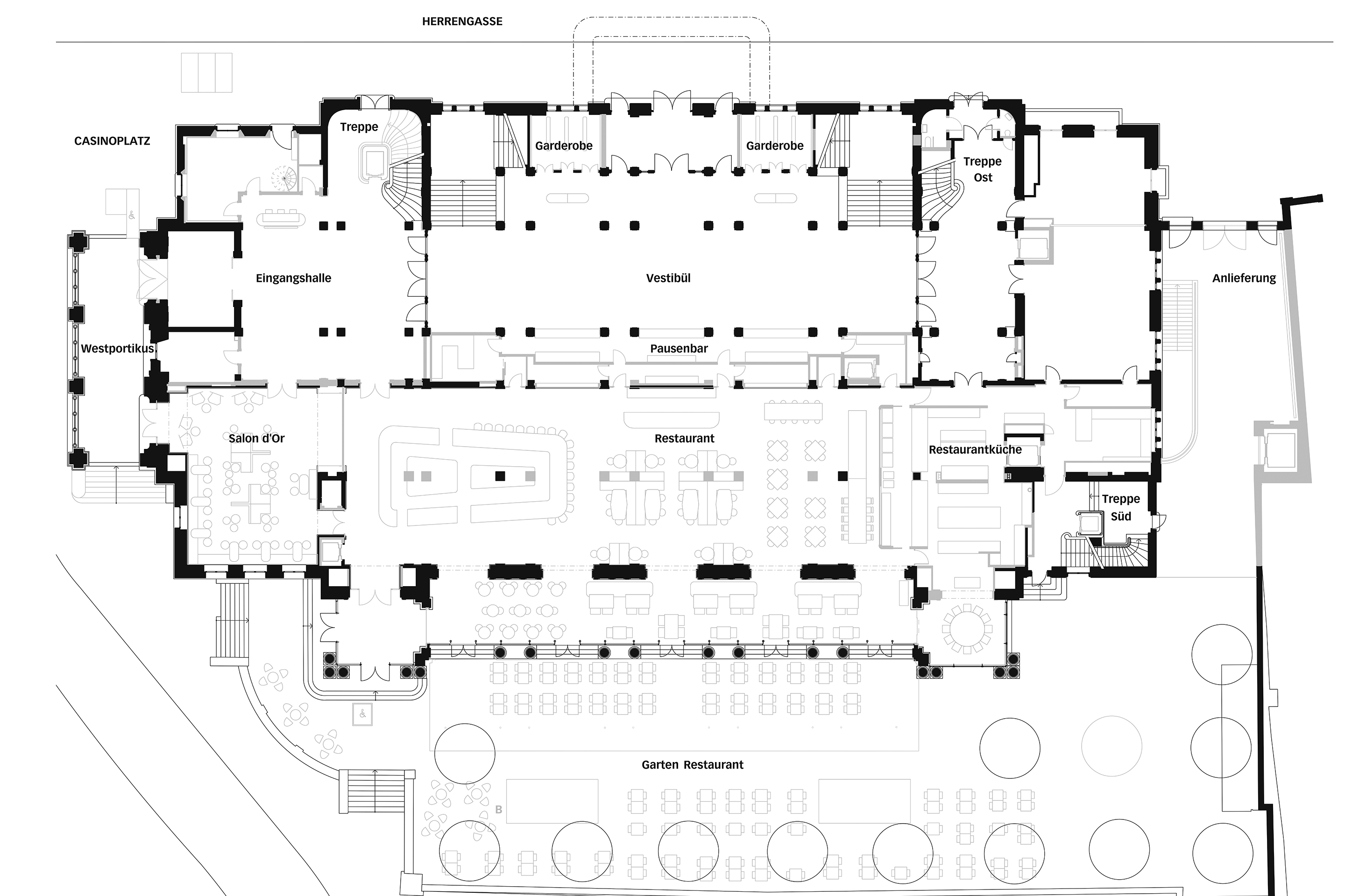
Mit Konzertsälen in der Beletage und gastronomischen Angeboten im Erdgeschoss bildet das Casino in Bern als innerstädtischer Ort für Feierlichkeiten eine feste Grösse. In den letzten Jahrzehnten waren seine prachtvollen Innenräume jedoch zunehmend hinter Stellwänden, Umleitungen, Abgrenzungen und einer gehörigen Schicht Staub verschwunden.

Im Jahr 2014 schrieb die Burgergemeinde Bern als Besitzerin des Gebäudes eine Thesenkonkurrenz für eine Wiederbelebung aus. Gefragt waren keine konkreten Projektvorschläge, sondern Ideen und Konzepte für die Aufwertung des Casinos und die bauliche Umsetzung der Nutzungs- und Entwicklungsstrategien 2020. Die vorgesehenen Sanierungs- und Umbaumassnahmen standen somit erstmals übergreifend in einem ganzheitlichen Rahmen.

Der Ansatz der Planenden zielte darauf ab, eine Stimmung zu erzeugen, in dem sich Alt und Neu auf einem hohen Qualitätsniveau verbinden, um der Kulturstätte einen würdigen, komfortablen und gut funktionierenden räumlichen Kontext zu bieten. Die grosse Herausforderung dabei war die Einbettung der technischen Anlagen. Wo Neuerungen sichtbar sind, begegnen sie der Qualität des Bestands auf Augenhöhe.

Das grosse Ausräumen

Am Anfang der Arbeiten stand die Suche nach Originalplänen und -dokumenten, eine wesentliche Grundlage für das bevorstehende grosse Ausräumen und das schichtenweise Freilegen der eigentlichen Bausubstanz. Unzählige, über die Jahrzehnte kontinuierlich im Haus wuchernde Installationen für Lüftung und elektrische Anlagen galt es aufwendig zu demontieren, ebenso ­asbestbelastete Bauteile, die mithilfe spezieller Unterdruckkammern entfernt wurden.

Die nachfolgenden Abbrucharbeiten hatten den Rückbau des Gebäudes in den ursprünglichen Zustand zum Ziel. So entfernte man im Restaurant eine 1958 eingebaute Decke aus Betonelementen, um die eigent­liche Raumhöhe von knapp 5 m zurückzugewinnen. Die ursprünglich in der Hohldecke verlaufenden Lüftungsleitungen konnten anderweitig verlegt werden, und so sind die darunter teilweise erhaltenen Stuckdecken nun erneut zu erleben.

Zudem sind die mittigen Säulenpaare aus Stahl in ihrer ursprünglichen Form wieder als Betonstützen ausgebildet und nach historischem Vorbild mit Carraramarmor verkleidet. Die historische Ratsstube fand – in Absprache mit der städtischen Denkmalpflege fachgerecht ausgebaut – im früheren Weinkeller im Untergeschoss ihr neues Zuhause.

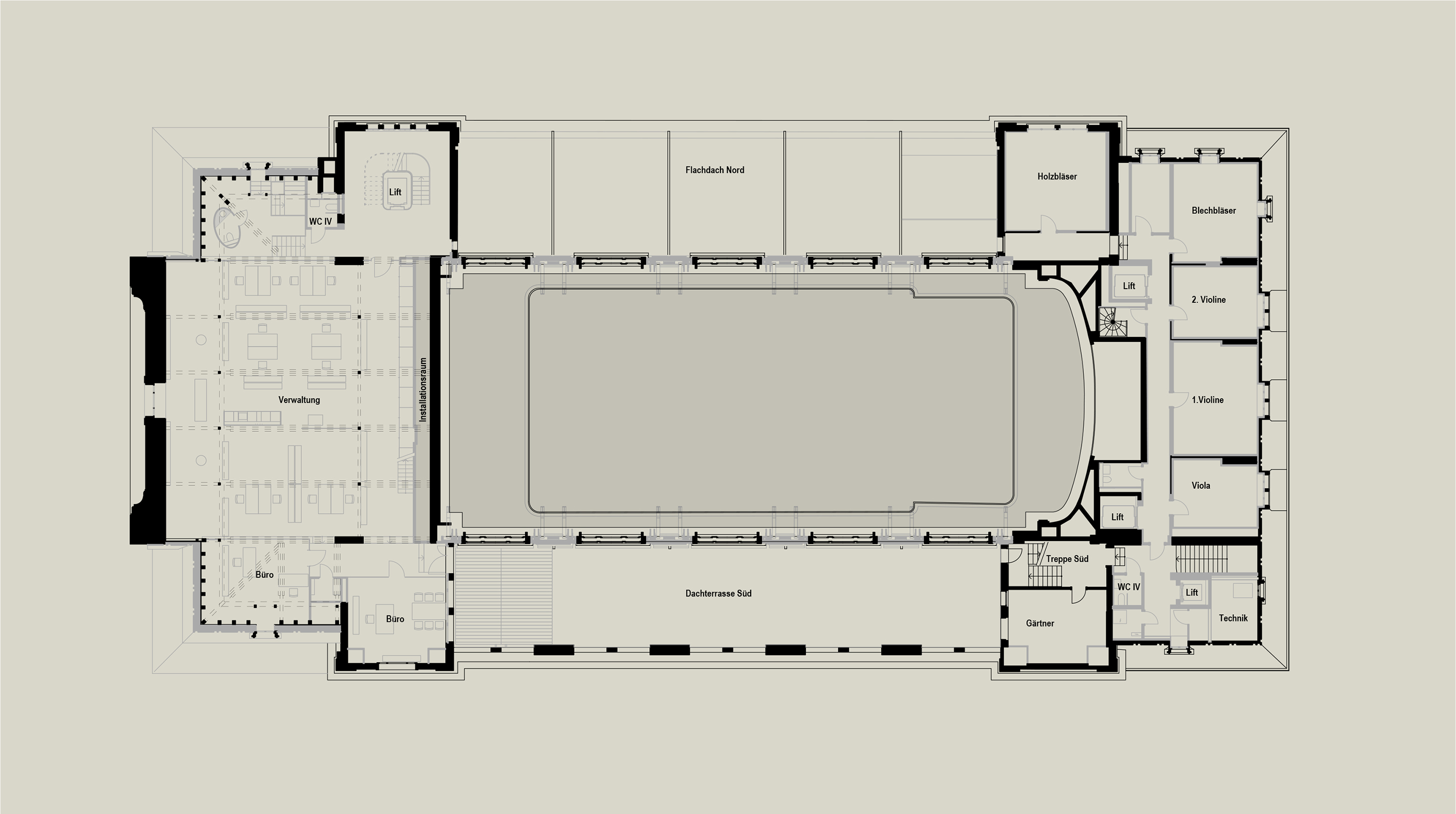
Ergänzungen im Keller und im Dach

Um den gewachsenen Ansprüchen an die innere Organisation des Hauses gerecht zu werden, gab es einige massive Eingriffe: Weil an der Ostseite zum 1. Untergeschoss ein vergrösserter Anlieferungsbereich für die Restauration und den Konzertbetrieb gewünscht war, musste unterirdisch neu gebaut werden. Aufgrund sorgfältiger Archivforschung und auf Sondierungen abstellender Planung wurde diese Massnahme frühzeitig berücksichtigt.

Ein weiteres grosses Anliegen der Nutzergruppen war die Entflechtung der Wege. Dafür wurde das westliche Treppenhaus erweitert und der Aufzug ins Untergeschoss verlängert. So sind die neuen Toilettenanlagen im 1. Untergeschoss direkt von der Eingangshalle her für das Publikum erschlossen. Die westliche Eingangshalle ist wieder vollständig zum Haupttreppenhaus offen und reicht nach Süden bis hin zum Res­taurant.

Die ausführliche Version dieses Artikels lesen Sie in TEC21 44/2019 «Sanieren im Denkmal: eine Frage des Standards».

Am Bau Beteiligte

 

Bauherrschaft: Burgergemeinde Bern

Architektur und Generalplanung: CampanileMichetti, Bern/ Baar

Tragwerksplanung: Weber + Brönnimann, Bern

Innenarchitektur Restaurantbereiche: Atelier Zürich

Sondierung Schadstoffe: CSD Ingenieure, Liebefeld BE

HLKS-Planung: Gruner Roschi, Köniz BE

Elektroingenieur: Hefti.Hess.Martignoni, Bern

Betriebsplanung: Klaus Architekten Innenarchitekten, Mettmenstetten ZH

Brandschutzplanung: SafeT Swiss, Ittigen BE

Lichtplanung: Vogt & Partner, Winterthur

Audioanlagen: Kilchenmann, Kehrsatz BE

Fachplaner Bühnentechnik: The Space Factory, Lyon (F)

Schreinerarbeiten, Wandpaneele: Röthlisberger, Gümligen BE

Personenaufzüge: Emch Aufzüge, Bern

Polstermöbel, Sonderanfertigungen: Girsberger, Bützberg BE

Bauzeit: September 2017 bis August 2019

Gesamtkosten: 78 Mio. Fr.

Tags

Verwandte Beiträge