Park oder Po­li­tik?

Neubau Besucher- und Informationszentrum des Deutschen Bundestages (BIZ)

Markus Schietsch Architekten bauen das neue Zugangsgebäude zum Berliner Reichstag. Ihr Entwurf orientiert sich am angrenzenden ­Parlaments- und Regierungsviertel. Der unterlegene Vorschlag hingegen bezieht sich konzeptionell auf den benachbarten Tiergarten.

Publikationsdatum
03-03-2017
Revision
03-03-2017

Glas als Symbol für Bürgernähe und Transparenz, wo immer es zwischen den historischen Mauern möglich war, prägt die Architektur des Berliner Reichstags (1884–1894, Architektur: Paul Wallot). Nah an das Gebäude heran kommen Besucher angesichts von Terrorgefahr allerdings schon seit Jahren nicht mehr. Die Sicherheitskontrollen finden derzeit provisorisch in Containern vor dem Gebäude statt. Dieser Situation soll mit einem neuen Zugangs­ge­bäu­de inklusive Tunnel zum Reichs­tag Abhilfe geschaffen werden. ­Dafür, und um Besucher besser über die Arbeit des Parlaments zu informieren, lobten Bund und Land Berlin gemeinsam einen Wettbewerb für Teams aus Architekten und Landschaftsarchitekten aus.

Am 11. Januar ­dieses Jahres erhielt die Zürcher Arbeitsgemeinschaft von Markus Schietsch Architekten mit Lorenz Eugster Landschaftsarchitektur & Städtebau den Zuschlag. Nach zwei Wettbewerbsphasen setzten sie sich im anschlies­senden Verhandlungsverfahren ­gegen Markus Bonauer, Michael Bölling (2D+ Architekten) und rw+ Architekten zusammen mit capatti staubach Landschaftsarchitekten, alle Berlin, durch.

Säulen, Stützen, Demokratie

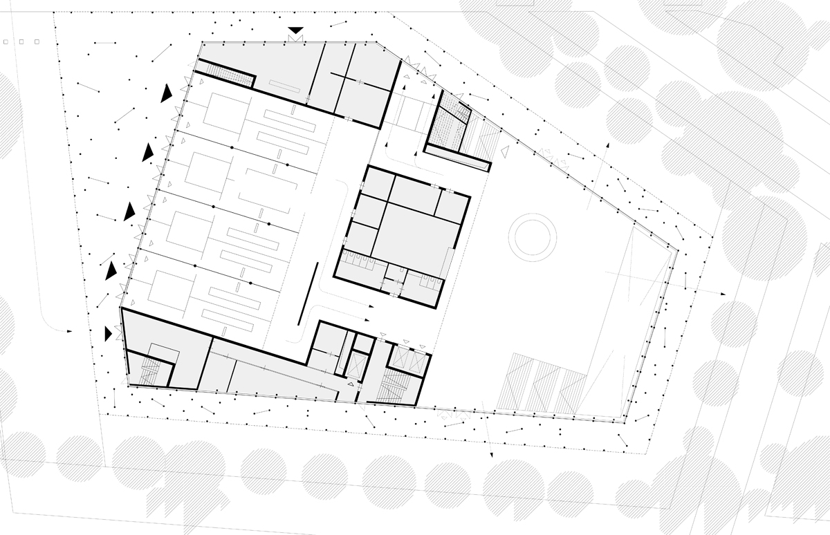
Gewonnen haben die Zürcher Architekten mit ihrem Entwurf eines schmalen, dreigeschossigen Pavillons, den sie auf dem Baufeld weit abgerückt vom Strassenrand posi­tionieren, sodass eine grosszügige Eingangssituation entsteht. Das elegante Äussere des Gebäudes ­dominiert der umlaufende Betonstützenkranz vor der gläsernen ­Gebäudehülle. Mit diesem nehmen die Architekten Bezug auf Säulenordnung und Eingangsportikus des Reichstagsgebäudes. Die Anordnung des Pavillons – orthogonal zum Reichstag und parallel zu den weiteren Gebäuden des Parlaments- und Regierungsviertels – soll diesen ganz selbstverständlich Teil des Ensembles werden lassen.

Auch die Gestaltung des Gebäudeinnern richtet sich auf den Reichstag aus. So befindet sich oberhalb des als Gebäudesockel ausgebildeten, niedrigen Erdgeschosses eine zweigeschossige, lichte Halle, die einen weiten Blick auf den Platz der Republik und das Reichstagsgebäude bieten soll. Ob dies allerdings an­gesichts der weit zurückgesetzten Positionierung des Pavillons und der angrenzenden, baumbestan­denen Allee realistisch ist, bleibt abzuwarten. Innerhalb der Halle platzieren die Architekten das Ple­narforum, das dem Plenarsaal des Bundestags ähnelt und der Besucher­information dient, sowie Seminarräume als eingestellte, zweigeschossige Raumkörper. Verbunden werden alle Gebäudeebenen über eine zentrale, zweiflügelige Treppe.

Bäume, Stützen, Park

Auf den ersten Blick dem Entwurf der Zürcher Arbeitsgemeinschaft ähnelnd, konzeptionell jedoch verschieden präsentiert sich der zweite für die Überarbeitung ausgewählte Entwurf von Markus Bonauer, Michael Bölling (2D+ Architekten) und rw+ Architekten, Berlin. Auch hier entschieden sich die Architekten für einen von Betonstützen umsäumten Glaspavillon, der jedoch ­einer weniger strengen Geometrie folgt als der Gewinner und in seiner Kubatur den unregelmässigen, poly­gonalen Zuschnitt des Baufelds nahezu ausfüllt.

Dieses Baufeld ergibt sich aus den Richtungen der angrenzenden Parkwege – schon allein dadurch entsteht ein starker Bezug zum angrenzenden Tiergarten, dem gros­sen innerstäd­tischen Park ­Berlins. Die konzeptionelle Orien­tierung des Entwurfs an Reichstag sowie Parlaments- und Regierungsviertel fällt dementsprechend schwächer aus. So tritt zwar auch hier – genau wie beim Konkurrenzentwurf – die gläserne Gebäude­hülle hinter die Betonstützen zurück. Diesmal jedoch sind diese unregelmässig ­angeordnet und werden von den Verfassern nicht als Antwort auf Säulenordnungen verstanden, sondern als Fortführung des angrenzenden Baumbestands.

Im Gebäudeinnern setzen die Architekten die Leitidee, das Gebäude in den Park einzubetten, mit dem auf der Ostseite, am baum­bestandenen Parkweg gelegenen, gebäudehohen Foyer fort. Der freie Blick über den Platz der Republik zum Reichstagsgebäude ist dagegen vor allem im Bereich vor Plenar­forum und Seminarräumen im ­ersten Obergeschoss möglich.

Gefährliche Transparenz

Beide Entwürfe entwickeln sich ­konsequent aus dem Ortsbezug, der Lage am Parkrand bzw. am Rand des Parlaments- und Regierungsviertels. Den Zuschlag erhielt das Konzept, das die funktionale Beziehung zwischen Besucherzentrum und Reichstagsgebäude architek­tonisch-städ­tebaulich eindeutiger abbildet. Es bleibt nur zu hoffen, dass das neue Gebäude nicht abermals zu gläsern für zukünftige Sicherheitslagen ausgefallen ist.

Weitere Informationen über das BIZ in Berlin finden Sie unter der Rubrik Wettbewerbe.

Auszeichnungen
 

1. Preis und Weiterbearbeitung
Markus Schietsch Architekten, Zürich;
Lorenz Eugster Landschaftsarchitektur & Städtebau, Zürich;
Dr. Lüchinger + Meyer Bauingenieure, Zürich;
Quantum Brandschutz, Basel
 

1. Preis (ex aequo)
M. Bonauer / M. Bölling / rw+ Architekten, Berlin;
capatti­ staubach Landschaftsarchitekten, Berlin;
Knippers Helbig, Stuttgart;
Transsolar Energietechnik, Stuttgart;
Kosten: SMV Bausteuerung Ingenieurgesellschaft, Berlin;
hhpberlin, Berlin
 

Anerkennung
Burgos & Garrido Arquitectos Asociados mit FRPO Rodriguez & Oriol Arquitectos, Madrid;
Verzone Woods Architectes + Uberland, Vevey
 

Anerkennung
bob-architektur, Köln; FSWLA, Düsseldorf;
Ingenieurbüro Mentges Beratende Ingenieure, Siegburg
 

Anerkennung
Henn, Berlin;
Ingenieurgesellschaft BBP Bauconsulting, Berlin
 

Anerkennung
Allmann Sattler Wappner Architekten, München;
Schüller Landschaftsarchitekten, München
 

Anerkennung
ARGE Kim Nalleweg Architekten und César Trujillo Moya, Berlin
TDB Landschaftsarchitektur Thomanek Duquesnoy Boemans Partnerschaft, Berlin

 

Jury


Carlo Baumschlager, Architekt, Dornbirn
Donatella Fioretti, Architektin, Berlin
Bettina Georg, Architektin, Berlin
Almut Grüntuch-Ernst, Architektin, Berlin
Regine Keller, Landschaftsarchitektin, München
Eva-Maria Lang, Architektin, München / Dresden
Arno Lederer, Architekt, Stuttgart
Gabriele Pütz, Landschaftsarchitektin, Berlin
Till Rehwaldt, Landschafts- und Gartenarchitekt, Dresden
Benedikt Schulz, Architekt, Leipzig
Michael Schuhmacher, Architekt, Frankfurt a. M.
Henrike Wehberg-Krafft, Architektin / Landschaftsarchitektin, Berlin

Verwandte Beiträge