Ei­chen für An­ker

Das historische Wohnhaus von Albert Anker in Ins BE wurde renoviert und ergänzt. Für die reiche Hinterlassenschaft des Künstlers baute der Architekt Marcel Hegg im Garten einen Pavillon. Die massiven, mit Holzdübeln verbundenen Wände erfüllen alle energetischen Auflagen ganz ohne Isolation.

Publikationsdatum
19-04-2024

Albert Anker (1831–1910) war ein überraschend facettenreicher Mensch. Der Künstler reiste regelmässig von seinem Wohnort Ins im Berner Seeland nach Paris. Von dort brachte er Ideen zurück – zum Beispiel für die Dachfenster seines Ateliers, die er nach dem Vorbild des Louvre von lokalen Handwerkern nachbauen liess. Es sollen die ersten dieser Art in der Schweiz gewesen sein. 

Viele von Ankers Ölgemälden befinden sich in Privatsammlungen oder Museen. Darüber hinaus existieren auch mehrere Tausend Arbeiten auf Papier, darunter akademische Studien und Zeichnungen seiner vier Kinder. Eine andere Werkgruppe umfasst Skizzen von historischen Figuren auf dünnem Papier, die er für die Fayence-Manufaktur der Elsässer Brüder Deck in Paris anfertigte. Weiter gibt es verschiedene Vorstudien, die man Gemälden zuordnen kann. 

Gut geschützt hinter Massivholz

Für all diese Preziosen, die teils noch im alten Wohnhaus lagerten, baute die Stiftung Albert Anker-Haus von 2021 bis 2022 einen Pavillon auf dem Grundstück. Doch was passt zum emblematischen, traditionellen Haus mit Walmdach, das Originale von Anker und befreundeten Künstlern beherbergt? Die Antwort fand der Architekt Marcel Hegg im Typus des Speichers – dem ruralen Aufbewahrungsort nicht nur für Lebensmittel, sondern auch für Trachten und Schmuck. Im aktuellen Fall ist ein Ort für Kunstwerke und Kulturgut entstanden. 

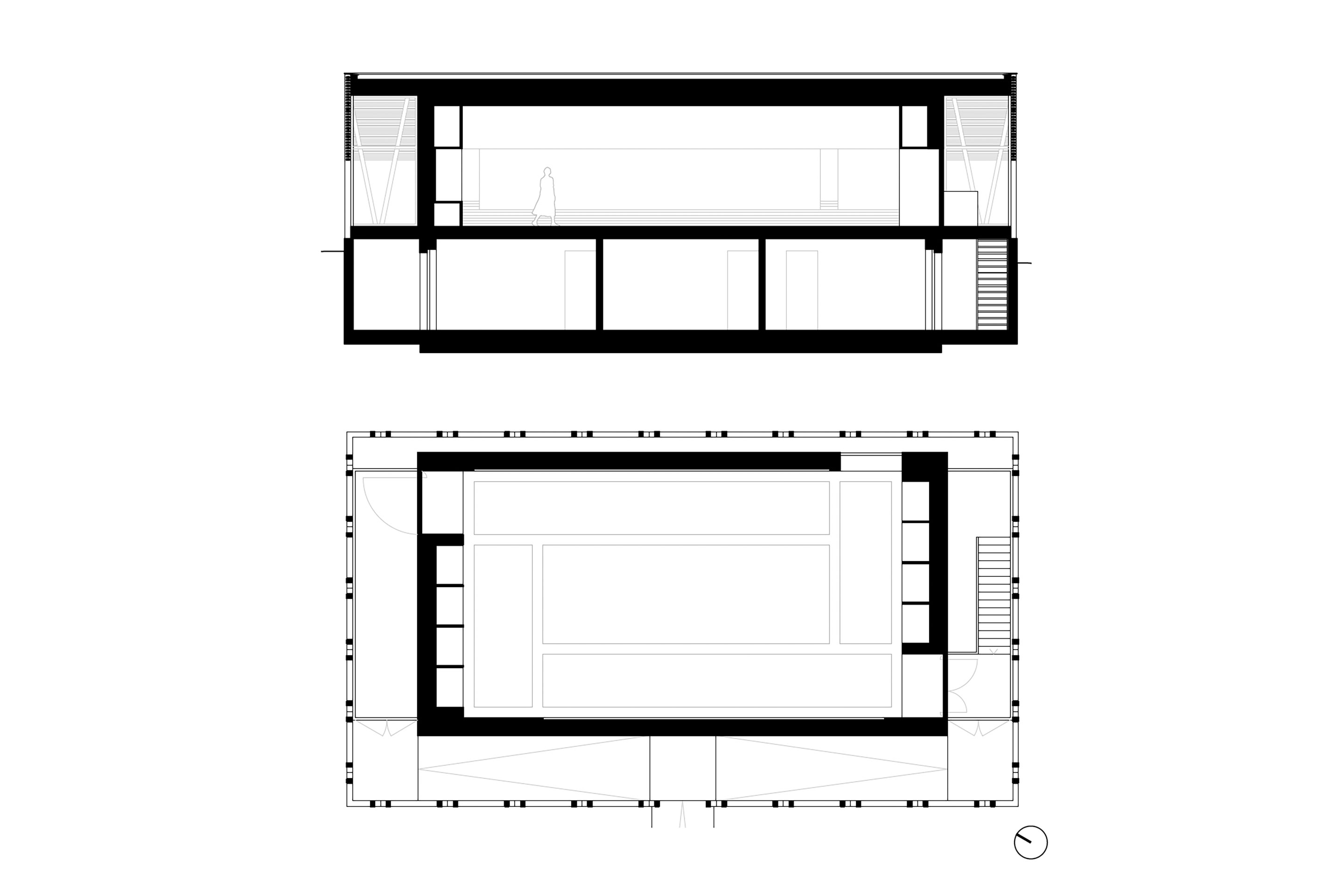
Für Besuchende ist der Neubau nicht gleich sichtbar. Der Weg führt zunächst durch das alte ­Anker-Haus und die rückseitige ehemalige Hostet mit den Obstbäumen. Erst wenn man über eine Blumenwiese den kleinen Hügel hinaufgeht, sieht man den Pavillon. Eine flache Rampe führt zum erhöhten Eingang, was dem Gebäude etwas Tempelartiges verleiht. Doch der Bau, der über den Gräsern zu schweben scheint, ist einfach und fein. Wider Erwarten befindet sich keine zentrale Tür an der Frontseite; stattdessen wird man über den umlaufenden Laubengang nach links zum Besucher- oder nach rechts zum Betriebseingang geleitet. In den schrägen Eichen-Streben um die Laube herum könnte man die vier «A» sehen, mit denen Albert Anker einen Teil seiner Korrespondenz unterzeichnete. Eines davon bezieht sich auf «Anet», den französischen Namen von Ins. 

-> Mehr zum Thema Holz finden Sie in unserem E-Dossier Holzbau.

Nach den ersten Monaten seines Bestehens leuchtet das Innere des Laubengangs aus Weisstanne hell gegen das wetterexponierte Äus­sere, das erste Anzeichen der Vergrauung aufweist. Das als Mondholz geschlagene Eichenholz der Laube kommt aus den umliegenden Wäldern. Der Durchmesser der Stämme lässt erahnen, dass die Bäume aus der Zeit Ankers stammen. 

Die Fassade als Holzrelief

Wie bei traditionellen Bauten gibt es an der Fassade und am Dach des Pavillons Vorsprünge und Nischen, in denen Vögel ihre Nester bauen und Insekten Schutz suchen. Die reinen, leimfreien Holzwände des Konstruktionssystems sind auch der Grund, weshalb Marcel Hegg die Fassadenoberfläche reliefartig gestaltet hat. So sehen die Besuchenden, wie die Konstruktion mit kreuzweise geschichteten Lagen aufgebaut ist: innen diagonale Bretter, eine Ebene davor horizontale und ganz aussen stehende. Ein Raster aus 3000 Dübeln mit ornamenthaften Zap­fen hält die Wandschichten zusammen. Sie bestehen aus unterschiedlich breiten Elementen mit einer stattlichen Dicke von 48 bis 57 cm. Die verwendeten Hölzer sind jedoch von unterschiedlicher Qualität. Die inneren Wandschichten bestehen aus minderwertigem Holz, das sonst verbrannt oder für Holzwerkstoffe verwendet worden wäre, und nur die äusserste Lage ist aus hochwertigem, gehobeltem Sichtholz.

Gegenüber der energetischen Verwertung verlängert sich so die Kaskadennutzung um die Lebenszeit des Baus. Im Vergleich zu einer Verwertung als Werkstoff spart man das CO2, das bei dessen Produktion freigesetzt worden wäre. Und nicht zuletzt lassen sich auch die Energie und die Emissionen einsparen, die die Produktion von fossil produzierten Baumaterialien freigesetzt hätte. Eine Holzwand ohne Metallverbindungen und Leim ist zudem eines Tages problemlos wiederverwertbar. 

Klima für erhöhte Anforderungen 

Vom Laubengang gelangt man durch eine seitliche Tür in den Windfang. Dann schliesst sie sich und eine zweite zum Archivraum geht auf. «Das hat funktionale und hygienische Gründe, zelebriert aber auch das Betreten des Raums wie in eine Schatzkammer», sagt Marcel Hegg. Die lichtempfindliche Kunst ist im Innern des abgedunkelten Raums gut geschützt. Das Eichenholz für den Innenausbau im Lager- und Ausstellungsraum ist unbehandelt und der Bodenbelag wird durch die Nutzung eine natürliche Patinierung erfahren.

«Das hier ist kein Galerieraum, sondern funktioniert als Schaulager», präzisiert Daniela Schneuwly, die betriebliche und künstlerische Leiterin des Centre Albert Anker. «In den Tischvitrinen zeigen wir Gegenstände wie Ankers Tabakpfeifen oder seine Notizbücher.» Die Aufhängevorrichtung an den Wänden besteht aus Gittern, die man in Depots nutzt. Sie ermöglichen eine flexible Anordnung der Kunst und reduzieren den Verschleiss an Material. In anderen Museen müssen die Wände nach einer Ausstellung oft komplett aufgefrischt werden.

Die Wände aus Massivholz haben noch andere Vorteile: So erfüllen sie ab einer Dicke von 48 cm die erforderlichen Energiewerte. Aufgrund der langen Phasenverschiebung von Massivholz reagiert das Raumklima träge. Temperaturveränderungen im Aussenraum zeichnen sich im Innern so langsam ab, dass das Klima ausgesprochen lange stabil bleibt. Es lässt sich mit minimaler Betriebsenergie steuern. Würde die Heizung im Winter ausfallen, dauerte es bis zu sieben Wochen, bis das Innere komplett ausgekühlt ist. Trotz all dieser Vorteile von Massivholz konnte nicht auf eine Lüftung verzichtet werden, denn grös­sere Besuchergruppen bringen Wärme und Feuchtigkeit in den Raum. Um den Leihgebern trotzdem die verlangten Garantien geben zu können, sind die Anforderungen an die klimatischen Bedingungen wie Temperatur, Feuchtigkeit und CO2-Werte hoch.1 

Ein Besuch des Centre Albert Anker lohnt sich nicht nur der präsentierten Kunstwerke und der Stimmung wegen, sondern auch, um sich vom ausgesprochen angenehmen Innenraumklima des Pavillons zu überzeugen.

Neubau Kunstpavillon Centre Albert Anker, Ins

 

Bauherrschaft
Stiftung Albert Anker-Haus, Ins

 

Architektur
Atelier Marcel Hegg, Biel 

 

Bauleitung
Akkurat Bauatelier, Thun

 

Statik
Weber + Brönnimann, Bern

 

Statik Holzbau
Indermühle Bauingenieure, Thun

 

Bauphysik
Grolimund + Partner, Bern

 

Holzbau
Truberholz, Trub

 

Baumeister
Antonietti + Schwaar, Ins

 

Geschossfläche (SIA 416)
337 m2

 

Gebäudevolumen (SIA 416)
1410 m3

 

Fassade mit Dübeln
195 m2

 

Eichenholzdübel
3000 Stück

 

Baukosten BKP 1-9
2.58 Mio. Fr. inkl. MwSt.

 

Baukosten BKP 214
Montagebau Holz, 535 000 Fr. inkl. MwSt. 

Holzdübel-Patenschaft
2021 hätte Albert Anker seinen 190. Geburtstag gefeiert. Zu diesem Anlass wurden 190 Holzdübel mit dem Logo des Centre Albert Anker versehen und an den Fassaden des Pavillons verteilt. Mit der Patenschaft eines Dübels werden Sie Teil des Centre Albert Anker.

 

-> Mehr Informationen

Anmerkung

1 Die Anforderungen an das Raumklima: 20 °C ±2°C, 50 % Luftfeuchte ±5 %, CO2 zwischen 600 und 1 100 ppm.

Magazine

Verwandte Beiträge