Ge­misch­te Zei­le

Architektenauswahlverfahren Quartier Heidestrasse Berlin – Gewerbegebiet

Nördlich des Berliner Hauptbahnhofs wächst die Europacity heran. Den Wettbewerb zum Teilgebiet Gewerberiegel des Quartiers Heidestrasse konnte das Zürcher Büro EM2N für sich entscheiden.

Publikationsdatum
29-06-2017
Revision
29-06-2017

Für Berlin gibt es viele Synonyme. Eines ist «die Stadt der Kräne», denn noch immer gibt es in der deutschen Hauptstadt viele Brachen, die städtebaulich geplant und bebaut werden wollen. Die Europacity ist eines der riesigen Stadtentwicklungsprojekte in Berlin. Der «Masterplan Berlin Heidestrasse» formuliert das städtebauliche Entwicklungskonzept für die Gestaltung dieses ungefähr 40 ha grossen Areals zwischen Nordhafen, Heidestrasse und Humboldthafen. Das «Quartier Heidestrasse» nördlich vom Hauptbahnhof Berlin ist mit 85 000 m2 das grösste Teilstück dieses Projekts.

Besonders wichtig ist den Initianten des Quartiers Heidestrasse ein «lebendiger Kiez im Sinne der Berliner Mischung». Diese Mischung soll Wohn- und Bürogebäuden, Gewerbeflächen, öffentlichen Strassen und Plätzen sowie Grün­flächen ­beinhalten. Der Nutzungskatalog ist jedoch mehr eine Art allgemeingültiges Stadtplanungsprogramm denn eine besondere Mischung. Typisch Berlin ist jedoch, dass sich auf dem ehemaligen Container­umschlagplatz der Bahn, von Lagerhallen und Industrie geprägt, ab den Nullerjahren Kreativwirtschaft, Nachtleben und Sub­kultur ent­wickelten. Eine andere Art der ­«Berliner Mischung», die nun zugunsten des neuen Projekts weichen muss. Für das Teilgebiet «Gewerberiegel» wurde ein nicht ­offener Architekturwettbewerb ausgeschrieben. Das 28 300 m2 grosse Areal bildet im Westen des Quartier Heidestrasse den Abschluss zur Bahntrasse. Der 500  m lange Riegel hilft, die weiter östlich entstehenden Wohnbauten ­gegen den Lärm der Bahn abzuschirmen. Auf rund 114 000 m2 BGF sollen hier ab 2018 Büro- und Gewerbeflächen entstehen, ausserdem ­ein geringer Anteil an Einzelhandel.

Zeile mit Schlusspunkt

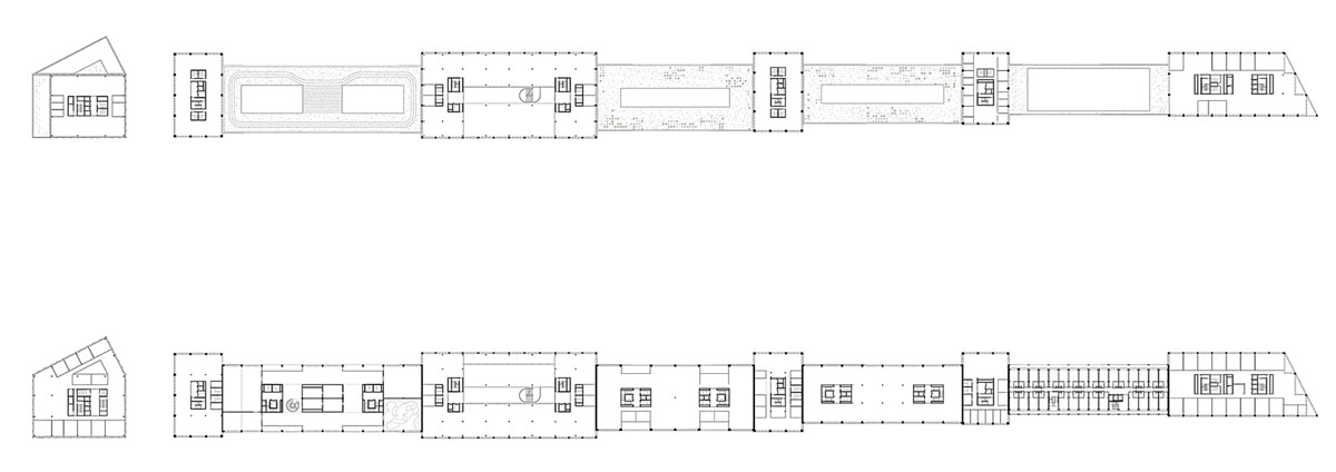
Der Entwurf des Büros EM2N Architekten aus Zürich wurde von der Jury zur Realisierung empfohlen. Der Riegel setzt sich aus zehn ­Gebäuden zusammen, von denen fünf mit zwölf ­Geschossen als Akzente geplant sind. Die dazwischen­liegenden, niedrigeren Gebäude verbinden das Ensemble zu einem gros­sen Gesamtkonzept. Mit Ähnlichkeit und Differenz ­schaffen die Architekten einen eigenständigen ­Stadtteil. Im Nordwesten lösen sie einen Kopfbau vom Gesamtensemble und bilden so einen Abschluss- bzw. Anfangspunkt der Europacity.

Kritikpunkte sieht die Jury in der zu geringen Nutzfläche gegenüber der Auslobung. Verschiedene Entwicklungen unterschiedlicher Investoren sind Auslöser für eine erhöhte Verdichtung. Um diese zu verbessern, schlägt die Jury eine Erhöhung der niedrigeren Geschosse um ein Stockwerk vor und fordert, die Geschosshöhe von 4.40 m zu überdenken. Bei einer Aufstockung der niedrigen Geschosse würde jedoch die architektonische Aussage des Ensembles geschmälert. Zugunsten einer grösseren Flächenausnutzung wird auch der Solitärbau im Nordwesten infrage gestellt.

Abgetreppt

Eller + Eller Architekten modellieren die Bauvolumen mit Hochpunkten an den Enden der Reihe und zeichnen einen langsamen Übergang zu den niedrigen ­Gebäuden durch Zwischenhochpunkte. «Diese Dif­ferenzierung, die auch die Fassadenmaterialien betreffen soll, kann die gewünschte Flexibilität ­beeinträchtigen und bedarf einer strengen Reglementierung, damit die städtebauliche Einheit nicht verloren geht», mahnt die Jury. ­Für Diskussionen innerhalb des ­Gremiums sorgte auch der Vorschlag, auf Höhe des ersten und zweiten Obergeschosses eine halböffentliche Erschliessungsebene zu schaffen, die direkt mit einem geplanten Fussgängersteg über die Bahngleise verbunden werden sollte. Zwar bietet diese Zone Aufenthaltsbereiche für die im Gebäude arbeitenden Menschen, doch das Problem des Zug­lärms ist nicht ausreichend geklärt, und die an den Terrassen liegenden Büros büssen ein Stück ihrer Privatsphäre ein.

Mäandrierend

gmp verbindet fünf einzelne Häuser über eine durchgehende Sockelpartie zu einem Ganzen. Das so entstehende Bild ist für die Jury zu gleichmässig, die Fassade müsste bei einer weiteren Bearbeitung differen­­ziert werden. Gut kommt die mäan­drierende Form des Gebäuderiegels an, der einen direkten Bezug zu den öffentlichen Bereichen zulässt.

Weitere Informationen finden Sie unter der Rubrik Wettbewerbe.

Auszeichnungen
 

1. Preis: EM2N, Zürich;
Man Made Land Bohne Lundqvist Mellier, Berlin;
Weischede, Hermann und Partner, Basel;
KD Fassadenplanung, Düsseldorf;
HTW Hetzel, Tor-Westen und Partner, Berlin;
Höhler + Partner, Aachen /Hamburg;
LMNB Studio, Paris
 

2. Preis: Eller + Eller Architekten, Berlin; Pola, Berlin
 

3. Preis: gmp, Berlin;
Capatti Staubach, Berlin;
Arup, Berlin

 

FachJury
 

Armin Günster, Architekt; Jórunn Ragnarsdóttir, Architektin; Ritz Ritzer, Architekt; Tobias Wulf, Architekt; Roland Kuhn, Architekt; Tim Heide, Architekt

 

SachJury
 

Thomas Bergander, Quartier Heidestrasse; Regula Lüscher, SenStadtUm; Ephraim Gothe, BA Mitte; Manuel Heide, Rechtsanwalt

 

Magazine

Verwandte Beiträge