In Schatt­dorf ist auf die Son­ne Ver­lass

Vor gut drei Jahren bezog die Sisag ihr neues Firmengebäude in Schattdorf (UR). Das innovative Energiekonzept mit elektrochromer Glasfassade, thermoaktivem Bauteilsystem und ausgeklügelter Gebäudeautomation beweist sich seither im Betrieb.

Publikationsdatum
14-07-2023

Mit Energiemanagementsystemen kennt sich die Urner Firmengruppe der Sisag wahrlich aus. Eines ihrer zahlreichen Produkte ist beispielsweise darauf ausgelegt, Leistungsverbraucher in Skigebieten – also unter anderem Luftseil-, Standseil-, Gondel- oder Sesselbahnen – zu synchronisieren und zu koordinieren, um Stromspitzen zu vermeiden und damit die Kosten und den Gesamtenergieverbrauch für den Betreiber zu optimieren. Überhaupt scheint das innert 38 Jahren von fünf auf rund 200 Mitarbeitende gewachsene Unternehmen mit Kernkompetenzen im Steuerungsbau, in der Automatisierung und Digitalisierung ständig auf der Suche nach innovativen Lösungen zu sein.

Es liegt also nahe, dass sich diese Technologieverbundenheit auch in ihrem Ergänzungsbau in Schattdorf äussert, der im Jahr 2020 fertiggestellt wurde. Wer nun aber glaubt, das 30 m hohe Gebäude im Hauptsiedlungsgebiet des Unteren Reusstals sei bis unters Dach mit Haustechnik ausgerüstet, der irrt. Tatsächlich kommt die Technik sehr standortgerecht, dezent und äusserst selektiv zum Einsatz.

«Power Tower»

Im Jahr 1996 siedelte die Sisag von Altdorf nach Schattdorf um und bezog dort ihr neues Büro- und Produktionsgebäude «SisNova». Der rund 50 m lange und 25 m breite, dreigeschossige Bau aus Stahl und Beton bot der Firma Raum für die anschliessende Wachstumsphase. Doch auch diese Wirkungsstätte gelangte nach 20 Jahren an ihre Grenzen und zusammen mit dem Bedürfnis nach einer Konzentration aller Zentralschweizer Standorte entschied man sich im Jahr 2016, die vor Ort vorhandenen Baugrundreserven zu nutzen und mit dem «SisCampus» mehr Raum für die Firma selbst und ein Angebot für die Öffentlichkeit zu schaffen.

Der 2020 fertiggestellte, neungeschossige Stahlbeton-Skelettbau schliesst südöstlich mit einem Anbau an den Bestand aus den 1990er-Jahren an und beschränkt sich auf eine Grundfläche von 19.7 m × 18.5 m. Dieser physisch bescheidene Fussabdruck harmoniert bestens mit dem gewählten Energiekonzept, bei dem die Sonnenenergie, eine elektrochrome Glasfassade, Betondecken zur thermischen Speicherung und eine intelligente Steuerungstechnik die Hauptrolle spielen; durch die vertikale Orientierung des Gebäudes weisen alle um den Erschliessungskern angeordneten Räume grosse Fensterflächen auf und können ganzjährig von der Sonnenenergie profitieren.

Zwar gehören klassische Föhnregionen wie das Urner Reusstal nicht zu den sonnenreichsten Regionen der Schweiz – die milden Temperaturmittel und die hohe relative Sonnenscheindauer lieferten aber zumindest gute Argumente für die Glasfassade im Pfosten-Riegel-System. Man entschied, auf einen sekundären Sonnenschutz zu verzichten und die Fassade aktiv ins Energiekonzept einzubinden. So dosiert die dynamische Verglasung als Pförtnerin die Menge an Energie, die ins Gebäude eintritt und sorgt im Zusammenspiel mit den übrigen Systemkomponenten für ein stets behagliches Temperatur-niveau zwischen 22 und 26 °C im Gebäudeinnern. Zusammengefasst funktioniert das System wie folgt: Die elektrochrome Fassadenverglasung regelt – automatisch gesteuert – den natürlichen Licht- und Wärmeeinfall. Während das natürliche Tageslicht den Bedarf an Kunstlicht bedeutend reduziert, wird die Wärmeenergie direkt an das thermoaktive Bauteilsystem (TABS) der Betondecken weitergegeben. Dieses funktioniert als Wärme- oder Kältespeicher und gibt die aufgenommene Energie zeitversetzt ans Gebäude zurück; die Glasfassade reguliert und bewirtschaftet also den Betonkörper des Gebäudes als Speichermasse. Hinzu kommt eine innenliegende, sitzhohe Betonbrüstung, die auf jedem Geschoss als zusätzliche passive Speichermasse dient. Für den Luftaustausch sorgen motorisierte Lüftungsflügel, die im Bedarfsfall auch manuell geöffnet werden können. Lediglich die beiden obersten Geschosse sind mit einer mechanischen Lüftung ausgerüstet.

Intelligente Steuerung ohne Schalter

Der «SisCampus», der neben Produktionsflächen und Büros (Erdgeschoss bis 6. Obergeschoss) auch ein öffentliches Hotel und ein Restaurant (7. und 8. Obergeschoss) beherbergt, setzt also auf eine nachhaltige und energieeffiziente Nutzung natürlicher Wirkprinzipien. Den Bau aber als Low-tech-Gebäude zu bezeichnen, wäre verfehlt. Denn das Gebäude wird intelligent gesteuert: Eine KNX-Gebäudeautomation zeichnet ständig Parameter im Gebäudeinnern und der Umgebung auf, regelt davon ausgehend die Lichtdurchlässigkeit der elektrochromen Gläser und steuert die Lüftungsflügel.

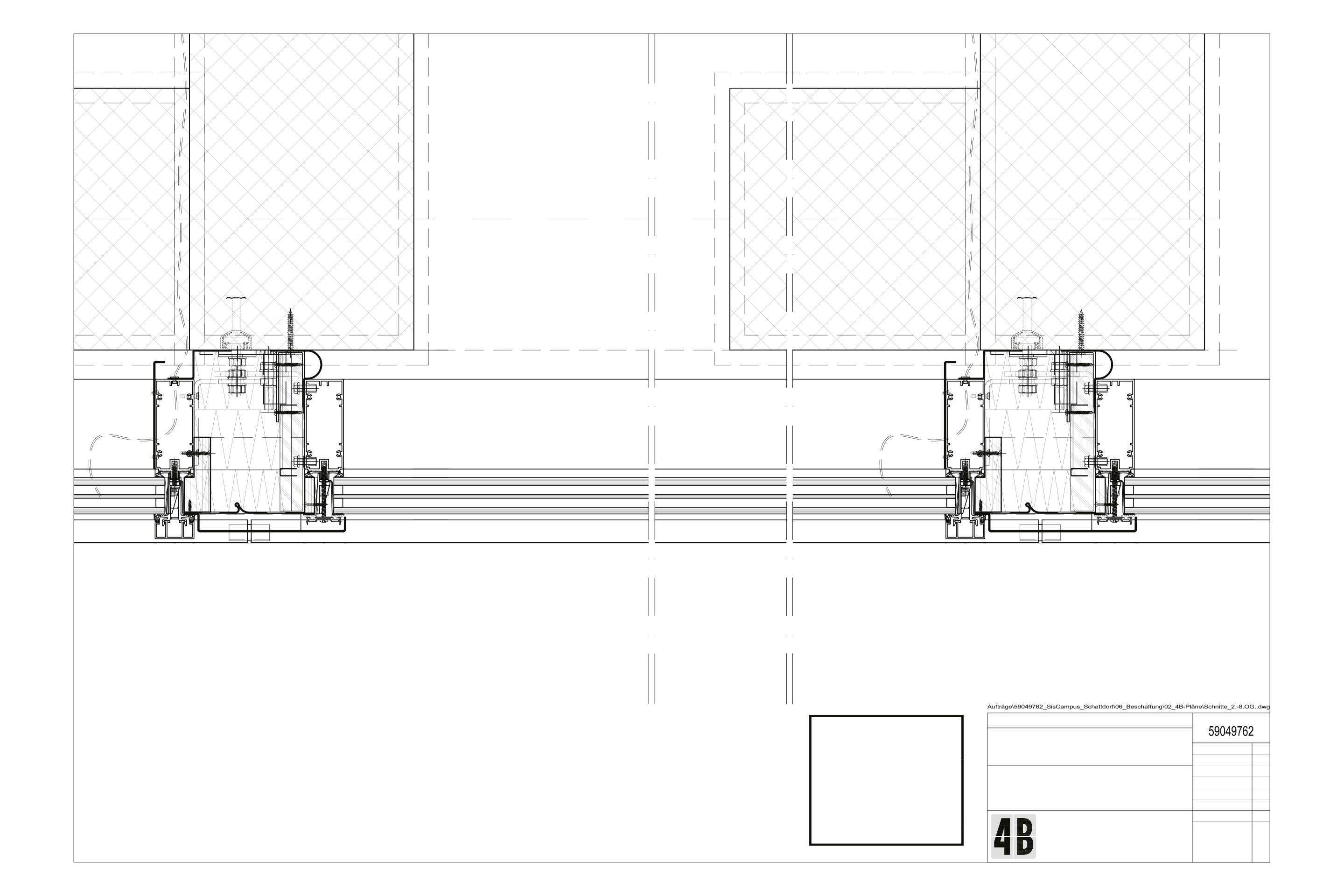
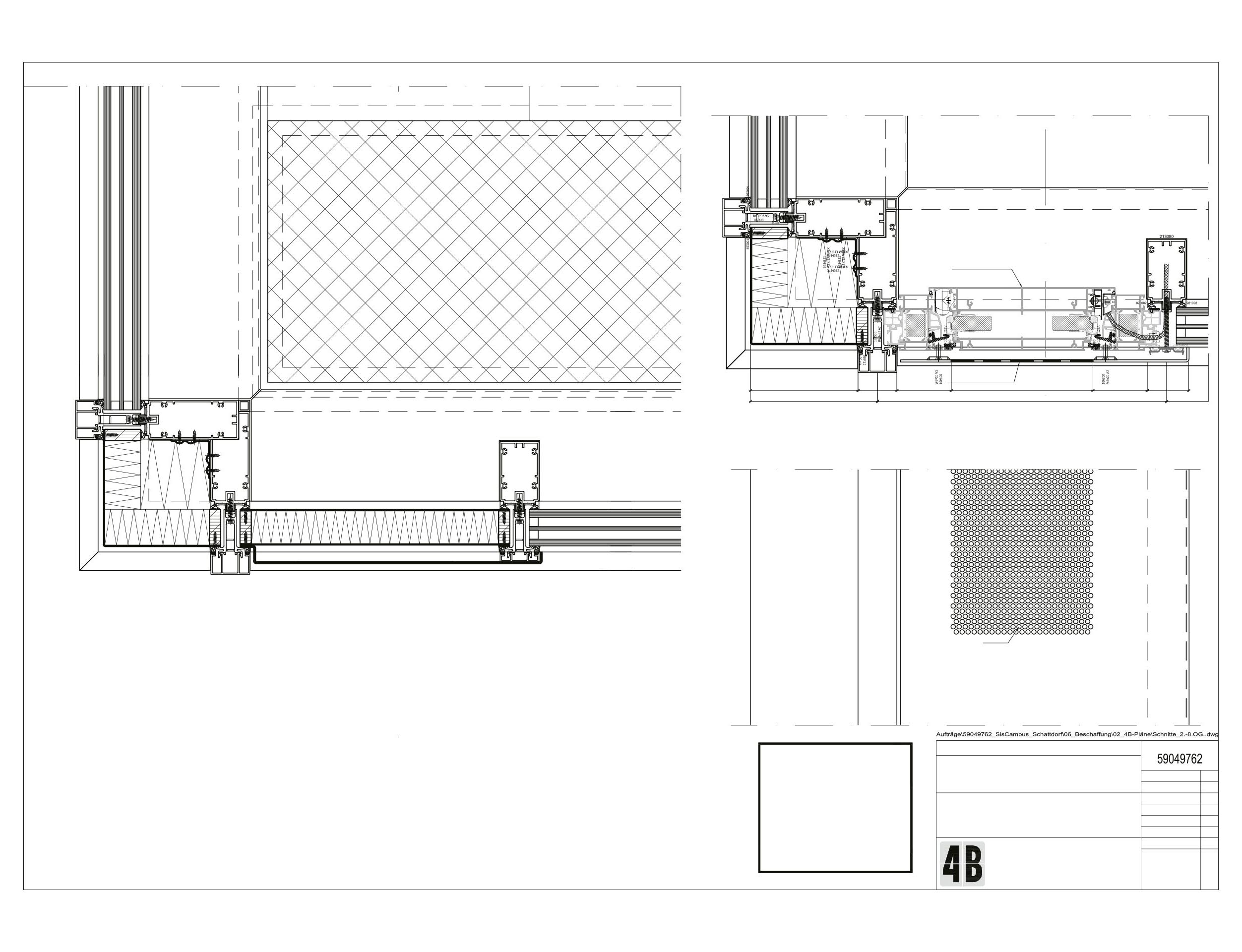
Die Fassade selbst bilden 112 Pfosten-Riegel-System-Elemente in zwei Formaten, die vom Hersteller im luzernischen Hochdorf vorfabriziert und vor Ort montiert wurden. Mit Ausnahme der Nordostfassade sind alle Elemente mit elektrochromem Glas ausgestattet – total 1100 m2 Glasfläche bestehend aus Dreifach-Isolierglas, das insgesamt vier Schaltstufen (hell, dunkel und zwei Zwischenstufen) aufweist. Mittels Beschattungsautomation lassen sich theoretisch alle Fassadenelemente separat steuern – tatsächlich hat man aber die einzelnen Fassadenseiten zu Steuerungszonen zusammengefasst. Mit einer Schaltzeit von rund zehn Minuten zwischen den einzelnen Stufen lassen sich so Lichtdurchlässigkeiten zwischen 1 und 52 % sowie g-Werte zwischen 0.03 und 0.37 erzielen. Für die Aktivierung der Steuerung ist das festgelegte Komfortniveau zwischen 22 und 26° C massgebend. Nähern sich die Messwerte im Gebäudeinnern diesen Grenzwerten, nimmt das Steuerungssystem automatisch Einfluss auf den g-Wert der Verglasung und die Vorlauftemperatur des TABS (maximale Vorlauftemperatur mittels Grundwasserwärmepumpe von 28° C beziehungsweise Grundwasserdirektkühlung). Bei hoher direkter Sonnenbestrahlung greift die Steuerung unabhängig von den Raumtemperaturen ein, um mittels Anpassung des g-Werts angenehme Arbeitsbedingungen in Fassadennähe sicherzustellen.

All dies geschieht im Hintergrund; so sind im Gebäudeinnern keine Regulierungsschalter vorhanden. Bei Bedarf greift höchstens der Gebäudeverantwortliche manuell ins Steuerungssystem ein und hat dabei auch die Möglichkeit, einzelne Fassadenbereiche oder den TABS-Durchfluss pro Geschoss zu regulieren.

Erfolg mit Lernfaktor

Rückblickend auf die Planung und Umsetzung des innovativen Gebäudes spricht Daniel Dittli, Architekt und Gesamtleiter des «SisCampus», die grossen Herausforderungen bei der Planung abseits des gewohnten Terrains an. Da hierzulande noch wenig Erfahrung mit elektrochromem Glas vorhanden ist, mussten in erster Linie geeignete Unternehmen gefunden und vom vorgesehenen Energiekonzept ohne Redundanzen und Überdimensionierung überzeugt werden. Letztlich kamen beim «Sis-Campus» über 40 elektrische Gewerke zusammen, die es zu koordinieren galt. Überdies hatte Dittli am Anfang der Planung noch weitere Ideen zur Aktivierung der Bausubstanz. So wollte er ursprünglich auch die Brüstung mit TABS ausbilden. Aus konstruktiven und ausführungstechnischen Gründen musste er diese Absicht aber verwerfen.

Seit dem Bezug vor gut drei Jahren überwacht die Sisag den Betrieb des Gebäudes in Eigenverantwortung. Erich Megert, ehemaliger CEO und aktuell Gebäudeverantwortlicher der Sisag, zeigt sich durchaus zufrieden. Zusammen mit Dittli und einem Expertenteam erhebt und überwacht er seit der Inbetriebnahme Ende März 2020 die Energiekennzahlen. Und diese sprechen auf beeindruckende Weise für sich: Mit den nach SIA 2031 gemessenen Werten kann er einen Heizwärme-/Kältebedarf von 6.6 kWh und einen Lüftungswärme-/Kältebedarf für das 8. Obergeschoss von 4.7 kWh pro m2 Energiebezugsfläche und Jahr ausweisen. Das sind Werte, die so manches nach einem anerkannten Energielabel zertifizierte Gebäude vor Neid erblassen lassen. Aufgrund möglicher Einschränkungen bei der Planung strebte man jedoch nie ein derartiges Etikett an – für Megert sind allein diese Zahlen massgebend und Ausdruck einer gelebten Nachhaltigkeit in Sachen Energieverbrauch. Letztlich bleibt der Betrieb des Gebäudes – trotz intelligenter Automation – aber ein stetiger Lernprozess und Megert arbeitet noch daran, die Feinheiten des Systems an die Nutzungsbedürfnisse anzupassen. Das Gebäude und er seien immer noch in der Kennenlernphase, meint er mit einem Augenzwinkern dazu.

Alles in allem haben die Bauherrschaft und der Architekt auf die richtige Karte gesetzt: Sie haben ein innovatives Energiekonzept auf beeindruckende Art zu vergleichsweise geringen Baukosten umgesetzt. Eine Kunst, die auch anderen nicht verborgen blieb. So durfte man in Schattdorf erst kürzlich eine interessierte Architektengruppe zusammen mit deren Bauherrschaft empfangen, die ein ähnliches Konzept bei einem öffentlichen Bau in Bellinzona umsetzen wollen.

Dieser Artikel ist erschienen in «Fassaden | Façades | Facciate 2023 – Nachhaltige Ansätze».

Weitere Beiträge zum Thema finden Sie in unserem digitalen Dossier.

SISCampus, Schattdorf

 

Bauherrschaft
Sisag

 

Architektur und Generalplanung
Drost + Dittli Architekten, Zürich

 

Tragkonstruktion
Synaxis, Altdorf

 

Örtliche Bauleitung
Siebzehn13 Architekten, Altdorf

 

Fassadenplanung
Fachwerk F+K Engineering, Bern

 

Fassadenbau
4B, Hochdorf

 

Elektroingenieur
EWA-energieUri, Altdorf

 

Haustechnikplanung
Marty, Altdorf

 

Freiraumplanung
Studio Bürgi, Camorino

 

Automation Haustechnik
Jobst Willers Engineering, Rheinfelden

 

Facts & Figures

 

Planung
2017–2018

 

Fertigstellung
März 2020

 

Kostenkennwerte SIA 416 (BKP 2)
631 CHF/m3GV; 2070 CHF/m2GF

 

Fassadensystem und -material
Pfosten-Riegel-Fassade aus Metall mit SageGlass Climatop Classic

Verwandte Beiträge