Ein Fil­ter für Wär­me und Licht

Passiver Solargewinn

Das Zürcher Stadtspital Triemli ist um ein Bettenhaus erweitert worden, das hohe Ansprüche an die Betriebs- und Energieeffizienz erfüllen muss. Die zweischichtige Glasfassade scheint funktional widersprüchlich gewählt; sie ist aber nicht nur in der Wärmebilanz ein Gewinn.

Publikationsdatum
10-03-2016
Revision
25-05-2016
Paul Knüsel
Fach- und Wissenschaftsjournalist bei Faktor Journalisten

Fast ein halbes Jahrhundert nach seiner Eröffnung hat das Stadtspital Triemli markanten Zuwachs erhalten: Das bestehende Hauptgebäude und der Behandlungstrakt im Friesenberg-Quartier am Fuss des Uetlibergs werden nun um ein Bettenhaus ergänzt, das 100 m lang, 35 m breit, 50 m hoch ist. 15 Geschosse lie­gen sichtbar über dem Boden; zwei ­weitere befinden sich darunter.

Wie die bestehenden Gebäude der nun dreiteiligen Gruppe verfügt der ­Neuankömmling über einen eigenständigen Charakter; die städtebauliche Setzung der Baukörper erhöht dadurch die Spannung im gegenseitigen Wechselspiel. Gleichwohl halten die aussenräumlichen Beziehungen das neue Ensemble aus prägnanten Zeitzeugen z­usammen. Repräsentiert der 70 m hohe Bettenturm den grosszügi­gen Umgang mit Beton in den 1970er-Jahren, betonen Volumetrie und Tektonik des Neubaus eine zweck­mässige, effektvolle und zeitgenössische Architektur.

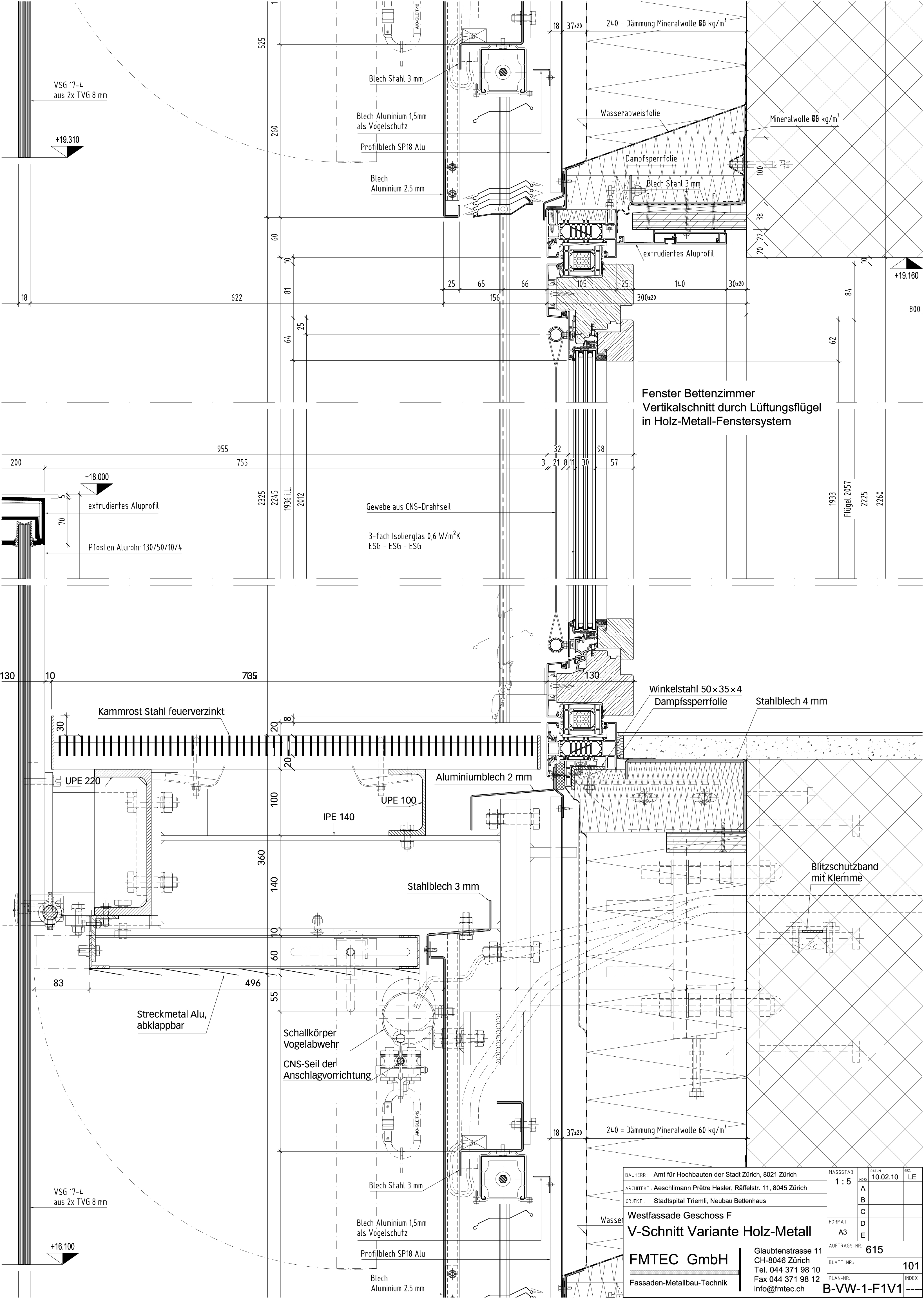
Hauptmerkmal ist die reflektierende Fassade aus zwei transparenten Glasschichten. Inwendig schliessen raumhohe Fenster die Bettenzimmer ab, ohne die Blickachsen von innen nach aussen zu behindern. Und davor ziert jedes Geschoss eine umlaufende Serviceschicht, deren verspiegelte Brüstung jeweils unterschiedlich abgewinkelte Gläser sind. 

Das Gebäude selbst besteht aus einem Betonskelett, dem die 39 cm mächtigen Zwischendecken, die zentralen Einbauten und ein äusserer Stützenring zuzuordnen sind. Die Glas-Metall-Fassade übernimmt dagegen keine statische Funktion; die Raumfenster sind geschossweise durchgängig eingepasst. Die äussere Serviceschicht ist an die massive Gebäudestruktur ­vorgehängt.

Gestalterisches Lichtspiel

Der Glanz am neuen Bettenhaus sorgt aber nicht nur für einen deutlichen Kontrast zu den Nachbargebäuden, sondern verändert auch die Wahrnehmung des grossen Baukörpers selbst. Aus gewisser Entfernung gibt die Glasfassade die jeweils unmittelbar ändernden Wetter- und Lichtverhältnisse wieder. Dagegen löst sich das Spiegelbild in der Detailansicht wie beim Zoom auf ein digitales Bild in unzählige Pixel auf.

Erzeugt wird dieser reflexive Skaleneffekt zum einen durch unterschiedlich geneigte und abgewinkelte Glaselemente in der äusseren Brüstungsschicht, wodurch der horizontale Umriss um das neue Bettenhaus zu einer Zickzacklinie wird. Zum anderen ist das vertikale Gebäudeprofil abgestuft, mit einem maximalen Versatz von 2 m zwischen den Geschossen. Deren Aussenkanten bleiben jedoch immer unter dem Rand des leicht geneigten ­Gebäudedachs. 

Das Muster der Fassadengestaltung wurde intuitiv entworfen, sowohl digital am Computer als auch analog am Gebäudemodell mit Massstab 1 : 100. Über ein Jahr lang war ein Mitarbeiter des Architekturbüros Aeschlimann Hasler Partner damit beschäftigt, jede einzelne Stufe und jeden Brüstungswinkel zu bestimmen und die Konstruktion zusammen mit dem Fas­sadenplaner ausführbereit weiterzuentwickeln.

Die Brüstungsgläser sind zudem farblich mithilfe einer Metallbeschichtung differenziert; in der Abfolge wechseln sich die Scheiben jeweils in vier Tönen zwischen Blau und Silber ab. Sie sind jeweils in einen Alumi­niumhandlauf auf einer Höhe von 1.1 m eingezogen und auf Fusshöhe an zwei Punkthaltern fixiert. Weil die Serviceschicht begehbar ist, wurden aus Sicherheitsgründen teilvorgespannte Gläser verwendet. Stirnseitig stossen die abgewinkelten Scheiben aber nur lose aneinander, weshalb die Fugen der halbhohen Brüstung jeweils offen sind. 

Energiedurchlass spezifiziert

Zu den eigentlichen Vorzügen der zweiteiligen Glasfassade gehört jedoch die selektive Filterfunktion: Da sich die Sonnenstrahlung in einen Wärme- und einen Lichtanteil aufteilen lässt, werden unterschiedliche Durchlassanforderungen an die Gläser definiert. Abhängig ihrer Positionierung in der Aussen- oder Innenschicht weisen die Scheiben einander deutlich abgrenzende Transparenzqualitäten auf.

So erlauben die Raumfenster einen hohen passiven Energiegewinn, weil der Infrarotanteil des Sonnenlichts weitgehend einstrahlen kann (Gläser mit g-Wert > 50 %). Die äusseren Brüstungsscheiben besitzen dagegen einen g-Wert von durchschnittlich nur knapp 20 %, was viel Licht durchscheinen lässt, aber hohe Anteile der langwelligen ­Infrarotstrahlung abhalten kann. Dadurch gelingt insbesondere der bauphysikalische Spagat, trotz durchgängiger Glasfront ein weit überdurchschnittliches Energieeffizienzniveau erreichen zu können. Das neue Bettenhaus trägt das Minergie-P-Eco-Gebäudezertifikat und ist damit auf einen spezifischen Energiekonsum von rund 4 l Heizöläquivalente pro m2 ausgelegt. 

Bei Inangriffnahme der Ausführungsplanung waren Bauherrschaft und Planer jedoch damit konfrontiert, dass nirgendwo sonst ein derart niedriger Bedarf oder planerisch ein solcher Nachweis für diese Ge­bäu­detypo­logie erbracht worden war. Der hohe Glasanteil an der Gebäudehülle erschwerte einerseits die baulichen Bedingungen, insofern eine vertiefte Abwägung zwischen solarem Energiegewinn und Wärmeschutz an der Fassade durchzuführen war.

Andererseits weist der hohe Grad an Belegung und Technisierung im Spitalbetrieb daraufhin, dass die Räume im neuen Bettenhaus mehr Kühl- als Heizwärmebedarf besitzen. Daraus ergab sich, dass die unterschiedlich definierte Energiedurchlassqualität ein taugliches Kriterium für die Auswahl der jeweiligen Gläser und Fenster ist. Die Fassadenschichten selbst bilden daher einen selektiven Strahlungsfilter: Die äussere Brüstung präferiert den Lichtdurchlass; die baulich stärker abgeschirmten Raumfenster eignen sich eher für einen passiven Wärmegewinn.

Die Brüstung ragt zudem in das Lichtprofil der darunterliegenden Geschosse, die daher bei hohem Sonnenstand teilweise vor direkter Ein­strahlung geschützt werden. Automatisierte Storen schirmen die Patientenzimmer gegen weitergehenden Sonnen­strahleneinfall ab. Und in der Nacht sorgt ein Lüftungsflügel, der im Raumfenster integriert ist, bei Bedarf für die erforderliche Auskühlung. Der automatisierte Hitzeschutz ist vorgängig mit Simulationen und an ­einem Pilot- und Demonstrationspavillon definiert ­worden, inklusive optimaler Neigewinkel der Raff­lamellen sowie der Querschnitt der Lüftungsflügel. 

Durchlässige Konstruktion

Der Wärmeschutz ist an der inneren Fassadenschicht trotzdem konstruktiv angemessen umgesetzt: Zum einen liegt der Wärmedurchgangskoeffizient (U-Wert) der Dreifach-Isoliergläser unter 0.9 W/m2K, was dem bestmöglichen Stand der Technik entspricht. Zum anderen ist die Serviceschicht thermisch getrennt mit der massiven Gebäudestruktur verbunden.

Die Stahlkonsolen, die das Aussengerüst tragen, sind so nicht direkt an die Stirnseite der Zwischendecken geschraubt; der 0.3 m tiefe Zwischenraum ist jeweils mit Zelluloseflocken und Steinwolle wärmedämmend ausgefüllt. Weitere energetische Schwachstellen sind mit Vakuumpaneelen abgedeckt. 

Die begehbare Serviceschicht ist vor Wind und Regen nur wenig geschützt und besteht teilweise aus durchlässigen Komponenten. Den Boden bilden engmaschige Gitter- oder Kammroste, deren Unterseite mit abklappbaren Streckmetallelementen aus Aluminium besetzt sind. Die Fugen zwischen den Glaselementen bleiben an der Brüstung ebenfalls offen. Die ursprünglich befürchtete Vogelinvasion hat sich entschärft, weil Taube, Schwalbe & Co. keine geschützten Nistplätze finden können. Zur vorsorglichen Abwehr wurden dennoch Anschlüsse montiert, die bei Bedarf mit Tieftonsendern bestückbar sind.

Die transparenten Fassaden des neuen Bettenhauses besitzen mehrere blinde Flecken: Sowohl entlang der vertikalen Gebäudekanten als auch unmittelbar ­unter dem Dach sind Gläser mit emaillierter Blend­beschichtung eingesetzt. Insofern zählen auch sie zu der insgesamt 15 000 m2 grossen Fassadenfläche, die es regelmässig zu unterhalten und zu reinigen gilt. Hauptsächlich erfolgt dies von der Serviceschicht aus – das Personal hat sich dabei an einem inwendig geführten Seil zu sichern. Zusätzlich ist auf dem Dach des Bettenhauses eine Fassadenbefahranlage installiert, die nicht nur für die Reinigung, sondern auch für den Austausch von Gläsern und Fenstern eingesetzt werden kann.

Am Bau Beteiligte


Bauherrschaft/Eigentümer
Amt für Hochbauten / Stadtspital Triemli Stadt Zürich


Architektur
Aeschlimann Hasler Partner


Fassadenplanung
FMTEC

Weitere Informationen


Gesamtkosten
290 Mio. Fr. (exkl. Teuerung)


Bauzeit
2010 bis 2015 


Gebäudevolumen
212 413 m3 (SIA 416)


Gebäudefläche total
61 969 m2 (SIA 416)


Fassade
15 000 m2


Geschosse
17


Bettenzimmer
250

Magazine

Verwandte Beiträge