Die Schu­le, mein Bü­ro

Neubau Sekundarschulhaus Sandgruben in Basel

Das digitale Zeitalter bringt auch für den Schulbetrieb grosse Umwälzungen. Gefragt sind heute selbstständiges Arbeiten, Teamarbeit und Fachwissen. Wie das architektonisch umgesetzt werden kann, zeigt die «Erfahrungsschule» von Stücheli Architekten exemplarisch.

Publikationsdatum
01-12-2016
Revision
05-12-2016

Mit dem Beitritt zum HarmoS-Konkordat will der Kanton Basel-Stadt zusammen mit 14 weiteren Kantonen das Schulsystem schweizweit vereinheitlichen. Die Primarschule dauert nun sechs Jahre und die Sekundarschule drei Jahre. Darauf folgen die Berufsbildung respektive das Gymnasium. Zur Betreuung der Schülerinnen und Schüler ausserhalb der Unterrichtszeit werden entsprechende Tagesstrukturen geschaffen. Bis 2022 wird daher die Schulstruktur schrittweise vereinheitlicht.

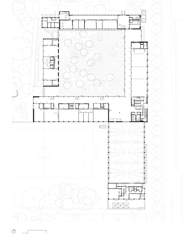
Zur Umsetzung dieser Ziele wird in Basel an rund 50 Standorten gebaut, und es werden über 790 Millionen Franken investiert. Der Neubau des Sekundarschulhauses Sandgruben bietet Raum für 27 Klassen und ist damit das grösste Schulhaus im Kanton seit über 40 Jahren. Das Grundstück liegt in der Nähe des Badischen Bahnhofs unmittelbar an der Osttangente, einem unwirtlichen Autobahnstück, das den grössten Teil des Transitverkehrs auf der Nord-Süd-Achse übernimmt. 

Ateliers und Wohnzimmer

Das Projekt von Stücheli Architekten ist das Ergebnis eines im Jahr 2012 durchgeführten Projektwettbewerbs im selektiven Verfahren. In der Folge musste es überarbeitet werden, um die Kostenvorgabe von 60 Millionen Franken einhalten zu können. Auf die ursprünglich geplante Fünffachturnhalle wurde letztlich zugunsten einer Drei­fach­turnhalle verzichtet. Verschiedene Räume konnten mit mehreren Nutzungen belegt werden. Am augenfälligsten ist dies im Raumkon­tinuum von Aula, Mensa und Tages­struktur, das je nach Bedarf flexibel unterteilt werden kann.

Die Anlage besteht aus drei neuen Gebäudeflügeln, die die Spezialräume, die Lernateliers und die Turnhalle aufnehmen und alle an eine zentrale Halle andocken. Ein Mosaikteppich aus handgefertigten Terrakottafliesen zeichnet diesen Ort der Begegnung als «Wohnzimmer» der Schule aus. Die Installation der beiden Künstlerinnen Claudia und Julia Müller soll gut beheizt auch im Winter zum Verweilen animieren. Im Erdgeschoss sind die Gemeinschaftsräume und die Verwaltung der Schule untergebracht. Alle Unterrichtsräume liegen in den Obergeschossen.

Der grosszügige, vom Landschaftsarchitekturbüro Bryum gestaltete Pausenhof wirkt noch etwas karg. Der einzelne, zur Eröffnung im August von Regierungsrat Hans-Peter Wessels gepflanzte Baum soll bald mit einem Dutzend neuer Bäume und zusätzlichem Mobiliar für mehr Aufenthaltsqualität sorgen. Der Dop­pelkindergarten im Westen grenzt das Areal gegen aussen ab. Entlang der Autobahn schliesst ein viergeschossiger Trakt mit Spezialräumen an das bestehende Schulhaus an. Die Erschliessung mit einer Kaskadentreppe ist zur lärmigen Autobahn hin ausgerichtet, während sich die Unterrichtsräume auf den ruhigen Hof wenden. Anschliessend folgt die ins Erdreich eingesenkte Dreifachturnhalle, die von der Halle einsehbar ist. 

Senkrecht zur Autobahn sind die Lernlandschaften angeordnet. Sie werden durch einzelne Treppenhäuser erschlossen. Zu jedem Lernatelier für 60 Schüler gehören ein Inputraum für Frontalunterricht und ein Gruppenraum. Der Unterricht ist alters- und niveauübergreifend in drei Leistungszügen über drei Jahrgänge organisiert. Die Durchmischung soll es den Schülern vereinfachen, eine Klasse zu überspringen oder in ein besseres Niveau zu wechseln. Der Klassenverband löst sich auf, der Frontalunterricht verliert weitgehend an Bedeutung. Im Vordergrund stehen selbstständiges Arbeiten, Teamarbeit und die Aneignung von Fachwissen. 

Neues Lernen, neue Räume

Diese pädagogischen Schwerpunkte der sogenannten «Erfahrungsschule» haben zu einem neuen Schulhaustyp geführt, der eher an die flexible Arbeitsumgebung eines Grossraumbüros erinnert denn an das vom Frontalunterricht geprägte, auf die Wandtafel ausgerichtete Klassenzimmer. Die neue Schule soll damit auch bewusst näher an die Berufswelt rücken. Sie fordert von Schülern und Lehrpersonen mehr Flexibilität und bietet dafür auch mehr Möglichkeiten, die Lernziele mit einem persönlichen Fahrplan zu erreichen. 

Auch das Tragwerk ist ganz auf eine flexible Raumunterteilung ausgerichtet. So können die Lernlandschaften später neu unterteilt oder grossräumig zusammengelegt werden. Die nüchterne Materialisierung in Sichtbeton kontrastiert mit kräftigen Farben, die einzelne Bereiche gezielt auszeichnen und die Orientierung erleichtern. Zusammen mit der klaren Grunddisposition bildet sie einen ruhigen Rahmen für ein dynamisches Schulexperiment, das befreit von alten Zwängen die Schülerinnen und Schüler indivi­duell fordert und fördert.

Am Bau Beteiligte


Bauherrschaft
Bau- und Umweltschutzdirektion Basel-Stadt

Gesamtprojektleitung
Andreas Akeret Baumanagement GmbH

Architektur
Stücheli Architekten

Landschaftsarchitektur
Bryum, Basel

Tragwerksplanung
APT Ingenieure GmbH

Fassadenplanung
Bardak Planungsbüro

HLKS-Planung
Beag Engineering AG

Bauphysik
EK Energiekonzepte AG

Brandschutz
A + F Brandschutz

Signaletik
Agnes Laube, Zürich

Kunst
Claudia & Julia Müller, Basel

Verwandte Beiträge