Der Boss baut das Haus

Privater Wiederaufbau

Einige Bauten in Haiti haben das Erdbeben von 2010 überstanden. Aus diesem Befund und nach einfachen Prinzipien hat der Verein CRAterre ein erdbebensicheres Bausystem entwickelt und zertifizieren lassen.

Der von internationalen Hilfswerken in Entwicklungsländern praktizierte Hausbau macht die Menschen abhängig von Regeln, die sie nicht einhalten können. Der Wiederaufbau nach dem Erdbeben im Januar 2010 in Haiti ist hier keine Ausnahme. Durch kontextfremde, exogene Baumodelle verlieren die Menschen den Bezug zu ihrer eigenen Baukultur. Erfahrungsgemäss können aber ­unter Einbezug von lokalen Baukulturen Wohnbauprogramme wirksamer umgesetzt ­werden. Die Menschen vor Ort werden dabei als Wissensträger und beim Bau in die Aufgabenstellung miteinbezogen, was die sozialen Bindungen und die Menschenwürde stärkt.

Solche Ansätze sind anlässlich internationaler Konferenzen und ergänzt mit Erfahrungen vor Ort schrittweise entwickelt worden. Die NGOs Misereor, ­Caritas Frankreich und Caritas Bangladesch, IFRC, CRAterre (Abkürzungen vgl. Kasten) und die Fon­da­tion ­Abbé-Pierre arbeiten in dieser Art und Weise.

Erdbebensicher und lokal

Im Rahmen des Forschungsprojekts ReparH führten CRAterre und die Architekturhochschule ENSAG eine Bestandsaufnahme der haitianischen Bauweise durch. Sie kamen zum Schluss, dass die vorgefundenen Trag­strukturen Erdbeben standhalten, wenn einige konstruktive Prinzipien angepasst und konsequent umgesetzt werden. Die angewandten Systeme wurden vor dem Bau und während des Baus mittels Rütteltischversuchen und statischer Modelle auf Trag­sicherheit und Schutzfunktion geprüft.

Der häufigste Bautyp ist die Holzständerbauweise mit einer Mauerfüllung. In einigen Regionen wird unter dem Holzständer eine sockelartige Steinmauer gebaut. Die traditionellen Füllungen, die sich im Erdbe­benfall bewährt haben, sind Rutengeflechte aus mit Sisalfasern verstärkten Lehmziegeln oder das «ti-woch» genannte Mauerwerk aus kleinen Steinen. Wichtig ist, dass die Tragstruktur mit vertikal und horizontal ausgefüllten Verstrebungen verstärkt wird. Bei Bauten mit einer steinernen Tragstruktur müssen vor allem die Ecksteine fachgerecht gesetzt werden. Horizontale in die Steinmauer integrierte Holzbeplankungen verhindern zudem, dass sich Risse infolge eines Erdbebens durch den ganzen Verband fortsetzen. Um die Duktilität der Bauten zu erhöhen, sollten traditionelle Steinmauern durch Holzrahmen eingefasst werden.

Auf schwere Fertigbaustoffe wird wenn möglich verzichtet. Insbesondere Zement ist teuer, und in den entlegenen Gebieten sind auch die Transportmöglichkeiten eingeschränkt. Wird beim Bau Wasser verbraucht, muss es im Haushalt wieder eingespart werden. CRAterre setzt sich daher zum Ziel, verstärkt lokal produziertes Bauholz zu verwenden. Leider sind vielerorts die Voraussetzungen noch nicht erfüllt. Es gibt diverse Programme zur Aufforstung der abgeholzten Gebiete. Gegen Termiten und Pilzbefall wird das Eintauchen des Bauholzes in flüssiges Borsalz vom CIRAD weiterentwickelt und unterrichtet.

Wiederaufbau in Familienteams

Aufgrund dieser Erkenntnisse ist im April 2010 ein erstes modulares Haus in Stadtnähe als Demonstrationsobjekt für die lokale Bauweise entstanden. Anlässlich eines Programms der EPPMPH durften 172 Familien aus der Landbevölkerung von November 2010 bis Juli 2012 einen Teil ihrer Häuser wieder aufbauen. Wer an dieser subventionierten Massnahme teilnehmen wollte, musste sich zu Gegenleistungen bereit erklären: Die Fami­lien verpflichteten sich, unter der Aufsicht eines Programmmitglieds und in Teams aus sechs Familien zusammenzuarbeiten, um Synergieeffekte zu aktivieren. Im Voraus stellte jede Familie an ihrer Baustelle Wasser, Steine, Erde, Sand, Palmholzlatten und Fasern bereit. Ein Zimmermann und ein Maurer aus der Umgebung leiteten die Bauarbeiten und führten die für die Erdbebensicherheit relevanten Leistungen aus. Die Bauern füllten selber die Wände mit Geflecht oder Erde auf. Fünf zu Polieren ausgebildete Handwerker überprüften die Bauqualität auf allen Baustellen und bildeten gleichzeitig neue Handwerker unter der Bevölkerung aus. Die so gebildeten Baugemeinschaften stellten ein Haus innerhalb von drei Wochen fertig. Während ihrer technischen Ausbildung und des praktischen Engagements konnten die beteiligten Familien beim Bau viel profitieren. Sie lernten die Bauabläufe kennen und waren in der Lage, auf Schwachpunkte bei den eingesetzten ­Arbeits­kräften zu reagieren.

In der zweiten Phase des Programms, von Januar 2013 bis Dezember 2014, bekamen 232 Familien die Möglichkeit, gemeinsam ihre Wohnsituation erbebengerecht zu verbessern. Die Mehrheit (79%) erstellte einen zertifizierten Neubau, andere (16%) setzten ihr Haus instand, und wenige (5%) investierten stattdessen in Zisternen und Einrichtungen, um das Regenwasser aufzufangen.

Ein Standard: das Modell «Ti’Kay»

Zusammen mit dem gemeinnützigen französischen ­Unternehmerverband Entrepreneurs du Monde ent­wickelte CRAterre den Wohnbautyp «Ti’Kay». Im Mai 2012 genehmigte das Amt für Bauwesen MTPTC den Bau­standard mit Zustimmung der UNDP. Alle von Entrepreneurs du Monde erbauten Häuser hielten im August 2012 dem Tropensturm «Isaac» und im Oktober 2012 dem Hurrican «Sandy» stand.

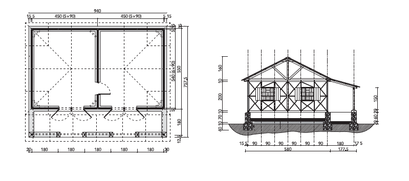
Der Standard basiert auf traditionellen haitianischen Bauweisen wie den «Kay Peyi» genannten Landhäusern oder den Stadthäusern im «Gingerbread»-Stil. Auf dem Land bewohnt in der Regel eine Familie ein Haus, das sie über Jahre hinweg in Etappen erweitert. Heiratet ein Paar, baut es mithilfe eines «Boss» genannten Baumeisters sein eigenes Heim. Bauernfamilien vergrössern ihre Häuser im Lauf der Zeit, sobald sie die Mittel dazu haben. Der Aufbau des Grundrisses entspricht einem Vielfachen des Grundmasses, das zwischen 75 und 90 cm beträgt, je nach den Gewohnheiten des «Bosses» und den Längen der verfügbaren Hölzer. Dieses Prinzip ermöglicht unterschiedliche technische und räumliche Kompositionen, die auf den sozialen Kontext im ländlichen Raum reagieren.

Das Basismodul des «Ti’Kay»-Hauses hat eine Nutzfläche von 22 m2, sprich 6 × 5 Felder mit Grundmass 85 cm. Neben einem Hauptraum von 15 m2 umfasst sie eine Veranda. Die Module können auch zusammengesetzt werden und auf spezifische Bedürfnisse eingehen.

Bauen lokal verankert

Rund 3000 Wohnungen konnten anlässlich der Pro­jekte, bei denen CRAterre involviert war, gebaut oder ­saniert werden. Durch die Streuung des technischen Wissens haben sich auch Bauten verbessert, an denen CRAterre nicht direkt beteiligt war. So sind schätzungsweise bereits über 1000 zusätzliche Basiswohneinheiten entstanden. Diese Verbreitung kam insbesondere durch ein Ausbildungsprogramm mit UN-Habitat zustande. Bisher erhielten über 50 Hand­werker ein Zertifikat. Nachdem sie die Schulung erfolgreich abgesschlossen haben, unterstützt Entrepreneurs du Monde sie bei der Gründung und Führung eines eigenen Unternehmens. 

Auch die Zertifizierung des Systems durch das MTPTC war ein entscheidender Schritt. Die Baukosten der lancierten Basismodelle halten sich mit rund 150 US-­Dollar/m2 beim Neubau und mit 40 bis 60 Dollar/m2 für die Instandsetzung im Rahmen. Ein weiterer Vorteil sind die positiven Auswirkungen auf die lokale Wirtschaft: Neben dem dringend benötigten, neu entstandenen Wohnraum wird ein Beitrag zur Armutsbekämpfung geleistet. Die Investitionen zahlen sich in der Gemeinschaft schnell aus, da ein Grossteil davon direkt in die lokalen Wirtschaftskreisläufe einfliesst. 

Abkürzungen
 

ENSAG: Architekturhochschule «Ecole Nationale Supérieure d‘Architecture de Grenoble».

CRAterre: Verband und ein Forschungslabor der ­ENSAG «Centre international de la construction en terre».

IFRK: Internationale Föderation der Rotkreuz- und ­Rothalbmondgesellschaften.

CIRAD: Forschungszentrum «Centre de coopération internationale en recherche agronomique pour le développement».

EPPMPH: Bauernunterstützungsprogramm «Encadrement des petits paysans des mornes et des plaines de Haïti».

UNDP: Entwicklungsprogramm der Vereinten Nationen «United Nations Development Programme».

UN-Habitat: Programm der Vereinten Nationen für menschliche Siedlungen «United Nations Human Settlements Programme».

MTPTC: Haitis Amt für Bauwesen «Ministère des Travaux Publics, Transports et Communications».

Verwandte Beiträge