Ge­baut, ab­ge­baut, neu ge­baut

Die Niederlande verordnen die Kreislaufwirtschaft von staatlicher Seite. Bis 2050 muss die Wirtschaft komplett mit wiederverwertbaren Rohstoffen funktionieren. Auch die Bauwirtschaft muss ihren Teil zum Erreichen des Ziels beitragen. In steeldoc 02/19 wurden zwei Projekte des Delfter Architekturbüros cepezed vorgestellt, die ­beispielhaft für diese Praxis stehen.

Publikationsdatum
26-03-2020

Das staatliche Programm «Nederland Circulair» strebt bis 2050 eine Wirtschaft an, die komplett mit wiederverwertbaren Rohstoffen funktioniert. Als Zwischenetappe sollen bis 2030 nur noch 50 % neue Rohstoffe verwendet werden. Die Regierung investiert viel Geld in die Forschung, um die Abfalltrennung so zu verbessern, dass der Verlust von Rohstoffen in der Abfalldeponie bestmöglich vermieden wird.

Gleichzeitig sollen Innovationen für einen besseren Zyklus von Produkten sorgen. Vor diesem politischen Hintergrund ist auch die zirkuläre Wirtschaft in der Baubranche ein grosses Thema, und die Erstellung von temporären Strukturen blüht. Zwei Projekte des Delfter Architekturbüros cepezed stehen beispielhaft für diese Praxis: das «Temporary Courthouse» und das «Green House».

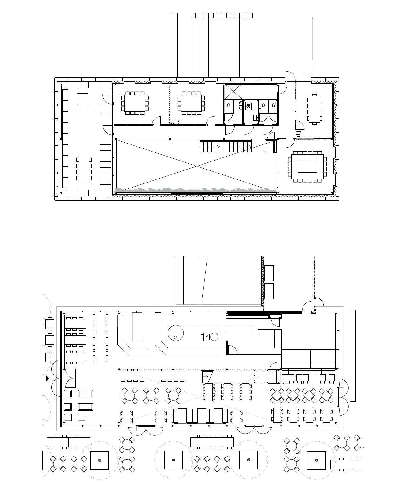
Das «Green House» in Utrecht (2018) – Ein temporärer Gemüsegarten

2014 wurde cepezed mit der Planung und dem Bau eines modernen Regierungsgebäudes am Standort der ehemaligen Knoopkazerne an der Croeselaan in Utrecht beauftragt. Zusätzlich sollten die Architekten eine Lösung für den vakanten Raum zwischen der Knoopkazerne und dem Hauptquartier der Rabobank vorschlagen. Weil dieser Platz im Rahmen der geplanten Revitalisierung des Stadtzentrums von Utrecht in 15 Jahren eine neue Form erhalten wird, wurde eine temporäre Interpretation gewünscht, die zu einer Belebung des Platzes führen würde. 

Das entstandene Projekt basiert auf dem Gedanken der Zirkularität. Das Green House mit Restaurant, eigenem Gemüsegarten und Meetingräumen wurde 2018 eröffnet. Das Gebäude inklusive der Fundation aus wiederverwendeten, vorfabrizierten Betonelementen ist komplett demontierbar und kann in 15 Jahren anderswo wieder aufgebaut werden. Der zweistöckige Pavillon wurde als Bausatz mit einem demontierbaren Stahlrahmen aus galvanisierten Stahlprofilen entworfen. Die Dimensionen wurden den Rauchglaspaneelen der Fassade der früheren Knoopkazerne angepasst, die für die äussere Haut des Erdgeschosses sowie für das Gewächshaus des Pavillons wiederverwendet wurden.

Für die geschlossenen Fassadenbereiche im Obergeschoss wurden vorgefertigte, rezyklierbare und FCKW-freie vorgefertigte Holzelemente verwendet, ansonsten ist die Fassade transparent. Der Fussboden im Erdgeschoss besteht aus Pflasterklinkern von einem alten Kai, die auf einem verdichteten Sandbett mit Fussbodenheizung verlegt wurden. Die Stahlkonstruktion besteht aus einem quadratischen dreidimensionalen Gitter mit diagonalen Verstrebungen zur Aufnahme der horizontalen Kräfte. Das Fundament aus Betonplatten und -blöcken überträgt die Kräfte der Stahlstützen in den Boden.

Für eine bessere Akustik im Restaurantbereich wurden die Deckenelemente perforiert und mit einer Isolation gefüllt. Auch die Innendecke im OG hat cepezed mit einem perforierten Stahlblech verkleidet und isoliert. Im Restaurant wird mit Gemüse und Kräutern gekocht, die im hauseigenen, 80 m2 grossen «vertikalen Gewächshaus» gepflanzt und geerntet werden. Zum Nachhaltigkeitskonzept gehört auch eine Solaranlage auf dem Dach. Der grösste Teil des Innenausbaus wurde mittels Urban Mining gefunden. Für die Möbel im Gebäude wurden ausschliesslich rezyklierte Materialien verwendet.

Das Fazit der Architekten

Der Entwurf eines demontierbaren Gebäudes ist per se nicht schwierig. Eine Herausforderung stellt derMangel an verfügbaren Baumaterialien dar. Eine gut funktionierende Kreislaufwirtschaft mit Baumaterialien ist noch nicht gewährleistet. Die Struktur des Gebäudes, in diesem Fall der Stahlrahmen, hat grosses Wiederverwendungspotenzial. Für Fassadenelemente ist dies insbesondere wegen technologischer Innovation und modifizierter Verordnungen schwieriger. Bauen mit wiederverwendeten Materialien ist teuer, weil es arbeitsintensiv ist. Neue Produkte aus einem optimierten Produktionsprozess zu verwenden erscheint dagegen günstiger.

Bauherrschaft
R Creators (NL)

Architektur
cepezed (NL)

Ingenieure
Coster Design (NL)

Bauzeit
2016 – 2018

Das «Temporary Courthouse» – Ein Transportables Gerichtsgebäude

Beim temporären Gerichtsgebäude in Amsterdam handelt es sich um einen Ersatzneubau, der während fünf Jahren als temporäre Lösung für die Amsterdamer Gerichtsbarkeit dient, während der Abbruch des alten und der Neubau des permanenten Bezirksgerichtsgebäudes stattfinden sollen. Das Interimsgebäude G wurde auf einer Geschossfläche von ungefähr 5400 m2 am Parnassusweg erstellt, bildet zusammen mit den bereits existierenden Türmen das temporäre Amsterdamer Gerichtsgebäude und funktioniert auch als Haupteingang in den Bezirksgerichtskomplex. 

Das Temporary Courthouse entstand mit der Auflage, beim Bau Abfälle zu vermeiden – die Stadt Amsterdam verzeichnet seit Jahren ein starkes Bevölkerungswachstum, das neben wachsender Bebauungsdichte, Verkehrsaufkommen und Parkplatzmangel auch Probleme bei der Abfallentsorgung mit sich bringt. Zudem war eine spätere anderweitige Nutzungsmöglichkeit ausdrücklich Teil des Auftrags – die Struktur soll an einem anderen Standort komplett wiederverwendbar sein. Der zeitlich limitierte Charakter des Gebäudes durfte die Qualität, Funktionalität, Akustik, den Komfort und die Sicherheit nicht negativ beeinflussen, daher wurde eine möglichst hohe Qualität der Bauteile und -materialien erwartet.

Auch optisch wurden die gleichen Anforderungen gestellt wie an ein permanentes Gebäude. Um das Gebäude so flexibel und zirkulär wie möglich zu gestalten, wurde es als Bauteilsatz erstellt, der einfach auf- und wieder abgebaut werden kann. Er besteht aus einer anpassbaren Konstruktion und einer äusseren Haut aus vorfabrizierten und demontierbaren Elementen. Für die Hohldeckenplatten wurde ein spezielles Montagesystem entwickelt, und die Gelenke der Stahlkonstruktion wurden im Hinblick auf eine einfache Demontage und Wiederverwendung entworfen. Alle Verbindungen sind lösbar gestaltet, und Materialkombinationen wurden in trennbaren Schichten eingebaut, die aufgrund ihrer unterschiedlichen Lebensdauer individuell zugänglich und ersetzbar sind. Die Fundamentpfähle der vorhandenen Türme mussten speziell berücksichtigt und um neue Gründungspfähle ergänzt werden.

Die Bodenfelder der Stahlhauptkonstruktion haben eine Tragweite von 10,8 m. Die Nutzlast beträgt 3,5 kN/m2, sodass auch andere zukünftige Nutzungen möglich sind. Die kostengünstigen Hohldeckenplatten wurden vollständig in die flachen Stahlprofile eingepasst und ermöglichen eine einfache Verlegung von Rohrleitungen auch bei zukünftigen Anwendungen. Die Zugverbindung zwischen Hohldeckenplatten und Balken wurde aufseiten der Platte mit Ankern und aufseiten des Profils mit einer Schraubverbindung ausgebildet. Die gesamte Stahlkonstruktion wurde mit einer Beschichtung versehen und ist während 60 Minuten feuerbeständig. Auf jeder Ebene, inklusive der Struktur als Ganzes, wurde beim Entwurf konsequent auf «Reduce», «Reuse» und «Recycle» geachtet.

Fazit der Architekten

Die Verwendung erneuerbarer Ressourcen, die Schaffung von Bedingungen für eine lange Lebensdauer derselben und die Minimierung der Auswirkungen auf die Umwelt sind wertvolle Leitlinien bei dieser Bauweise. Idealerweise wird schon beim Entwurf und Bau an den nächsten Lebenszyklus der Gebäudeteile gedacht. Förderlich für die zirkuläre Bauwirtschaft wären Regulationen hinsichtlich Möglichkeiten bei der Demontage, die idealerweise obligatorisch werden sollte. Über Informationsdienste könnten gebrauchten Baumaterialien leichter gefunden werden, sodass diese für Neubauten zur Verfügung stehen.

Bauherrschaft
RVB (Central Government Real Estate Agency; NL)

Architektur
cepezed (NL)

Ingenieure
IMd Raadgevende Ingenieurs (NL)

Baujahr
2016

Dieser Artikel mit weiteren Bildern und Plänen findet sich in steeldoc 02/19.

Verwandte Beiträge