Mehr als Er­schlies­sung­sflä­chen

Neubau Kreisschule Untergäu in Hägendorf SO, offener Projektwettbewerb

Schulhäuser müssen heute nicht nur funktional und flexibel sein, sondern sollen auch immer kompakter werden. Im Wettbewerb für den Neubau der Kreisschule Untergäu in Hägendorf SO zeigt sich, wie sich eine kompakte Bauweise mit ausreichend Fläche und Volumen verbinden lässt.

Data di pubblicazione
20-04-2023

Viel zu reden gab das in diesem Jahr fertiggestellte Schulhaus Wallrüti in Winterthur: Schneider Studer Primas Architekten verlegten seine Erschliessung konsequent nach aussen, was zu einem extrem kompakten Gebäude ohne Korri­dore und innere Treppenhäuser führte. Dass die Schrumpfung der ­Geschossflächen und Gebäudevolumen Grenzen hat, zeigte sich auch im Wettbewerb für den Neubau der Kreisschule Untergäu.

Die Kreisschule Untergäu (KSU) ist das Oberstufenzentrum der Gemeinden Rickenbach, Hägendorf, Kappel und Gunzgen im Kanton Solothurn. Sie versteht sich als Zweckverband, der Kinder und Eltern eng mit der Schule und den Behörden vernetzt. Dabei spielt die Schulsozialarbeit eine Schlüsselrolle. Zukünftig sind drei Jahrgänge zu je sieben Klassen vorgesehen. Für die insgesamt 21 Klassenzimmer mit entsprechenden Nebenräumen soll auf dem Areal Breite in Hägendorf ein Neubau erstellt werden.

Betrachten und bearbeiten

Der Wettbewerbsperimeter gliedert sich in einen Betrachtungs- und einen Bearbeitungsperimeter. Zum Betrachtungsperimeter gehören das Areal der Raiffeisen Arena und der angrenzende Strassenraum, insbesondere die Gäustrasse und die Höchmatt, sowie der Uferbereich des Flusses Dünnern im Süden. Der Bearbeitungsperimeter liegt im Süden des Betrachtungsperimeters. Dort sind der Neubau der Kreisschule Untergäu und ein zusätzlicher Baukörper mit Reserveflächen vorgesehen. Die Dreifachturnhalle der Raiff­eisen Arena und ihre Aussenanlagen können wie bisher für den Sport­unterricht genutzt werden.

Für den Unterricht sollen Themen wie Lernen im eigenen Tempo, Peerlernen, Mitbestimmungsmöglichkeiten für die Schülerinnen und Schüler sowie aufbauende Anforderungsniveaus in Zukunft vermehrt berücksichtigt werden. Das Raumangebot soll sowohl Einzel- und Gruppenarbeit als auch die Arbeit im Klassenverband ermöglichen.

Als Beitrag zur Nachhaltigkeit wird ein «Low-Tech-Ansatz» für die Haustechnik angestrebt. Die Nutzenden sollen für die Fensterlüftung, Nachtauskühlung und den Son­nenschutz selbst Verantwortung übernehmen. Von den Teilnehmenden wurden auch Aussagen zur Systemtrennung und zur Zugänglichkeit der technischen Installa­tionen verlangt.

Um Lösungsansätze für diese Aufgabenstellung zu erhalten, hat der Zweckverband Kreisschule Untergäu einen Projektwettbewerb im offenen Verfahren ausgeschrieben. Die Ordnung für Wettbewerbe SIA 142 war verbindlich. Teilnah­meberechtigt waren Teams mit den Kompetenzen Architektur, Landschaftsarchitektur, Tragwerksplanung und Haustechnikplanung. Es wurden nur elf Beiträge eingereicht, die das Preisgericht alle zur Beurteilung und Preiserteilung zuliess. Die Jury empfiehlt der Auftraggeberin einstimmig das Projekt «Juki» von ern+ heinzl Architekten zur Weiterbearbeitung.

Kompakt: «Juki»

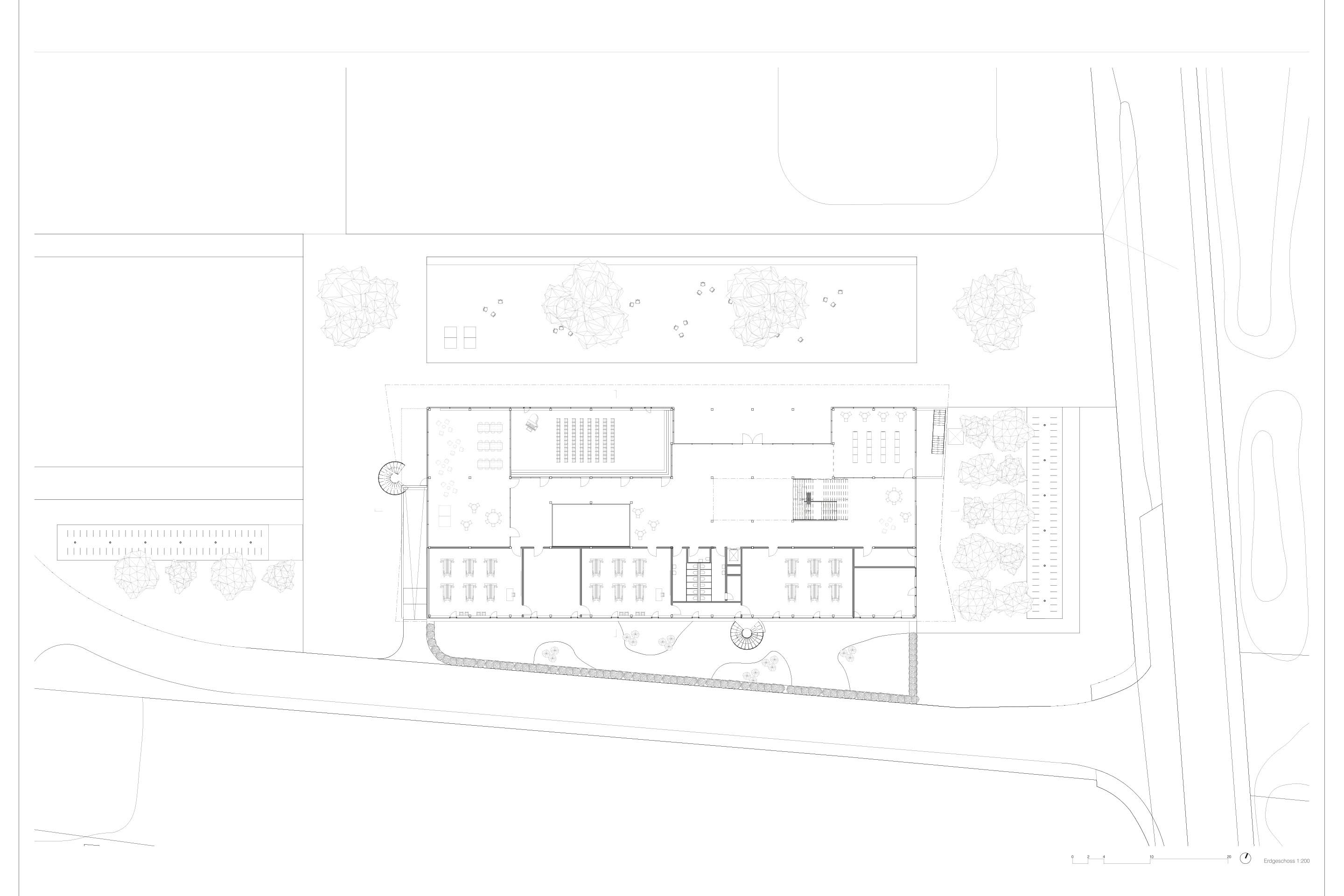
Das kompakte, viergeschossige Schulhaus des Entwurfs «Juki» ist nahe der Höchmatt und dem Ufer der Dünnern im Süden angeordnet. Der Hauptzugang führt von der Gäustrasse im Osten über den grosszügigen Pausenplatz zum gedeckten Eingangsbereich. Südlich befinden sich die überdachten Veloabstellplätze und im Norden ist eine chaussierte Fläche mit einigen Baumgruppen angelegt. Der Angelpunkt der Schule ist das zentrale Atrium mit einer breiten Treppenanlage, die durch zwei Fluchttreppenhäuser ergänzt wird.

Im Erdgeschoss liegen die leicht abgesenkte Aula, die Mediothek, die Hauswirtschaftsräume und ein Mehrzweck- und Aufenthaltsraum. In den drei Obergeschossen sind die Klassenzimmer mit Ost-West-Ausrichtung unter­ge­bracht. Die Verwaltung, der Bereich für das Lehrpersonal und die Unterrichtsräume für die Naturwissenschaften sind ebenfalls auf die Obergeschosse verteilt. Die Unterrichtsräume lassen sich mit Vorhängen in mehrere Zonen teilen.

Im Erdgeschoss bilden raum­hohe Verglasungen die Fassade, in den Obergeschossen sind umlaufende Bandfenster vorgesehen. Kräf­tige Vordachelemente verschatten die Fassaden und schützen sie vor der Witterung. Die Nachtauskühlung soll über die Schiebefenster erfolgen. Die Tragstruktur besteht aus Betonstützen, Holz­beton­ver­bund­decken und massiven Kernen zur Aussteifung. Das Stützenraster von 5.5 m × 11 m gewährleistet eine grosse Flexibilität in der räumlichen Unter­teilung.

Generös: «Das fliegende Klassenzimmer»

Der mit dem zweiten Preis ausgezeichnete Beitrag «Das fliegende Klassenzimmer» des Teams von Werk­netz Architektur setzt ähnlich wie der Gewinner ein Volumen an den südlichen Rand des Wettbewerbsperimeters. Das ebenfalls viergeschossige Gebäude ist aber länglicher und lässt auf der Nordseite zur Raiffeisen Arena hin einen breiteren Vorbereich, der als Pausenplatz den Hauptzugang mit Anbindung an die Gäustrasse bildet.

In der breiten Mittelzone der dreischiffigen Anlage befindet sich eine grosszügige Treppe, die durch zwei aussenliegende Fluchttrep­penhäuser ergänzt wird. Sie kann teilweise als Aufenthalts- und Arbeitsraum genutzt werden. Im EG befinden sich die öffentlichen Räume und die lärmintensiven Werk­räume als Puffer gegen die Höchmatt. Die drei Klassenjahrgänge sind in jeweils einem Obergeschoss untergebracht.

Die Lochfassaden mit den grosszügigen Fenstern sorgen für eine gute natürliche Belichtung. Nicht überzeugen kann das Tragwerk aus Holz mit vorfabrizierten Deckenelementen aus Beton hinsichtlich Tragfähigkeit und Schallschutz. Wenig angetan zeigt sich die Jury auch von der nüchternen Umgebungsgestaltung und dem durch das Schulgebäude verschatteten Pausenplatz im Norden.

Minimal: «Spielwiese»

Ebenfalls mit dem zweiten Preis ex aequo ausgezeichnet wurde der Entwurf «Spielwiese» von Dieter Gysin Architekt. Er sieht drei wesentliche Bauten vor: einen fünfgeschossigen Hochbau und eine eingeschossige Werkhalle im Westen sowie eine 150 m lange Tribüne im Norden als Übergang zu den Aussensportanlagen der Raiff­eisen Arena. Die Velos sind in einem separaten Gebäude im Südosten des Perimeters untergebracht. Die Umgebungsgestaltung ist abwechslungsreich: Hecken im Süden, eine hügelige Baumwiese im Osten und eine grosse Spielwiese im Westen.

Das zentrale Element des Hochbaus ist die Treppenanlage mit dem breiten Treppenauge. Ergänzt wird die innere Treppe durch die beiden Fluchttreppenhäuser in den Loggien. Im Erdgeschoss befinden sich die Aula und die Schulküche, im Mezzaningeschoss die Bibliothek, Verwaltung sowie Räume für die Hauswirtschaft und Lehrper­sonen. In den Obergeschossen sind die Klassenzimmer untergebracht. Sämtliche Werkstätten und Materiallager befinden sich in der eingeschossigen, offenen Halle auf der Westseite.

Die fünfgeschossige Anlage strapaziert die baurechtlichen Vorgaben, die nur vier Geschosse zulassen. Zudem führt die Einführung des Mezzaningeschosses zu minimalen Raumhöhen von 2.40 m im doppelgeschossigen Erdgeschoss. Von den Beiträgen der engeren Wahl weist dieses Projekt die kleinste Geschossfläche und das geringste Gebäudevolumen auf, was durch eine extreme Minimierung der Erschliessungsflächen erkauft wird.

Erschliessungsflächen sind Arbeitsräume

Der Entwurf «Spielwiese» weist zwar inno­vative Ansätze auf, reduziert aber die Erschliessungsflächen und Raumhöhen drastisch, um bei den Flächen und Volumen mit niedrigen Kennwerten zu punkten. Das ex aequo mit dem zweiten Preis ausgezeichnete Projekt «Das fliegende Klassenzimmer» weist eine generöse Mittelzone aus, die auch als Aufenthalts- und Arbeitsbereich genutzt werden kann, schwächelt aber bei der kargen Umgebungsgestaltung und dem unausgegorenen Tragwerk. Der Beitrag «Juki», den die Jury zur Weiterbearbeitung empfohlen hat, ist kompakt und verfügt im Vergleich zur Konkurrenz trotzdem über mehr Fläche und Volumen. Er überzeugt die Jury mit einer effizienten Organisation und einem grossen Potenzial.

-> Weitere Pläne und Bilder auf competitions.espazium.ch

Neubau Kreisschule Untergäu in Hägendorf SO
Einstufiger Projektwettbewerb im offenen Verfahren

 

Auszeichnungen
1. Rang, 1. Preis: «Juki»
ern+ heinzl Architekten, Solothurn
2. Rang, 2. Preis ex aequo: «Das fliegende Klassenzimmer»
Philipp Wieting – Werknetz Architektur, Zürich
2. Rang, 2. Preis ex aequo: «Spielwiese»
Dieter Gysin Architekt, Basel
4. Rang, 4. Preis: «Moulin du soleil»
werk1 Architekten und Planer, Olten

 

Fachjury
Jutta Strasser, Architektin, Bern
Ulrike Schröer, Architektin, Basel
Hansruedi Stirnemann, Architekt, Freienwil
Christian Tschumi, Landschaftsarchitekt, Pfaffhausen
Lukas Mathis, Architekt, Bern (Ersatz)

 

Sachjury
Patrick Ritter, Präsident Zweckverband Kreisschule Untergäu
Uli Ungethüm, Verwaltungsleiter Gemeinde Hägendorf
Steffen Naydowski, Schulleiter Zweckverband Kreisschule Untergäu
Walter Müller, Bereichsleiter Bau Gemeinde Hägendorf (Ersatz)

Magazine

Articoli correlati