Un lieu char­gé d’hi­stoi­re(s)

La réhabilitation en espace de vie enfantine à la route de Frontenex par Lacroix Chessex s’inscrit parfaitement dans la démarche du bureau genevois: un soin particulier à la conception et aux détails, une hypercontextualisation et une «liberté stylistique».

Data di pubblicazione
20-09-2022
Cedric van der Poel
Codirecteur d'espazium.ch, espace numérique des éditions pour la culture du bâti

Il y a dix ans, je me suis rendu à Paris pour écrire un article sur une nouvelle aire de jeux de Belleville1, aujourd’hui malheureusement démantelée, réalisée par l’agence de paysage Base. J’avais alors été impressionné et séduit par la capacité des auteurs à faire de la topographie peu propice à une aire de jeux – une pente de 30° et un dénivelé de douze mètres – la matrice du projet. Les paysagistes n’ont pas employé des modules préfabriqués, utilisés presque systématiquement sur des terrains plats et abstraits, mais ont réalisé du sur-mesure, offrant aux enfants et à leurs parents une diversité d’expériences, de points de vue et de paysages.

La réanimation en crèche du bâtiment situé au 54, route de Frontenex à Genève, réalisée par le bureau Lacroix Chessex relève, de mon point de vue, de la même logique projectuelle et d’une même approche pédagogique.

L’architecture est une histoire de timing

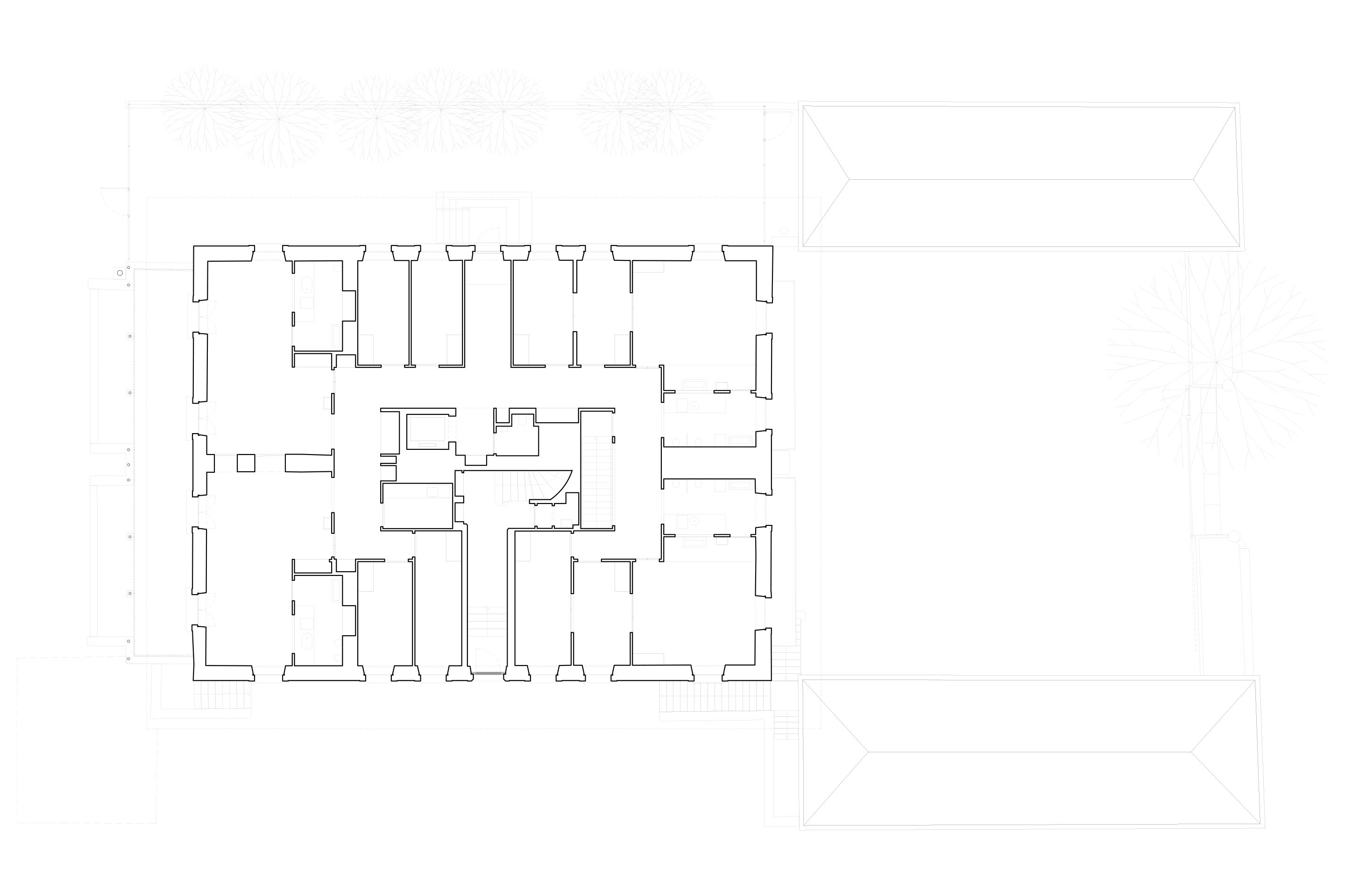
Le bâtiment est situé à quelques pas du nouveau quartier développé autour de la gare Genève-Eaux-Vives. Il fait partie d’un pan de tissu ancien côté sud de la route de Frontenex, caractérisé par la diversité du bâti, la relative modestie des gabarits et la présence de jardins. Ancienne entreprise de vermouth construite en 1868 par l’ingénieur et architecte Philippe-Ami Goetz, la villa répond à la logique commerciale d’une manufacture de liqueur: un corps principal et deux ailes plus basses, placées de part et d’autre d’une cour rectangulaire. Le rez-de-chaussée du bâtiment principal – deux grands espaces dotés de voûtes croisées en pierre – et les annexes étaient consacrés à la distillerie, alors que les trois étages supérieurs du bâtiment principal accueillaient les bureaux et des logements. Acquis en 1951 par la Ville de Genève, le bâtiment n’a pas subi de lourdes transformations, mais les affres dommageables des nombreux changements programmatiques.

En 2014, lors de l’appel d’offre pour la création d’un espace de vie enfantine dans les deux premiers étages du bâtiment principal et dans les ailes, la villa fait l’objet d’une demande de classement par la section genevoise de Patrimoine suisse2. S’engage alors une intelligente négociation entre les architectes et le Service des monuments et des sites du Canton. Au regard de l’état intérieur des espaces concernés et de l’urgence des besoins – le quartier des Eaux-Vives est alors celui qui connait la plus importante pénurie de places d’accueil pour enfants – le Service autorise une transformation complète des intérieurs et une rénovation à l’identique des extérieurs.

Un scénario au service de la créativité

Le scénario choisi par Lacroix Chessex repose ainsi sur trois dimensions affirmées.

  • L’optimisation et la rationalisation de la répartition programmatique de la crèche. En dédiant les annexes aux groupes des moyens et des grands et le premier étage de la bâtisse aux bébés et petits, la capacité d’accueil a été considérablement augmentée (96 places). Ce choix a également libéré le cœur de cette transformation, l’espace voûté. Le bureau genevois a eu l’intelligence d’en faire un lieu multifonctionnel et peu défini. Accueil, réfectoire, cuisine, sanitaire: cet espace, augmenté par une mezzanine liée par un toboggan, est avant tout une formidable aire de jeu. Les caractéristiques patrimoniales, qui auraient pu être considérées comme des contraintes, peuvent ainsi quitter leur rôle utilitaire ou structurel et devenir pour les enfants de formidables éléments propices au développement créatif: les colonnes en pierre de terrible monstres, l’escalier de secours le tunnel merveilleux qui mène au monde enchanteur de la mezzanine, les rigoles intérieures d’origine de petites rivières à remonter.
  • La perméabilité entre l’intérieur et l’extérieur. À l’instar de leur projet pour la crèche de La Chapelle-Les Sciers à Lancy, le bureau Lacroix Chessex a porté une attention particulière à cette relation. Le nouvel élément vitré de la façade nord sur cour; le nouvel accès à l’ouest ouvrant sur un jardin protégé; au sud, celui ouvrant sur le parc; l’organisation en enfilade des étages supérieurs créant des vues traversantes… tous sont autant d’éléments qui, visuellement ou physiquement, invitent la nature à l’intérieur.
  • L’amélioration des connexions intersectorielles par l’ajout d’un ascenseur et d’un escalier en colimaçon. Perçant la voûte et coulé sur place, la réalisation de ce dernier est une véritable prouesse technique qui a nécessité la mise en place de cintres métalliques sur mesure assurant l’étayage.

Patrimoine vivant

Comme pour l’aire de jeux de Base à Paris, Lacroix Chessex se sont laissé guider par l’existant. Fidèles à leur approche, ils ont cherché les «solutions adéquates à des problèmes particuliers dans un contexte donné», sans idée préconçue et sans «diktat architectural». Comme ils aiment à le souligner, ils ont travaillé comme «un couturier qui conçoit et réalise avec soin, passion et précision, pour ses clients, des habits uniques et sur mesure»3.

La crèche de Frontenex prouve que la réhabilitation et la transformation programmatique aussi radicales soient-elles – d’une distillerie de vermouth à une crèche – peuvent donner des lieux de vie rationnels et pratiques, mais aussi habités historiquement et, dans le cas de Frontenex, ludiques, oniriques et rassurants. Des caractéristiques et un esprit du lieu que bien de nouvelles constructions n’offrent pas. Un plaidoyer pour une approche vivante du patrimoine bâti.

Espace de vie enfantine
54, Route de Frontenex, Genève (GE)

 

Maître d’ouvrage
Ville de Genève

 

Architecture
Lacroix Chessex

 

Ingénieur civil
T-Ingénierie

 

Physicien du bâtiment
Effin’art

 

Géomètre
Haller Wasser + Partner

 

Ingénieur électricité
Srg-engineering

 

Ingénieur en chauffage-ventilation
Weinmann Energies

 

Ingénieur sanitaire
Ryser Eco

 

Acousticien
Architecture & Acoustique

 

Ingénieur sécurité
Orqual

 

Ingénieur désamiantage
B+S Ingénieurs conseils

 

Cuisiniste
Lama Architecture

 

Carrelage
Gatto

 

Plâtrerie et peinture
Matamoros

 

Procédure
Appel d’offres

 

Réalisation
2019-2021

 

Surface de plancher
1800 m
2

 

Crédit de réalisation
9,1 mio CHF

Notes

 

1 Cedric van der Poel, «Pour s’inventer des histoires – L’aire de jeux de Belleville à Paris»

 

2 Rapport de la commission des travaux et constructions, PRD-52 A, 11.06.2014

 

3 Lacroix Chessex, De aedibus 56, Quart Verlag

Etichette
Magazine

Articoli correlati