Die Su­che nach der idea­len Wohn­form

Projektwettbewerb Siedlung «Holliger» Baubereich U1

Der Projektwettbewerb der Baugenossenschaft Aare für das Baufeld U1 im neuen stadtbernischen Quartier «Hollliger» zielte ausdrücklich auf Entwürfe von Wohnungen für Familien mit Kindern ab. Das erstrangierte Projekt «Here comes the sun» der Architekten FritschiBeis wartet mit einem achtgeschossigen Turm auf.

Data di pubblicazione
27-02-2020

Der im März 2019 ausgeschriebene Projektwettbewerb der Baugenossenschaft Aare für das Baufeld U1 im neuen stadtbernischen Quartier «Hollliger» auf dem Gelände der ehemaligen KVA zielte ausdrücklich auf Entwürfe von Wohnungen für Familien mit Kindern ab und definierte den Begriff «Familie» sehr offen. Ob nun Paare mit Kindern, Alleinerziehende oder Patchworkfamilien – das Wohnangebot sollte gemäss Programm offen sein bis hin zu sogenannten alternativen Mehrpersonenhaushalten, also Wohngemeinschaften.

Kernpunkt der Ausschreibung war der Wunsch nach urbanen und bezahlbaren Wohnungen mit vier Zimmern oder grösser. Das Wohnungsangebot solle aber auch rund 10% flexibel zuteilbare Joker-Zimmer, Mansarden oder Studios enthalten, die auch als minimale Wohneinheit funktionieren sollen, um den zeitweise höheren oder tieferen Flächenbedarf auszugleichen oder veränderten Bedürfnissen für Wohnraum nachzukommen. Anzustreben sei ein Mietzins von 200 Fr. je m2 jährlich oder eine Monatsmiete von 2000 Fr. für eine 4-Zimmer-Wohnung.

Weitere Pläne und Visualisierungen zum Wettbewerb finden sich auf competitions.espazium.ch

Wörtlich war zu lesen: «Die Kernaufgabe im vorliegenden Projektwettbewerb besteht darin, im Spannungsfeld zwischen den ‹spezifischen Wohnbedürfnissen› von Familien oder anderen Haushaltsformen mit Kindern und dem Prädikat ‹Preisgünstigkeit› optimale und innovative Familienwohnungen auf dem Baufeld U1 zu gestalten.»

Enger Zeitplan – rasche Entscheidung

Eingabe für die Selektion war Mitte April 2019. 47 Bewerbungen gingen ein, davon 20 als Wildcards. Die Vorprüfung schloss Anfang Mai ab. Die Präqualifikation entsprechend den vorgegebenen Eignungskriterien selektionierte zehn Bewerbungen, davon drei Wildcards für den Projektwettbewerb. Das Programm und weitere Unterlagen gingen Mitte Mai an die selektionierten Büros, Ende Mai fanden eine Auftaktveranstaltung und die Begehung des Projektperimeters statt.

Alle zehn Projekte wurden bis zum Eingabeschluss Ende August termingerecht eingereicht. Nach der materiellen Vorprüfung fand Mitte September die Jurierung statt, kein Projekt wurde davon ausgeschlossen. Nach zwei Rundgängen verblieben vier Projekte in der engeren Wahl und letztlich beschloss die Jury für drei Projekte die Rangierung und Preiszuteilung.

Kriterien für die Beurteilung:

  • Planungsidee/Gestaltung
  • Nutzung/Funktionalität
  • Wirtschaftlichkeit
  • Ökologie/Nachhaltigkeit

«Here comes the sun»

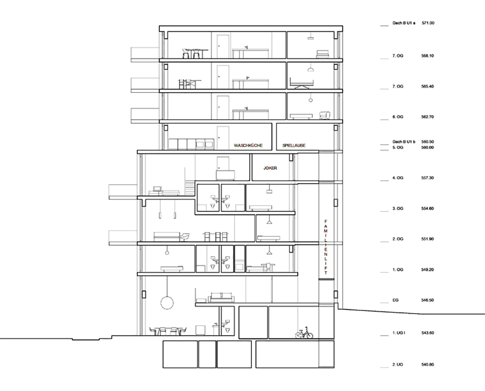
Das erstrangierte Projekt mit dem Titel «Here comes the sun» der Architekten FritschiBeis, Bern, mit Space Encounters Amsterdam, und Tschopp Ingenieure, Bern, wartet mit einem achtgeschossigen Turm auf, der in direkter Verbindung mit einem fünfgeschossigen liegenden Volumen steht. Somit ist das ganze Baufeld belegt, und die Grossform verspricht einen robusten optischen Abschluss des Siedlungshofs gegen Norden. Die durchgehend mit Keramikplatten verkleidete Fassade dürfte diesen Eindruck noch verstärken.

Konstruiert ist das Tragwerk als Holzbau, für die Längsaussteifung ist ein Stahlfachwerk vorgesehen. Die Jury bezeichnet das als «angestrengt», die Konstruktion verspreche mehr Nach- als Vorteile. Die Wohnungstypen sind jedoch vielfältig und recht unterschiedlich: von dreigeschossigen Townhouses über verschachtelte angelegte Splitlevel-Typen bis zu konventionellen Geschosswohnungen im Turm.

Erschlossen sind alle Wohnungen über ein einziges Treppenhaus mit grosszügigem Aufzug in der östlichen Ecke des Turms. Dessen Wohnungen in den obersten drei Geschossen sind somit direkt erschlossen, die übrigen Wohnungen mit breit angelegten Laubengängen, die zudem als Aufenthalts- und Begegnungszonen dienen. Von dort aus sind auch einige Joker-Zimmer zugänglich, die sich auch als Arbeitsräume nutzen lassen. Dies wertet die Jury als Beitrag zum Gemeinschaftsleben der Bewohner und zudem auch als wirtschaftlich günstige Lösung. Dazu passt auch die Nutzbarkeit des Dachs als Treffpunkt für alle. Die Wohnbereiche der Laubengangwohnungen weisen schöne überhohe Bereiche auf.

Die Jury betont, dieses Projekt zeichne sich durch grossen Ideenreichtum bezüglich eines differenzierten und kommunikativen Innenlebens aus. Einzig die äussere Erscheinung bezeichnet sie als noch nicht ganz ausgereift. Generell entspreche es der im Programm formulierten Offenheit für innovative Konzepte in hohem Mass. Eine überzeugende und auch zukunftsfähige Antwort auf die Frage nach den passenden Wohnformen für (vielgestaltige) Familienmodelle in der Stadt sei damit gegeben.

 

Auszeichnungen

1. Rang «Here comes the sun»:
FritschiBeis AG;
Space Encounters; Tschopp Ingenieure; Amstein + Walthert Bern; Fanzun AG; Zeugin Bauberatungen
2. Rang «Das doppelte Lottchen»:
Lütjens Padmanabhan Architekten
; SJB Kempter Fitze; Waldhauser + Hermann AG
3. Rang «Tegu»:
Bürgi Schärer Architekten;
Basler & Hofmann

Sachpreisgericht

Barbara Hayoz, Gemeinderätin / Präsidentin Betriebskommission Fonds (Vorsitz); Regula Buchmüller, lic. phil. I, Leiterin Abteilung Stadtentwicklung; Fernand Raval, dipl. Immobilien-Treuhänder/ Betriebsökonom FH, Leiter Liegenschaftsverwaltung; Peter Schmid, Betriebsökonom/MBA in NPO Management, Präsident der Wohnbaugenossen-schaften Zürich, Zürich; Philippe Cabane, Stadtplaner IFU BSA & lic. phil. I Soziologie, selbstständiger Berater, Basel

Fachpreisgericht

Mark Werren, dipl. Architekt ETH/SIA, Stadtplaner; Thomas Sieverts, Prof. em., Dr. Ing. e.h. Architekt/Stadtplaner, München (D); Ute Schneider, dipl. Ing. Architektin/Stadtplanerin TU, KCAP Architects + Planners, Zürich; Andreas Hofer, dipl. Architekt ETH, archipel - Planung und Innovation, Zürich; Guido Hager, dipl. Landschaftsarchitekt BSLA, Hager Partner, Zürich; Pierre Feddersen, dipl. Architekt ETH/SIA/ Planer FSU, Feddersen & Klostermann, Zürich

Etichette

Articoli correlati