Viag­gio per im­ma­gi­ni sto­ri­che

Residenza dell’ambasciatore svizzero ad Addis Abeba

Nel concorso del 2018 per la costruzione della nuova ambasciata svizzera ad Addis Abeba, lo studio OLBH – Office Leibundgut Bühler Hartmann1 – ha convinto la giuria con una proposta che ha ora raggiunto lo stadio di progetto preliminare. I riferimenti utilizzati in fase di concorso stanno accompagnando gli autori nella ricerca di partner e materiali.

Data di pubblicazione
21-12-2020

Nel progetto vincitore del concorso, «The Flag Incident», a rappresentare la proposta per l’ambasciata elvetica in Etiopia non era un comune rendering ma un collage. In architettura il riferimento visivo è un’icona, e la sottile scritta a margine spiega di cosa si tratta: la «Casa de Vidro» di Lina Bo Bardi a San Paolo, in Brasile. Nel collage gli architetti ne hanno ripreso l'elegante arredo, la vegetazione tropicale del giardino e il fine mosaico azzurro del pavimento, aggiungendo il forte contrasto del soffitto grezzo a cassettoni di cemento e una struttura aperta a portico sulla facciata verso il giardino. Il riferimento originale, proveniente dal contesto tropicale e umido del Sud America, ha probabilmente acuito lo sguardo sul con­testo: Addis Abeba, che si trova a nord dell'equatore a 2300 m sul livello del mare, è caratte­rizzata da un clima da altopiano subtropicale, dove spesso fa fresco. Le modifiche strutturali esprimono quindi l'adattamento al clima diverso e alla diversa funzione dell'edificio; alludono però anche alle differenze di cultura architettonica, epoca e mezzi costruttivi.

Del progetto, votato all’unanimità, la giuria ha lodato la densa atmosfera ma anche il fatto di adeguarsi al contesto locale dell’ambasciata svizzera e al suo programma di spazi con un paradosso. I quattro volumi per usi specifici si inseriscono nella topografia con intelligenza funzionale, ma una struttura in parte chiusa e in parte aperta – tetto ma anche piattaforma, che offre al personale un accesso indipendente da quello dei visitatori – li riunisce in un corpo edilizio definito con chiarezza ma con spazi permeabili; tutto ciò rende l’intera ambasciata sia grande e rappresentativa che modesta nei suoi singoli settori. Spazio costruito e volumetria si completano, creando una struttura che instaura un gioco spaziale con il giardino e le sue piante; la piattaforma rialzata fa sì che lo spazio del giardino passi in gran parte sotto l’edificio. Il programma di concorso auspicava che il progetto coinvolgesse il giardino dell’ambasciata esistente, con cinque alberi degni di venire conservati. In futuro l’esterno andrebbe completato con altre piante locali e con una gestione sostenibile delle risorse idriche; oggi, come molte altre aree verdi di prestigio nella città, non è uno spazio naturale autosufficiente e va irrigato.

 

Primo viaggio e questioni di sostenibilità

Dopo le prime riunioni con l’UFCL, nella primavera 2019 Florian Hartmann, Piero Bühler e Johannes Leibundgut sono stati una prima volta in Etiopia e hanno visto di persona l’attuale ambasciata elvetica: un edificio relativamente modesto nella zona ovest di Addis Abeba, lungo una delle direttrici stradali cittadine. Il nuovo complesso, che ben si coglie con lo sguardo, è previsto su una parcella di 4825 m2 in leggero pendio verso est. Oltre a confermare molti aspetti del progetto e a relativizzarne altri, la visita ha permesso agli architetti di stringere utili contatti; fra le persone incontrate c’è una collaboratrice di RAAS Architects, studio che ha seguito la realizzazione dell'estroverso edificio in cemento rosso di Dick van Gameren e Bjarne ­Mastenbroek per l’ambasciata olandese. Rahel Shawl, secondo Piero Bühler, «è pratica di rapporti con partner internazionali e molto sensibile a materiali locali, artigianato e tecniche edilizie dell’Africa orientale ma anche europee: ciò fa di lei il perfetto tramite fra noi e gli imprenditori locali».

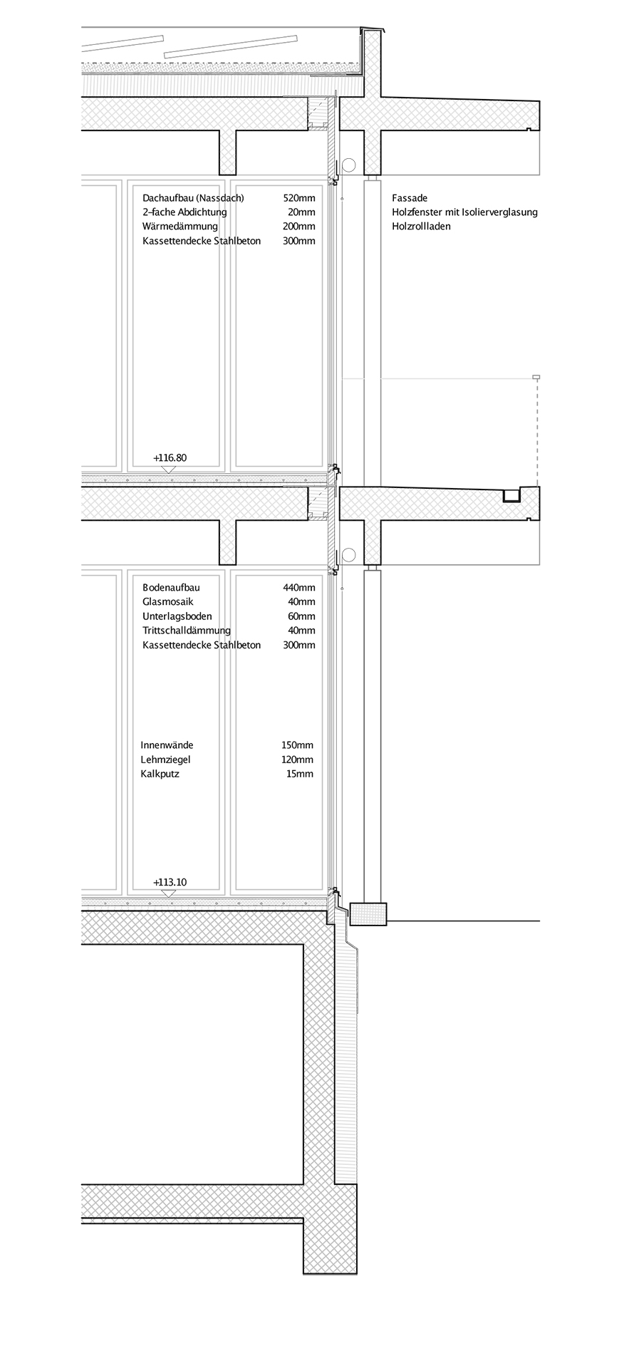
Ad Addis Abeba le opere edili su vasta scala sono per lo più in calcestruzzo. Una parte consistente dell'edificio – come le facciate vetrate, che devono rispettare il piano di protezione del Centro di gestione delle crisi (KMZ) – va chiaramente importata; non si produce in Etiopia neppure l’acciaio per l’ossatura in cemento armato della parte aperta con strutture spaziali flessibili. Per lo stabile il bando di concorso esigeva neutralità energetica e costi di gestione vantaggiosi, ma in che misura è realistico, gestione a parte, chiedere di attuare la strategia svizzera di ­­sostenibilità – proprio a livello ambientale – in un paese extraeuropeo? Per la va­lutazione della costruzione dell'edificio, responsabile di gran parte dell’energia grigia, occorrono dati di ­consumo energetico nelle fasi di produzione dei materiali, di trasformazione e di trasporto nonché poi in quella di smantellamento, dati che però ad Addis Abeba non sono rilevabili con le stesse modalità svizzere; il clima più caldo, d’altronde, rende superflui elementi con una forte quota di energia grigia, come le pareti termoisolanti.

Caroline Schnellmann, dell’UFCL, spiega: «Esaminando il progetto, la giuria ne ha fatto vagliare l’economicità da un economista edile. Un’analisi approfondita del contesto locale in fatto di materiali e di trasporto, luogo di produzione e durata di essi si svolge coi progettisti locali in due fasi: progetto preliminare e progetto di costruzione». Norme del posto e norme svizzere vengono applicate in base a uno studio di fattibilità, ma qui occorre anche e soprattutto un sano buonsenso; gli architetti, in ogni caso, vedono con favore la collaborazione con l’UFCL e beneficiano delle sue esperienze costruttive all’estero.

 

La ricerca di un equilibrio culturale

Un tema centrale, avvincente e nel contempo complesso è l’equilibrio da raggiungere nella varietà culturale e nelle diversità tecnico-architettoniche fra Etiopia e Svizzera. Col loro progetto gli architetti prendono posizione evitando in gran parte scelte materiche e formali di stampo romantico-coloniale; poiché per loro è importante un risultato non legato a stereotipi mentali europei sull’architettura africana, trovano sì interessante l’architettura in argilla e il low tech, ma non ritengono che queste modalità costruttive nel contesto africano siano più autentiche di altre.

Ad ogni modo, nel progetto ci sarà anche spazio per le tecniche autoctone. Già nel progetto di concorso gli autori avevano proposto una copertura in tavelloni d’argilla – scelta confermata dopo una visita alla facoltà di architettura dell'EiABC University di Addis Abeba (si legga «TEC21» 21/2013) e dopo aver apprezzato le molte costruzioni pilota eseguite nel campus. Esse sono il risultato di ricerche pluriennali sull’edilizia in argilla, che hanno permesso agli esperti di accumulare un sapere immenso su composizione del suolo, miscele argillose, inerti, caratteristiche della materia prima e tecniche di lavorazione. I soffitti della nuova ambasciata, in maggioranza portanti, permettono alle pareti interne di venire allestite liberamente e a tale scopo si sta valutando il ricorso a laterizi prodotti in situ: una scelta insolita nella capitale etiope, dove in genere per i muri si utilizzano blocchi forati in cemento. Grazie all’appoggio di Rahel Shawl, al know-how svizzero e a quello della EiABC University, ora gli scambi di conoscenze dovrebbero chiarire se una tale produzione di laterizi sia attuabile.

 

Uno sguardo in avanti e uno indietro

Si auspica che gli elementi in argilla suscitino interesse nella prestigiosa cerchia diplomatica, mostrando che il materiale non è solo adatto alle semplici costruzioni rurali, ma anche agli edifici d’alta qualità collocati nelle città africane; forse allora, in un lontano futuro, l’argilla darà un contributo determinante alla sostenibilità anche in opere di grandi dimensioni; un aspetto importante in zone ad alta crescita demografica come l’Africa orientale.

Bühler, tuttavia, osa guardare a un futuro più vicino. «Anche dopo il progetto preliminare puntiamo a non perdere di vista l’immagine della villa di Lina Bo Bardi: è quello il modello di atmosfera che ci ispira, e con RAAS Architects stiamo cercando materiali disponibili in loco che radichino il progetto ma conferendogli un’espressione analoga». Il pavimento della Casa de Vidro, a mosaico azzurro da piscina, nell’ambasciata verrebbe reinterpretato con un terrazzo alla veneziana; simili pavimenti sono frequenti nell’Africa orientale, e il marmo etiope utilizzato allo scopo ha un disegno particolarmente fine. La tecnica, già adottata nell’antichità e poi perfezionata dagli italiani, a fine Ottocento fu portata in Abissinia; più tardi, quando Lina Bo Bardi studiava architettura in Italia (a Roma, dal 1934), scoppiò la seconda guerra d’Etiopia. L’arco ispiratore iniziato con l’architetta su suolo italiano, insomma, torna a chiudersi, attraversato il Sudamerica, proprio in questo paese resiliente dell’Africa orientale.

 

Nota

  1. OLBH (Office Leibundgut Bühler Hartmann): studio di architettura nato per fusione della comunità di lavoro vincitrice del concorso (Bühler Hartmann e Leibundgut Architekten).

Gli articoli del numero speciale «Ambasciate svizzere» verranno pubblicati a puntate qui.

Partecipanti al progetto

Committenza Confederazione svizzera, Ufficio federale delle costruzioni e della logistica
Capoprogetto Jean-Paul Rausis

Architettura OLBH GmbH (Office Leibundgut Bühler Hartmann, Zürich); RAAS Architects, Addis Abeba (Etiopia)

Architettura del paesaggio Goldrand GmbH, Zurigo

Ingegneria civile WaltGalmarini AG, Zurigo; Afro-European Engineer., Addis Abeba (Etiopia)

Fisica della costruzione, acustica Raumanzug GmbH, Zurigo

Progettazione impianti elettrotecnici fux & sarbach Engineering AG, Gümligen; Sirhir Electrical Consult, Addis Abeba (Etiopia)

Ingegneria RVCS Aicher, De Martin, Zweng AG, Zurigo; Mepls Consult, Addis Abeba (Etiopia)

Sicurezza e protezione antincendio HKG Consulting AG, Aarau

Pianificazione del traffico Nagel + Steiner GmbH, San Gallo

Ingegneria civile drenaggi Süss und Partner AG, Zurigo

 

Facts & Figures

Concorso di progetto internazionale con procedura libera (GATT/OMC), 2018

Programma ambasciata (rappresentanza integrata: diplomazia – anche con UA, ONU, il Sudan meridionale –, consolato – responsabile anche di Gibuti e del Sudan meridionale –, DSC), residenza dell'ambasciatore

Realizzazione ottobre 2023 – agosto 2025

Data di consegna dicembre 2025
Superficie del fondo 6800 m2
Volume edifici SIA 416 8300 m3

Superficie dei locali SIA 416 2300 m2
Superficie utile SIA 416 1500 m2

Costi di costruzione (CCC 1–9) secondo le stime ±25%, 15 milioni di franchi

Etichette

Articoli correlati