Ca­se di rin­ghie­ra, Bel­lin­zo­na

Oxid Architektur

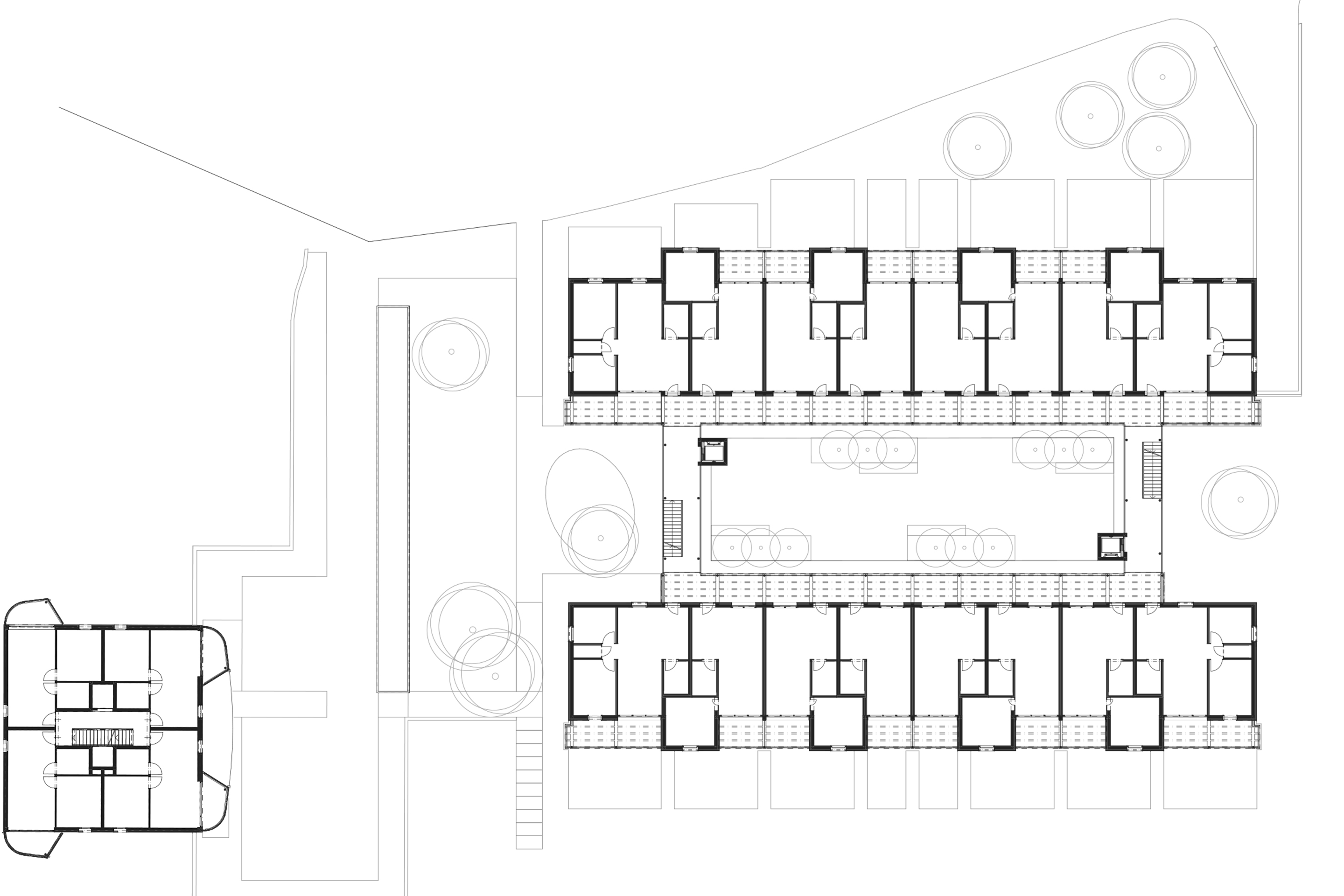
Il complesso abitativo, che si rifà all’archetipo delle «case a ballatoio», si colloca nel contesto della dispersione urbana tra Bellinzona e Giubiasco, cui risponde con un invito all'abitare collettivo e alla socializzazione.

Data di pubblicazione
14-06-2021
Andrea Roscetti
Ingegnere, fisico della costruzione, redattore espazium quaderni

Il progetto è il risultato di un concorso bandito nel 2017 dalla committenza privata, e nasce con il concetto di ridensificazione urbana nello sprawl urbano tra Bellinzona e Giubiasco.

I tre nuovi edifici, sostitutivi dei precedenti ormai vetusti, formano un nuovo quartiere e si relazionano con il contesto eterogeneo. Mentre la «torretta» di 5 piani insieme al «complesso residenziale» esistente degli anni Sessanta cerca un rapporto con la strada cantonale, la «casa di ringhiera» di 3 piani si relaziona con il contesto circostante delle «villette a schiera» suburbane.

Tra la «torretta» e la «casa di ringhiera» si crea uno spazio interno che garantisce il passaggio, forma un indirizzo comune con la costruzione in legno a padiglione, e offre una vera e propria piazza di quartiere con un parco giochi per bambini, spazi per biciclette, un’area con posti a sedere, la sala comune disponibile in locazione e gli «orti».

I garage sotterranei esistenti sono stati riqualificati, collegati e integrati nel progetto mediante una nuova rampa e un accesso verticale, riducendo ulteriormente l’impatto complessivo della nuova costruzione in termini di energia grigia risparmiata.

La «casa di ringhiera» è realizzata con una soluzione costruttiva prefabbricata in legno, ecologicamente sostenibile, e fa riferimento all’archetipo delle «case a ballatoio», una forma di abitazione collettiva urbana con accesso da un portico, diffusa in Lombardia e in Ticino. Questa viene reinterpretata con una veranda generosa che circonda il fabbricato, che funge da punto di accesso e da balcone comune e che genera una corte centrale con la funzione di incubatore sociale e luogo di incontro. Gli spazi abitativi comunicano con lo spazio esterno privato e le verande tramite finestre a tutt’altezza. Tutti i locali hanno un affaccio sul fronte esterno.

Gli appartamenti al piano terra, con i loro giardini privati, si relazionano a loro volta con il quartiere costruito. Nell’espressione architettonica, gli spazi delle verande e dei balconi, in costruzione intelaiata di color legno, contrastano con le facciate piene, che sono rivestite con doghe verticali, trattate in color argento. Grazie al sistema costruttivo scelto, il progetto è risultato sostenibile anche dal punto di vista economico.

Nella «torretta», organizzata in modo compatto, sono disposte quattro piccole unità per piano, accessibili tramite una scala centrale. Gli appartamenti beneficiano di una magnifica vista in lontananza. La tromba delle scale è illuminata centralmente da un cono di luce e dipinta con colori accesi. Le finestre sono collegate verticalmente tra piani e le torri dei balconi, di forma circolare e connesse all’edificio sugli angoli, elevano ulteriormente l’edificio. Il linguaggio dei balconi si ispira alle logge sovrapposte dei condomini dell’architetto Roberto Bianconi e garantisce la protezione acustica dal rumore del traffico stradale.

«Archi» 3/2021 «Complessi residenziali e sostenibilità» può essere acquistato quiQui si può leggere l'editoriale con l'indice del numero.

Luogo via Ghiringhelli 57, Bellinzona

Committenza Helsana Assicurazioni, Dübendorf

Architettura Oxid Architektur, Zurigo (precedentemente Burkhalter Sumi Architekten)

Collaboratori Y. Schihin, U. Rinklef, S. Biaggi, P. Romagnoli

Architettura del paesaggio Officina del paesaggio, Lugano

Impresa Renggli Holzbau, Schötz (costruzione in legno); Consorzio Helsa, Lodrino (costruzione massiccia)

Ingegneria civile Jelmoni Ingegneria, Ascona

Progetto impianti RCVS Stolz und Partner, Lucerna Progetto impianti

elettrici Elektro Peter, Willisau

Fisica della costruzione Renggli, Sursee

Acustica HOMA Tecnica, Muralto Illuminotecnica: EWA Altdorf, Altdorf

Geologia Geoamb consulenze ambientali, Morbio Inferiore

Fotografia René Dürr, Zurigo

Fotorender Atelier Brunecky, Zurigo

Date concorso 2017, progetto 2018-2019, realizzazione 2019-2020

Pianificazione energetica Renggli, Sursee

Certificazione o Standard energetico: RUEn 2008

Intervento e tipo edificio costruzione nuova sostitutiva

Categoria edificio (Ae) case di ringhiera (nord/sud): residenziale 2x 1560 m2; torretta: residenziale collettivo 1215 m2

Fattore di forma (Ath/Ae) case di ringhiera (nord/ sud): 1,50; torretta: 1,15

Riscaldamento case di ringhiera (nord/sud): pompa di calore aria-acqua, CLA = 4,0; torretta: pompa di calore aria-acqua, CLA = 4,2

Acqua calda case di ringhiera (nord/sud): 65% pompa di calore aria-acqua,
CLA = 2,9; 35% collettori solari termici; torretta: 70% pompa di calore aria-acqua, CLA = 3; 30% impianto solare termico

Requisito primario involucro dell’edificio case di ringhiera (nord/sud): 18,5 kWh/m2a (limite 29 kWh/m2a); torretta: 11,5 kWh/m2a (limite 24,5 kWh/m2a)

Particolarità riscaldamento a pavimento, elettrodomestici ad alta efficienza, illuminazione interamente a LED

Articoli correlati