Ty­po­lo­gie, par­ti­ci­pa­ti­on et ré­ver­si­bi­li­té

Dans l’écoquartier Jonction à Genève, une opération mixte expérimente une forme atypique de logements communautaires, née du dialogue avec les futurs habitants.

Publikationsdatum
24-05-2016
Revision
26-05-2016
Nicolas Bassand
architecte EPFL, docteur ès sciences et chargé de cours hepia / HES- SO

Concilier des demandes contradictoires est certainement l’un des défis majeurs de l’architecte, en particulier lorsqu’il est engagé dans un processus participatif avec les futurs habitants d’une coopérative d’habitation qui souhaitent expérimenter de nouvelles façons d’habiter. Il doit alors répondre tout à la fois à des demandes de sociabilité consolidée entre «voisins», à différentes formes de vivre ensemble, peu habituelles dans la production courante du logement, mais également à des besoins plus conventionnels de privacité comme à des souhaits individuels d’appropriations diverses de l’habitat et de ses prolongements. Depuis 2010, date à laquelle ils ont remporté le concours de l’écoquartier de la Jonction à Genève, les architectes du bureau Dreier Frenzel s’attèlent à relever ce défi.

Flexibilité du processus de projet

Ce concours portait sur la création d’un écoquartier composé d’une école, de surfaces d’activités et de logements que les architectes ont organisés stratégiquement en trois bâtiments distincts, de sorte que chacun d’eux représente un maître d’ouvrage différent. Au sein de cette opération, le bâtiment réalisé pour la CODHA1, expérimente une forme de logements communautaires atypique, née du dialogue avec les coopérateurs. 

Dès le stade du concours, le bureau Dreier Frenzel a intégré le besoin de flexibilité que laissait présager une démarche participative avec les futurs habitants. En lien avec le choix d’une construction structurelle simple, faite de poteaux et de dalles, la devise du concours «Social Loft» illustre bien la volonté des architectes d’hybrider des espaces économes et contraints de type «Existenzminimum» et d’autres, proposant des spatialités plus généreuses et évolutives, pouvant s’apparenter à des lofts. 

Les échanges entre le bureau d’architectes, les coopérateurs et la CODHA, ont permis de mettre à jour les aspirations des futurs habitants à vivre dans un habitat sensiblement différent de la production courante. La question d’un mode de vie organisé entre des espaces communs et des unités privatives a été initialement posée au comité directeur de la CODHA par un groupe de femmes vivant seules et souhaitant partager leur quotidien dans un même appartement. Cette demande a été transmise aux architectes qui ont emmené en 2011 les responsables du projet à Zurich pour leur faire découvrir l’immeuble du Kraftwerk2 d’Adrian Streich. La visite de ces grands appartements communautaires a convaincu le maître d’ouvrage de poursuivre le développement des logements dans le même esprit. La recherche typologique a pu être relancée à partir d’une demande émanant des futurs habitants eux-mêmes, intéressés à trouver une solution à leur rêve d’habitat commun. 

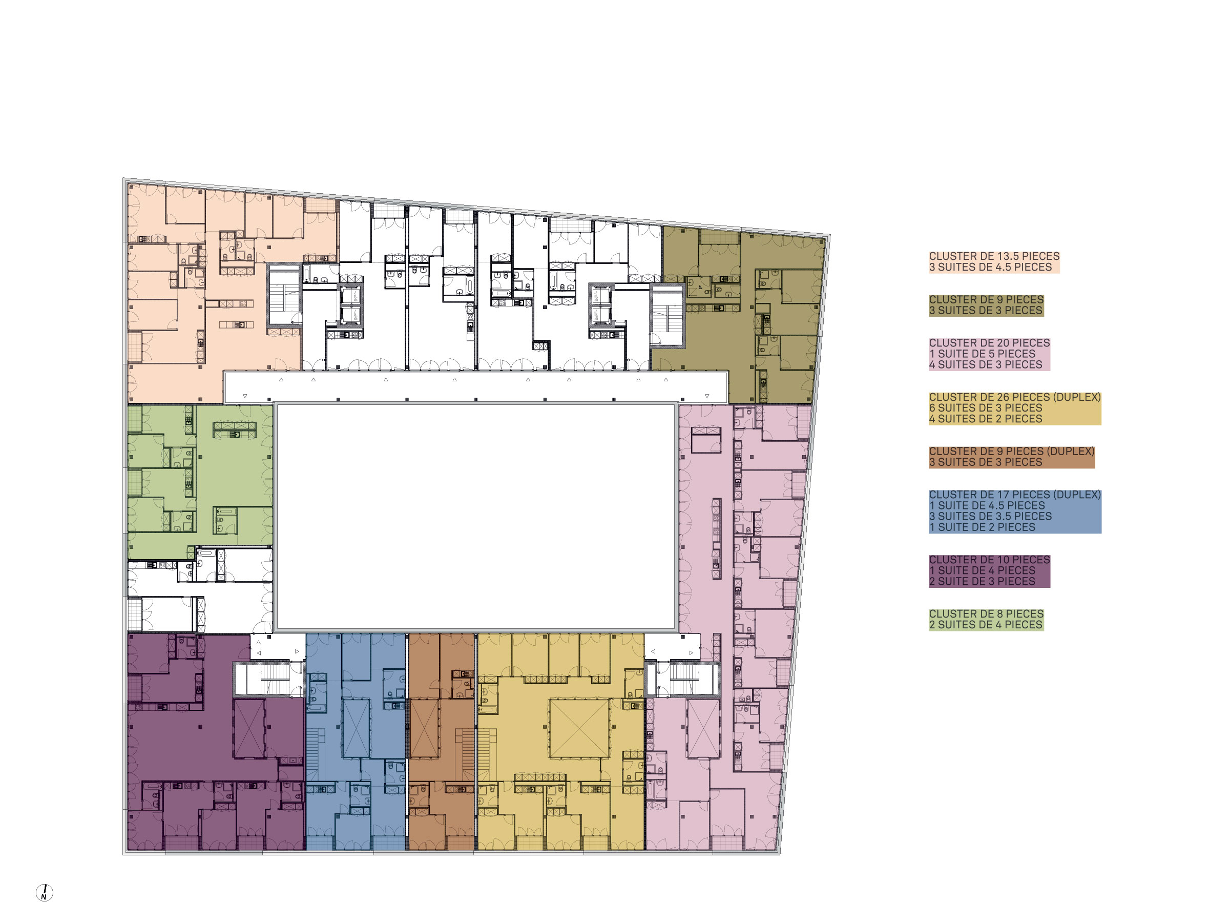
De leur côté, les architectes ont vu dans cette demande spécifique de nouvelles perspectives pour mieux définir une partie du volume du bâtiment dont ils n’arrivaient pas à optimiser la grande profondeur. Après avoir proposé plusieurs variantes, ils ont abouti en 2014 à un modèle de grand appartement communautaire comprenant des clusters, c’est-à-dire des unités privatives avec chambres, salle de bain, cuisine et parfois un petit salon, agrégées au sein d’un vaste espace de vie collectif.

Ce principe d’association et de gestion spatiale entre le privé et le collectif a connu un vif succès auprès des coopérateurs, si bien que plusieurs logements ont finalement été organisés avec des unités de cluster de 8 à 26 pièces, qui présentent l’avantage de pouvoir accueillir des communautés aux configurations très diverses : familles recomposées, colocations intergénérationnelles, groupes de seniors, etc. 

Au-delà du principe initial de «Social Loft» proposé lors du concours, qui devait permettre à chacun de configurer son espace de vie (puisque seules la structure et les gaines techniques étaient fixes), le projet démontre une capacité supplémentaire: celle d’accueillir dans des immeubles neufs des logements communautaires jusqu’ici relativement inédits en terre romande. 

En quête de la définition du type et de sa durabilité 

Qu’en est-il de la durabilité de ces typologies? Depuis 2011, année durant laquelle les premiers logements communautaires ont été proposés, les coopérateurs intéressés à cette expérience ont changé ou évolué dans leurs envies, des personnes sont parties et de nouvelles sont arrivées. Que deviennent alors ces appartements lorsque les habitants initiaux changent? C’est justement en réfléchissant à ces questions que les architectes ont cherché à concevoir des typologies capables de répondre à différents scénarii plutôt qu’à des personnes en particulier. Pour Yves Dreier, cet immeuble de 115 appartements est comme une «petite ville» dont les habitants, en changeant de configuration familiale ou sociale, peuvent occuper successivement différents types de logements au sein du même bâtiment. 

A ce stade du processus, chaque appartement peut accueillir une communauté spécifique susceptible de se transformer. Les scénarii doivent permettre une adaptation des usages des espaces en fonction des différents regroupements d’individus possibles. Le plan se présente ainsi comme une combinaison, une succession logique et indivisible d’espaces caractérisés, des plus grands et des plus exposés, aux plus petits et aux plus retirés. A noter que ce moment du projet marque la fin du processus flexible qui avait prévalu jusqu’alors et tend à présent vers une notion d’appropriation dans la manière d’habiter. 

Des espaces communs semi-publics en regard de suites privatives compactes
La spécificité qui paraît se cristalliser dans ces plans de logements en cluster repose sur l’idée de «fusion des contraires», inscrite dans la devise «Social Loft». D’un côté, on trouve un espace commun généreux, grande pièce polymorphe ramifiée en différents sous-espaces, très ouverte sur l’extérieur par ses baies vitrées. Cette grande pièce contient tout à la fois salon, salle à manger, cuisine, espaces de travail et circulations, autant de fonctions collectives calibrées en regard du nombre de «colocataires». Par ses dimensions qui lui confèrent un statut semi-public, elle joue un rôle déterminant avant d’accéder aux unités privatives. L’avenir montrera quelle appropriation, adaptée et circonstanciée, en feront effectivement les occupants. 

De l’autre côté, les clusters, entités compactes, présentent des proportions sensiblement réduites par rapport à l’espace commun. Dans un équilibrage savant mené avec le service cantonal du logement et de la planification foncière (OCLPF), les architectes ont dû prouver que l’économie des surfaces ne nuisait pas aux standards d’habitabilité et permettait d’accorder à ces espaces «semi-publics» les quelques mètres carrés gagnés, tout en garantissant une densité d’usage supérieure à des appartements traditionnels. Disposés sur les façades extérieures du bâtiment sur cour, les clusters reçoivent suffisamment de lumière naturelle et fonctionnent en autonomie, avec kitchenette et salle de bains. Ils peuvent être fermés à clé comme un appartement. Ainsi, cette dualité espace commun / cluster renouvelle fondamentalement les notions de seuil traditionnellement associées aux appartements standards. 

La chambre blanche privatisable et la chambre d’accueil 

A mi-chemin entre les clusters et l’espace commun se trouve une autre pièce importante pour l’habitabilité de certains appartements communautaires, que les architectes ont appelé «chambre blanche». Polyvalente et privatisable, elle occupe le centre du bâtiment et légitime ainsi la grande profondeur des appartements (20 mètres). Bordée par un atrium, elle bénéficie de lumière naturelle en suffisance. Elle peut être utilisée de différentes manières : par une grande famille occupant le cluster adjacent et souhaitant un espace privatif plus généreux, comme salle de repli ou lieu de travail pour l’ensemble des occupants de l’appartement.

Autre espace offrant une souplesse à certains de ces appartements, la chambre d’accueil se trouve très souvent à une extrémité de l’espace commun. Pensée en premier lieu pour les visites de passage, elle autorise aussi des scénarii variés en fonction des différents regroupements d’habitants possibles. Elle pourra ainsi se transformer en petit salon, en espace de travail ou encore en pièce de jeu ou éventuellement en chambre pour adolescent. Bien qu’elle bénéficie de la proximité directe d’une salle de bains collective, elle restera a priori dépendante de la cuisine partagée des espaces communs ou de l’un des clusters, sans être en lien direct avec l’un d’eux.

Percevoir les limites de la réversibilité et la valeur de l’indétermination

La réversibilité n’est généralement pas exploitée dans les immeubles de logements contemporains ou modernes conçus pour offrir cette possibilité. Cela demande en effet des travaux conséquents et complexes dans du logement collectif occupé par ses habitants. Il a pourtant été demandé aux architectes de pouvoir transformer certains appartements communautaires en appartements «traditionnels» s’ils venaient à ne plus fonctionner après les premières rotations d’habitants. Si en effet on peut envisager de cloisonner certaines parties pour revenir à des logements plus standards ou moins grands, il faut cependant prendre en compte la grande dimension des espaces communs qui resteront probablement marqués par leur nature semi-publique, donc peu privatisable (grandes baies vitrées, trajet de l’entrée au cluster, etc.). Il faut en outre rester attentif au fait que la disparition de la souplesse et des alternatives actuelles de ces plans (la chambre blanche et la chambre d’accueil en particulier) fera perdre l’attrait et l’équilibre des appartements, qui fonctionneraient alors dans une bipolarité un peu frontale «espace commun - cluster», peut-être plus subie que souhaitable.

Vers une société du partage?

Le projet des architectes Dreier Frenzel démontre qu’il existe dans le milieu de l’habitat associatif une réelle demande pour des structures de logements plus ouvertes à la vie en communauté. Comme le relève Yves Dreier, ces typologies poursuivent et consolident le modèle du «vivre ensemble» des années soixante, tout en s’en démarquant par une définition plus nette de la sphère privée vis-à-vis des espaces communs. 

Les grands appartements de la CODHA apportent ainsi une réponse originale aux modèles définis par une société qui souffre d’un individualisme exacerbé. On peut se demander si, à terme, les clusters remplaceront les homes de personnes âgées, s’ils deviendront une norme dans le monde du logement qui peine à offrir des appartements pour les familles recomposées. Cet exemple illustre une tentative de conciliation architecturale entre l’individualisme devenu une norme et l’envie de reformer des groupements d’individus partageant des valeurs communes.

Verwandte Beiträge