The Wall

Ein neuer Wohnbau in Binningen BL setzt mit seiner klaren Geometrie und der dunkelroten Klinkerfassade einen städtischen Akzent.

Publikationsdatum
27-08-2023

Die Gemeinde Binningen ist aufgrund ihrer Nähe zur Stadt Basel ein beliebter Wohn­ort. An der Kreuzung von Ober­wi­ler­strasse und Schützenweg setzt das neue Mehrfamilienhaus «The Wall» seit diesem Frühling einen städtischen Akzent. Der zweischalige Bau präsentiert sich gegen aussen mit Klinker und stellt einen Kontrast zur Umgebung her, die von niedrigeren Bauten und verputzten Fassaden geprägt ist. Im Namen der Überbauung liegt eine versteckte Botschaft: Bei «The Wall» wurden die Ziegel nicht geklebt oder als Verkleidung appliziert, sondern sind Wandelemente des Zweischalenmauerwerks.

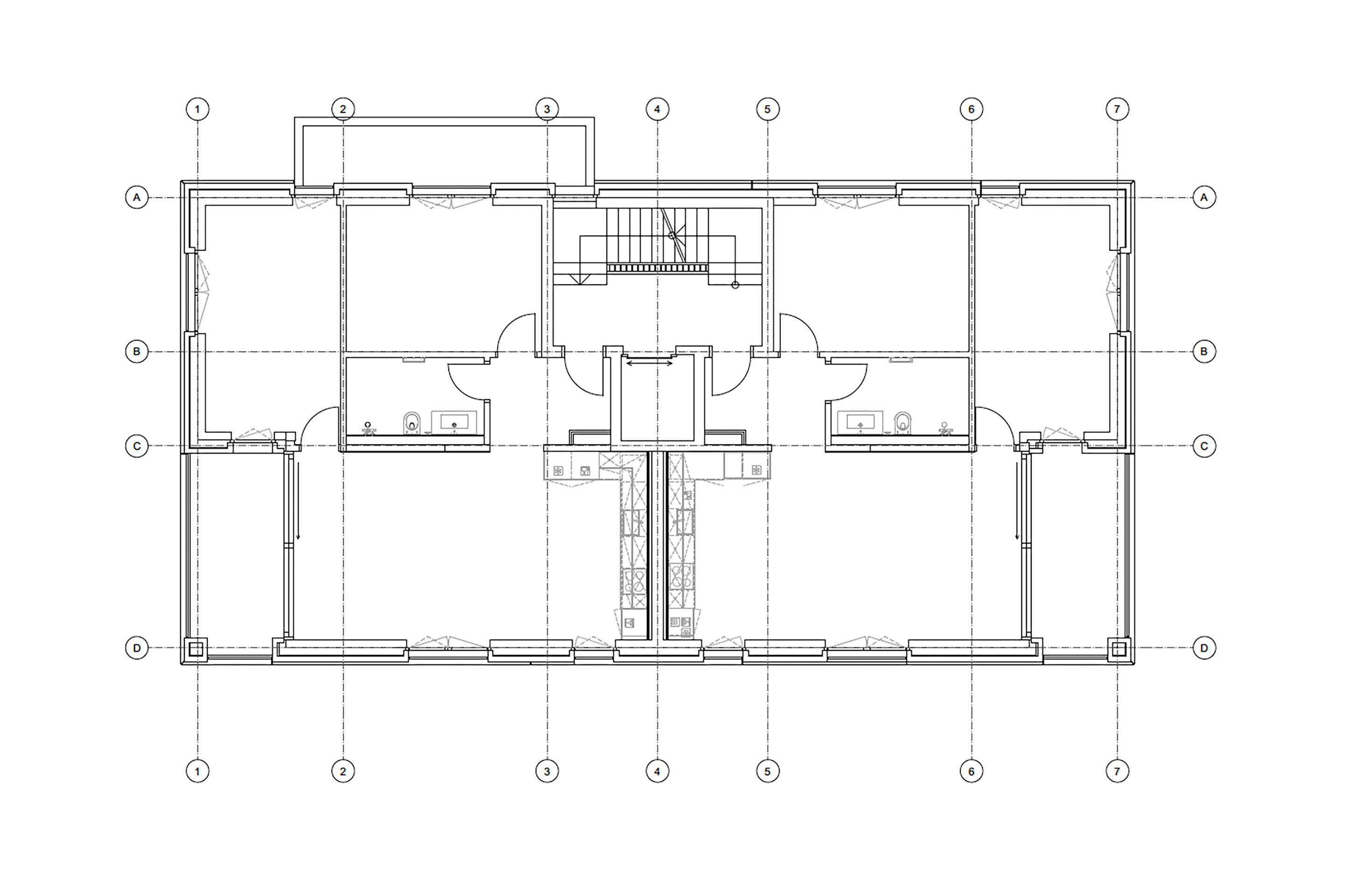
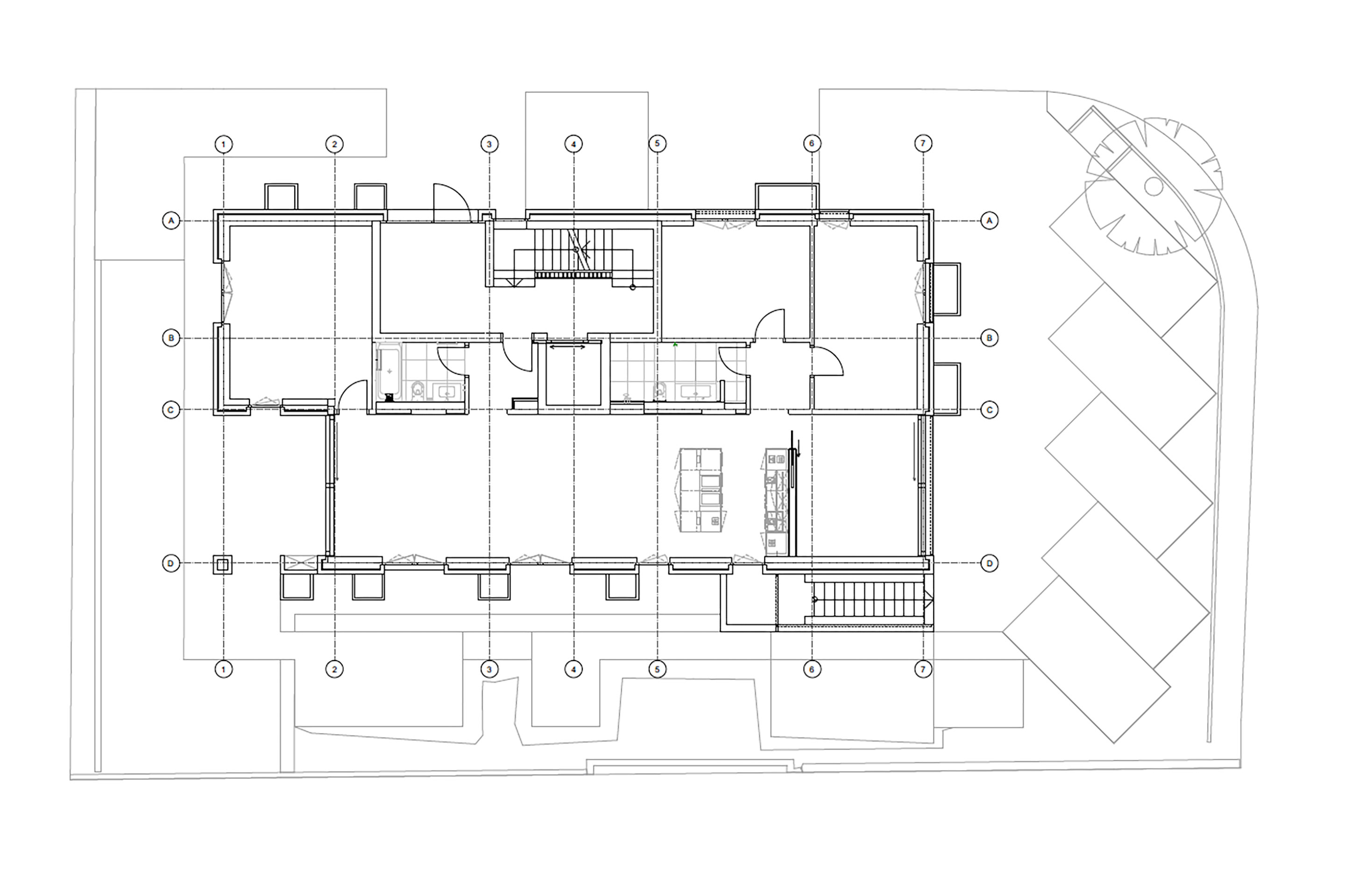
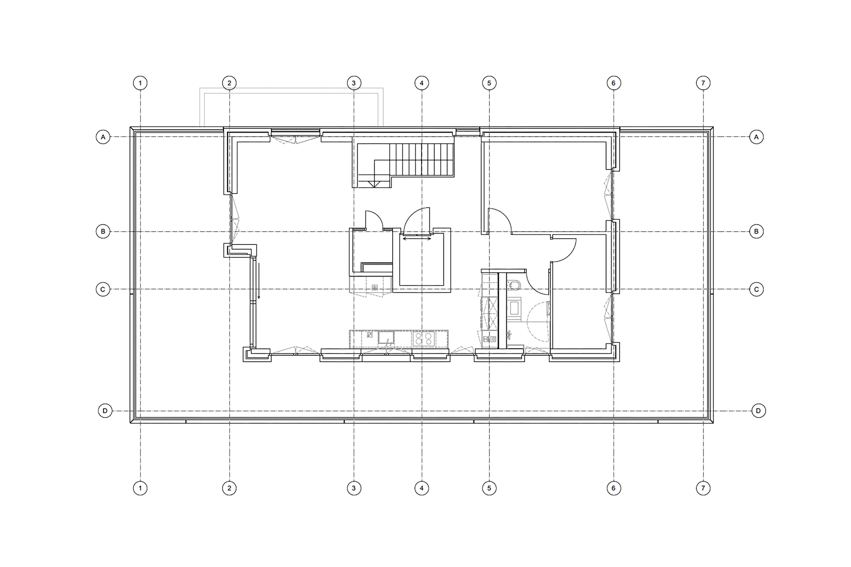
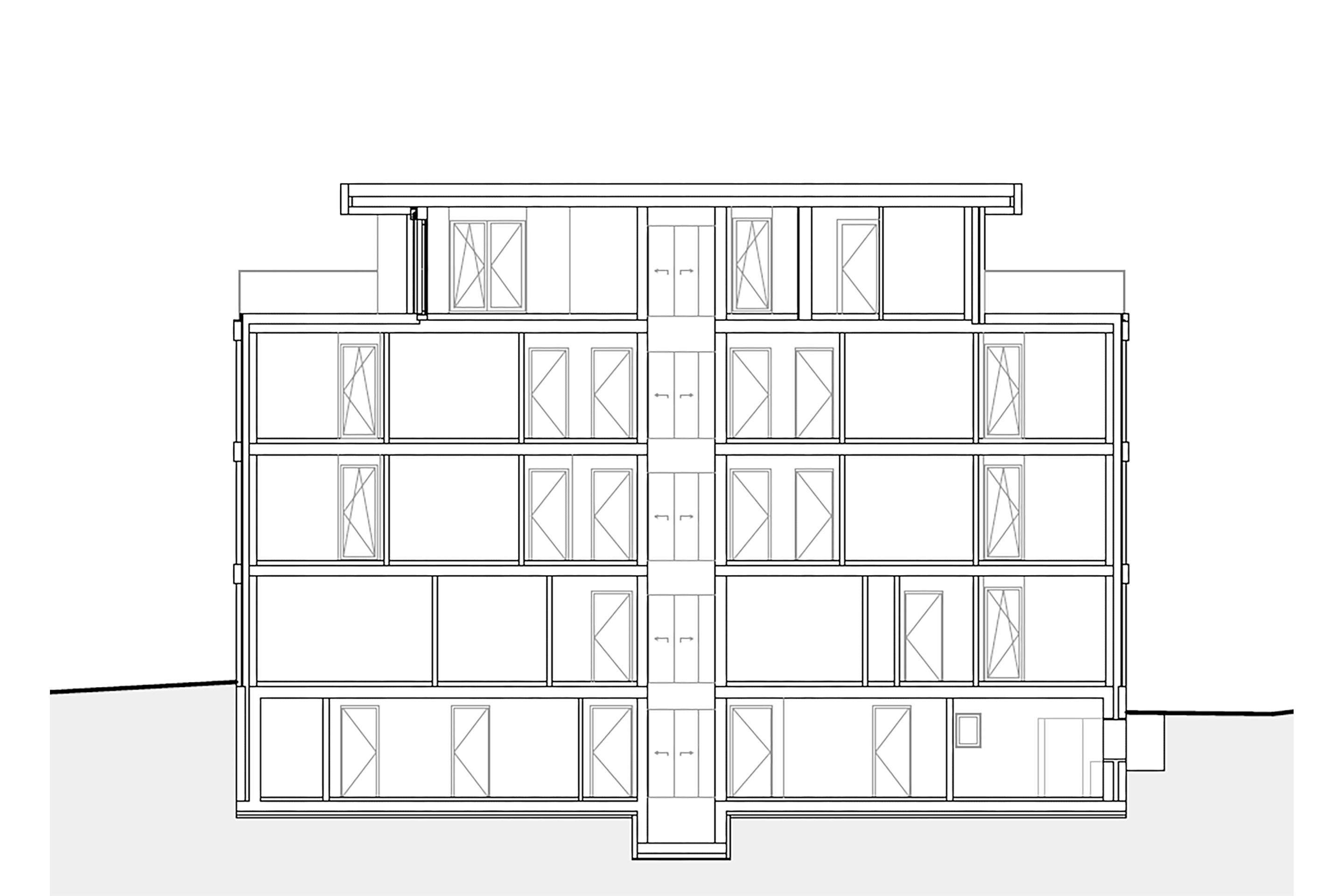
Die rechteckige Parzelle gab die Geometrie des Neubaus vor: Das durchgängig orthogonale Volumen erstreckt sich über vier Etagen und bietet Platz für sechs Wohnungen. Ein hinter der Nordfassade platziertes Treppenhaus erschliesst die Stockwerke des zweispännigen Punktbaus. Die Wohnungen in den Regelgeschossen verfügen über je zwei Zimmer, ein zentral angeordnetes Bad, einen grosszügigen Wohn- und Essbereich sowie eine gegen Südosten oder Südwesten ausgerichtete Loggia.

Die Grundrisse im 1. und 2. Geschoss sind achsensymmetrisch, was sich vor allem an der Südfassade abbildet. Das Erdgeschoss und die Attika sowie die Fensteröffnung im Treppenhaus brechen mit dieser Symmetrie, entziehen sich aber nicht der klaren Geometrie des Gebäudes. Graue Betonbänder unterbrechen die Klinkerwand, gliedern die Fassade horizontal und projizieren die inneren Betondecken nach aussen. Nicht zuletzt profitiert das Gebäude von einer natürlichen Hinterlüftung der Fassade, wodurch der Einsatz anderer Materialien reduziert und ein gutes Raumklima erreicht wird.

«The Wall»
Not another Brick in the Wall, Binningen BL

 

Architektur
Atelier 10 Architekten / Planwelt, Binningen


Fassadenbau
Klinker-Spezialbau, Herisau


Grundfläche (SIA 416)
680 m2


Baukosten (BKP 2)
3.5 Mio. Fr.


Fertigstellung
April 2023

Verwandte Beiträge