Lust­voll ver­blen­det: De­ko­ra­ti­ons­fas­sa­de mit Hal­tung

Nach einem Brand waren an der Aktionshalle der Roten Fabrik in Zürich umfassende Instandsetzungsmassnahmen sowie der Ersatz der Aufstockung von 1953 notwendig. In einem persönlichen Bericht zeigt eine Denkmalpflegerin, wie sich aus dem Verständnis für die Geschichte schöpferisch Neues entwickeln lässt.

Publikationsdatum
24-11-2025
Romana Martić
freie Autorin und tätig bei der Kantonalen Denkmalpflege Schaffhausen

In der Stadt Zürich existieren rund 1000 backsteinsichtige Bauten aus der Zeit zwischen 1883 und 1914.1 Unter ihnen ist die Rote Fabrik eine der bekanntesten: Das 1892–1895 als mechanische Seidenweberei erbaute Fabrikensemble ist nicht nur wegen seinem roten Backsteingewand und der prominenten Lage am See, sondern vor allem auch wegen seiner bewegten Geschichte im Zusammenhang mit den Opernhauskrawallen und der seit den 1980er-Jahren gesicherten Nutzung als Kulturzentrum tief im städtischen Bewusstsein verankert. 

In den 1970er-Jahren noch vom Abbruch bedroht, ist die Rote Fabrik seit 1981 ein kantonales Schutz­objekt und ein lebendiges Baudenkmal mit vielschichtiger Bedeutung: Sie ist industrie-, wirtschafts-, bau- sowie architekturgeschichtliches Zeugnis und als frühe Transformation eines Industrieareals und Institution alternativer Kultur von hohem sozialhistorischem Wert. Von Patti Smith über Nirvana: In der Aktions­halle – dem grössten Veranstaltungsraum der Roten Fa­brik – finden seit einem halben Jahrhundert für die Sub- und Alternativkultur prägende Konzerte statt.

Als Stadtzürcherin, die selbst schon unvergess­liche Konzerte in der Roten Fabrik erlebte, sah ich der langersehnten Instandstellung der Aktionshalle mit besonderem Interesse entgegen. 

Brand mit Folgen 

Nachdem ein Brand 2012 die Aktionshalle schwer beschädigt und die darüberliegende eingeschossige Aufstockung von 1953 mit vierzehn Atelierräumen komplett zerstört hatte, blockierte ein Rekurs von Anwohnenden das Wiederherstellungsprojekt der Stadt Zürich nach den Plänen von Kaufmann Widrig Architekten. Erst 2021 beendete das Bundesgericht den Rechtsstreit mit einem Urteil zugunsten der Stadt und im Februar 2023 – elf Jahre nach dem Brand – konnten die Bauarbeiten beginnen. Im Sommer 2025 wurde der reguläre Veranstaltungsbetrieb in der Aktionshalle wiederaufgenommen und die Ateliers in der neuen Aufstockung bezogen.

Weitere Beiträge zu Backsteinbauten finden Sie in unserem digitalen Dossier.

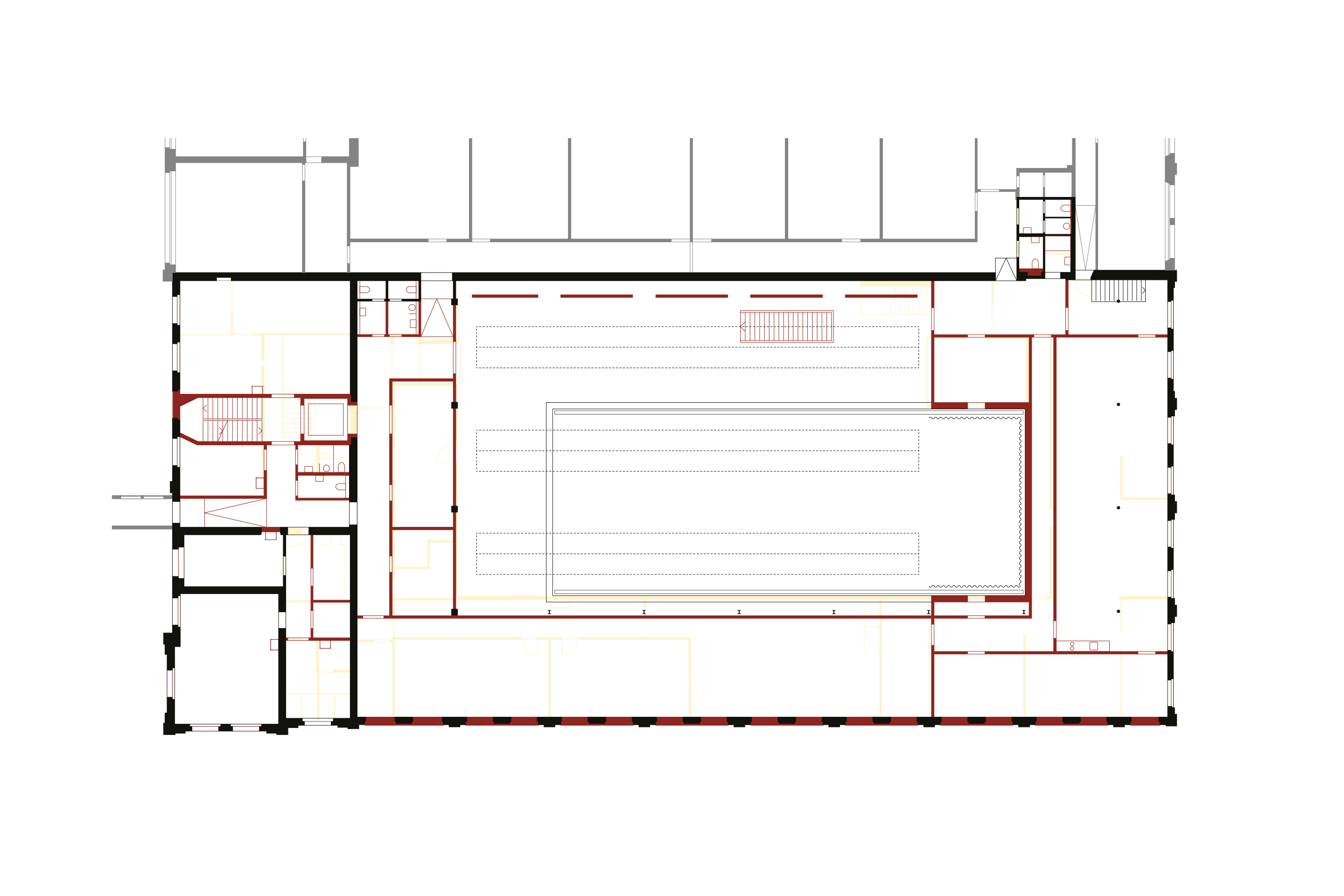
Bei der Instandsetzung der Halle mussten die Architekten aktuelle Anforderungen an den Brand- und Schallschutz berücksichtigen sowie Massnahmen zur Stärkung der Tragstruktur und Verbesserung der Energiebilanz vornehmen. Die historischen Stahlfachwerke im Inneren und die Oberlichter der Sheddächer wurden durch additive Konstruktionen statisch und energetisch ertüchtigt. Eine neue Lüftung fand in einer eigens geschaffenen Raumschicht entlang der Längsfassade an der Seestrasse Platz; eine kluge Entscheidung, da die raumintensive Technik hier gegen aussen als akustischer Puffer der Konzerthalle wirkt.

Im Zusammenhang mit den Schallschutzauflagen für die Halle erfolgte weiter eine Rückführung der Längsfassade: Die in den 1950er-Jahren in die ornamentierten Blendfelder eingeschnittenen Fenster im Obergeschoss wurden wieder mit Sichtmauerwerk geschlossen; dies jedoch nicht im Sinne einer klassischen Rekonstruktion des historistischen Originalzustands, sondern als zeitgenössische Interpretation. Die Wiederherstellung der Blendfelder schlug somit zwei Fliegen mit einer Klappe: Die hohen Schallschutzanforderungen konnten erfüllt und die ursprünglich geschlossene Erscheinung der Fassade an der Seestrasse wiederhergestellt werden.

Seidenfabrik getarnt als Schloss

Die Rote Fabrik wurde nach den Plänen des international bekannten Architekten und Ingenieurs Carl Arnold Séquin-Bronner erbaut und entstand im Zuge der textilen Industrialisierung, die in Zürich in der Gründerzeit einen erheblichen Aufschwung erlebte. Als die Rote Fabrik erbaut wurde, florierte in Zürich jedoch nicht nur die Textil-, sondern auch die Ziegelindustrie und die Stadt erlebte einen regelrechten Backsteinboom. 

Der Sichtbackstein war in Zürich in den drei Jahrzehnten vor dem ersten Weltkrieg ein äusserst beliebtes Baumaterial. Dies hing einerseits mit den reichen Lehmvorkommen am Uetliberg zusammen, andererseits mit der ab der zweiten Hälfte des 19. Jahrhunderts einsetzenden mechanischen Produktion, die das Material in Form scharfkantiger, präzise geschnittener Verblendsteine als sichtbares und somit für den Späthistorismus interessantes Fassadenmaterial etablierte. Mit der Ablösung des traditionellen Handstrichverfahrens durch das vollmaschinelle Strangpressverfahren entstanden mehrere Backsteinfabriken am Fusse des Uetlibergs.2 

Aus einer dieser Fabriken stammt auch der Verblendstein der Roten Fabrik. Mit der Backsteinverblendung erzielte Séquin-Bronner eine für die späthistoristische Zürcher Architektur typische Verfremdung: Die schlossartige, repräsentative Anlage und die höchst dekorative Verwendung des Backsteins nobilitierte die industrielle Produktionsstätte und verschleierte gleichzeitig die eigentliche Konstruktion: eine nach damals neuesten fabriktechnologischen Standards errichtete Anlage; ein hochmoderner Stahlskelettbau mit Eisenstützen, Doppel-T-Trägern und Sheddächern. Die konstruktive Innovation der Roten Fabrik blieb nach aussen verborgen und offenbart sich erst im Innern. 

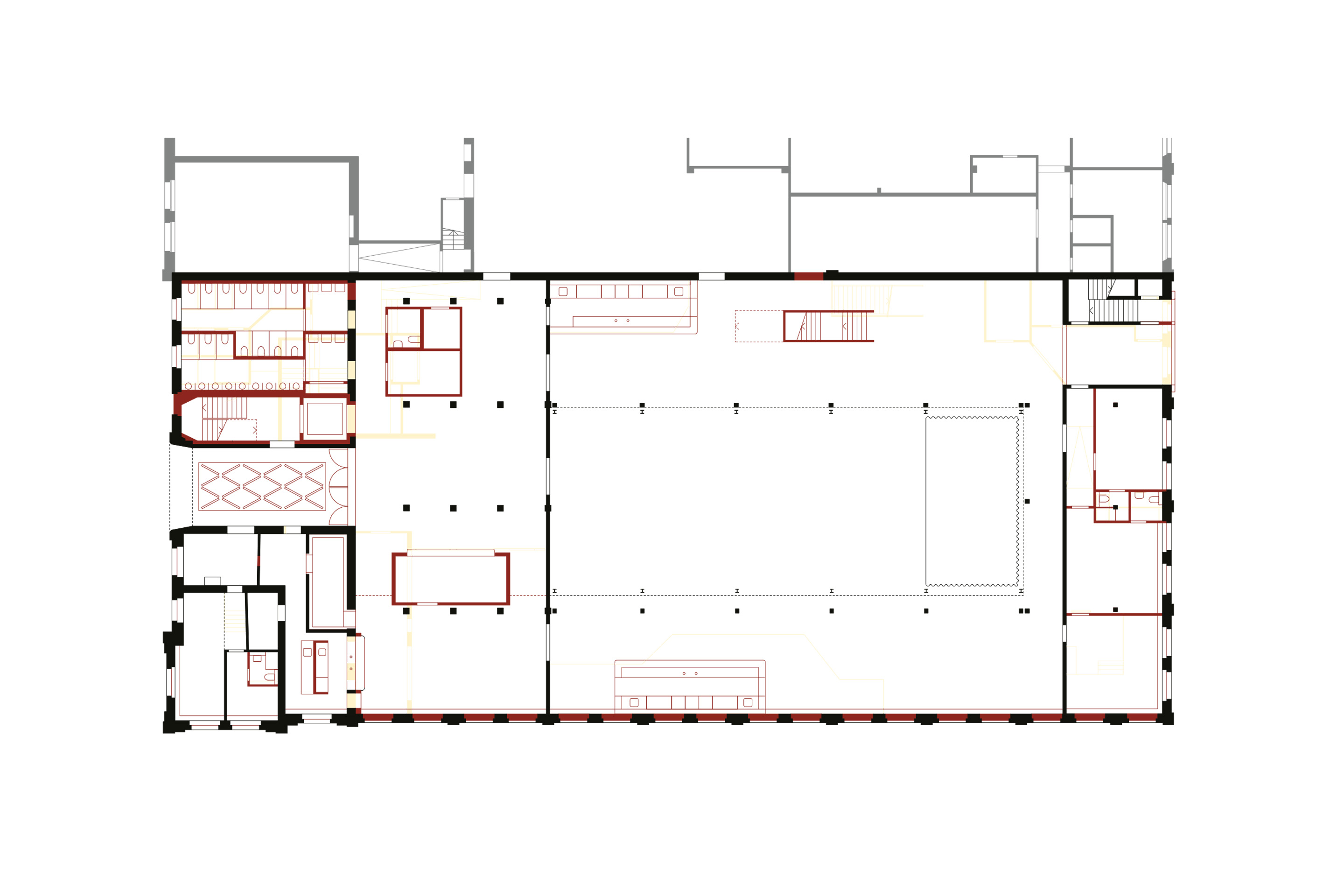
Auch die Tragstruktur der neuen Aufstockung versteckt sich hinter einer Backsteinverblendung. Da die Rote Fabrik auf einer Aufschüttung des Seeufers steht, musste der Ersatzneubau für die Ateliers in Leichtbauweise ausgeführt werden. Die Sichtback­stein­hülle der neuen Aufstockung besteht aus selbstragenden Verblendfassaden, die auf den Aussenmauern des Bestands aufliegen und vor einem gedämmten Holzbau aus Fertigelementen stehen.

Täuschung und Irritation

Als ich diesen Spätsommer die ersten Bilder der neuen, kompakteren, dafür zweigeschossigen und städtebaulich präsenteren Aufstockung sah und hörte, dass sich hinter den Sichtbacksteinen ein Holzbau verbirgt, war ich skeptisch – sowohl in Bezug auf die Volumetrie als auch auf die Konstruktion. Darf man Backsteine wie eine Attrappe vor einen Leichtbau stellen?

Ich erinnere mich noch gut an die frühere Aufstockung: Sie präsentierte sich als eingeschossiger, hallenartiger Aufbau mit langen Fensterpartien; nur die Gebäudeecken waren aus Sichtbackstein. Für mich gehörte dieser zweckmässig-moderne Aufbau immer selbstverständlich zur Roten Fabrik, ich kannte es nicht anders. Er sprach zwar eine andere Sprache als der Bestand der Jahrhundertwende, doch empfand ich ihn als zurückhaltend. Zudem war er Zeugnis der Umnutzung der ehemaligen Seidenfabrik durch die Standard Telephon und Radio AG in der zweiten Hälfte des 20. Jahrhunderts und damit Teil der Nutzungsgeschichte. 

Vor Ort und mit wachsendem Verständnis für die städtebaulichen und denkmalpflegerischen Absichten von Kaufmann Widrig Architekten relativierte sich meine anfängliche Skepsis jedoch. Ich verstand, dass mit ihr der ursprüngliche torartige Auftakt an der Seestrasse wiederhergestellt werden sollte. Und ich verstand, dass diese Massnahme zusammen mit der Wiederherstellung der Blendfelder in der Fassade an der Seestrasse auf einer dezidierten denkmalpflegerischen Haltung beruht: Die Eingriffe der 1950er-Jahre, die durch den Brand und die Zerstörung der Aufstockung weitgehend verloren gingen, sollten korrigiert und die ursprüngliche, repräsentative Eingangssituation der 1890er-Jahre zwischen dem höheren Verwaltungs- und dem niedrigeren Fabriktrakt wiederhergestellt werden, dies jedoch nicht im Sinne einer historisierenden Rekonstruktion der Kuppel von 1893, sondern, analog der Eingriffe bei den Blendfeldern, als zeitgenössische Interpretation. 

Da möglichst alle Atelierplätze, die dem Brand zum Opfer gefallen waren, wiederhergestellt werden sollten, fiel die neue Aufstockung jedoch deutlich grosszügiger aus als die einstige Kuppel. Auf den Fotografien, die ich diesen Sommer zum ersten Mal sah, erschien mir die neue Aufstockung im Verhältnis zum Bestand zu wuchtig. Vor Ort jedoch bot sich mir zu meiner Überraschung ein anderes Bild: Die Überproportionierung wirkte auf mich nicht mehr als Mangel, sondern als reizvolle Irritation, die die Motive Täuschung und Verfremdung, die dem Bestand inhärent sind und in der Aufstockung weitergeführt wurden, stärkt.

Die Aufstockung von 2025 führt das im Bestand angelegte Thema der dekorativen Verschleierung lustvoll weiter und treibt sie auf die Spitze. Auf Stürze oder andere sichtbare tragende Rahmenelemente wurde bei den grossen Fenstern vollständig verzichtet – ein Entscheid, der das Thema der Verblendung konsequent radikalisiert.

Dieser Artikel ist erschienen in TEC21 23/2025 «Harte Schale, weicher Kern».

Anmerkungen:

1 Wilko Potgeter und Stefan M. Holzer, Backsteinstadt Zürich. Der Sichtbackstein-Boom zwischen 1883 und 1914, Zürich: Park Books 2020, S. 56.

2 ebd., S. 45.

Instandsetzung Kopfteil B, Rote Fabrik, Zürich-Wollishofen


Vergabeform
Planerwahlverfahren

 

Bauherrschaft
Stadt Zürich, Immobilien, vertreten durch AHB

 

Architektur
Kaufmann Widrig Architekten, Zürich

 

Baumanagement
architekturbüro bosshard und partner, Zürich

 

Tragwerksplanung
dsp Ingenieure + Planer, Uster

 

HLS-Planung
Anex Ingenieure, Zürich

 

Kälteplanung
Refcon, Illnau

 

Elektro-Planung
Wyder Elektroplanungen

 

Baupysik und Schallschutz
Raumanzug

 

Baukosten (BKP 2)
Fr. 20 Mio.

 

Fertigstellung
2025

Verwandte Beiträge