Woh­nen in der Ga­ra­ge: Die Stra­te­gie des Ein­sied­ler­kreb­ses

Die 1913 errichtete Garage Couchirard in Lausanne durchlief im letzten Jahrhundert zahlreiche Wandlungen. Die jüngste Metamorphose in 28 Wohnungen war in Bezug auf Programm und räumliche Einschränkungen herausfordernd. Das Ergebnis aber ist einzigartig.

Publikationsdatum
28-03-2023

Die vom Architekturbüro Baud & Hoguer 1913 errichtete Garage Couchirard ist ein besonders früher Zeuge des aufkommenden Automobilismus in Lausanne. Im Quartier Prélaz, damals am Westrand der Stadt gelegen, verband das Gebäude mehrere programmatische Anforderungen an einen noch undefinierten Bautyp: Mitarbeiterwohnungen, aber auch eine grosse Werkstatt, mit einem Traggerüst aus einer Reihe von rohen Betonrahmen, gut zwei Etagen hoch und 40 Meter lang, sowie ein Verkaufsraum mit grossen Schaufenstern zur angrenzenden Avenue de Morges.

Obwohl die Garage auch ein Arbeitsort war, wandte die Fassade sich dezidiert an das anvisierte Käuferpublikum, indem sie gewisse Charakteristika der bourgeoisen Umgebung aufnahm. Die gemauerten Wände waren bis hin zu den ochsenblutroten Fugen mit Quadersteinimitat verkleidet, die Fensteröffnungen mit Segmentbögen akzentuiert und mit klassischen Profilen versehen, und das kupferfarbene Dach fügte sich in die Ästhetik der angrenzenden Wohnbebauung ein. Im Laufe der Jahre wurde das Gebäude an die Trends der Automobilindustrie angepasst: 1937 wurden die Schaufenster vergrössert (Florio architecte), 1948 eine sanft geschwungene Betondecke aufgesetzt (Jaquerod & Jaton), die an die Streamline-Karosserien der Nachkriegszeit erinnerte.

2015 mussten die Couchirard-Werkstätten erneut angepasst werden, diesmal an die Ära der schrittweisen Zurückdrängung der Autos aus den europäischen Stadtzentren. Das seiner ursprünglichen Bestimmung beraubte und lange leerstehende Gebäude sollte umgenutzt werden und nur noch Wohnungen beherbergen – ein kostbares Gut im Stadtzentrum, zu dem die einstige Peripherie längst gehört.

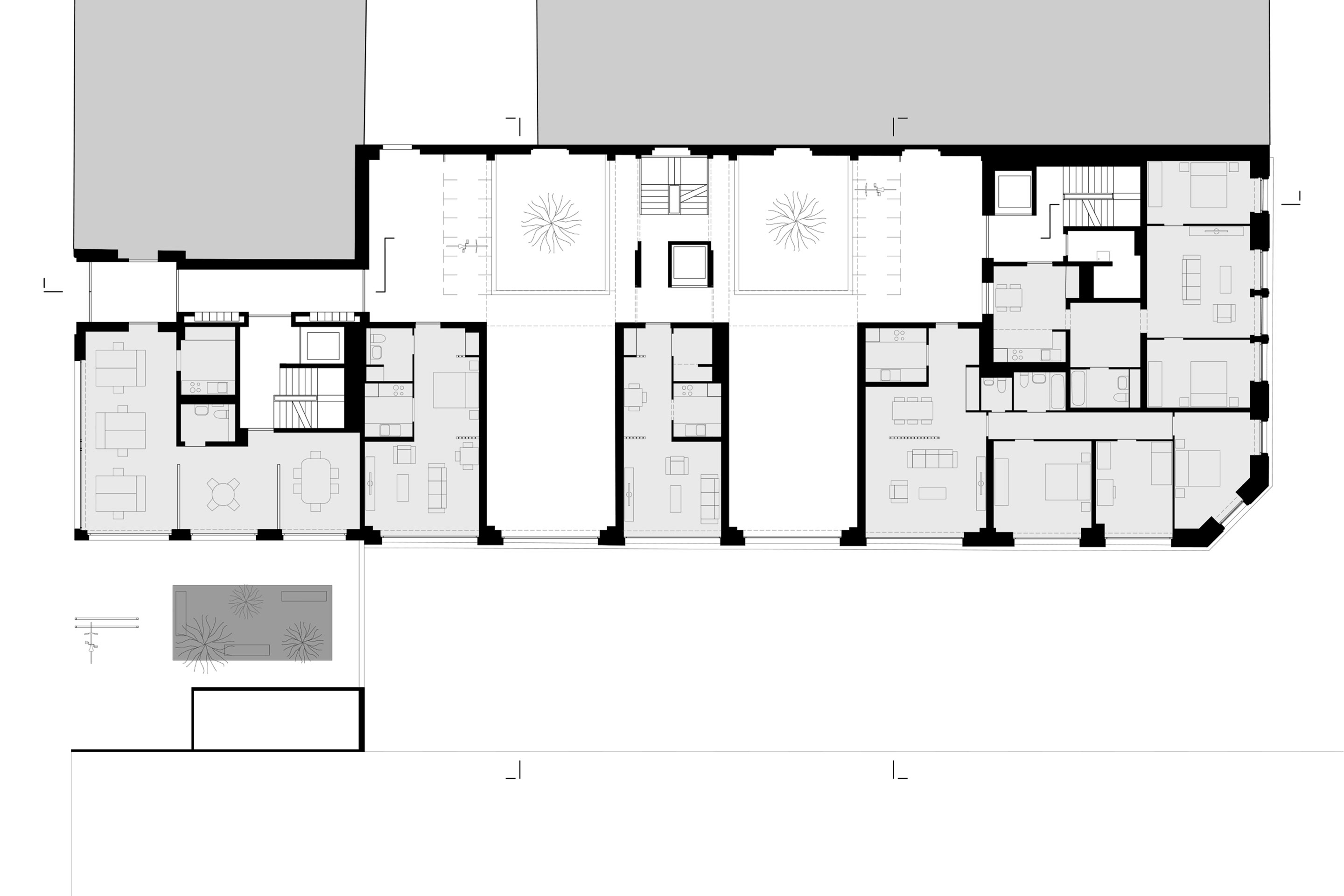
Wohnen in einer Garage: ein geometrisches Problem

Die schwierigste Metamorphose in der Geschichte der Garage Couchirard – der Einbau von 28 neuen Wohnungen in die vorhandene Gebäudehülle – sollte eine grosse Herausforderung werden. Tatsächlich ist der Bau komplex: im Grundriss ist er 18 Meter tief, seine Rückseite grenzt an Nachbargebäude und ist daher komplett fensterlos. In den ersten Skizzen versuchten die Architekten, alle Wohnungen entlang der Fensterfront zur Strasse zu platzieren. Doch war die gefragte Anzahl an Wohneinheiten so nicht zu realisieren, und die Rückseite blieb ungenutzt.

Also setzte man auf Einzigartigkeit. Die neuen Wohnungen profitieren vom Genius Loci – nicht allein dank der erhaltenen Elemente wie restaurierter dekorativer Malereien, sondern auch aufgrund der räumlichen Gegebenheiten, die dazu zwangen, Grundrisse zu knicken und zu wenden, bis einzigartige Raumlösungen gefunden waren.

Der Werkstattbau wurde dazu in Streifen eingeteilt, und die Wohnungen nehmen jeweils die gesamte verfügbare Tiefe der 18 Meter ein. Das ist nur dadurch möglich, dass ein Streifen mit einer Wohnung sich jeweils abwechselt mit einem für gemeinschaftlich genutzte offene Räume. Letztere bestehen aus überdachten und von oben belichteten Innenhöfen an der Rückseite sowie über Gemeinschaftsbereiche an der Strassenfassade. Das sorgt nicht allein für genügend Lichteinfall in das tiefe Gebäude, sondern bietet zugleich Gemeinschaftsräume von hoher Qualität. Die Erschliessungswege zwischen den Wohnungen durchqueren die offenen Bereiche hier und da, insbesondere als Passerellen, die in den grosszügigen Raum der ehemaligen Garage gehängt sind.

Der Grundriss musste darüber hinaus auf eine weitere Einschränkung reagieren: An der Strassenseite erfolgt der Lichteinfall in die Wohnungen über die vorhandenen Fensteröffnungen, deren imposante Proportionen aktuelle Standards der Raumhöhe weit übertreffen. Die Architekten beschlossen, diese bestehenden Öffnungen nicht zu unterteilen und zur Fassade hin eine entsprechend üppige Deckenhöhe zuzulassen.

Die betroffenen Wohnungen öffnen sich auf lichtdurchflutete, grosszügige Wohnräume. In den Etagen darüber profitieren die Wohnungen von einem erhöhten Wohnraum, der durch ein Glasdach erhellt wird. Um das Licht der Innenhöfe optimal zu nutzen, sind die Wohnungen im Erdgeschoss als umgekehrte Maisonetten mit unten liegenden Schlafzimmern konzipiert. Durch diese Herausforderungen ist eine Reihe atypischer, ganz besonderer Wohnungen entstanden. Die Anpassung an eine zunächst ungeeignete Hülle führte letztlich zu unerwartet grosszügigen Räumen.

Neu und Alt

Diese originellen, in den Bestandbau geschobenen Wohnungen werden durch zwei Aufstockungen aus Fertigbetonteilen an den beiden Enden der einstigen Autowerkstatt ergänzt, was eine höhere Dichte ergibt. Bei diesen Wohnungen bestehen die erwähnten Herausforderungen nicht, und sie entsprechen eher dem – wenn auch hochwertigen – Standard. Der Bezug zum Bestand wird in der Fassade durch subtile Anklänge hergestellt, die das Auge wahrnimmt, ohne sie wirklich identifizieren zu müssen: eine Brüstung mit Proportion, Körnung und Farbgebung nahe am Bestehenden; ein ähnlich vertieftes Profil an den Fensterumrandungen; und wieder die ortstypischen roten Fugen, die das gesamte Gebäude vereinheitlichen.

Der Bezug zum Bestand beschränkt sich gleichwohl nicht auf Andeutungen, und es kommt nie zum Pastiche. Jeder architektonische Eingriff hebt sich in Form und Material vom Alten ab. Die Anklänge sind subtil, die Neugestaltung bleibt deutlich sichtbar. So verfügen die zwischen den Betonrahmen eingerichteten Wohnungen unter dem Garagendach über Trennwände aus Metallträgern und Zementsteinen, was für eine klare Abgrenzung von alt und neu sorgt. Mit ihrem erdigen Ton und den lebendigen offenen Fugen strahlen die Steine eine willkommene optische Wärme aus und schaffen zudem eine akustische Dämpfung in den offenen Räumen.

Generell bleibt die neue Gestaltung dem bereits ursprünglich etablierten Paradoxon des Orts treu: eine Industriehalle mit überraschenden Verzierungen und Ornamenten an der Fassade wie auch im Innenraum. In diesem Sinne wurde etwa ein Fliesenmotiv speziell für die Gemeinschaftsräume entworfen. Das markante Design – ein dunkelroter Streifen auf weissem Grund – bewahrt eine gewisse respektvolle Distanz zum Bestehenden und knüpft zugleich an die Zementsteinwände an.

Bei diesem Projekt stellt das historische Gebäude genau das dar, was Aldo Rossi als «primäres Element» der Stadt definierte: Ein Bauwerk, das durch seine Transformation erhalten bleibt und ein aktiver Beitrag zur Stadterneuerung ist. Ermöglicht wurde das auch durch den niedrigen Schutzstatus im Denkmalinventar, der breite architektonische Möglichkeiten zum Umbau zuliess.

Lernen vom Einsiedlerkrebs

Die neue Residence Couchirard ist in vielerlei Hinsicht ein beispielhaftes Projekt. Zunächst aus städtebaulicher Perspektive: Das Gebäude trägt zum Erhalt des Stadtzentrums und zugleich zu dessen Verdichtung bei. Dann aufgrund der allegorischen Bedeutung: Die postfossile Ära zeigt sich hier als ein weites Feld der Möglichkeiten und als Inspiration für attraktive Lebensformen. Und schliesslich bietet der Bau einen unerwarteten architektonischen Reichtum. Die Wohnanlage schlüpft in die Garage wie der Einsiedlerkrebs in eine leere Muschel. Dadurch gelingt es, die zahlreichen Einschränkungen ins Positive zu wenden. Letztlich ist auch die projekteigene Symbolik aussagekräftig: Der von der Garage zur Résidence gewordene Bau setzt neue Prioritäten: Wohnen ist wichtiger als Fahren.

Résidence Couchirard, Lausanne (VD)

 

Bauherrschaft
PREVIVA – Fonds de prévoyance des professionnels du travail, Paudex

 

Architektur
O. Rochat architectes, Lausanne, in Zusammenarbeit mit Atelier Arthys, Lausanne

 

Tragkonstruktion
Kälin et Associés, Lausanne

 

Auftragsart
Direktauftrag

 

Entwurf und Realisierung
2017–2022

 

Fläche
SIA 416 4820 m2
 

Kosten Leistungsphasen 1–5 :
19 Mio Franken

Verwandte Beiträge