Tan­zen mit Ma­rio Bot­ta

Rückwärtig angebaut

An einen postmodernen Museumsbau anzubauen ist schwierig. Die norwegischen Architekten Snøhetta haben ein eigenständiges Volumen als Hintergrundkulisse erstellt, das im Innern mit dem Altbau verschmilzt.

Publikationsdatum
05-01-2017
Revision
07-01-2017

Drei Jahre lang war das San Francisco Museum of Modern Art (SFMoMA) für die Erweiterung des Museums von ­Mario Botta geschlossen. Anlass der Expansion war das Versprechen von Donald Fisher, dem Gründer der Bekleidungskette Gap, 1500 seiner Kunstwerke dem Museum für 100 Jahre zu leihen. Zuvor hatte er 2007 erfolglos versucht, sein eigenes Museum in Presidio zu errichten.

Mit 16 000 m2 bietet der Anbau nun dreimal mehr Ausstellungsfläche als das alte SFMoMA von ­Botta. Kostenpunkt: 305 Millionen Dollar (der Botta-Bau kostete 60 Millionen). Wichtige und bekannte Werke der Kunstgeschichte bilden die Blockbuster der Sammlung. So ist ein Stockwerk der deutschen Kunst von Richter, Polke, Kiefer, Gursky und Ruff gewidmet. Weitere 3000 Werke von Privatsammlern wurden in einer beispielhaften Kampagne als Geschenke oder Dauerleihgaben akquiriert. Nach einem internationalen Wettbewerb und einer zweijährigen Planungsphase wurden die nor­we­gi­schen Architekten Snøhetta 2010 ausgewählt, um den Anbau auszuführen (weitere Finalisten: Adjaye As­sociates, Diller Scofidio + Renfro und Foster + Partners).

Erweiterung als Herausforderung

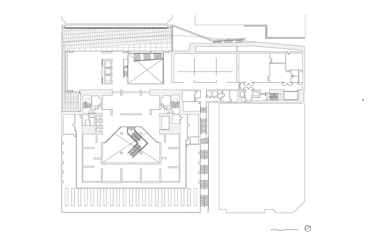
Anbauen an den Bestand ist besonders im engen Stadtgefüge von San Francisco eine Herausforderung. Als Bauplatz stand nur die Rückseite des Museums zur Verfügung – ein Parkplatz mit Feuerwehrzufahrt. Zu den Rahmenbedingungen für die norwegischen Architekten gehörten die Aufgabe, die Museumsfläche in einer wenig attraktiven Lage zu verdreifachen und das Museum besser in die Stadt und Öffentlichkeit zu integrieren, sowie die Frage, wie ein solch ikonischer postmoderner Bau überhaupt erweitert werden kann. Durch den neuen Eingang an der Seite und den Skulpturengarten im 2. Geschoss vor einer «Living Wall», einer mit 19442 (zu 40 % einheimischen) Pflanzen bestückten ­grünen Wand setzt sich die Architektur deutlich als eigenständiges Bauwerk ab.

Der Neubau orientiert sich mit seinen Öffnungen und der Terrasse im 7. Geschoss vor allem zur anderen, also entgegengesetzten Seite der Stadt hin. Er steht sozusagen Rücken an Rücken mit Mario Bottas Bau. Damit schaffen die Architekten lichtdurchflutete Treppen­räume, die an Felsschluchten erinnern, weil sie sich nach oben immer weiter verjüngen, und drei Stockwerke mit administrativen Räumen, die zu beiden Seiten Fensterbänder haben.

Das Museum ist von zwei Seiten im Erdgeschoss öffentlich zugänglich. Auf der Seite des Snøhetta-Gebäudes befindet sich die Skulptur «Sequence» von Richard Serra, die man von Treppen aus Ahornholz aus überblicken kann. Auf der anderen Seite wurde im Botta-Gebäude das rotundenartige, dunkle und enge Treppenhaus entfernt und durch eine neue, ebenfalls skulpturale, aber offene Treppe ersetzt  –  nur die vier Säulen blieben als Reminiszenz übrig. Im ersten Stock treffen sich die beiden Häuser im Foyer des Museums. Aufzüge, im Neubau auch Treppen, führen in die sechs Ausstellungsgeschosse hinauf.

In den kleinen Studienmodellen wird deutlich, wie sich die Architekten um eine Positionierung zu Mario Botta bemühen. Craig Dykers von Snøhetta fasst es folgendermassen zusammen: «Beim Tanzen wollen Sie Ihren Partner nicht kopieren, Sie möchten ihn ergänzen, damit Sie sich nicht auf die Füsse treten.»1 Was von aussen als zwei komplett getrennte Baukörper erscheint, die Rücken an Rücken aneinanderlehnen, wird im Innern vollkommen verzahnt und miteinander verschmolzen. Mit der Architekturtheoretikerin Sylvia Lavin gesprochen, die jüngst eine Theorie des «Kissing»2 entwickelt hat, könnte die innere Verschmelzung den Kuss der ansonsten individuellen Charaktere verkörpern – denn es ist mehr als der blosse Tanz mit Mario Botta.

Wo der Alt- und wo der Neubau anfängt und aufhört, bemerkt man im Innern oftmals kaum, so gekonnt wurden die Materialien, Farben und Räume aufeinander abgestimmt. Das neue Gebäude ist mit einem Spalt vom alten Gebäude abgesetzt, was im 3. Obergeschoss durch ein kleines Fenster sichtbar und im Boden auf jedem Stock durch zwei Metallleisten gekennzeichnet ist. Dies war wegen der Erdbebensicherheit notwendig, damit sich die Gebäudeteile hin- und herbewegen können. Im Ernstfall klappen die Bodenplanken nach oben und öffnen den Spalt.

Mario Botta selbst ist der Meinung, die Architekten hätten seinen Bau nicht gewürdigt: «Das Gebäude, wie ich es entworfen habe, mass sich mit dem Himmel oder mit der Spitze des 30er-Jahre-Wolkenkrat­zers, der dahinter aufragt. Die Erweiterung jetzt wirkt wie eine stumme Wand, wie eine aufgeblähte Garde­robe.»3 Tatsächlich gehen die Meinungen der Kritiker weit ausein­ander, ob hier eine geeignete Anfügung geglückt ist oder ob man Snøhetta nicht besser eine Tabula rasa überlassen hätte, um einen Neuanfang zu wagen. Gera­de die Zurücknahme des Neubaus wird oftmals als störend empfunden. Ausserdem wird der Verlust der boxartigen Innentreppe von Botta bemängelt. Wegen der grossen Anzahl Besucher (1.2 Millionen pro Jahr) war jedoch eine bessere Zirkulation durch das Haus notwendig, was mit dem alten Treppenhaus nicht möglich war.

Ausgeklügelte Lichtführung

Eine Gemeinsamkeit der beiden Architekturen ist die spezielle Behandlung des Lichts. Die Galerien im Neubau, von denen die ersten drei allein den 260 ausgestellten Werken der Doris und Donald Fisher Collection gewidmet sind, werden von einem ausgeklügelten künstlichen Lichtsystem erhellt. Es wirft keine Schatten und erzeugt ein angenehmes Licht, das man nicht wahrnimmt und das die Kunstwerke in ihrer Wirkung unterstützt. Alle technischen Details wie Feuermelder, Sprinklersystem und Klimaanlage wurden versteckt.

Die verschiedenen Sammlungen auf den Stockwerken erhalten ihre eigene Deckenausprägung. Die Decken in den ersten drei Etagen haben eine gewölbte Struktur, während sie in den beiden folgenden Geschossen flach sind. Im 7. Stockwerk mit der zeitgenössischen Kunst sind die technischen und konstruktiven Details an der Decke sichtbar. Durch die enge Zusammenarbeit mit den Kuratoren wurden klare, unaufgeregte Räume im Dienst der Kunst entwickelt, die bis auf eine Wand im Zentrum des Neubaus alle flexibel wandelbar sind.

Naturphänomene als Inspiration

Schon in ihrem ersten international aufsehenerregenden Gebäude, dem Opernhaus in Oslo, versinnbildlichen Snøhetta einen Eisberg im Wasser. Theatralisch erhebt sich die Architektur über der Bucht. Damit der zehnstöckige Gebäudeblock des SFMoMA nicht nur als dienendes Bauwerk hinter jenem von Mario Botta steht und völlig unspektakulär verschwindet, haben sich die Architekten auch hier eine wirkungsvolle Fassade ausgedacht, die dem Bau seine eigene Identität verleiht. Die unregelmässig wirkende Faltung besteht aus über 700 unterschiedlichen, aus Fiberglas verstärkten, weniger als einen Zentimeter starken Polymerpaneelen (FRP), die das Museum als Curtain Wall umschliessen.

Je nach Lichteinfall scheinen sich ihre gefalteten ­horizontalen Bänder durch die jeweils andersartigen Licht- und Schattenwürfe zu verschieben. Durch die Beimischung von Sand aus der Monterey Bay im Süden von San Francisco wirkt die Fassade auch manchmal wie eine glitzernde Oberfläche. Die Vorlage für die klippenartige Fassadenformation hätten sie, so Architekt Craig Dykers, vor Ort von den aufziehenden Nebelwänden in San Francisco bekommen. Aber auch die spiegelnde Wasseroberfläche der Meeresbucht findet sich wieder. Die Natur oder der Nebel als Hintergrundkulisse zu Botta erzeugt, transferiert und abstrahiert Gefühle beim Betrachter. Man schaudert nicht vor dem Gebäude, empfindet es aber auch nicht als schön. Diese Ambivalenz macht die Qualität des Neubaus aus.

Anmerkungen

1 «You don’t want to copy your dance partner, you want to be complimentary to it so you don’t step on each other’s toes.» Craig Dykers von Snøhetta im Interview mit Dan Howarth, Dezeen 02.05.2015 (Übersetzung: Christof Rostert).
2 Sylvia Lavin: Kissing Architecture, Princeton University Press, 2011.
3 «The building, as I conceived it, compared itself either with the sky or with the top of the skyscraper dating back to the 1930s at its back. Now the expan­sion looks like a mute wall, an enlarged wardrobe.» Mario Botta in: Jenna McKnight «Postmodern architecture: San Francisco Museum of Modern Art by Mario Botta», Dezeen 10.08.2015 (Übersetzung: Christof Rostert).

Am Bau Beteiligte
 

Bauherrschaft
San Francisco Museum of Modern Art
 

Architektur
Snøhetta, Oslo
 

Bauingenieure
Magnusson Klemencic Associates, Chicago
 

HLKE-Planung
Arup, London
 

Nachhaltigkeitsplanung
Atelier Ten, San Francisco
 

Wettbewerb
2010, internationaler Architekturwettbewerb
 

Wettbewerbsteilnehmer
Snøhetta, Adjaye Associates, Diller Scofidio + Renfro, und Foster + Partners
 

Fertigstellung
2016

Verwandte Beiträge