Vom Pfle­ge­heim zum Ge­mein­schafts­woh­nen

Salathé Architekten Basel haben im Auftrag der Wohnstadt Bau- und Verwaltungsgenossenschaft ein Pflegeheim in Wohnraum transformiert. Mit wenigen Eingriffen wird die Bausubstanz aufgewertet und ein Anreiz geschaffen, das Eigenheim für eine kleinere, aber qualitativ gleichwertige Wohnung einzutauschen. 

Publikationsdatum
08-04-2026
Katharina Marchal
Architektin Dipl. Arch. SIA, Fachjournalistin SFJ BR. Sie schreibt als Kriti­kerin für die Fachpresse und betreut Architekturbüros in der PR- und  Medienarbeit.

An der deutschen Grenze des Kantons Basel-Stadt liegt die beliebte Wohngemeinde Riehen. Umgeben von Wald und Feldern leben hier viele Familien und ältere Menschen in grosszügig geschnittenen Mehr- oder Einfamilienhäusern. Die niedrige Fluktuation zeigt, dass sich Paare oft auch nach dem Auszug der Kinder nicht von ihrem Eigenheim trennen wollen, obwohl der Wohnraum unternutzt ist. Das zu Wohnzwecken umgebaute Dominikushaus schafft darum ein Angebot an günstigem Wohnraum in kleineren Einheiten, was in Riehen als Mangelware bezeichnet werden kann. 

Die Wohnstadt Bau- und Verwaltungsgenossenschaft erkannte das Umnutzungspotenzial, als sie das Grundstück des ehemaligen Pflegeheims im Baurecht übernahm. Das Gebäude wurde 1969 von Schachenmann + Berger Architekten realisiert. Für die Umnutzung schrieb die Genossenschaft 2021 einen Studienauftrag aus, mit dem Ziel, so viel Bausubstanz wie möglich zu erhalten und dem intakten Bestand damit einen weiteren Lebenszyklus zu schenken. 

Weitere spannende Projekte finden Sie in unserem E-Dossier «Umbau»

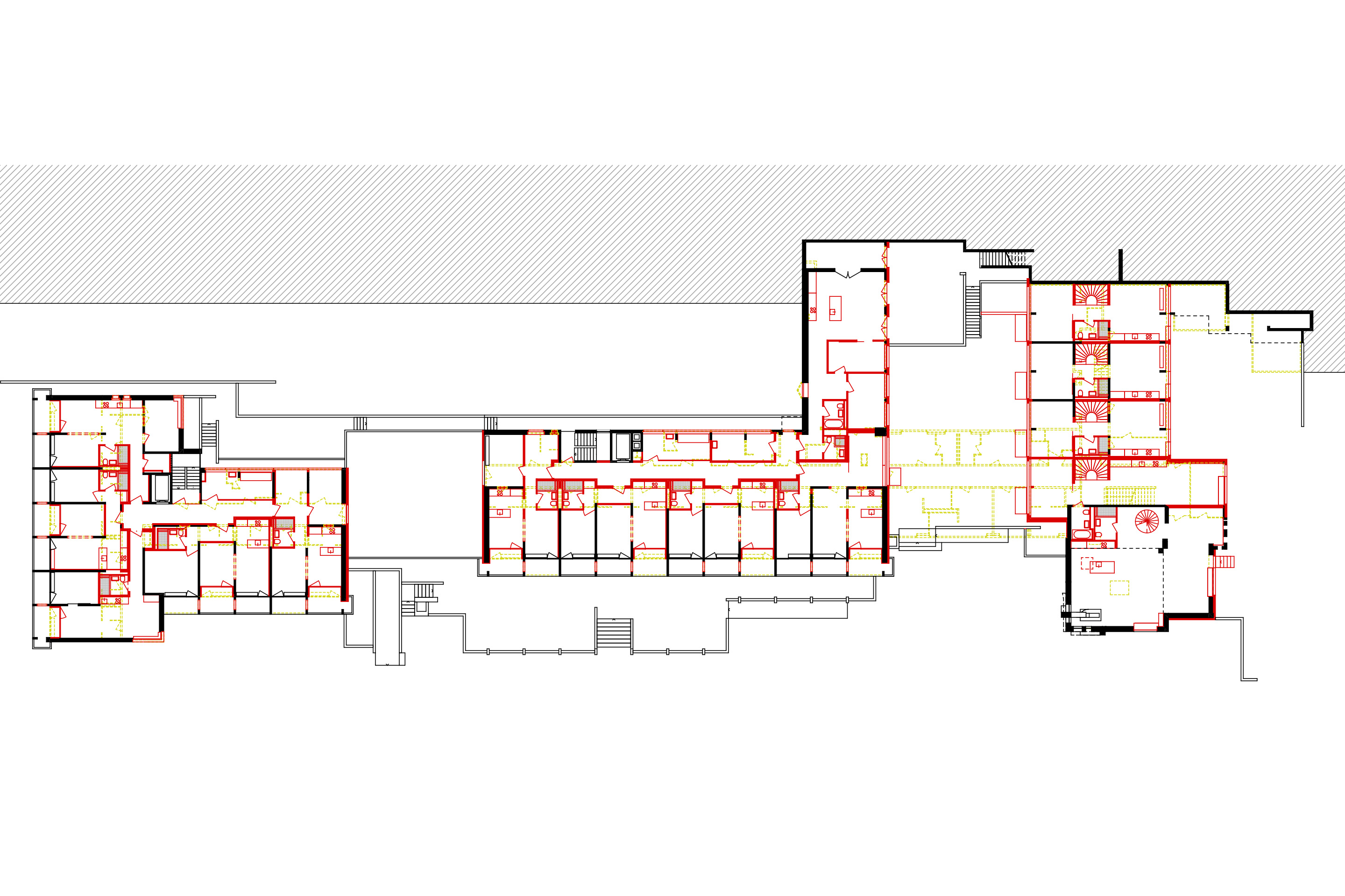
Salathé Architekten Basel überzeugten mit einem Projekt, bei dem der längliche Baukörper aus drei zusammengesetzten Einheiten nicht nur grösstenteils erhalten blieb, sondern zudem aufgewertet wurde. Geschickt brachen sie das rigide Gefüge auf und gestalteten daraus drei Wohnhäuser mit jeweils eigenständigen Zugängen entlang der Albert Oeri-Strasse.

Die neuen Wohnungen bieten offene, flexibel nutzbare Wohnräume. Dennoch ging die architektonische Identität des Bestands mit der Transformation der ehemals kleinteiligen Zellenstrukturen des Pflegeheims in offene Grundrisse nicht verloren, denn die Schottenstruktur bleibt an der Strassenfassade weiterhin sichtbar.

Günstiger Wohnraum für 50+

Das breite Angebot an unterschiedlichen Wohnungen umfasst heute insgesamt 34 Genossenschaftswohnungen mit bis zu 5.5 Zimmern, eine Loftwohnung im ehemaligen Andachtsraum sowie vier Reiheneinfamilienhäuser. Der Fokus liegt auf den kleineren Wohnungen zu moderaten Kostenmietpreisen. 

Der Wohnstadt-Geschäftsleiter Andreas Herbster hebt hervor, «dass das genossenschaftliche Wohnprojekt einen Beitrag leisten möchte, dass Einfamilienhäuser oder grössere Wohnungen, die heute noch von Einzelpersonen oder Paaren bewohnt werden, wieder für Familien frei werden».1 

Tatsächlich haben sich schon vor der Fertigstellung einige Personen der Altersgruppe 50+ aus Riehen für die 1.5 und 2-Zimmer-Wohnungen angemeldet. So wirkt das Projekt nicht nur der Wohnraumknappheit, sondern auch der Wohnraumteuerung in Riehen entgegen.

Strategie für den Bestand 

Um im Domino – so der neue Name der Wohnanlage – einen neuen Quartierplatz zu schaffen, wurde der Zwischenbau zum ehemaligen Kapellenraum am Ende des Gebäudes entfernt. Der Platz bildet das neue Zentrum; um ihn herum liegen vor allem die grösseren Wohnungen im mittleren Flügel und die Reihenhäuser für die Familien im östlichen Bereich. 

Der Platz steht den Bewohnerinnen und Bewohnern als Treffpunkt, Spielplatz für die Kinder und Vorplatz für den Eingang zum Gemeinschaftsraum im Erdgeschoss zur Verfügung. Zudem fördert der Rückbau des Traktes die Durchlässigkeit zum umliegenden Quartier. 

Hinter den Reihenhäusern führt eine Aussentreppe zu den höher liegenden, begrünten Aussenanlagen, die gemeinschaftlich genutzt werden. Auch die Dachterrasse wurde erweitert und dient als weiteres gemeinschaftliches Aussenraumangebot.

Kreislaufgerechtes Bauen

Salathé Architekten Basel können auf einen grossen Erfahrungsschatz im Umbau und in der Sanierung von Bestandsbauten zurückgreifen. Der Zufall will es, dass sie bereits 2021 ein jüngeres Wohnprojekt von Schachenmann + Berger Architekten in Basel saniert und umgebaut haben. 

Die Architektur des Dominikushauses besticht durch ihre klare moderne Sprache. Salathé haben nicht nur die Baustruktur des Bestandes aus den 1960er-Jahren grösstenteils erhalten, sondern im Sinne eines ressourcenschonenden Bauens auch Bauteile und Materialien wiederverwendet. 

Weiterdenken des Bestands 

Historische Tropenholzfenster, Innentüren, Schrankfronten sowie Natursteinplatten wurden sorgfältig ausgebaut, aufgearbeitet und soweit möglich wieder in die Neubauten integriert. Hingegen mussten die Haustechnik komplett erneuert und die Servicezonen reorganisiert werden. 

Die Neunutzung des Dominikushauses steht exemplarisch für einen respektvollen Umgang mit bestehender Bausubstanz. Die Verbindung von architektonischer Kontinuität, sozialem Anspruch und ökologischer Verantwortung schafft ein zukunftsfähiges Wohnensemble – mit klarer städtebaulicher Haltung und starkem Bezug zum Quartier.

Wo einst ältere Menschen einen Pflegeplatz fanden, wohnen heute Familien, Paare und Alleinstehende gemeinschaftlich zusammen. Hoffentlich kann das Wohnprojekt Domino als Vorbild für weitere Wohnprojekte dienen, denn es zeigt, dass es sich in mehrfacher Hinsicht lohnt, mehr kleinere Wohnungen zu moderaten Preisen anzubieten.

Anmerkungen
1 Riehener Zeitung 17. 12. 2021

Umbau Domino, Riehen
 

Bauherrschaft: 
Wohnstadt Bau- und Verwaltungsgenossenschaft, Basel

Architektur: 
Salathé Architekten Basel, Basel

Tragkonstruktion: 
Schmidt + Partner, Basel

HLK-Planung: 
Graf Ingenieure, Basel

Elektroingenieur: 
Enelco, Muttenz

 

Bauphysik: 
Gartenmann Engineering, Basel

Landschaftsarchitektur: 
Albiez de Tomasi, Zürich

Baumanagement/Bauleitung:
Glaser Baupartner, Basel
 

Nutzungen: 
34 Wohnungen: Studio bis 5,5 Zimmer 
4 Reihenfamilienhäuser
1 Loftwohnung in der ehemaligen Kapelle

Grundfläche (SIA 416): 
4850 m2 Geschossfläche

Fertigstellung: Ende 2025
 

Verwandte Beiträge