Ori­gen-Turm: Ro­tes Holz­zei­chen

Auf dem Julierpass in der Gemeinde Bivio steht bis Ende Sommer 2020 ein einzigartiger roter Turm: das Origen-Theater. Entstanden ist er auf Initiative von Giovanni Netzer, der damit zur ­Standortentwicklung der Bergregion beitragen will.

Publikationsdatum
03-05-2019

Wie kommt ein Theater in Form eines Holzturms auf 2284 m ü. M. zwischen Berggipfel zu stehen? Um das zu begreifen, empfiehlt sich ein Blick auf die Vorgeschichte dieses Vorhabens, ein Erkunden der Ideen des Intendanten und Initianten Giovanni Netzer, der das Theaterfestival Origen im Jahr 2005 gegründet hat.

«Origen» ist ein rätoromanisches Wort, gleichbedeutend mit «Ursprung». Der lateinische Wortstamm enthält auch den Begriff der Schöpfung, das Erschaffen originärer, also eigenständiger Werke. Für Giovanni Netzer ist dieser Name Programm. Er arbeitet mit archaischen Theaterformen, erobert Landschaftsräume so gut wie den sakralen Raum, errichtet temporäre Bauten und sucht den theatralen Bezug zur Realität und auch zur Landschaft, die zur imposanten Kulisse wird.

Die Urzelle: das Dorf Riom

Das Origen Festival Cultural findet seit 2006 jedes Jahr in Riom statt, einem Dorf mit 180 Einwohnern im Tal Oberhalbstein (Gemeinde Surses) zwischen Tiefencastel und Julierpass. Stammhäuser von Origen sind die mittelalterliche Burg Riom und eine umgebaute Scheune, die «Clavadeira des Monsieur Carisch».

In die um 1227 erbaute Burg, die Origen im Baurecht zur Verfügung steht, soll nach einem Projekt von Architekt Peter Zumthor eine «Salle modulable» eingebaut werden, die eine ganzjährige Spielzeit erlaubt. Doch dieses Projekt muss warten – anders die Ende des 19. Jahrhunderts erstellte grosse Clavadeira, die etwa 80 Jahre leer stand. Sie wurde 2015 durch die Architekten Carmen Gasser und Remo Derungs, Präsident des Verbands der Schweizer Innenarchitekten, mit einem subtilen Umbau wachgeküsst und in eine Spielstätte für das Origen verwandelt.

Giovanni Netzer hat mit seinen Inszenierungen immer wieder ungewohnte, aber den Themen entsprechende Spielorte in der umliegenden Landschaft gesucht und gefunden: Dorfplätze, Gärten, Kirchen, Werkhallen, Eisenbahnwaggons, Reithallen, Ruinen und selbst die Oberfläche eines Stausees. Aber der Julierpass hat es Giovanni Netzer besonders angetan, er nennt ihn einen magischen, ja mystischen Ort. Der Pass, der das Engadin mit Oberhalbstein verbindet, wurde bereits von den Römern begangen. Sie errichteten dort einen Jupitertempel, von dem noch Säulenfragmente zeugen. Später im Mittelalter stand dort eine Sebastianskapelle.

Giovanni Netzer hat für eine auf vier Jahre beschränkte Zeit dort oben einen Theaterturm bauen lassen, der in nichts an herkömmliche Theaterarchitekturen erinnert, eher an den Turmbau zu Babel. Denn auch hier werden unterschiedliche Sprachen gesprochen, Graubünden kennt ja als einziger Kanton drei Amtssprachen: Deutsch, Italienisch und Rätoromanisch, und Origen macht sowieso vor keinem Sprachgebrauch halt. Geplant hat Netzer den Turm zuerst in Eigenregie anhand unterschiedlicher Studienmodelle. In eine bau­fähige Form umgesetzt hat ihn Ingenieur Walter Bieler.

Wichtig waren Netzer die Fensteröffnungen. Sie lassen je nach Lichteinfall und herrschender Witterung die Umgebung Teil einer jeden Inszenierung im Turm­innern sein. Und es ist wirklich ein Erlebnis, die schattendunklen Treppen zu besteigen und in jedem der fünf Stockwerke eine andere Sicht zu erleben. Vollends umwerfend müsste der Blick vom flachen Dach aus sein. Allerdings ist es für das Publikum aus Sicherheitsgründen nicht zugänglich, da der Zugang über eine steile Treppe zu schmal ist.

Ein Tragwerk mit schwebender Bühne

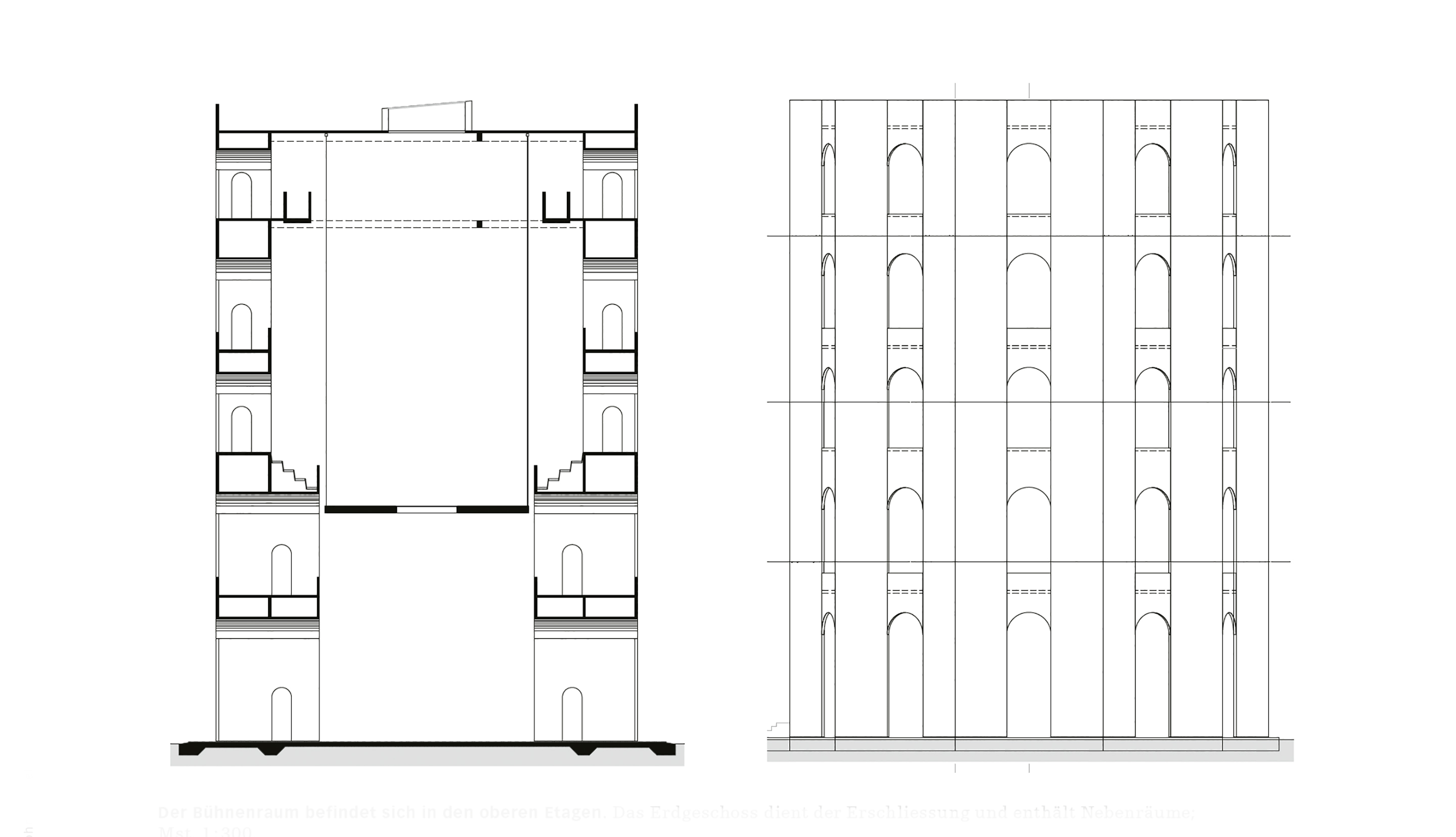
Im Grundriss verbinden sich zehn fünfeckige Einzel­türme. Darin untergebracht sind auch die Zugangs­treppen zu den Publikumslogen. Konstruiert ist das Ganze mit einschaligen Wänden aus 900 und 120 mm dicken Massivholzplatten von 20 m2 Fläche, gehalten von 28 000 Schrauben. Der Turm ist 30 m hoch und misst im Grundriss übereck 22 m. Zwölf Wochen investierte die Holzbaufirma Uffer für die Schwertransporte und die Montage der 900 Holzteile.

Bis 220 Zuschauer finden in den Bogenfenstern mit ­ihren Logen Platz. Die Bühne schwebt an Stahlseilen aufgehängt im Zentrum, lässt sich heben und senken und schafft so unterschiedliche Raumkonstellationen. Die Zuschauer an der Brüstung der Logen haben gute Sicht auf das Bühnengeschehen, die hinteren Sitz- und Stehplätze sind in dieser Hinsicht indes nicht eben ­optimal. Die zehn Einzeltürme umfassen den Bühnenraum, sind untereinander verbunden und ­stützen  sich so gegenseitig. Die Konstruktion wider­steht Wind­ge­schwindigkeiten von bis zu 250 km/h.

Viel Würde und neue Perspektiven

An der Einweihung Ende Juli 2017 sprach Bundesrat Alain Berset davon, wie dieser Turm Resilienz, Robust­heit, Solidarität und Stabilität versinnbildliche. Er mache klar, dass Weltoffenheit kein fester Zustand sei, sondern ein starkes Bewusstsein dafür, dass Identitätsfindung nie zu Ende sei, nie zu Ende sein könne.

Im Kulturerbejahr 2018 würdigte der Schwei­zer Heimatschutz die Nova Fundaziun Origen mit dem ­Wakkerpreis. Die Auszeichnung ging damit ausnahmsweise nicht an eine Gemeinde, sondern an eine Kultur­institution, die im Wissen um den Wert der Vergangenheit einem Dorf neue Impulse gibt und Perspektiven für eine stolze Zukunft eröffnet. Die Auszeichnung wurde der Bündner Kulturinstitution für ihren vorbildhaften Umgang mit der vorhandenen Baukultur im Berg­dorf Riom zugesprochen.

Giovanni Netzer versteht die Auszeichnung als Ermutigung für zukünftige Vorhaben – und präsentierte anlässlich der Medienkonferenz das Entwicklungsprojekt «Malancuneia». Im historischen Dorfzentrum von Riom sollen vier leer stehende Gebäude umgenutzt und neu belebt werden. Mit Textilwerkstätten, Bildungsräumen, einem Besucherzentrum und sanft renovierten Wohnräumen will Origen neue Arbeitsplätze schaffen – und der drohenden Abwanderung aus dem Bergtal entgegen­treten.

Um das Projekt «Malancuneia» zu realisieren, sind Investitionen in die In­frastruktur in einer Gesamthöhe von 7.6 Mio. Fr. notwendig. Erste Schritte für eine erfolgreiche Finanzierung sind getan: Die Regierung des Kantons Graubünden hat der Stiftung rund eine Million Franken in Aussicht gestellt, falls es Origen gelingt, die restlichen Gelder zu beschaffen.

2018 wurde der Turm auch mit dem Preis «Marketing und Architektur» ausgezeichnet. Durch ­seine expressive Form bildet er eine der Massnahmen, mit denen Netzer zur Standortentwicklung der Bergregion beiträgt. Gemäss Netzer hat der Turm 2.5 Mio. Fr. gekostet. Mit 700 000 Fr. unterstützte der Kanton Graubünden das Vorhaben, beigetragen haben auch Spenden von Sponsoren. Vier Jahre soll dieses einmalige Theaterhaus auf dem Julierpass stehen, bis es 2020 wieder ab­gebaut wird. Die Aufführungen waren letztes Jahr restlos ausverkauft, und auch für die verbleibenden Spielzeiten dürfte der Erfolg gesichert sein. 

Magazine

Verwandte Beiträge