Neue Aus­sich­ten

Wohnhäuser in Stahlbauweise zählen eher zu den Exoten in der Schweizer Architekturlandschaft. Die wenigen vorhandenen Beispiele machen eine Assoziation an die «Solothurner Schule» unumgänglich. Aber lassen sich die Lehren und Vorstellungen von damals in unsere Zeit übertragen? Im bernischen Bolligen startete der Architekt Rolf Mühlethaler einen Versuch.

Publikationsdatum
14-05-2020

Bolligen im Kanton Bern ist geprägt von einem heterogenen Wohnungsbau. Eingeschossige Flachbauten mit Innenhöfen, Einfamilienhäuser mit Gärten und einige alte Bauernhäuser oder Landgasthöfe dominieren das Ortsbild. Diese klein­teilige Struktur und die Nähe zur Natur sind die ­Qualitäten des Orts. Im westlichen Teil von Bolligen ­hat Rolf Mühlethaler ein Doppelwohnhaus in Stahlbauweise realisiert. Bei dieser für Wohnbauten in der Schweiz doch eher unüblichen Materialisierung liegen die ­Fragen nach dem «Warum» und «Woher» nicht weit. 

Rolf Mühlethaler nennt die «Solothurner Schule» und insbesondere seinen Mentor Max Schlup, dessen Mitarbeiter er von 1980 bis 1983 war, als seine geistigen Vorbilder in Architekturbelangen. Die Architekten der «Solothurner Schule» erhielten besonders in den 1950er- und 1960er-Jahren zahlreiche Aufträge für Schulen, Kirchen, Verwaltungsgebäude und einige wenige Wohnhäuser, wobei sich ihre Bauten im Industrie- und Siedlungsgürtel des Jura­südfusses von Biel bis Aarau konzentrierten.1

Die Gruppe, zu der auch Alfons Barth, Fritz Haller, Max Schlup und Franz Füeg gehörten, verfolgten eine Architektur der Einfachheit. Sie strebten nach einer klaren und modularen Bauweise mit Kuben aus Materialien wie Beton, Stahl und Glas. Ihr Ziel war es, das Schaffen des deutsch­-amerikanischen Architekten ­Ludwig Mies van der Rohe und die Geis­tes­haltung hinter den kalifornischen «Case Study Houses» auf die Schweizer Verhältnisse zu übertragen, weiterzuent­wickeln und den hiesigen Verhältnissen anzupassen. Technologie und standardisierte Baustrukturen waren ihnen dabei nicht einfach Hilfsmittel des Bauens, sondern wertvolles Instrumentarium.

In den USA setzten die Entwürfe und Musterhäuser, die für das 1945 initiierte «Case Study House Program» entstanden, neue Massstäbe im modernen Wohnungsbau: Die industriell gefertigten Stahlbauten genügten allen Ansprüchen an Komfort und Wohnlichkeit und beeinflussten die Architektur nachhaltig. Die Bauteile werden im Sinn Mies van der Rohes auf ein Minimum beschränkt und in zwei Kategorien unterschieden, nämlich tragende und füllende Elemente. Die architektonische Form entsteht durch die dünnen Profile der Stahlträger, die Glasscheiben oder Holzpaneele umrahmen, ergänzt durch Elemente wie Schlösser, Griffe, Türfallen und kleine Öffnungen.2

Und auch Mühlethalers Bauherrschaften, zwei verschwisterte Familien, sehen ihr Haus in einer Linie mit diesen Referenzen: «Uns hat die klare amerikanische Architektursprache aus den 1940er- und 1950er-Jahren immer gefallen. Wir waren mehrmals in Palm Springs und wurden von Albert Frey, Richard Neutra und Gebäuden wie den Case Study Homes inspiriert.»

Hinzu kommt, dass der Vater der beiden Bauherrschaften ein Schulfreund Rolf Mühlethalers ist. Die Arbeit des Architekten war also in der Familie bekannt, und seine Handschrift wurde als «einzigartig» wahrgenommen. Seine Kom­petenz im Stahlbau eignete sich Rolf Mühle­thaler auch im Büro von Frank Geisen an, in dem er von 1983 bis 1985 arbeitete.

Symmetrisches Wohnen

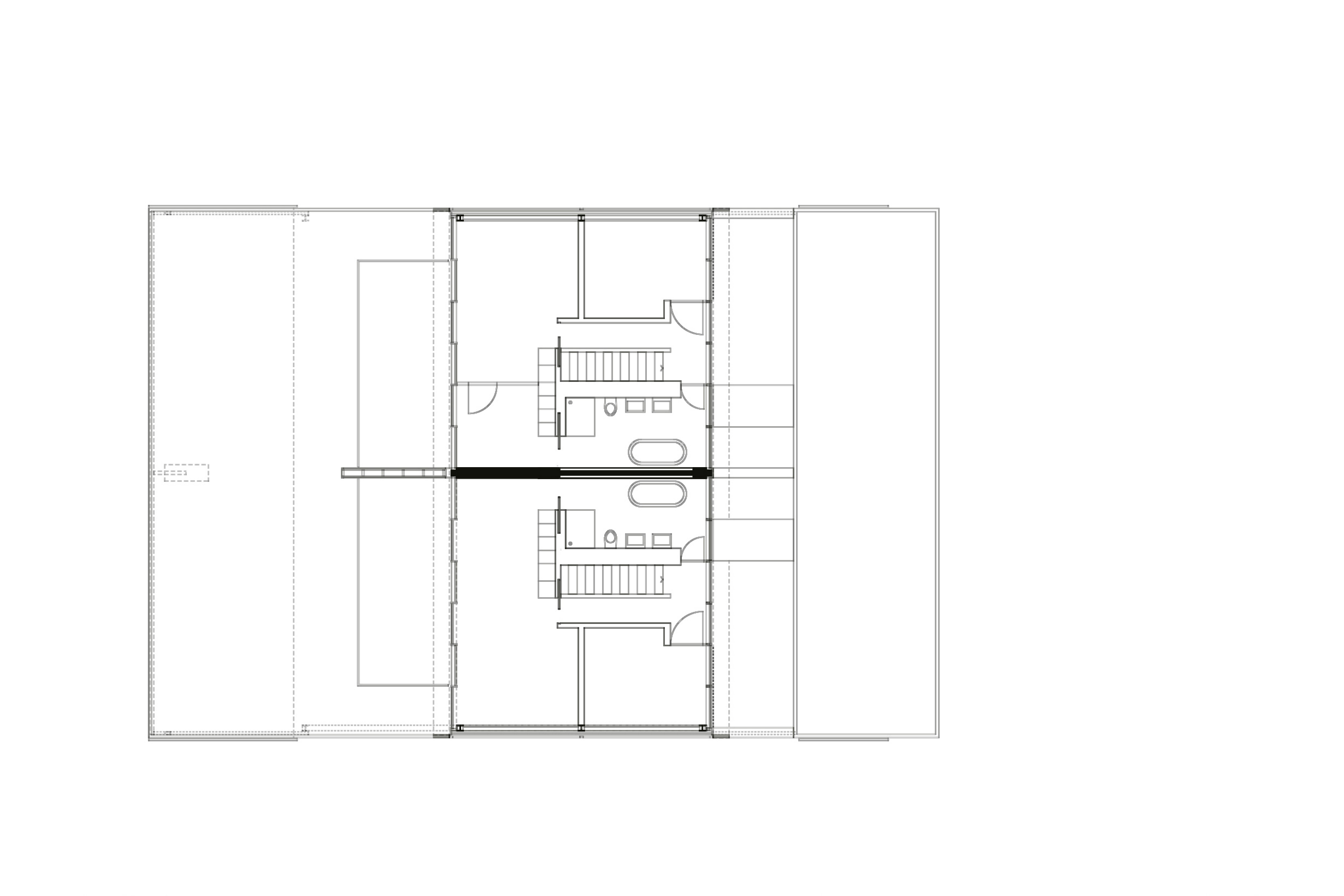
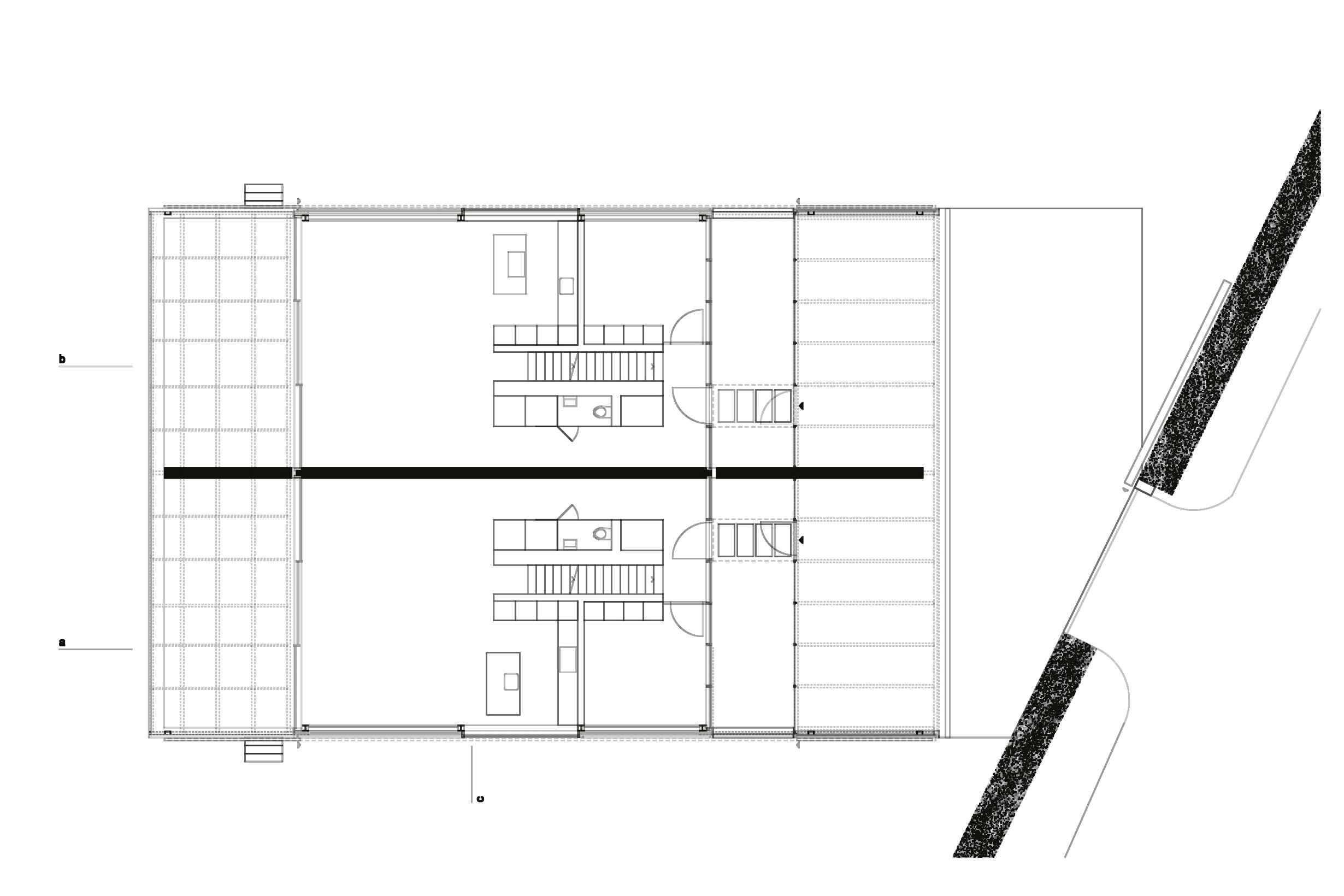
Das Grundstück, auf dem das Doppelwohnhaus realisiert wurde, weist eine leichte Hanglage auf. Gegen Südwesten erlaubt die Topografie einen weiten Panoramablick über die umgebende Landschaft bis in die Berge. Die ganze Architektur scheint auf diese Aussicht ausgerichtet zu sein: Der Architekt hat die Panoramafassade mit einer grossflächigen Verglasung transparent gestaltet. Die Seitenfassaden sind hingegen mehrheitlich geschlossen. Ein grosszügiger, überdachter Aussenraum auf der Aussichtsseite unterstreicht die Wichtigkeit dieser Gebäudefassade.

Der dreigeschossige Neubau weist ein Unter­geschoss, ein Erdgeschoss und ein Attikageschoss auf, und die beiden Wohnungen sind in Längsrichtung ­achssymmetrisch aufgebaut. Die Bodenplatte liegt auf ­Strassenniveau, und durch das leicht nach Südwesten abfallende Gelände und die nach innen versetzten ­Kellerwände scheint das Gebäude fast über dem Boden zu schweben.

Eine ausführlichere Version dieses Artikels finden Sie in TEC21 13–14/2020 «Wohnhäuser in Stahl».

Auf der Strassenseite ist ein Carport vorgelagert, durch den man das Wohnhaus betritt. In der dahinter liegenden Schicht folgt ein Atrium, das den Carport vom Wohnbereich trennt. Die Wohnräume selbst sind offen gestaltet und durch einen in der Eingangssituation ­stehenden möbelartigen Einbau zoniert. Darin befinden sich sowohl die Treppen ins Ober- und Unter­geschoss als auch die Gebäudetechnik und das Gäste-WC.

In Richtung der Aussenwand hat der Architekt die ­Küche und ein flexibel nutzbaren Raum angeordnet. Zwischen dem Einbau und der Betontrennwand führt der Durchgang zum Wohn- und Essbereich. In diesem grosszügigen Raum ist der Fokus allein auf die Aussicht ­gerichtet, denn er besitzt nur dieses eine Fenster, die Seitenwände sind komplett geschlossen. Lediglich im Bereich der Küche und im Atrium hat die Seitenwand je ein weiteres Fenster, das, wie auch die Frontfenster, ganz nach Gusto der Bewohner mit Lamellenschiebe­läden geschlossen werden kann.

Anmerkungen

1 Christine Zürcher, Das Haus Süess in Starrkirch-Wil 1963–65 – Ein Bau des Architekten Hans Zaugg, in:
Archäologie und Denkmalpflege im Kanton Solothurn (Jahrbücher ADSO), ADSO 10, 2005.

2 R.M. und M.Ae., Reduktion auf das Notwendige – Wohnhaus Gautschi, Zofingen, 1986, und Atelierhaus Iseli, Bern, 1987. In: werk, bauen + wohnen Nr. 4/1988.

AM BAU BETELIGTE / DATEN

Architektur
Rolf Mühlethaler Architekt, Bern; Christof Burger, Ullrich Meuter, Mario Moor, Matthias Schilling

Tragwerksplanung
Schnetzer Puskas Ingenieure, Bern

Stahlbau
MLG Holding, Bern

Metallbau Fassade und Spenglerarbeiten
Tecton, Bern

HLKS
Gruner Roschi

Konstruktionsart
Stahl-Beton-Verbundbauweise: Stahlskelettbau auf Stahlbetonsockel, mittige Sichtbetontrennwand  und Stahl-Beton-Verbunddecken

Tonnage Stahl
20 t

Stahlsorten
S355JO, S235JR

Fertigstellung
April 2018

Auszeichnung
Gewinner Prix Acier 2018

Verwandte Beiträge