Ein Leucht­turm an der Son­ne

Umbau und Ersatzneubau Mühle Grüsch

Nach rund zwei Jahren Bauzeit steht die Mühle in Grüsch kurz vor dem Bezug. Eine Transformation, bei der vieles gleich bleibt: Zwar wird aus dem ehemaligen Produktionsstandort ein Wohngebäude, doch ein Grossteil der vorhandenen Materialien konnte erneut verwendet werden. Das Architekturbüro Ritter Schumacher projektierte den Bau analog zu den Nachhaltigkeitsrichtlinien des DGNB-Labels. Und erreicht dabei ganz nebenbei ein Novum: das erste DGNB-Zertifikat für Rückbau in der Schweiz. 

Publikationsdatum
05-11-2025
Tina Cieslik
Head of Multimedia | espazium digital lab; Korrespondentin Architektur/Innenarchitektur TEC21

Wer von Landquart aus Richtung Davos fährt, durchquert das Prättigau. Das Tal des Flusses Landquart erstreckt sich in Ost-West-Richtung auf einer Länge von knapp 40 km zwischen dem schluchtartigen Taleingang, der Klus, und dem Silvrettagebiet bei Klosters. Wer für die Reise den Zug nimmt, den empfing kurz hinter dem Chlustunnel lange Zeit die 1939 erbaute Mühle in Grüsch mit ihrem markanten, rund 30 m hohen Siloturm.

Die Mühle, deren Ursprünge bis ins 16. Jahrhundert belegt sind, wurde 2010 stillgelegt. Es folgten kulturelle Zwischennutzungen und verschiedene Projekte, die beispielsweise Loftwohnungen im Stockwerkeigentum im alten Hauptgebäude vorsahen. Keines der Projekte war ökonomisch tragbar – bis 2022 ein neues Konzept entwickelt wurde: Anstelle von teuren Eigentumswohnungen wurden 52 Mietwohnungen im Hauptgebäude und im Siloturm vorgesehen, ein Angebot, das vor Ort auf grosses Interesse stiess. 

Grüsch ist keine klassische Zweitwohnungsgemeinde, sondern hat mit produzierendem Gewerbe vor Ort und mit dem Spital im benachbarten Schiers auch eine relevante Anzahl an lokalen Arbeitsplätzen zu bieten. Dementsprechend benötigt die Gemeinde günstig gelegenen, bezahlbaren Wohnraum. 

Alter Beton in neuem Turm

Das interdisziplinäre Planungsteam entschied sich für eine nachhaltige Bauweise, die weit über die üblichen Standards hinausgeht – aus Neugier, was in dieser Hinsicht möglich ist und aus der intrinsischen Motivation, der kommenden Generation ein qualitätvolles Gebäude zu hinterlassen. 

Das Konzept sollte alle drei Pfeiler der Nachhaltigkeit umfassen: die Ökologie durch einen möglichst hohen Grad an Kreislaufwirtschaft und einen kleinen Fussabdruck der verwendeten Materialien, die Ökonomie durch Energieeffizienz in Bau und Betrieb sowie die soziale Nachhaltigkeit durch das Angebot dringend benötigter Kleinwohnungen. 

Die Arbeiten erfolgten gemäss den Standards der Deutschen Gesellschaft für Nachhaltiges Bauen (DGNB). Und zwar alle Arbeiten, auch der Rückbau des Siloturms. Aus statischen Gründen war hier eine Umnutzung nicht sinnvoll: Die Wände waren zu schmal dimensioniert, die Raumkammern zu klein. Stattdessen entschieden sich die Planerinnen und Planer, das Material aus dem Rückbau wiederzuverwenden. Durch seine singuläre Nutzung war der Turm dafür prädestiniert, bestand er doch weitgehend aus dem Monomaterial Beton. 

Die Verantwortlichen gewannen das Betonwerk der GRIBAG AG für ihr Vorgehen. Der Altbeton wurde im rund 25 km entfernten Werk Untervaz gebrochen, aufbereitet und dem neu zu verbauenden Beton als Zuschlagstoff beigemischt. Was logisch klingt, war in der Umsetzung nicht ganz so einfach: Die nach Normanhang ND hergestellten Rezepturen mit einem Betongranulatanteil von 75-95% und CO2-reduziertem Zement erfüllten zwar die Anforderungen. Doch der hohe Recyclinganteil führte dazu, dass der Beton bei Wärme schneller ansteifte als herkömmliche Produkte. Diese Besonderheit musste der Baumeister berücksichtigen, bis das Resultat schliesslich überzeugte. Doch das Vorgehen lohnte sich: Das Projekt erhielt ein DGNB-Zertifikat für Rückbau – das erste in der Schweiz.

Durch das angestrebte DGNB-Zertifikat waren die Beteiligten zudem dazu verpflichtet, eine Materialstrombilanz über das gesamte Projekt zu erstellen und diese Bilanz, wo möglich, zu optimieren. Ein Vorgehen, das ohne Zertifikat in diesem Ausmass wohl nicht praktiziert worden wäre. Wann immer möglich wurden daher die Abbruchmaterialien aus dem Bestand wiederverwendet. Dazu prüfte man zunächst alle Bauteile des Bestands – je nach Funktionalität und Qualität der Elemente sowie ihrer Rolle innerhalb der Tragkonstruktion entschied man, welche Elemente erhalten blieben.

Rezykliertes Material, anspruchsvolle Baustelle

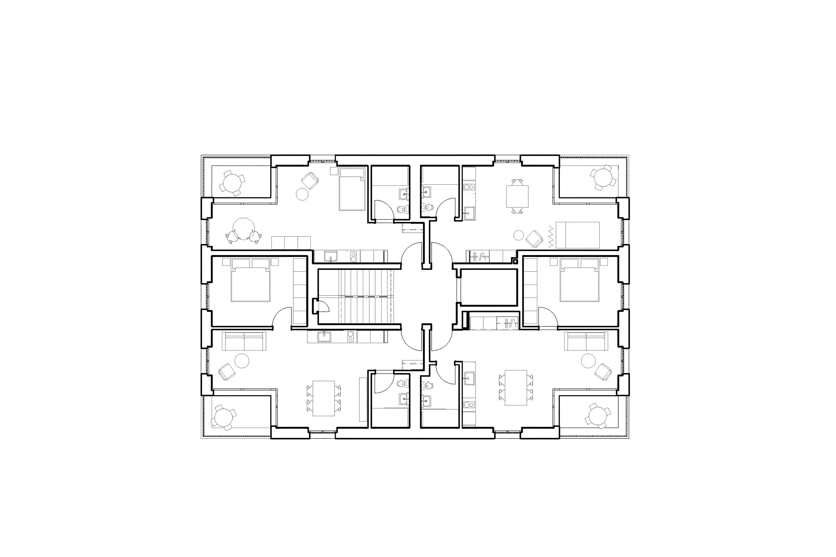
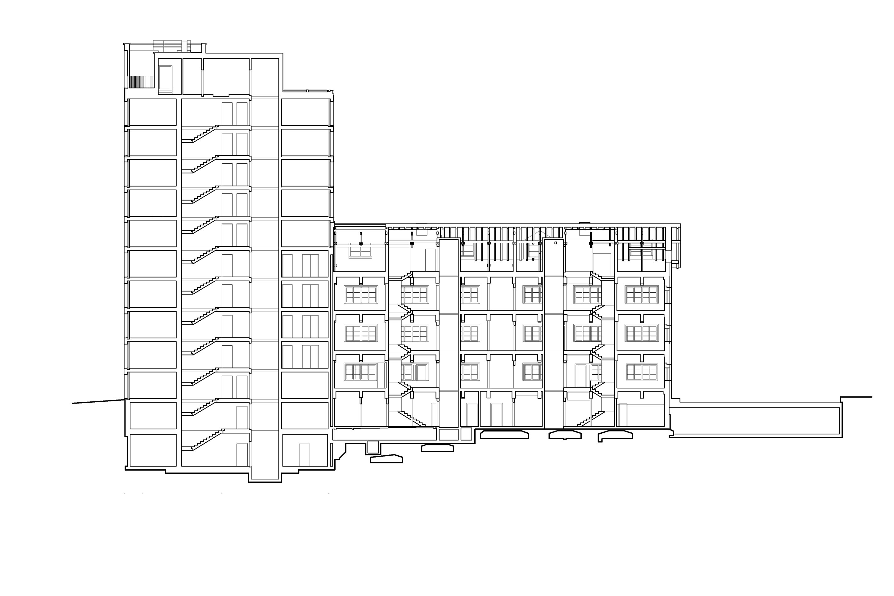
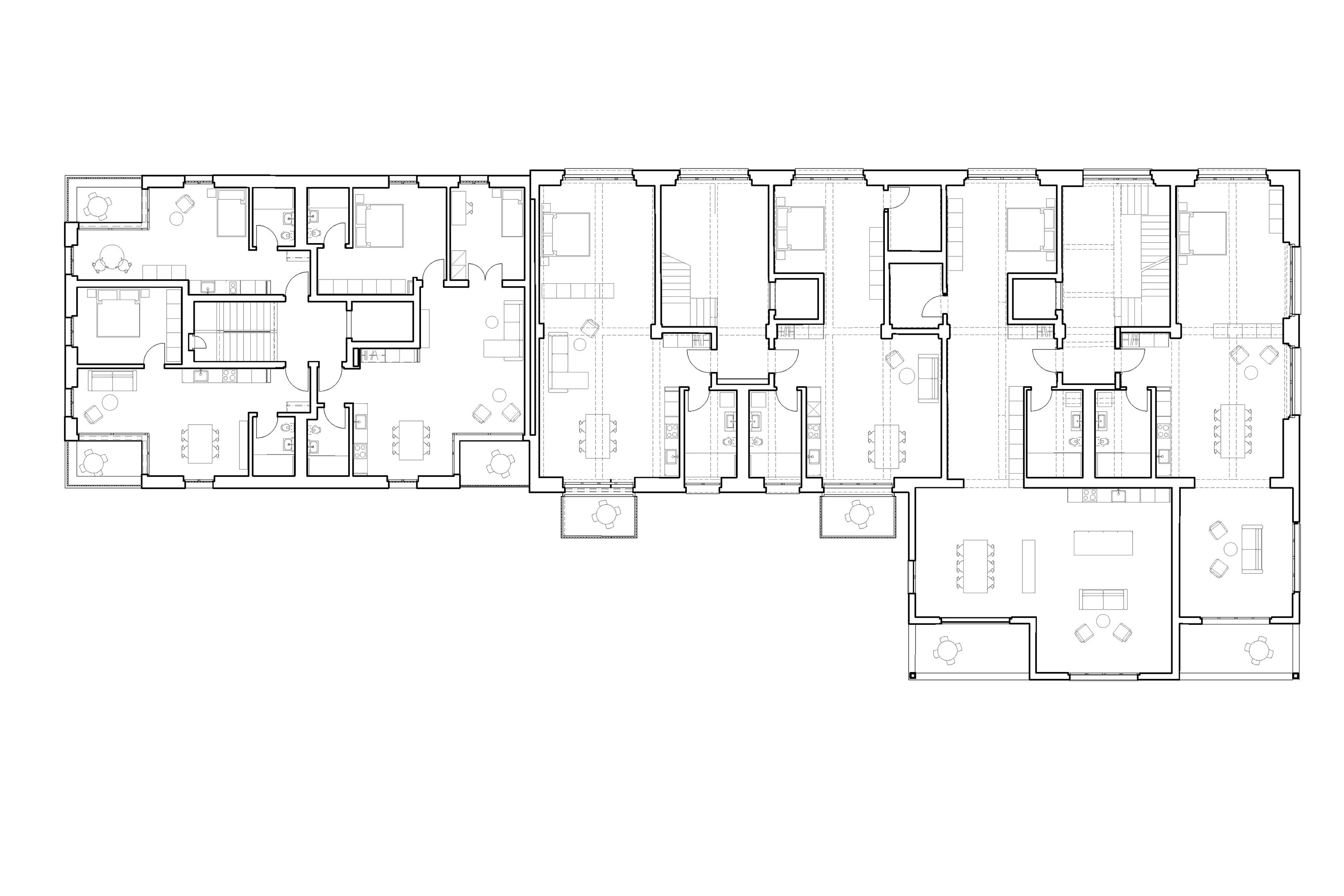
Die 52 Wohnungen verteilen sich auf den neuen Turm und das ehemalige Mühlenhauptgebäude, das erhalten blieb und an der Südostfassade durch eine Holzkonstruktion erweitert wurde. Im Altbau konnten 15 Loftwohnungen mit 2.5 bis 3.5 Zimmern, im Neubau 37 Wohnungen mit 1.5 bis 3.5 Zimmern untergebracht werden. Jede Wohneinheit besitzt einen Balkon oder eine Loggia mit einem spektakulären Blick auf die Prättigauer Berglandschaft. 

Alle verbauten Materialien erfüllen den DGNB-Standard für Sanierung und Neubau, sind also schadstoffarm und möglichst ressourcenfreundlich hergestellt. Konkret: Das verbaute Holz stammt aus der Schweiz und europäischen Nachbarländern, gedämmt wurde mit regionaler Steinwolle. Die Oberflächen im Innern sind, wo nötig, mit einem Kalkputz belegt. Für die nächste Phase im Lebenszyklus – Nutzung und Bewirtschaftung – fassten die Planerinnen und Planer alle verbauten Materialien in einem Kompendium, dem Gebäuderessourcenpass, zusammen. 

Der aufwendige Bau- und Planungsprozess wurde durch den Standort zwischen Taschinasbach und den Gleisen der Rhätischen Bahn noch komplizierter: Für den Rückbau des Turms, der direkt neben den Gleisanlagen steht, kam ein spezieller Rückbaubagger mit entsprechendem Anbauequipment zum Einsatz. Ein Tieflader brachte das Fahrzeug zunächst so nah wie möglich an die Baustelle – die enge Strasse bis zum Grundstück konnte er nicht passieren. Den verbleibenden Weg fuhr der Bagger im Schritttempo bis zum Einsatzort. Hier wurde in sicherem Abstand zum Mühleturm und dem benachbarten Gleis mit Schüttmaterial eine erhöhte Arbeitsplattform geschaffen. Von dort aus erreichte der Ausleger die obersten Geschosse und der Rückbau konnte schliesslich wie vorgesehen durchgeführt werden. 

Hände weg von den Graffiti

Eine weitere Besonderheit beim Umbau der Mühle ist der für Schweizer Verhältnisse sehr ungewöhnliche Umgang mit dem Bestand. Während die Mühle leer stand, beziehungsweise zwischengenutzt wurde, entstanden Graffiti an vielen der Wände im Hauptgebäude. 

Die Bauherrschaft entschied sich, die Malereien, wo möglich, zu behalten, ebenso wie andere Oberflächen des Bestands, die roh belassen wurden. Messungen ergaben, dass die Farben die Raumluft nicht negativ beeinflussen; eine detaillierte Überprüfung stellte sicher, dass sich unter den Arbeiten keine ehrverletzenden oder anstössigen Motive befinden. Die bewusste Reduktion von Renovationsarbeiten unterstützt so den Nachhaltigkeitsgedanken, doch vor allem verleiht der Erhalt der Bilder dem Gebäude eine einzigartige Atmosphäre. 

Dass Oberflächen auch einfach unbehandelt belassen werden, war allerdings während der Bauzeit mit Herausforderungen verbunden. Denn damit diese auch ansehnlich bleiben, braucht es eine gewisse Sensibilität der Handwerkerinnen und Handwerker, wie Bauleiter Johann Vögeli bei der Baustellenbegehung betonte. «Oft wird davon ausgegangen, dass ja dann ohnehin nochmal gestrichen wird. Manchen fällt es schwer, den Bau als Ganzes über das eigene Gewerk hinaus zu sehen.» 

Dass diese gesamthafte, auch situative Betrachtungsweise vor allem bei kreiswirtschaftlich orientierten Umbauten gefragt ist, zeigt etwa auch der Umgang mit den ehemaligen Abschlusstüren des Mühlegebäudes, die temporär als Baustellentüren wiederverwendet wurden. 

Sonnenenergie vs. Brandschutz

Ein Grossteil der Betriebsenergie soll dereinst von der PV-Anlage auf dem Dach des Bestandgebäudes und – viel offensichtlicher – den Fassaden des Turms kommen. Gerade bei letzteren sind die PV-Module – obwohl Standardprodukte – auch Gestaltungselement: In unterschiedlich breiten vertikalen Streifen überspannen sie den Turm bis zum Dachrand, eine Anordnung, die sowohl ästhetisch als auch funktional Sinn ergibt, aber trotzdem zu einer weiteren Pionierleistung führte. 

Denn für eine PV-Anlage bis 30 m Höhe gab es bisher keine praktikablen Brandschutzvorschriften. Müsste man sie gemäss Regelwerk sichern, wäre sie nicht mehr effizient. In Zusammenarbeit mit der Gebäudeversicherung Graubünden (GVG), den beteiligten Fachplanerinnen und Unternehmern konnte eine objektspezifische Lösung erarbeitet und implementiert werden.

Die vielen Details zeigen: Eine Umnutzung dieser Grössenordnung ist auch auf eine nachhaltige Weise machbar. Im Gegenteil, die Selbstverpflichtung, das eigene Tun ständig hinterfragen zu müssen, kann auch zu unerwarteten, vielleicht besseren Lösungen führen. Die grosse Herausforderung liegt bei einem solchen Projekt tatsächlich weniger in der baulichen und technischen Umsetzung als bei der Kommunikationsfähigkeit der Verantwortlichen. Und auch hier ist ein Superlativ zu vermelden: Gegen das Projekt gab es keine einzige Einsprache. 

Bauherrschaft
GUTGRÜN AG, Chur 

 

Gesamtdienstleister
Arella Immobiliendienstleistungen AG, Chur
 

Architektur und Tragkonstruktion
Ritter Schumacher AG, Chur

 

Elektroplanung
Maissen Elektroplanungen AG, Pontresina

 

HLKS-Planung
Züst Ingenieurbüro Haustechnik AG, Grüsch

 

Bauphysik
Ritter Schumacher AG, Chur

 

Brandschutz
brandsicher ag / Brandschutz, Chur

 

Betonlieferant
GRIBAG AG, Chur
 

 

Weitere Infos
muehlegruesch.ch

Verwandte Beiträge