Im Ka­non mit der Struk­tur

Umbau des ehemaligen Postbetriebsgebäudes zu Räumen für die Universität Luzern; Architektur: Enzmann + Fischer AG, Zürich

Mit ihrer fast weissen Fassade tritt die neue Universität Luzern von Enzmann + Fischer Architekten aus dem Schatten des Kunst- und Kongresshaus Luzern (KKL). Die expressive Topografie der Hülle hat dem Bau bereits ­Bezeichnungen von Eiswürfel bis Eierkarton eingetragen. Er hat von beidem etwas und mehr: Er transponiert den Genius Loci des Verpackens in die ­höhere Sphäre des Origami.

Publikationsdatum
12-01-2012
Revision
25-08-2015

Nach dem Scheitern des Projekts für eine Universität am Kasernenplatz kam der Entscheid der Post, ihr Betriebsgebäude hinter dem Bahnhof bis auf eine Poststelle aufzugeben, wie gerufen. Ein Wermutstropfen war indes die undankbare Lage des 1985 von Hans-Peter Amman und Peter Baumann errichteten Baus – demselben Architekturbüro, das auch den Bahnhof Luzern nach dessen Brand projektiert hatte – hinter dem Kultur- und Kongresszentrum Luzern (KKL). Einer Uni einen präsentablen Auftritt zu verpassen, eine Identität zu verleihen, wenn man gleichsam im Hinterhof eines Baus der Superlative steht, mag zwar Bürde, aber doch auch Ansporn sein. Aber auch noch auf der Ostseite des Inseliquais hinter einem Wohn- und Geschäftsbau in der 2. Reihe angesiedelt zu sein, ja an diesen fast an­docken zu müssen, ist eine Knacknuss. Das Schicksal akzeptiert und sich Zurückhaltung auferlegt – vielleicht auch aus Respekt gegenüber den ebenfalls ortsansässigen Urhebern – hatten die im Wettbewerb viertrangierten ­Lussi + Halter. Sie schlugen vor, die Fassade lediglich mit neuen Fenstern, einem neuen, glänzenden Anstrich und einer ­einheitlich weissen Farbgebung zu versehen – eine Ver­edelung, die der Fassade, die nicht eben ein Wurf der Bahnhofsarchitekten war, etwas viel Ehre gemacht hätte. Die meisten Teilnehmer zollten denn auch nur dem 11 m weit auskragenden Vordach Respekt und bewahrten das frühe Werk von Santiago Calatrava – auch Enzmann + Fischer, die den Wettbewerb für sich entschieden. (Überdauert hat es den Umbau dann doch nicht.) Mit ihrem Projekt beschieden sie sich nicht mit der Mauerblümchenrolle, sondern versuchten, mit einer fast weissen Fassade aus dem Schatten des KKL zu ­treten. Sie akzeptierten in gewisser Weise auch den Part, die zweite Geige zu spielen. ­Indem sie das Fenster, das auch beim KKL ein Thema ist, zum Dreh- und Angelpunkt des Fassadenentwurfs erkoren, referieren sie auf den Jahrhundertbau, schielen aber auch daran vorbei. Wo Jean Nouvel das Postkartenpanorama nur noch zu rahmen brauchte, mussten Enzmann + Fischer die Aussicht erst einfangen, indem sie die Fenster wie Erker ausbildeten, d.h. wie horizontale Kippflügel ausdrehten.

Fisac, Breuer et al.

Damit definierten Architekt und Architektin gleichzeitig das Gesicht des Baus, denn von diesem Ausdrehen des Fensters ist die Geometrie der Fassadenelemente abgeleitet. Im Wettbewerbsprojekt waren diese noch als Betonfertigteile geplant – in Anlehnung an das 1972 errichtete Hotel «Tres Islas» auf Fuerteventura des spanischen Architekten Miguel Fisac (1913 – 2006), dessen Namen sie auch als Codewort verwendeten. Fisacs Bauten ­zeugen von dessen ­Experimentierfreude mit dem Material Beton. Er erprobte dessen konstruktives Potenzial und reizte es für die Formgebung aus. Er testete aber nicht nur seine «Stärke», sondern auch die «stofflichen» Qualitäten. Die Postsäcke, die das ­Architektenteam vor dem ­Umbau fotografierte, könnte man sich durchaus à la Fisac in Beton gegossen vorstellen.

Positiv-Negativ-Volumina

Die stoffliche Anmutung der Elemente des Fisac-Baus wich allerdings schon im Wettbewerb einer glatten Oberfläche der Fertigteile, sodass man sich an das von Fabio Reinhardt und Bruno Reichlin 1989 auf dem Gemeindegebiet von Monte Carasso an der Autobahnrast­stätte Bellinzona Sud errichtete Hotel Mövenpick erinnert fühlte. Bei diesem aber verschattet die Rustika der Fassade, die aus Pyramidenstümpfen aufgebaut ist, die Fenster. Dies wiederum gibt Aufschluss über den ebenfalls im Wettbewerb signalisierten Verweis auf Marcel Breuer, wo die kastenförmig ausgebildeten Elemente als skulpturale brise-soleil figurieren. Die Beschäftigung mit dem Alternieren zwischen Positiv- und Negativform blieb nicht an der Fassade hängen, sondern stiess auch zum Kern des Baus vor. Dass sich Enzmann + Fischer schliesslich mit einer verputzten Fassade beschieden, hatte vorab statische und finanzielle Gründe: Die Betonelemente wären zu schwer und zu ­teuer gewesen. Ausserdem bot die Haut aus Putzträgerplatten die Möglichkeit, den Verputz ­fugenlos aufzubringen.

Bildsynthese: Fels, Diamant, Origami

Das verleiht dem Bau eine papierne Anmutung und rückt ihn in die Nähe eines konkreten Kunstwerks, vor allem in den geschlossenen Bereichen. Unterstrichen wird diese Wirkung durch die fast weisse Farbe des Verputzes. Tatsächlich ist es ein helles Grau, im Sonnenlicht reflektieren die Elemente aber so stark, dass sie blenden und den Bau entrücken, als wäre er ein Trugbild, eine Imagination – oder ein Rendering. Eine interessante Rückkopplung: Nachdem die Architekturfotografie Gebäude zunehmend so in den Fokus nimmt, dass man sie für Visualisierungen halten kann, konterkarieren Enzmann + Fischer diese Tendenz und bauen ein Haus, das zeitweise aussieht wie eine computergenerierte Bildsynthese. Und im wörtlichen Sinn ist die Fassade das auch – eine Synthese aus Bildern, in der sich die abstrahierte Felsformation mit der geschliffenen Oberfläche eines Diamanten und mit einem Origami überlagern – auch eine Referenz an den einstigen Paket- und Briefpostumschlagplatz. Buchstäblich die stärkste Wirkung entfaltet der Bau in den fensterlosen Bereichen, wo das Schattenspiel die Fassade in Bewegung versetzt. Die Fassade dynamisiert sich, wenn der Schatten ins Spiel kommt – als wäre sie ein Himmel-und-Hölle-Spiel.

Stadt im Haus

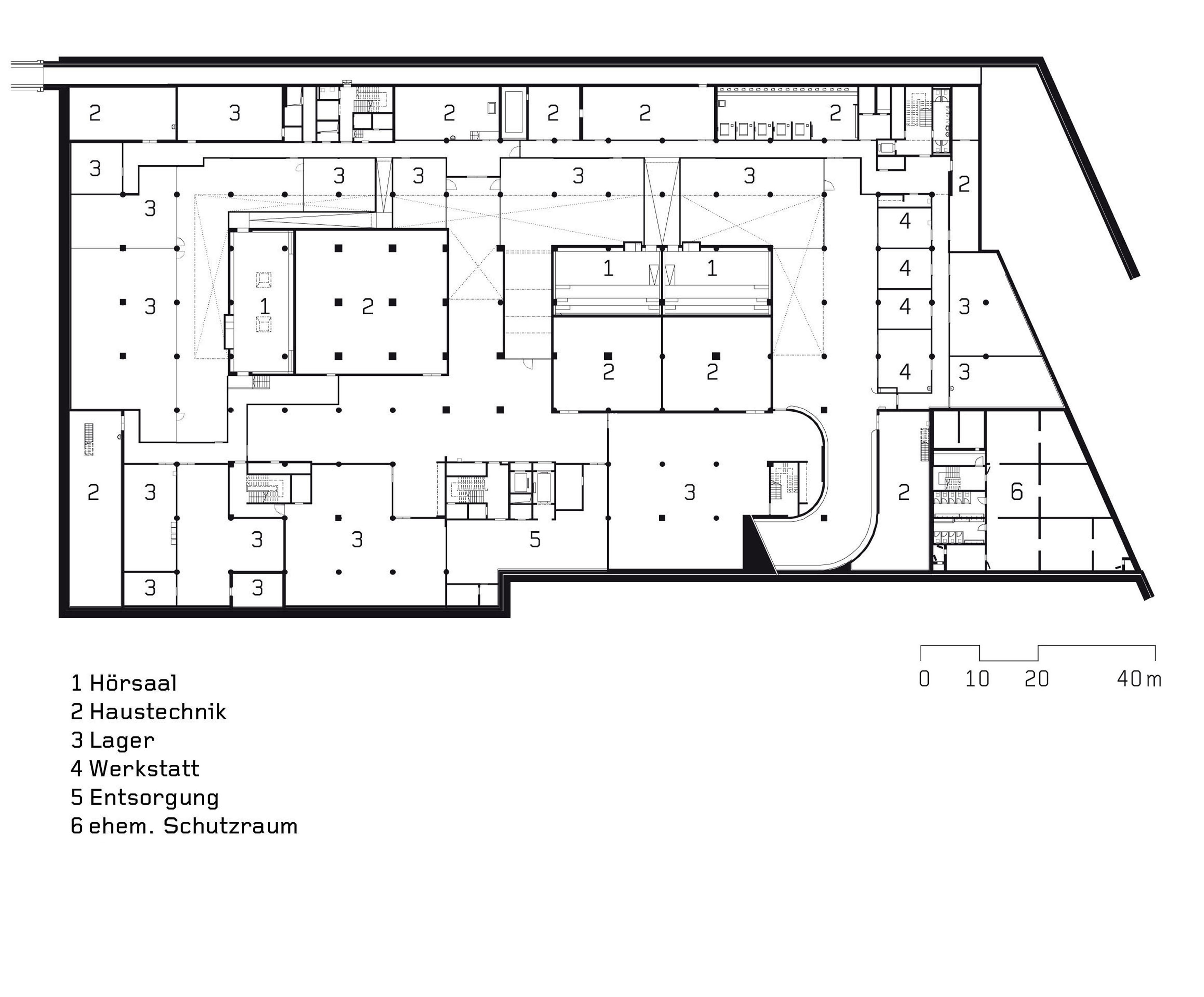
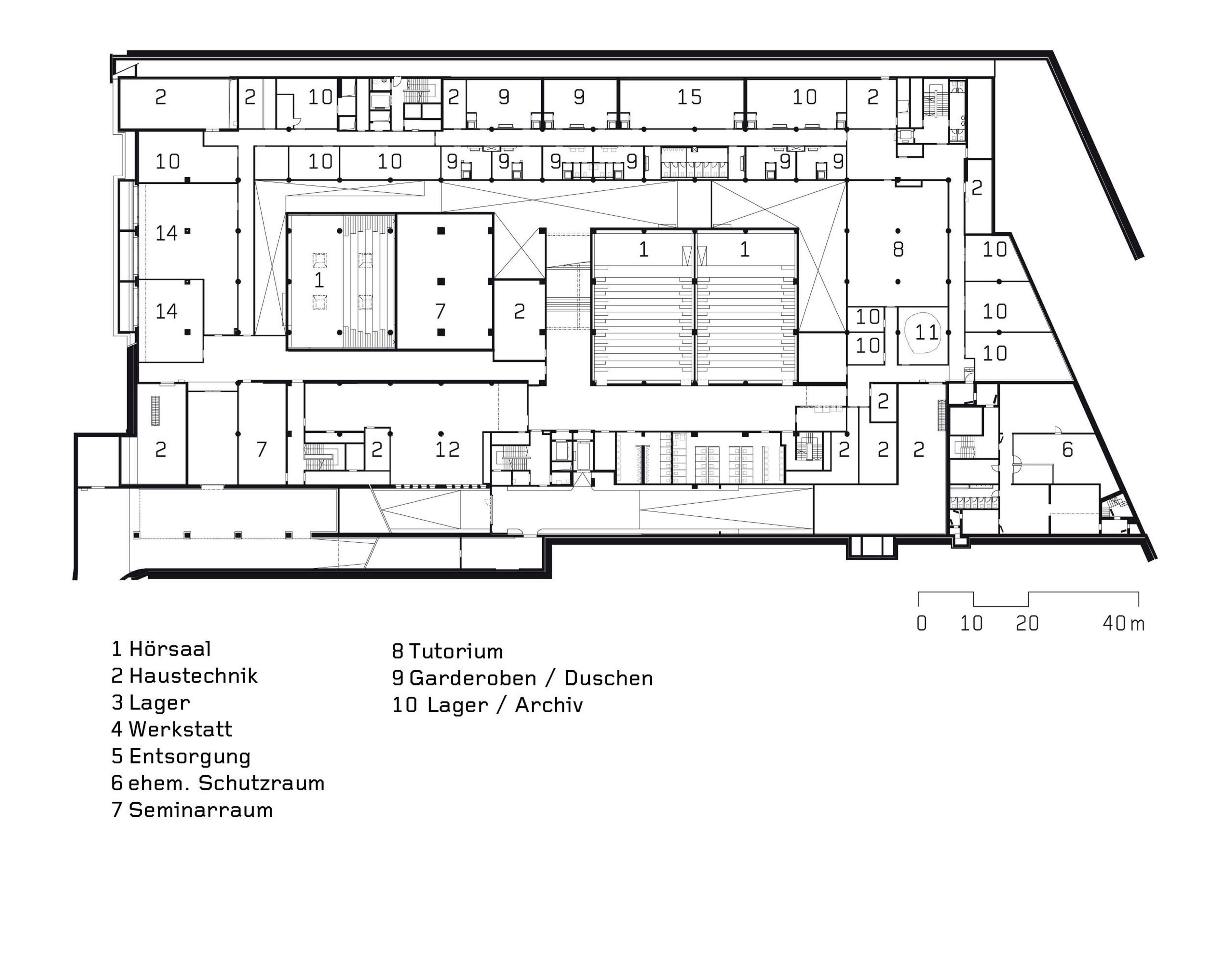
Der Bestand hatte Qualitäten, die zugleich vorteilhaft und einschränkend waren: das intakte Tragwerk und die Betonwanne im Grundwasser, die zwei unterirdische Geschosse bot. Den grössten Teil des Tragwerks haben die Architekten denn auch übernommen – Geschossdecken, Stützen und die drei vertikalen Erschliessungskerne. Den Rest haben sie zurückgebaut. Dominiert wurde das Innere von einem langgestreckten Lichthof, der sich über drei Geschosse erstreckte, sowie von einer Art Zwischengeschoss, das als Galerie ausgebildet war. Obwohl die Studierendenzahl seit dem ersten Wettbewerb markant zugenommen hat, bot der Bau mit rund 23 000 m2 mehr als ausreichend Platz, um das Raumprogramm unterzubringen: ein grosser Hörsaal mit 381 Plätzen, zwei mittlere mit deren 270 sowie ­vier kleine mit je 112 Plätzen, Bibliothek mit separatem Lesesaal, Seminarräume, Mensa, Küche, Büros für Professoren und Assistenten der rechtswissenschaftlichen, der theologischen ­und der geisteswissenschaftlichen Fakultät sowie der Pädagogischen Hochschule Zentralschweiz. Um das riesige Volumen aufzubrechen und mithin auch die Orientierung zu erleichtern, ­haben die Architekten den Bau in einen Ost- und einen Westflügel und in einen Wechsel ­von Positiv- und Negativvolumina gegliedert. Je ein Lichthof ist den beiden Trakten einbeschrieben, dazwischen ist die imposante Treppen­anlage platziert. Durch die schmaler werdenden Läufe, verjüngt sie sich kaminartig nach oben. Nicht nur optisch erzeugt das eine Sogwirkung, auch funktional ist sie so konzipiert, dass der Rauch im Brandfall schnell nach oben abzieht. Schlüssig ist die pyramidale Form ausserdem, weil sich der Menschenstrom nach oben ausdünnt, sodass die Treppe auch die hierarchische Pyramide abbildet. Die Verjüngung bricht zudem die Geradlinigkeit; je nach Blickwinkel eignet ihr gar etwas Labyrinthisches. Architektin und Architekt konzipierten das Gebäude als Stadt im Haus; mit Wegen, die sich immer wieder zu Plätzen öffnen, mit Höhenunterschieden sowie Vor- und Rücksprüngen – ­in der Horizontalen ebenso wie in der Vertikalen. So portionierten sie die ­Massstabslosigkeit des Gebäudes, vermieden endlose, monotone Korridore und schufen stattdessen eine kurzweilige Abfolge von «urbanen» Zonen und intimen Räumen.

Dissonanz als Kunstgriff

Gleichzeitig liessen sich so aber auch Taktverschiebungen integrieren, wie etwa Stützen, die zuweilen «unsinnig» positioniert sind, weil sich das Tragwerk nicht überall mit der Raumgliederung harmonisieren liess. Diese Dissonanzen wurden denn auch geradezu zum pièce de résistance. Die Architekten haben sich diese Sprünge nämlich nutzbar gemacht, um die Haustechnik zu «bändigen». Deren Installationen hätten die ohnehin schon bescheidene Raumhöhe (270 bis 280 cm) in der auf dem ehemaligen Galeriegeschoss eingerichteten ­Bibliothek noch mehr verringert. Die Architekten erstellten daher einen ausgefeilten Leitungsplan, indem sie u.a. installationsfreie Zonen definierten. Die resultierenden divergierenden Deckenhöhen widerspiegeln sich in den ebenfalls unterschiedlichen Bodenniveaus, die jeweils mit Treppenstufen überbrückt werden. Bewegte Bodentopografie und dynamisierte Deckenlandschaft verstärken die Stadt-im-Haus-Komposition.

Veredelung des Rohen

Dieses widerspiegeln auch Farben und Texturen. Die öffentlichen, «städtischen» Bereiche sind silbernfarben gehalten, die «privaten Inseln» weiss. Dem Westflügel ist ­Olivgrün, dem Osttrakt – komplementär – Bordeaux zugeordnet, orange ist die Mensa. Die silberne Färbung der Holzwolleplatten der abgehängten Decken oder des Betons der Treppe verstärkt den Maschinen-charakter, der dem ursprünglichen Bau eignete, gleichzeitig veredelt sie diese industriellen Materialien. Zwischen Noblesse und Rohheit changiert auch die Textur: Die Rillen, die den Beton der Treppenbrüstungen kannelieren, haben dekorativen Charakter, rühren aber von einer Gummimatte, die auf die Schalung montiert wurde. Ausserdem vollzieht sich eine Verfremdung des Materials: Der Beton mutet elastisch an. Eigenartig, die Wahrnehmung täuschend, wirkt zudem die Decke im Konferenzraum, deren ­Verkleidung aus Holzwolleplatten goldfarben gehalten ist. Prätenziöser ist zudem auch die Gestaltung der Gipsständerwände. Während die weiss gestrichenen einen Glattputz aufweisen, wurden die den Farbkanon reflektierenden Wände mit einem ­groben Strukturputz – rund oder vertikal – negativ abgerieben. Auf die olivgrün/silbernen, bordeaux/silbernen und orange/silbernen Wände wurde der Anstrich zuerst mit der weichen Rolle appliziert, damit die Farbe auch in die Vertiefungen eindrang. Um die jeweilige Zweitfarbe aufzutragen bzw. die monochromen Partien zu streichen, wurden die Wände mit der harten Rolle abgerieben, um nur (noch) die Höhen zu färben. Im flachen Winkel betrachtet, «verfliesst» die Farbstruktur zur monochromen Farbfläche, in der Frontalsicht hingegen erzeugt sie einen Sgraffito-Effekt und verankert sich in der in ­Luzern seit dem 16. Jahrhundert währenden Tradition der Fassadenmalerei. Eine andere, aber ebenso tradierte Art der Stukkatur zeigen die Wände im Erdgeschoss: Sie springt sofort als Adaption der Aussenhülle ins Auge. Es ist eine Rustifizierung, die man eher an einem Renaissancepalast erwarten würde. Hier kommt denn das Mövenpick-Hotel wieder ins Spiel. Für dessen pyramidal ausgebildeten Fassadenelemente war der ­Palazzo dei Diamanti in Ferrara eine Referenz. Das Spiel mit Positiv- und Negativvolumen ­bekommt so eine weitere Potenz. Innen und Aussen könnten vertauscht sein. Zumal die ­Hülle sich auch mit einem knitternden Kunststoffkleid assoziieren lässt und mithin eher zu einem Innenraum zu passen scheint.

Am Bau Beteiligte


Bauherrschaft
Kanton Luzern Dienststelle Immobilien


Architektur
Enzmann + Fischer AG, Zürich


Kostenkontrolle und Bauleitung
Büro für Bauökonomie AG, Luzern


Fassadenplanung
gkp Fassadentechnik AG, Aadorf 


Bauingenieure
Emch + Berger WSB AG, Luzern 


HLKS
Heizung: ARGE Heizung UNI-PHZ, Umbau PBG Hälg + co. AG Luzern/Axima AG Luzern/Haustechn. AG Littau/Walter Hirsiger AG Root 
Elektroinstallationen: ARGE Uni Luzern Frey + Cie Elektro AG/Maréchaux Elektro AG/Elektro Pilatus/Wild Electric AG 
Lüftung: Schmid Amrhein AG, Rothenburg 
- Sanitär: Jules Weinberger AG, Luzern 

Magazine

Verwandte Beiträge