Holz­mo­dul­bau auf Rei­sen

Neben der Baustelle des Berggasthauses Chäserrugg SG (Herzog & de Meuron, 2014–2015) boten drei Holzmodule Raum für Rast und Verpflegung. Nach Eröffnung des Neubaus wurden sie demontiert und traten eine lange Reise an – von den Ostschweizer Bergen in die Hügel Luxemburgs, um neu als Bürogebäude zu dienen.

Publikationsdatum
24-05-2020

Hergestellt von der Firma Blumer-Lehmann, wurden die drei Module 2014 per Seilbahn auf den Berg gebracht und zur provisorischen Berghütte aneinandergefügt. Der Abtransport erfolgte ein Jahr später per Helikopter in ein Zwischenlager.

Nachdem klar war, dass die Bauten von den bisherigen Besitzern, den Toggenburger Bergbahnen, nicht mehr benötigt wurden und eine neue Verwendung in Aussicht stand, wurden sie im Mai 2019 im Werk des Holzbauunternehmens nach Vorstellungen der neuen Besitzer umgebaut und im Juli 2019 auf Tiefladern nach Mutfort in Luxemburg transportiert. An diesem Standort waren sie binnen weniger Stunden mithilfe eines mobilen Krans neu montiert und dienen seitdem als Büro- und Ausstellungsgebäude vom FAT Architects.

Rückbaubar geplant

Dass diese Module nach Luxemburg auswandern konnten und so ein zweites Leben erhielten, war ein Glücksfall. Sie erregten das Interesse von FAT Architects (Mutfort/München), den Partnern von Blumer-Lehmann beim Pavillon für den «Innovationspark Dübendorf» (2017/18). Da ohnehin eine Vergrösserung der Büroräume der Architekten anstand, lag die Idee nahe, daraus ein Vorzeigeobjekt für den Holz- und Modulbau zu schaffen – ihr eigenes Bürogebäude in Mutfort.

Die drei als zweigeschossiger Bau gestapelten Holzmodule (3 m x 9 m) wirken am neuen Standort wie für diese Lage gemacht. Die dunkle, horizontale Rhomboid-Fassadenschalung unterstreicht diesen Eindruck. Das Holz und die gelochten Dreischichtplatten für die Deckenverkleidung erzeugen ein angenehmes Aufenthaltsklima hinsichtlich Haptik, Optik, Raumluft und -akustik. Grosszügige Fensterflächen schaffen eine helle und angenehme Atmosphäre.

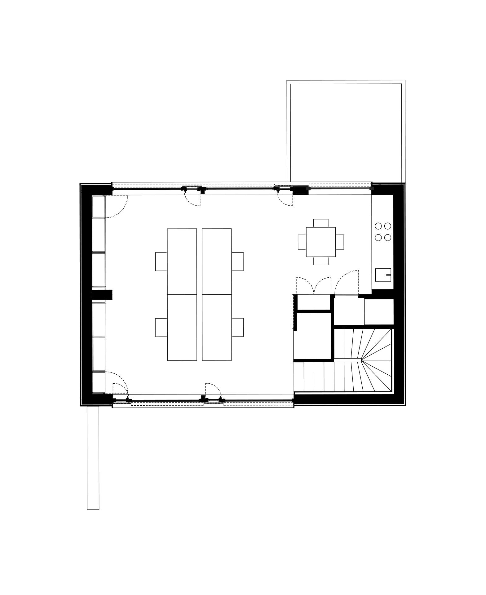
Das untere, auf sechs Einzelfundamente aus Beton gestellte Modul enthält einen Sitzungs- bzw. Ausstellungsraum, integrierte Schränke, ein WC und den Treppenaufgang. Eine gegenüberliegende Wandscheibe bildet mit dem unteren Modul die Auflagefläche für die beiden Module im Obergeschoss. Sie sind zu einem grossen, repräsentativen Raum zusammengeschlossen, der eine Bürofläche mit Kochnische, Einbauschränken und eine kleine Dusche beherbergt.

Alle Einbauten bestehen aus Dreischichtplatten. Küche, WC, Dusche, selbst die Fassade und auch das begrünte Dach wurden bereits im Werk von Blumer-Lehmann in der Schweiz komplett vorgefertigt. Durch die intensive Koordination aller Arbeitsschritte konnte der Ausbau in lediglich vier Wochen realisiert werden. Parallel dazu wurden vor Ort die Punktfundamente gesetzt, Hausanschlüsse vorbereitet und das Gelände hergerichtet. Die eigentliche Montage erfolgte innerhalb eines Tages innert weniger Stunden. 

Flexibel und offen

Die Flexibilität liegt, nebst der räumlichen Anpassungsfähigkeit der Module, in diesem Fall besonders in der funktionalen Wandelbarkeit. Waren sie einst zur Bewirtung von Gästen gedacht, beherbergen sie nun die Büroräume der Architekten und bieten Künstlern Ausstellungsfläche. 

Die Nutzung ist temporär konzipiert. Später können die Module erneut umgebaut und in einem anderen Kontext wiederverwendet werden. Sogar die Punktfundamente lassen sich an eigens eingegossenen Haken aus dem Baugrund ziehen und erneut verwenden. Ganz im Sinn der zirkulären Wirtschaft soll die denkwürdige Reise der Module weiter fortgesetzt werden, sagen die Architekten. Am Ende ihrer Lebensdauer sind die Module komplett rückbaubar und lassen sich nahezu vollständig dem Stoffkreislauf zurückführen. 

Das Projekt ist ein nachahmenswertes Beispiel für eine Mehrfachnutzung. Kein grosses Volumen macht es zum bemerkenswerten Bauwerk, sondern die intelligente und mit einfachen Mitteln umgesetzte Umnutzung. Sie ist ein überzeugendes Beispiel für die Flexibilität von Holzbaumodulen und der damit verbundenen Nachhaltigkeit.

Bürogebäude FAT Architects

Adresse
FAT Foundation of Art and Tectonic
26, rue de Medingen
5335 Mutfort (L)


Am Bau Beteiligte

Planung und Bauleitung: FAT Foundation of Art and Tectonic, Mutfort (L)
Holzbau: Blumer-Lehmann, Gossau (CH)
Baunternehmung: SAS Bau, Weiswampach (L)
Elektroarbeiten: Neufra Elektro, Schweich (D)
Sanitärinstallationen: Flach, Niederanven (L)
Kranarbeiten: ATS Cranes, Frisange (L)
 

Facts & Figures

Umbauzeit: 4 Wochen
Montage vor Ort: 6 Stunden aufstellen und 2 Tage Nacharbeiten
Vorfertigungsgrad: 90 %
Bruttogeschossfläche: 84.7 m2
(EG: 29.5 m2 / OG: 55.2 m2)
Nutzfläche 63.3 m2
(EG: 21.3 m2 / OG: 42 m2)

Baumassnahmen vor Ort:
Gelände herrichten, Punktfundamente, Hausanschlüsse, Aussenanlagen (ca. 4 Wochen)

Material:
wiederverwendete Holzmodule inkl. wiederverwendeter Böden, Fenster und Decken
im Werk gefertigtes Gründach; Einbauten mit Dreischichtplatten (Treppe, Schränke)

Zum Berggasthaus Chäserrugg siehe auch: «Auf dem Gipfel des Ursprungs», TEC21 25/2016

Verwandte Beiträge