Ein­fach auf­ge­baut

Eigentlich hätte es einzig eine Instandsetzung des Dachs werden sollen. Nun aber haben die unterirdischen Sporthallen der Schulhäuser in Basel St. Johann Tribünen erhalten. Der Clou: MET Architects und WMM Ingenieure nutzten dafür das brachliegende Potenzial des bestehenden Tragwerks.

Publikationsdatum
13-08-2020
Tina Cieslik
Head of Multimedia | espazium digital lab; Korrespondentin Architektur/Innenarchitektur TEC21

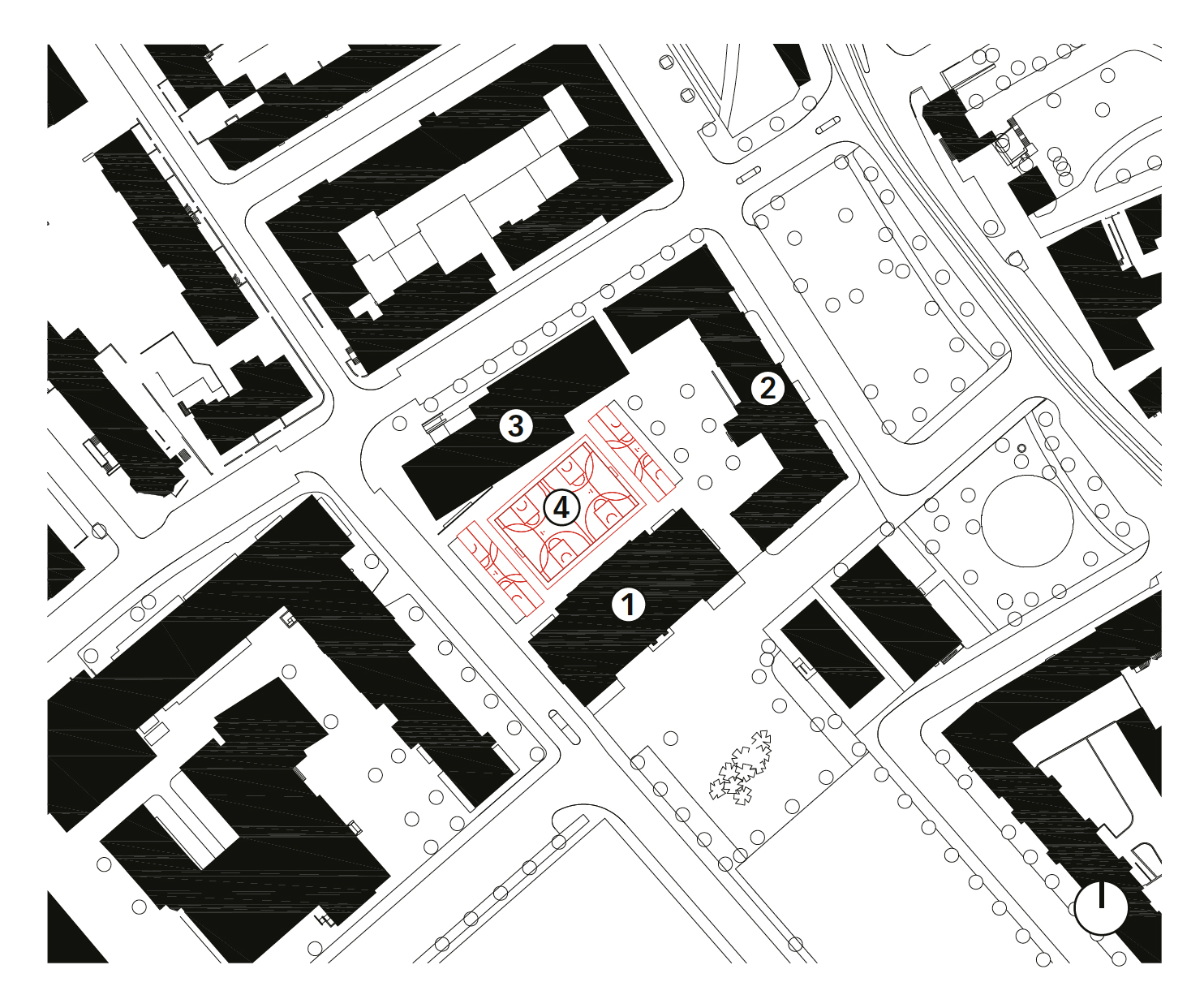
Häuserschluchten, Hinterhöfe, der rhythmische Aufprall eines Balls, ab und zu scheppert der Ring des Basketballkorbs: eine vertraute Szenerie aus US-ameri­kanischen Filmen. Gut, Basel ist nicht New York und St. Johann nicht die Bronx, aber seit Herbst 2019 dürfen sich die Schülerinnen und Schüler in St. Johann im Basler Norden auch ein wenig wie hoffnungsvolle US-Talente fühlen. Statt auf einem verstellten, etwas lieblos gestalteten Schulhof können sie Pausen und Freizeit nun auf den beiden neuen Basketballcourts im Innenhof des Schulhausensembles verbringen – Backyard-Streetball-Atmosphäre, Swiss-style.

Am Anfang der Transformation stand wie so oft ein Problem: Das Dach der unterirdischen Turn- und Schwimmhalle war undicht. Die Schule besteht aus drei Baukörpern aus unterschiedlichen Epochen, die sich als offener Blockrand U-förmig um einen Innenhof gruppieren. Darunter liegen die 1980 von Gass & Hafner Architekten erbauten Sporthallen, die Turnhalle auf der nordöstlichen, die Schwimmhalle auf der südwestlichen Seite. Begrünte Lichtgräben lassen Tageslicht ins Innere, die Dachfläche dient als Pausenhof. Wegen der mangelnden Dichtigkeit beauftragte die Bauherrschaft 2017 die Basler MET Architects mit der Instandsetzung des Dachs. Das Büro hatte von 2015 bis 2016 nach einem gewonnenen Wettbewerb den Umbau der Schule St. Johann realisiert (vgl. TEC21 21–22/2017), das Projekt war de facto ein Folgeauftrag.

Parallel sollte auch die unübersichtliche Platzsituation gelöst werden: Pflanzentröge – typische Elemente aus der Bauzeit –, Oberlichter und eine angedeutete Tribüne verunklärten den Pausenhof. In einem partizipativen Verfahren hatten sich die Schülerinnen und Schüler zum einen mehr der hier raren Sportflächen, zum anderen einen gedeckten Aussenraum gewünscht. Das traf sich mit den Ideen der Architekten, die für ihren Entwurf eine ähnliche Vision verfolgten. Bauliche Referenz war neben den New Yorker Courts auch das von einer dreieckigen Blockrandbebauung eingefasste Stadion Landhof in Basel Wettstein, das erste Heim­stadion des FC Basel – die Dichte und die Kombination mit den Wohnhäusern sorgten dort einst für eine einzigartige, intensive Wettkampfatmosphäre.

Statisches Brachland

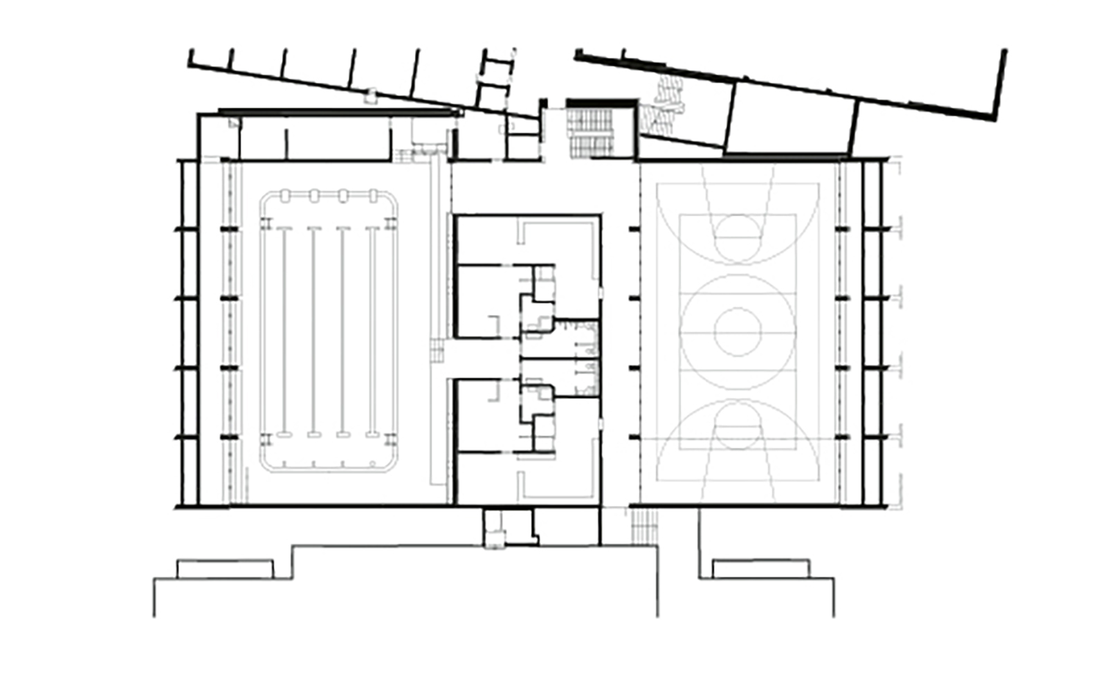
Eine Analyse der Situation in St. Johann ergab eine überraschend einfache Lösung: Die Betonstützen der Sporthallen ausserhalb der Nordost- und Südwestfassade waren keine statisch beanspruchten Bauteile, sondern dienten vor allem dekorativen Zwecken. Das Planerteam schlug also vor, neue Stützen auf den Bestand zu stellen, um darauf ein Dach für zwei gedeckte Tribünen zu legen. Dazwischen sahen sie zwei Basketballfelder vor. «Die Blendstützen waren statisches Brachland, das wir nutzen konnten», so Thomas Thalhofer von MET Architects und Theodor Hoffmann von WMM Ingenieuren.

Klingt logisch, ist aber in der Ausführung nicht zu unterschätzen. Denn die 48 m × 27 m grosse Turn- und Sporthalle ist im UG direkt mit dem Pestalozzi-Schulhaus und dem St-Johann-Schulhaus verbunden, die Platzverhältnisse sind knapp, die Geschosskoten gegeben und verbindlich. Was auf dem Papier einfach klingt – den Bestand als Basis für das Weiterbauen zu nutzen –, erwies sich als äusserst komplex: Zum einen musste die Befahrbarkeit mit leichten Motorfahrzeugen sichergestellt, zum anderen eine den heutigen Vorschriften genügende stärkere Dämmung eingebaut werden – alles im Zusammenspiel mit den vorgegebenen Dimensionen des Bestands.

Die Verflechtung von Alt- und Neubauten, das Niveau von Türschwellen und die Anbindung von neuen Bodenbelägen an bestehende erlaubten nur kleinste Abmessungsveränderungen. Die Höhe des Dachaufbaus musste daher übernommen werden. Trotzdem aber waren die Anforderungen an eine höhere Tragfähigkeit und eine bessere Dämmung gefordert – und dies, ohne Mehrauflasten auf die bestehende Tragkonstruktion zu generieren, denn solche waren wieder­­um aus statischen Gründen zu verhindern.

Standard und Individualisierung

Neu gewährleistet eine 12 cm starke, bewehrte Ortbetonplatte auf der Abdichtungsebene die Befahrbarkeit. Sie übernimmt die Kräfte aus den auftretenden Raddrücken, verteilt sie auf eine grössere Fläche und baut so die Spannungen auf das zulässige Mass entsprechend der eingebauten Dämmung ab. Die Randzonen überbrücken Schleppplatten aus Beton, die die differenziellen Setzungen an der Gebäudekante aufnehmen.

Die neue Platte liegt auf der Geschossdecke des Bestands, die wiederum auf den 30 cm breiten Aussenwänden des dreigeteilten Untergeschosses lagert. Dort befindet sich mittig der Garderobentrakt, flankiert von Schwimm- und Turnhalle.

Eine ausführlichere Version dieses Artikels finden Sie in TEC21 23–24/2020 «Tragwerk macht Platz».

Von aussen ist der Tragwerksraster durch die der Dämmebene vorgesetzten, nicht tragenden Blendstützen sichtbar – eben jenen bestehenden Bauteilen, deren statisches Potenzial es zu nutzen galt. Die inneren Fassadenstützen sind mit einem 100 × 20 cm grossen Riegel biegesteif miteinander verbunden und steifen so als Rahmenkonstruktion diese Gebäudeebene aus. 

Um die neuen Stützen mit den bestehenden zu verbinden, wurden diese gestuft aufgespitzt, der Querschnitt mit Bewehrung ergänzt – vor allem auf der Zugseite – und der Pfeiler aufbetoniert, wobei dieselbe Korngrösse wie im Bestand verwendet wurde, um ein möglichst ähn­liches, aber dennoch aktuelles Erscheinungsbild zu erzielen. Die Verlängerung der Blendstützen und die am Stützenkopf knapp 6 m weit auskragenden und somit biegesteif angeschlossenen Unterzüge (34 × 70 cm) tragen das nur 15 cm starke Sichtbetondach der Tribüne.

Die entstehenden vertikalen Mehrlasten können so direkt in den Bestand geleitet werden. Für die horizontalen Kräfte allerdings bedurfte es spezifischer Konstruk­tionsdetails. Für das aus dem Moment entstehende Kräftepaar, das es ebenfalls in die bestehende Tragkonstruktion einzuleiten galt, entwarfen die Ingenieure Lasteinleitungsdetails. Bauteile aus Edelstahl leiten die horizontalen Druck- und Zugkräfte punktuell von den nun lasttragen­den Blendstützen über die Dämmebene in die Innenstütze oder bei den Rändern in die etwas schmäleren Aussenwände und von dort weiter in die Deckenscheibe und die Unterzüge. Dabei waren die Bauteile als Drucknocken und Zugstangen auszubilden, da die Horizontalkräfte im Erdbebenfall und bei Windbeanspruchung in entgegengesetzter Richtung wirken.

Damit das Tribünendach in keinem Lastfall rückwärts kippt, werden die neuen Stützen oberhalb der Drucknocken über Zugstangen mit der Tribüne verbunden. Die Tribünen aus bewehrtem Ortbeton wachsen so regelrecht aus dem Bestand heraus und stehen da, als wären sie seit jeher so gedacht gewesen. Aus der nahtlosen Verlängerung des Bestehenden ergab sich eine fliessende Verflechtung mit dem Neuem.

Tiefbau in Möbelqualität

Der neue Platz zeigt, wie aus einer an sich zumindest gestalterisch eher profanen Instandsetzung eines Flachdachs eine konstruktiv und ästhetisch komplexe Bauaufgabe wird, sobald man sich im Bestand bewegt und einen gestalterischen Anspruch hegt – und mit einem Regelwerk arbeitet, das für weitgehend kontextlose Neubauten konzipiert ist.

Dass aus der Instandsetzung nun aber nicht nur ein neuer, gut gestalteter Pausenhof resultierte, sondern auch das eigentliche Wahrzeichen dieses Schulhaus-Konglomerats, ist der ganzheitlichen Betrachtungsweise des Planungsteams zu verdanken. Denn die Dächer der beiden Tribünen mussten ebenfalls abgedichtet werden, und die Planer entschieden sich, dafür, den Sportbelag aus Polyurethan einzusetzen – inklusive grafisch angeschnittener Spielfeldmarkierung. Die Wahl war nicht nur konstruktiv klug (weil effizient aufbringbar) und finanziell vorteilhaft (weil günstiger als andere Produkte). Die so gestalteten Dächer werten auch den Blick aus den oberen Zimmern der unmittelbar angrenzenden Schulhäuser auf – es entstand eine echte fünfte Fassade.

Der Hof mit seinen Tribünen wird so zum eigenständigen stimmigen Element, das nicht nur funktional besteht, sondern in seiner Dreidimensionalität wie ein gelungenes Kunst-am-Bau-Projekt wirkt – Punktsieg für Basel.

Am Bau Beteiligte

Bauherrschaft
Kanton Basel-Stadt, Hochbauamt

Architektur
MET Architects, Basel

Baumanagement
Caretta + Weidmann, Basel

Tragkonstruktion
WMM Ingenieure, Basel

Bauphysik
Gruner, Basel

E-Dossier Beton

TEC21 befasst sich bereits seit Jahren intensiv mit den Möglichkeiten des Betonbaus. Frühere Artikel und weitere Beiträge finden Sie in unserem E-Dossier auf espazium.ch/edossier-beton

Verwandte Beiträge