Auf den zwei­ten Blick

Im Oktober 2017 wurde am Zürcher Mythenquai der Neubau Swiss Re Next von Diener & Diener eingeweiht. So durchkomponiert wie seine Fassade, so elegant präsentiert sich der Bau im Innern.

Publikationsdatum
08-02-2018
Revision
12-02-2018

Steht man am Bellevue in Zürich, fällt der Blick auf ein neues Gebäude auf der anderen Seite des Seebeckens. Es fügt sich mit seiner Volumetrie in die Sequenz repräsentativer Bauten am Mythenquai ein, markiert mit seiner gewellten Glasfassade Präsenz und sticht dennoch nicht direkt ins Auge – was für das «Swiss Re Next» titulierte Bauwerk ohne Zweifel eine Qualität und für die Stadt einen Gewinn darstellt.

Am nördlichen Teil des Mythenquais – umgangssprachlich «Versicherungsmeile» genannt – reihen sich die Hauptsitze der grossen Schweizer Versicherungskonzerne aneinander. Von Norden nach Süden sind das – alle Traditionsunternehmen haben ihre Namen inzwischen amerikanisiert – die Swiss Life mit ihrem Bau der Gebrüder Pfister, die im Wettbewerb von 1933/1934 unter anderem Le Corbusier ausstechen konnten; die Zurich, die ihren Gebäudekomplex derzeit von Adolf Krischanitz erweitern lässt; und die Swiss Re.

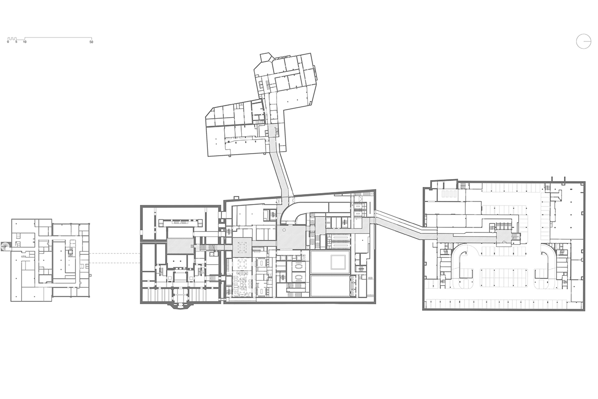
Ausgehend vom neobarocken Altbau der Architekten Emil Faesch und Alexander von Senger aus den Jahren 1911–1913 nutzt der zweitgrösste Rückversicherer der Welt am Mythenquai drei weitere Liegenschaften: das elegante Clubhaus von Hans Hofmann aus den späten 1950er-Jahren, das hybride Mythenschloss, das ab 2019 durch einen Neubau von Meili, Peter Architekten zusammen mit GFA Gruppe für Architektur ersetzt werden soll1, und schliesslich den im Oktober 2017 eröffneten Neubau «Swiss Re Next». Dazu kommen mit dem Escher- und dem Lavaterhaus zwei Bauten in zweiter Reihe.

Der Neubau von Diener & Diener, die sich im Studienauftrag von 2008/2009 gegen eine prominente Konkurrenz von elf weiteren Architekturbüros durchsetzen konnten, ist an die Stelle des gestaffelten Volumens von Werner Stücheli aus der zweiten Hälfte der 1960er-Jahre getreten.2 Ziel war es, das Grundstück des Stücheli-Baus besser auszunutzen: Mit 800 Arbeitsplätzen besitzt der Neubau etwa die doppelte Kapazität des Vorgängers. Dieser entsprach nicht dem derzeit verfolgten flexiblen Arbeitsplatzkonzept, war gebäudetechnisch veraltet und besass einen hohen Energiebedarf. Pro Arbeitsplatz ist der Energieverbrauch jetzt um 80 % gesunken (vgl. «Fortschrittliche Gebäudetechnik»); das neue ­Gebäude erfüllt die Vorgaben von Minergie-P-Eco und dem LEED-Platinum-Label.

Vor allem aber ist das Projekt ein Bekenntnis der Swiss Re zum Traditionsstandort Zürich und zum – wie es konzernintern heisst – «Campus Mythenquai». Obwohl weniger als drei Prozent des Prämienvolumens in der Schweiz erwirtschaftet werden, arbeitet hierzulande mit rund 3500 Personen knapp ein Viertel aller Beschäftigten. Sie sollen zukünftig am Mythenquai konzentriert werden. Die Dependance in Adliswil ist bereits verkauft und wird in den kommenden Jahren geräumt. Die Zeiten, da man sich im Stadtzentrum mit einem repräsentativen Schaufenster begnügte, die Backoffices aber an die Peri­pherie verlagerte, sind auch bei der Swiss Re vorbei. Die Konzentration auf einen Standort stärkt die Effizienz; vor allem aber ist die Lage direkt am See ein wichtiger Faktor bei der Suche nach den besten Mitarbeitenden.

Holokratische Bürolandschaften

Schon beim Studienauftrag 2008 bestand das Ziel, eine vielfältige, kommunikative und räumlich attraktive Arbeitsumgebung zu schaffen. Die Architekten zogen das auf Arbeitsplatzkonzepte spezialisierte Londoner Büro Sevil Peach bei, um die Bürozonen zu entwerfen. In enger Abstimmung mit dem Auftraggeber wurde das Raum- und Arbeitsplatzlayout anschliessend weiter differenziert und an verschiedenen ausländischen Standorten des Unternehmens getestet.

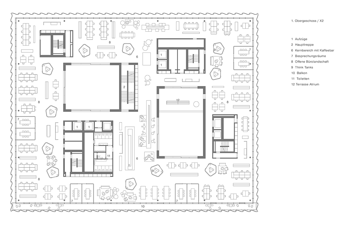
Die Swiss Re hat sich dafür entschieden, auf individualisierte Arbeitsplätze zu verzichten. Weil Erhebungen ergaben, dass ein Arbeitsplatz in der Regel weniger als die Hälfte der Zeit besetzt ist, stehen für insgesamt 1100 Personen lediglich 800 Arbeitsplätze zur Verfügung. Zu Arbeitsbeginn holt man sich die persönlichen Unterlagen aus dem «Personal Locker» und sucht sich einen Platz. Die offenen Bereiche gliedern sich in Teamzonen, doch die Arbeit findet nicht notwendigerweise am Schreibtisch statt. Wahlweise stehen auch Sofas, Lounges oder Kaffeebars zur Verfügung. Wer mehr Diskretion benötigt, kann einen der «Think Tanks» aufsuchen – gemeint sind gläserne Raumzellen mit runden Ecken über fünfeckigem Grundriss (vgl. Foto).

Eigens entworfene Vorhänge der Künstler Marc Camille Chaimowicz und Mai-Thu Perret gewähren das richtige Mass an Transparenz und Transluzenz für einen Rückzugsort, der doch mit dem Ambiente verbunden bleibt. Auch die klassische Hierarchie der Arbeitswelt ist räumlich nicht mehr greifbar: Eine Chef­etage existiert nicht, alle Beschäftigten nutzen die gleiche Büroinfrastruktur. Für die Ablage stehen allen Mitarbeitenden 2.5 m an Regalfläche zur Verfügung.

Flexibel, funktional, verspielt

Die Architektur schafft die räumliche Grundlage für dieses Konzept, das auf grossen, frei unterteilbaren Flächen basiert. Über drei Untergeschossen aus Beton erheben sich die sechs oberirdischen Etagen, die mit ihren Abmessungen von 72 × 58 m das zur Verfügung stehende Geviert ausfüllen und von Roger Diener als «Decks» bezeichnet werden. Zwei grosse rechteckige Lichthöfe sowie vier Erschliessungskerne gliedern die Ebenen. Es handelt sich um die massiven Teile des Bauwerks, das ansonsten als Stahlkonstruktion mit einem Stützenraster von 13.6 m erstellt wurde. Die Haupttreppe im Zentrum bildet die grosszügige Verbindung von Geschoss zu Geschoss.

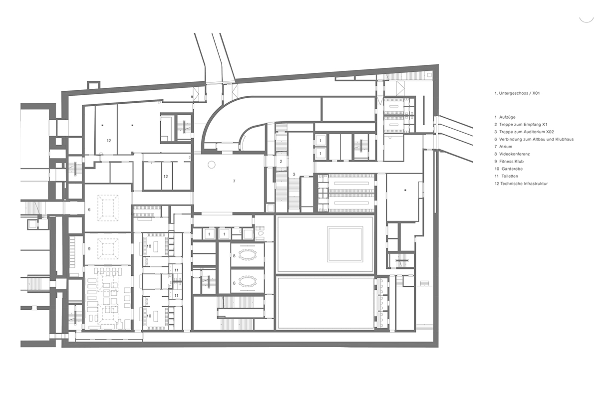
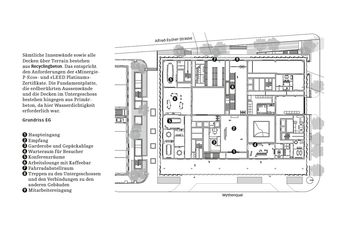
Das erste bis vierte Obergeschoss und der rückwärtige Teil des fünften sind gemäss dem Arbeits­platzkonzept von Swiss Re mehr oder minder identisch eingerichtet. Besucher betreten das Gebäude im zurückgesetzten Erdgeschoss vom Mythenquai aus, während die Mitarbeitenden zusätzlich den Personaleingang an der Alfred-Escher-Strasse nutzen können. Die Sicherheitskontrollen mit ihren Vereinzelungsanlagen sind zurückgesetzt, sodass ein grosszügiger öffentlicher Empfangsbereich entsteht, der sich in einen der Lichthöfe fortsetzt.

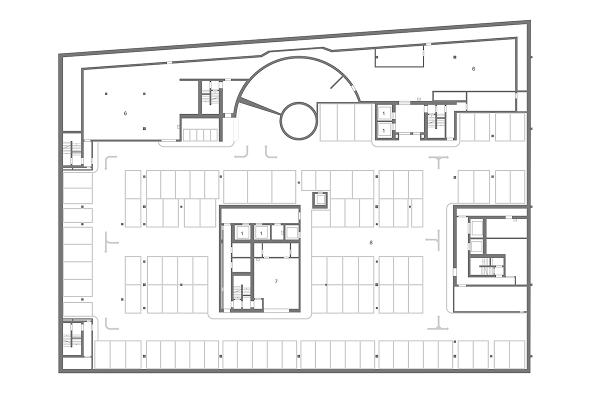
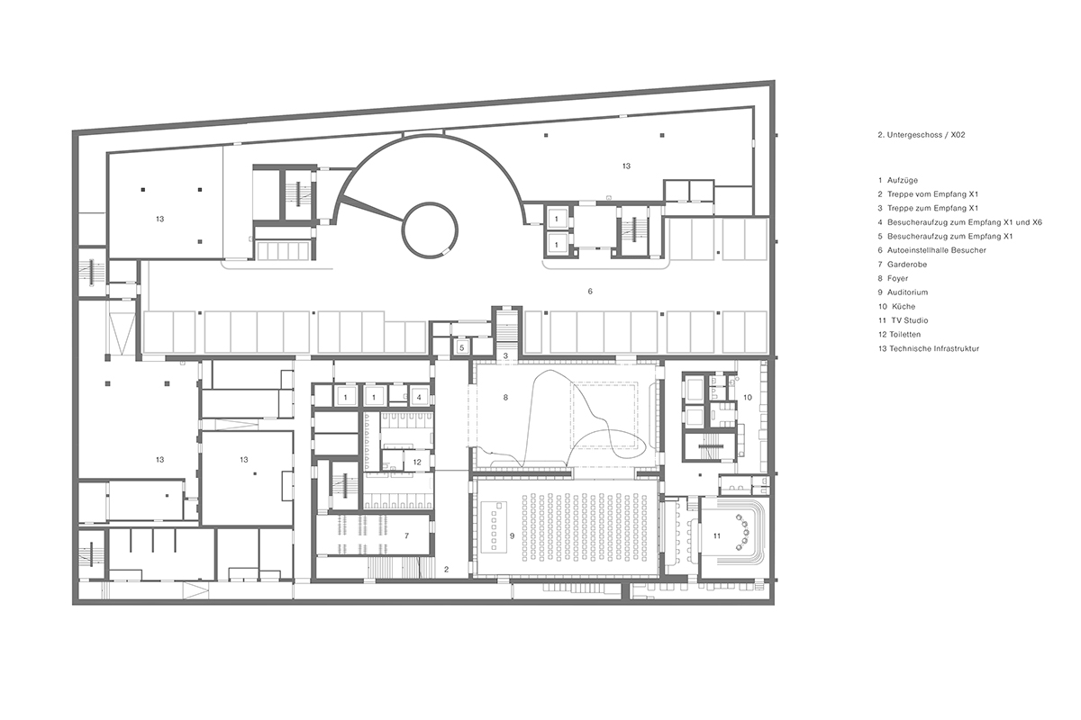
Auf der Südseite finden sich eine Anzahl unterschiedlich dimensionierter Konferenzräume – sollten Meetings ausserhalb der eigentlichen Büroetagen nötig sein, können hier geeignete Räumlichkeiten reserviert werden. Ein grosses Auditorium steht im zweiten Untergeschoss zur Verfügung, während Durchgänge im ersten Untergeschoss es ermöglichen, trockenen Fusses die anderen Gebäude am Mythenquai sowie die beiden Swiss-Re-Bauten auf der anderen Seite der Alfred-Escher-Strasse zu erreichen.

Speziell dem Empfang von Gästen dient der seeseitige Teil des abschliessenden fünften Obergeschosses, die repräsentativen Räume stehen aber auch den Mitarbeitenden zur Verfügung. Das Zentrum bildet eine abgehängte Edelstahlbar, die ebenso wie die expressiv farbige Faktur der Wände auf dunklem Grund vom Wiener Künstler Heimo Zobernig stammt (vgl. Foto). Tische und Teppiche sind Werke der US-amerikanischen Künstler Wade Guyton und Kelly Walker. Kunst und Architektur haben zu einer überzeugenden Symbiose gefunden – da mag man über die Tatsache hinwegsehen, dass in dem als «Bibliothek» titulierten Raum keine Bücher stehen. Es gehe nur um die Atmosphäre einer Bibliothek, so die Erklärung.

Ortsgebundene, speziell beauftragte Kunst findet sich auch an anderen Stellen im Gebäude. Etwa die dezenten Wollvorhänge von Willem de Rooij, die hinter der Fassade einen sanften Farbverlauf entstehen lassen. Oder die verformten Stützen und polygonal geschnittenen Steinplatten von Martin Boyce im Erdgeschoss. Dazu kommt eine Reihe von Werken aus der hochkaräti­gen Kunstsammlung der Swiss Re. Neben dem Farbkosmos von Zobernig stellt die fantastische Aussicht über das Seebecken und die Stadt die eigentliche Attraktion des obersten Geschosses dar. In der Mitte der Ebene ist eine Terrasse in das Volumen eingeschnitten, die sich in Form einer verglasten Loggia über die gesamte Gebäudebreite fortsetzt (vgl. Foto).

Perfekte Wellen

Die gläserne Fassade ist nicht nur als äussere Begrenzung des Gebäudes im Innern omnipräsent, sie ist es auch, die mit ihrem umlaufenden Wellenmotiv den Auftritt von Swiss Re Next im Stadtraum bestimmt. Und die, nachdem die Gerüste gefallen sind, auf ein seltsam kontroverses Medienecho gestossen ist.3 Im Œuvre der Architekten taucht der Gedanke einer ondulierenden Fassade aus repetitiven Glaselementen erstmals 2005 bei ihrem Beitrag für den Kongresszentrums-Wettbewerb auf. Nun konnten sie die Idee in unmittelbarer Nachbarschaft und ebenfalls am Seeufer umsetzen. Konstruktiv handelt es sich um eine Doppelfassade: ein wellenförmiger Vorhang vor umlaufenden Loggien und eine Dreifachverglasung dahinter, die die thermische Grenze des Gebäudes bildet (vgl. Fassadenschnitt).

Mithilfe von Mock-ups (vgl. Foto) wurden vor Ort die Materialisierung der Fassade, die Stabilität hinsichtlich Glasbruch, die Durchsicht sowie die Halterung in Varianten erprobt. Die grössten, 4.8 × 2.4 m grossen Gläser sind auf der Ebene des ersten Obergeschosses versetzt, da sie als Glasschürze auch knapp in den Bereich des Erdgeschosses hineinragen. Dieses ist im Bereich der Vorfahrt zum Mythenquai zurückgesetzt und weitgehend frei von Glas. Eine Verkleidung mit Wachenzeller Dolomit artikuliert die Sockelthematik und vermittelt zwischen Glas und Erdboden.

Faszinierend an der Glasfassade, deren Horizontalität die Geschossigkeit des Gebäudes zum Ausdruck bringt, sind die unterschiedlichen optischen Effekte, die sich je nach Standpunkt, Wetter und Jahres­zeit ergeben. Grundsätzlich gilt, dass das Thema der Reflexion sich desto deutlicher zeigt, je näher man dem Gebäude kommt. Das Auf und Ab der Fassade tritt deutlicher hervor, die vertikale Strukturierung wird sichtbarer, Spiegelungen und Reflexionen rhythmisieren das Bild und verändern sich beim Vorbeigehen oder -fahren.

Beim Blick vom gegenüberliegenden Seeufer aus zeigt sich ein anderes Bild: Das markante Volumen wirkt geschlossener, nimmt sich aber auch stärker zurück. Das Wellenmotiv verschwindet mehr und mehr, erkennbar bleibt aber der «Frequenzwechsel» zwischen den vier unteren und den beiden oberen Geschossen, der die Traufkante des Altbaus von 1913 aufgreift. Der Eindruck ist zurückhaltend, die Tönung des Glases ver­bindet sich optisch mit der Landschaft des dahinter liegenden Moränenhügels und des etwas ferneren Uetlibergs. Zwei ganz unterschiedliche Wahrnehmungen: Präsenz und Expressivität aus der Nähe, unaufdringliche Gelassenheit aus der Ferne.

Natürlich löst die Fassade Assoziationen aus: Die Superposition der Wellen lässt an Säulen denken, und allein schon das Wort der Welle mag an den See erinnern. Aber all das ist nicht zwingend. Hier wird kein modisches Spektakel inszeniert, hier werden aber auch keine vergangenen Formenwelten wiederbelebt. Immer wieder gelingt es dem Basler Architekturbüro, zeitlose Bauten zu errichten, die sich nicht auf den ersten Blick aufdrängen, die dafür aber um so nachhaltiger faszinieren – auch aufgrund ihrer souveränen Materia­lisierung.

Anmerkungen

  1. Vgl. Adi Kälin: «Kein Schutz fürs Mythenschloss» in: Neue Zürcher Zeitung, 21. September 2017.
  2. Unter der Überschrift «Dilemma am Mythenquai» setzt sich Michael Hanak in TEC21 39/2013 kritisch mit dem Umgang mit dem Stücheli-Bau auseinander.
  3. Vgl. Roman Hollenstein: «Zürich verschandelt sich selbst» in: Neue Zürcher Zeitung, 11. Mai 2017.

Am Bau Beteiligte
 

Bauherrschaft
Swiss Re Investments, Zürich

Generalplanung
ARGE Generalplaner Swiss Re Next; Diener & Diener Architekten, Basel; Proplaning, Basel.

Architektur
Diener + Diener Architekten

Tragwerk
Ernst Basler + Partner AG

Baumanagement
Proplaning Bauingenieure, Basel

Tiefbauplanung
Suisseplan Ingenieure AG

Fassadenplanung
Emmer Pfenninger Partner AG

Elektroplanung, MSR, technische Koordination
Sytek AG

HLKS-Planung, räumliche Koordination
Dr. Eicher + Pauli

Lichtplanung
LichtKunstLicht, Bonn (D)

Landschaftsarchitektur
Vogt Landschaftsarchitekten AG

Arbeitsplatzgestaltung
Sevil Peach, London

Zertifizierung / Label
Minergie-P-Eco, LEED Platinum

Verwandte Beiträge