Éco­po­lis: la pail­le qui in­suf­fle des idées

Avec ses façades en caissons de paille, l’immeuble Écopolis réalisé par atba aux Plaines-du-Loup pose un nouveau jalon sur le long chemin de la construction décarbonée.

Data di pubblicazione
09-11-2023

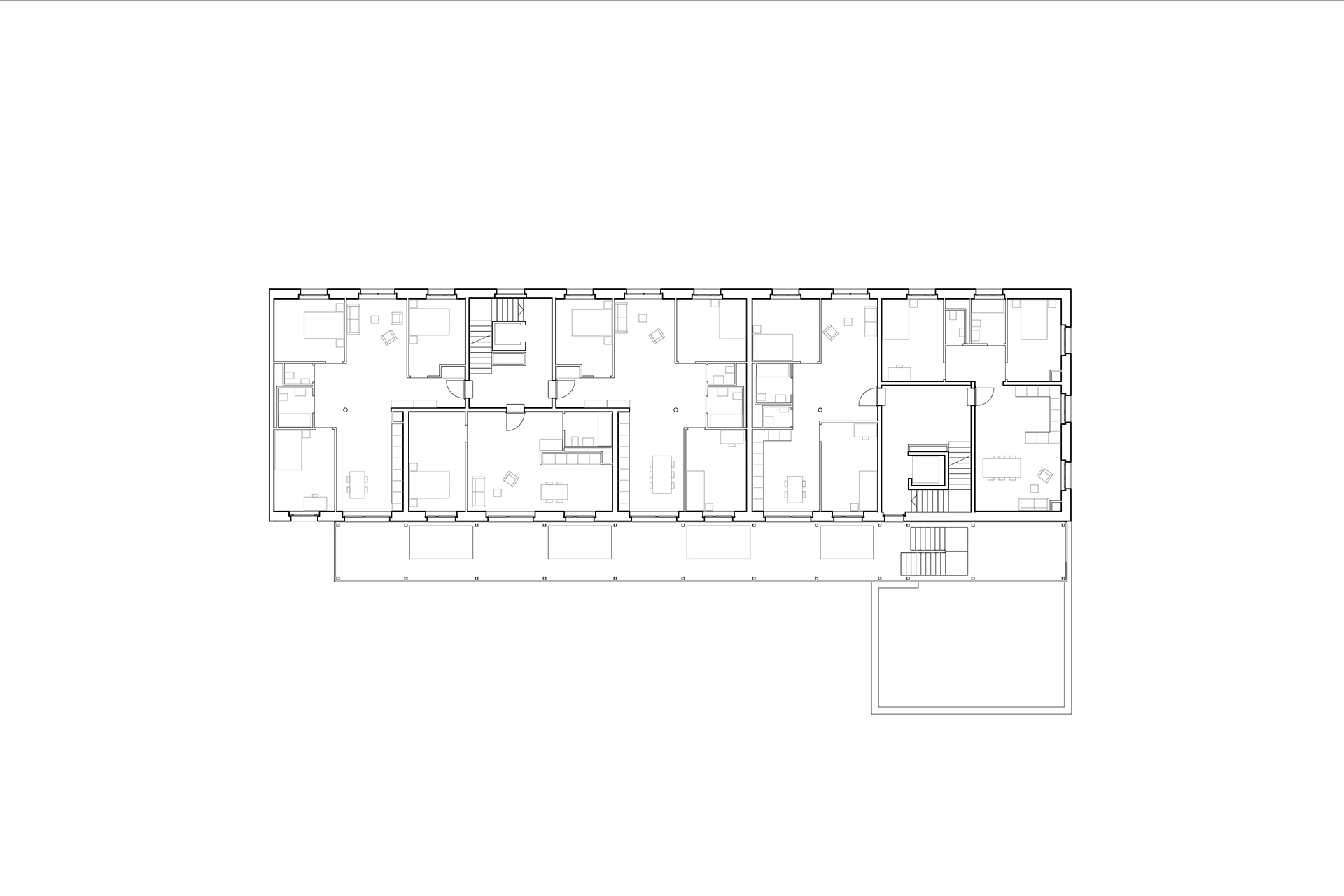
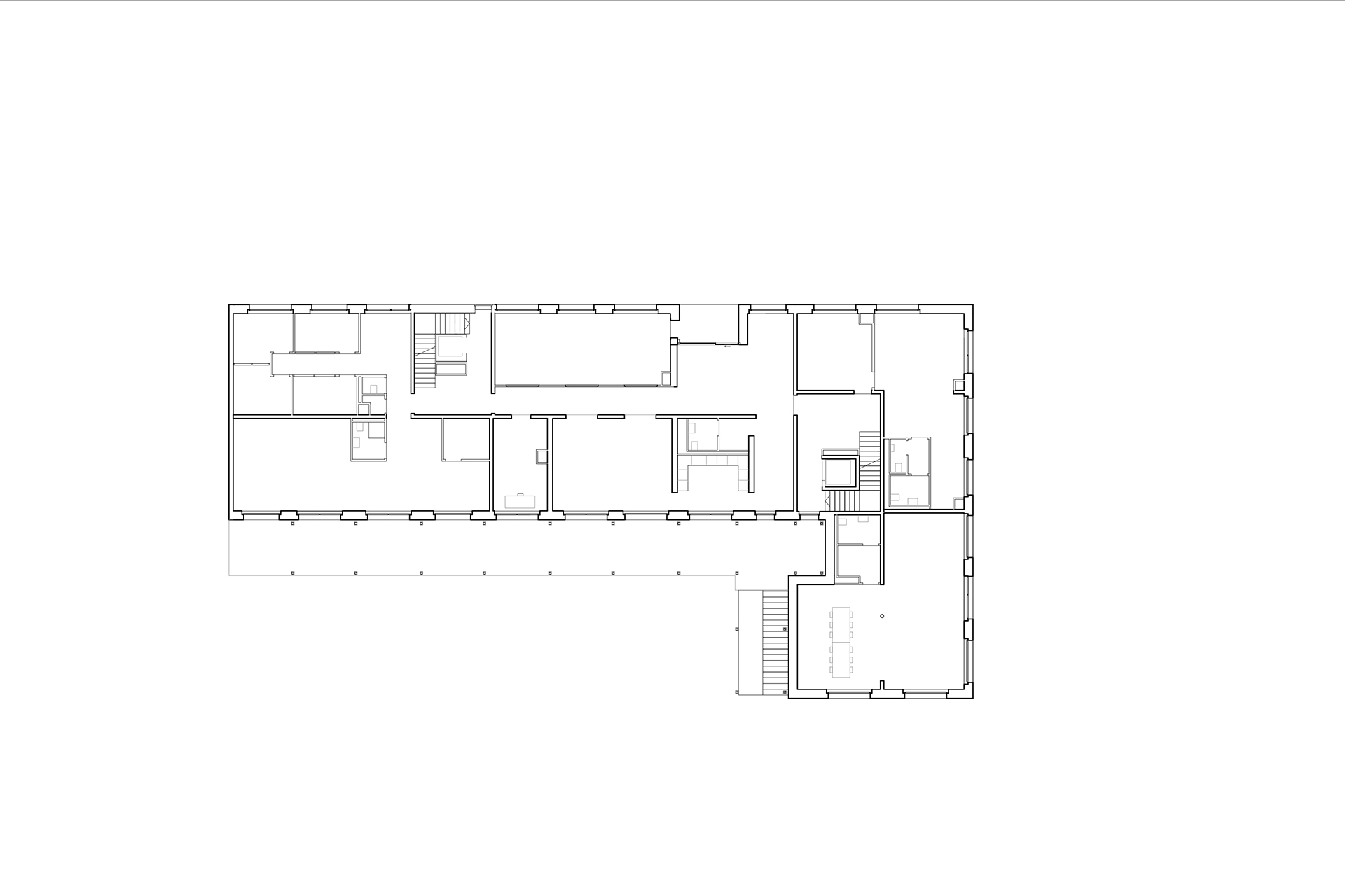
Dans la pièce D du quartier des Plaines-du-Loup à Lausanne, l’immeuble de la coopérative Écopolis a été développé étroitement avec atba architecture + énergie, dans un processus itératif. Il s’agissait d’articuler étroitement séquences publiques et privatives, tout en créant des dispositifs qui renforceront les rapports de voisinage: services et échoppes en arcades, «hall habité» au rez-de-chaussée (bibliothèque, local à outil, cuisine collective), terrasse-toiture potagère, buanderies, salles de jeu, réduits communs et chambres d’accueil dans les étages. La distribution permet de relier les appartements sans mettre un pied dans la rue. Enfin, la façade sud est dotée d’un dispositif hybride entre coursive extérieure et bande de balcons, agissant également comme brise-soleil et support de la végétation grimpante.

L’eau et la paille

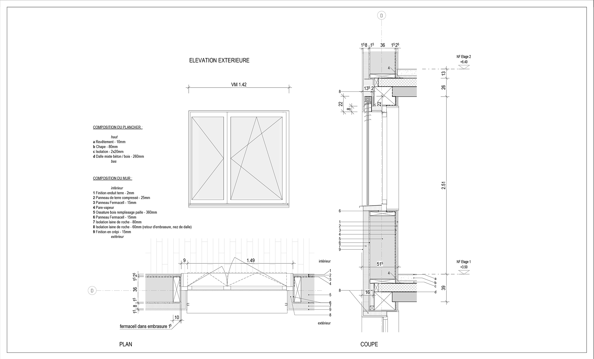
En accord avec la volonté de la coopérative d’intégrer des matériaux biosourcés dans le projet malgré un budget réduit, les architectes ont proposé de concentrer l’investissement sur la façade, quitte à assumer un rendu brut des cages d’escalier en béton type 2. Ils proposent une structure en caissons porteurs bois dans laquelle de la paille finement coupée a été insufflée avec de l’air pressurisé, un peu comme de la cellulose. En l’absence de fournisseur en Suisse, atba s’est tourné vers une entreprise autrichienne, qui a déposé un brevet pour cette technique.

Le choix de la paille caissonnée pourrait bien réduire le besoin de ventilation et de chauffage, explique Stéphane Fuchs (atba), car la perspirance de la paille permet de gérer l’humidité (responsable de la condensation, et donc de moisissures, mais aussi de la sensation de froid). Les caissons de bois sont constitués, côté intérieur, d’un crépi terre, d’un panneau de terre renforcé avec des roseaux et d’une première plaque du caisson, en Fermacell. Le frein vapeur de type Vario ou Intello, variable selon la saison, se situe à cet endroit. Il est encore obligatoire avec la paille en caisson, même si des recherches visent à le supprimer. La partie terre permet de rendre l’humidité si l’appartement est trop sec, mais le frein vapeur la fera transiter à travers toute la façade si elle est trop abondante. Dans le caisson, la couche de paille insufflée représente 36 cm de l’enveloppe. Enfin, la façade extérieure est composée de la seconde plaque du caisson, d’une laine de pierre et d’un crépi à la chaux, dans lequel un peu de ciment a été ajouté afin d’éviter qu’il ne fuse en cas de gel.

Le lambda de la façade en paille en caisson atteint 0.043 W/mK, contre 0.055 – 0.07 pour la botte (et autour de 0.035 pour un isolant standard). Par rapport à la technique de la botte de paille, l’épaisseur est réduite et le calepinage moins contraint, les dimensions des bottes étant standardisées. Enfin, il faut ajouter le facteur risque diminué par la préfabrication, central dans une opération de cette échelle (qui plus est financée par une coopé­rative d’habitant·es). Pourtant, même dans ces conditions, la paille nécessite de se prémunir absolument de l’humidité, et de prévoir un scénario si un problème se présente. Lors du chantier d’Écopolis, quelques caissons ont été endommagés par l’humidité et un «plan B» a été activé rapidement afin de remplacer la paille affectée.

Immeuble Écopolis, Lausanne

 

Maître d’ouvrage
Coopérative Écopolis

 

Architecture, planification et chantier
atba SA architecture + Énergie

 

Génie civil
Mery & Buffo

 

Ingénieur CVSE
atba SA architecture + Énergie

 

Surface de plancher
3210 m2

 

Coûts (HT) CFC 1 à 5
10,5 mio CHF

Magazine

Articoli correlati