Back­stei­ner­ne Scha­tul­le

Am ehemaligen Maggi-Produktionsstandort in Kemptthal stockten Ernst Niklaus Fausch Partner einen vormals dreigeschossigen Bau um zwei Etagen in Klinkerstein auf. Sie folgen der Logik des Bestands und modifizieren die baulichen Hierarchien des Areals.

Data di pubblicazione
05-08-2022

Nach Suppenwürze riecht es nicht mehr. Olfaktorisch also bleibt die frühere Nutzung der ehemaligen Suppenabfüllerei der Firma Maggi verborgen. Auch das ist eine der Leistungen des ebenso selbstbewussten wie sensiblen Umbaus durch Ernst Niklaus Fausch Partner – doch dazu später.

Industriekultur im Tal

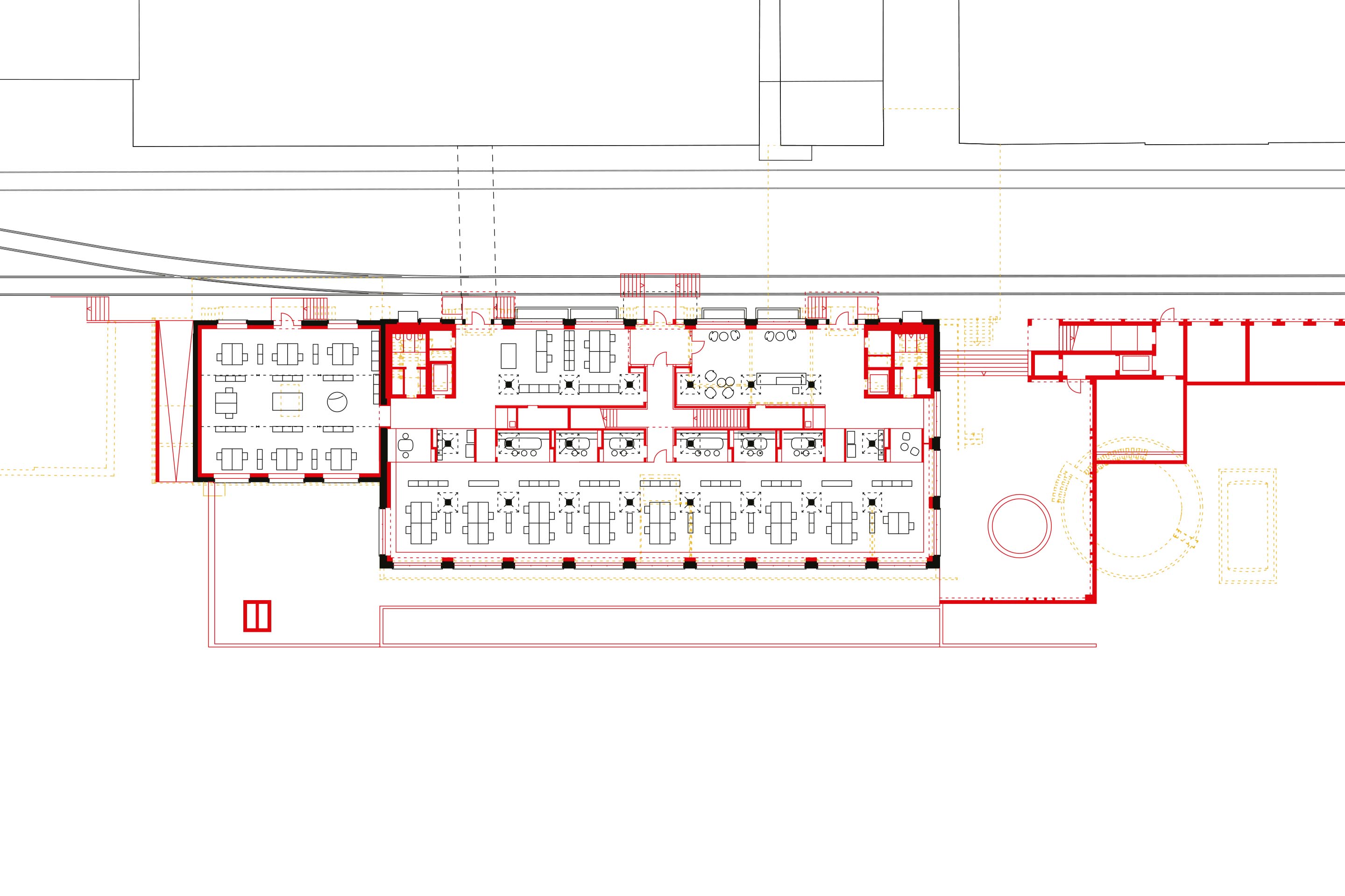
Als Firmengründer Julius Maggi 1869 die Mühle am Flüsschen Kempt von seinem Vater übernahm, war noch nicht abzusehen, dass sich unter seinem Familiennamen eine Weltmarke etablieren sollte. Keine zwanzig Jahre später aber waren die Fertigprodukte und Würzen auf dem Markt, mit denen die finanzielle Basis für solides Wachstum gelegt wurde. So hatte das Firmenareal im Süden des Gründungsbaus bereits ein ansehnliches Ausmass erreicht, als die Zürcher Architekten Alfred Debrunner und Hans Blankart 1931 ein eingeschossiges Gebäude für die Kistennaglerei hinzufügten. Neun Jahre später stockten sie dieses auf, um auf zwei überhohen, von Galerien durchzogenen Geschossen die Suppen­abfüllerei einzurichten.

Auf den Galerien sorgten die Männer für Nachschub auf den Produktionsanlagen, an denen ihre Kolleginnen arbeiteten und das fertige Produkt abpackten. Eine weithin übliche, sozial- und industriegeschichtlich interessante Arbeitsteilung. Dass dem Patriarchen am Wohl seiner Beschäftigten lag und er ihnen früh Sozialleistungen zugestand, ja dass seine Erfolgsprodukte die Verbesserung der Ernährung in Arbeiter­familien zum Ziel hatten, macht die Firma und ihre Bauten erst recht zu wichtigen Zeugen nicht nur der Zürcher Industriegeschichte.

Lesen Sie auch: «Insel des bezahlbaren Wohnraums oder Festung mit Burggraben?»

Auf historischen Fotos der Abfüllerei ist ihr durch und durch funktionaler Charakter erkennbar: Drei Reihen schlanker Pilzstützen gliedern den ansonsten ungeteilten Raum, der von allen Seiten grosszügig belichtet wird. Es ging um bestmögliche Ausnutzung, darum, einen reibungslosen Fertigungsprozess zu gewährleisten. ­Diese dienende Funktion des Gebäudes erklärt, weshalb es keine Anstalten machte, mit seinem äusseren ­Erscheinungsbild aufzutrumpfen. Als Teil eines En­sembles backsteinerner Industriebauten hauste seine ­kubische, ohne Schmuckformen auskommende Hülle schlichtweg den Produktionsprozess ein. Erst in der Aufstockung des Jahres 1940 gab sich ein vorsichtiger Versuch zu erkennen, den Fassaden mit Lisenen und dem Baukörper mit zwei über die Dachkante hinausgeführten Treppenhaustürmen Plastizität zu verleihen.

Heute präsentiert sich das Areal sehr viel weniger homogen als in den 1940er-Jahren. Die Dominanz des gelblichen Pfungener Backsteins ist von gestal­terisch unterambitionierten Hallen aus den 1980er-Jahren gebrochen, deren Blechverkleidung die gelbe Farbigkeit eher leidlich fortzuschreiben versucht. Die Firma Maggi hat ihre Produktion nach Singen verlagert, infolge der Fusion mit Nestlé übernahm Givaudan das Areal in Kemptthal. Das enge Tal scheint Weltkonzerne anzuziehen, bezog doch 2002 mit Givaudan der weltweit grösste Hersteller von Aromen und Duftstoffen die Bauten. Seitdem gab es weitere Besitzerwechsel. Doch im südlichen Teil des Areals, im Investorensprech nun «The Valley» genannt, ist Givaudan noch immer mit dem Neubau eines Forschungszentrums (Bauart Architekten, 2016–19) und dem Business Center im umgenutzten Gebäude der früheren Kistennaglerei und Suppen­abfüllerei präsent.

Komplexität des Einfachen

Mit den beiden Givaudan-Bauten hat sich die städtebauliche Logik des Areals ein Stück weit umgekehrt. War der südliche Teil ursprünglich den adressbildenden Häusern am nördlichen Zugang nachgeordnet, bildet er mittlerweile einen zweiten Schwerpunkt. Dies wird nicht zuletzt durch die neue Höhe erreicht: Dem vormals dreigeschossigen Bestandsbau setzten Ernst Niklaus Fausch Partner weitere zwei Geschosse auf, wodurch er sich gleichsam zu strecken scheint. Durchquert man, vom Bahnhof kommend, das Areal von Nord nach Süd, zieht das kubische Bauwerk mit seiner farblich abgesetzten Krone den Blick auf sich.

Mehr zum Thema Backstein finden Sie in unserem E-Dossier.

Bertram Ernst, projektverantwortlicher Partner von Ernst Niklaus Fausch, führt durchs Haus. Ja, doch, der Geruch von Suppenwürze sei noch immer pene­trant gewesen, als man mit der Planung begonnen habe. Bewältigt wurde diese Herausforderung erstaunlich leicht: Der Putz wurde von den Wänden geschlagen, anschliessend eigens entwickelte Brüstungselemente und Wandbekleidungen mit Lamellen aus Weisstanne davorgesetzt. Sie nehmen nicht nur die neu angebrachte Innendämmung mit Platten aus vulkanischen Perliten sowie alle Installationen auf und sorgen in den Grossraumbüros für eine gute Akustik, sondern schlucken dank integrierter Aktivkohleschicht zugleich noch übrig gebliebene Gerüche.

Ähnlich wie bei der Bewältigung des Geruchsproblems gingen die Architektinnen und Architekten beim ganzen Projekt mit gesundem Pragmatismus ans Werk. Ihre gestalterischen Lösungen erscheinen daher im Nachhinein so einfach wie folgerichtig. Die kantonale Denkmalpflege goutierte und unterstützte die mancherorts doch merklich in die Substanz des Bestandsbaus eingreifenden Massnahmen. So entstand im Resultat ein Haus, das seine eigene Geschichte zur Schau trägt und doch nicht konserviert, sondern vielmehr modernen Büro- und Nachhaltigkeitsstandards angepasst wurde. So verweist Ernst darauf, dass der Umbau schweizweit als erster mit LEED-Gold zertifiziert wurde, einem Nachhaltigkeitslabel des amerikanischen Green Building Council. Neben Faktoren wie dem über die Lebensdauer des Gebäudes betrachteten Ressourcenverbrauch bewertet es auch architektonische Kriterien, etwa die Gestaltung der Arbeitsumgebung.

Spiel mit Alt und Neu

Da waren in den Gebäudeecken zum Beispiel die beiden Treppenhäuser: viel zu klein und nicht gerade ein Raum­erlebnis. Die Planerinnen und Planer konnten Denk­malpflege und Bauherrschaft davon überzeugen, die Vertikalerschliessung als kaskadenartige Treppen in die Achse der Galerie zu verlegen und die früheren Treppen­häuser für Nebenräume und WCs, für Aufzug und ­Steigleitungen sowie für den Einbau zweier betonierter «Erdbebenwinkel» zu nutzen, um die Aussteifung des Gebäudes sicherzustellen. Da waren die niedrigen Fenster des Erdgeschosses an der Westseite: aufgrund der Hangkante nur schmale Schlitze. Hier wurde Gelände abgegraben, um die Fassade vom Terrain freizuspielen und die gleichen hohen Fenster wie an der östlichen Eingangsseite einbauen zu können, die die ursprünglichen Fenster zitieren. Das bringt mehr Licht in diese Raumhälfte – die Originalsubstanz wurde dazu verändert, doch zu ihrem Gewinn.

Überhaupt die Fenster: Im Süden waren sämtliche Öffnungen im Lauf der Jahre zugemauert worden. Ernst Niklaus Fausch Partner machten dies rückgängig und konnten die noch brauchbaren Backsteine gleich zur Reparatur schadhafter Stellen in der Fassade einsetzen. Andere Stellen wurden mit neuen Steinen geflickt. Da die heute gefertigten Steine sehr viel homogener und glatter sind als ihre historischen Artgenossen, findet in den Fassaden der unteren Geschosse ein beinahe didaktisches Spiel von Alt und Neu statt, mit ganz ­eigener Qualität.

Inszenierte Bekrönung

Und ja, natürlich, die Aufstockung: Sie setzt sich mit ihrer ins Bräunliche wechselnden Farbigkeit vom ­Bestand ab, thront darauf als flach abschliessende ­Krone. Vor dem Haus stehend, blickt Bertram Ernst die Fassade empor und spricht von der «Geschichte einer Auf­stockung», die sich hier vollzogen habe. Es ist schon die zweite, die das Gebäude erlebt hat. Gab es bereits bei der ersten einen gestalterischen Motiv­wechsel in den Geschossen – die Ausformulierung von Lisenen und damit das Rückspringen der oberen Ebenen –, wurde bei der jüngsten das Fassadenbild erneut variiert. Die Wasserstrichziegel stehen hochkant und um 45° gedreht, sodass die oberen Wände hanseatisch-expressionistisch daherkommen; vielleicht kein Zufall, dass die Steine aus einem Werk am Niederrhein stammen.

Im Innern residiert die Chefetage unter dem neuen Dach. Im wahrsten Wortsinn daneben gibt es an beiden Längsseiten doppelgeschossige, dem informellen Austausch zugedachte Räume für die Angestellten. In diesen «Orangerien» wachsen, wie passend, Pflanzen, die in der Produktion von Aroma- und Duftstoffen ­genutzt werden. Die Prunksäle barocker Schlösser im Blick, war zunächst geplant, die Wandfelder zu verspiegeln. Das wäre dann doch etwas zu viel des Guten ­gewesen. Nun beschränken sich die Spiegel auf die Verkleidungen der Oberlichtaufkantungen, was den schönen Effekt hat, dass der Blick gebrochen und stets gen Himmel gelenkt wird.

Die Langseiten der Aufstockung mussten in Holzständerwerk ausgeführt werden, der Leichtigkeit wegen – die Betonstruktur des Bestands mit seinen eleganten, im Erdgeschoss etwas plumperen Pilzstützen war statisch weitgehend ausgereizt. Hier, im Verborgenen, offenbart sich ein weiteres Mal der gar die Trag­struktur umfassende Optimierungsgedanke des Fabrikbaus. Dieses Wissen um die hinter den Klinkern verborgene leichte Konstruktion lässt die Aufstockung wie eine edle Schatulle erscheinen, die souverän, zugleich aber die Logik des Bestands konsequent interpretierend auf die alten Gemäuer gesetzt ist.

Die ausführliche Version dieses Artikels ist erschienen in TEC21 25/2022 «Der Stein in der Hauptrolle».

Bauherrschaft
Givaudan AG, Mettler2Invest ­(Generalplanung)

 

Architektur
Ernst Niklaus Fausch Partner, Zürich

 

Tragkonstruktion
wlw Bauingenieure, Zürich

 

HLKS-Planung
Oekoplan, Gossau

 

Innenarchitektur
Verena Frey, Innen­architektin VSI/SIA, Aarau

 

Bauphysik
Mühlebach Akustik+Bauphysik, Wiesendangen

 

Mauerarbeiten
Keller Systeme, Pfungen

 

Planung
2016–2018

 

Grundfläche (SIA 416)
5500 m2

 

Zertifizierung/Preise
LEED-Gold; Auszeichnung Fritz-Höger Preis, Winner Silber 2020; Anerkennung architekturpreis Region Winterthur 2020;
bestarchitects 2021.

Articoli correlati