156 lo­ge­men­ts et deux éta­ges de bu­reaux

Reconversion des bureaux en logements: un exemple bruxellois 

Data di pubblicazione
26-07-2022
Isabel Concheiro
Architecte, professeure et responsable du Joint Master of Architecture Fribourg, HEIA-Fribourg

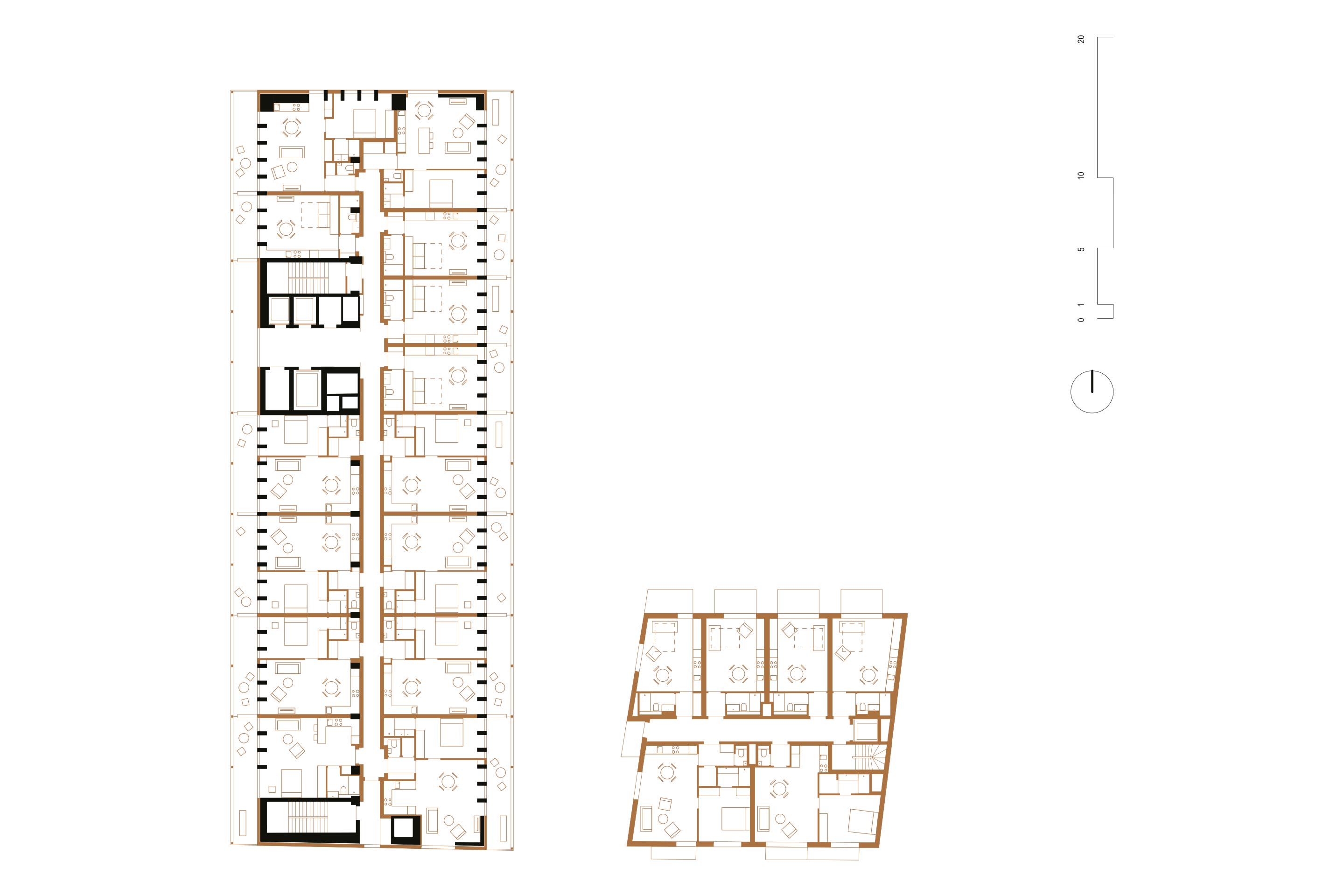
La tour des assurances Assubel, construite dans les années 1960 par les architectes Charles Verhelle et Henry Profiter, a longtemps été, avec ses 13 étages, une figure marquante dans le tissu urbain de faible densité du quartier de l’ancien port de Bruxelles. À l’abandon depuis plusieurs années, passée entre les mains de différents promoteurs, elle a finalement été transformée en logements. Sa position centrale et le confinement survenu entretemps – qui a révélé le besoin de logements qualitatifs avec espaces extérieurs – ont joué en faveur de ce choix programmatique. Le projet lauréat du concours d’architecture restreint organisé par le promoteur, fondé sur la consolidation de la structure et la réinterprétation du bâtiment existant, propose une série de stratégies de transformation à différentes échelles.

Composée d’une façade porteuse définissant une trame de 1,20 m et une hauteur entre dalles de plus de 4 m, la structure en béton a été dépouillée pour dégager des plateaux généreux de 18 m de profondeur, dans lesquels ont été insérés les nouveaux logements. Selon les architectes, la structure était globalement en bon état, mais a nécessité un renforcement et une reconstruction ciblée et précise de certaines parties afin de répondre aux normes actuelles, remédier aux défauts de construction d’origine et permettre l’ajout de trois niveaux supplémentaires. Ces mesures concernent la reconstruction du noyau de circulation principal – qui n’était plus assez stable pour répondre aux normes antisismiques – celle des colonnes du quatrième étage – dont la proportion en ciment s’est avérée nettement inférieure au reste de la structure – et la création de nouvelles chapes pour répondre aux normes acoustiques, obligeant à renforcer la structure des quatre étages inférieurs.

Le projet modifie l’expression hermétique du bâtiment d’origine: déposant la façade existante, il ajoute une nouvelle structure périphérique légère en acier, peinte en blanc, qui accueille les espaces extérieurs des logements, tout en conservant les proportions du volume original. Cette structure de 2 m d’épaisseur ajoutée à l’avant des façades longitudinales augmente l’épaisseur du bâtiment. Cet «empâtement» est compensé par l’ajout de deux étages supplémentaires et d’un niveau en attique avec une structure légère qui émerge en toiture. Les panneaux de protection solaire perforés, coulissants, intègrent du mouvement et définissent la nouvelle expression du bâtiment. Au rez-de-chaussée, la structure s’adapte afin de créer un portique ouvert avec un caractère public, définissant l’accès à l’immeuble et intégrant deux étages de bureaux.

En termes de typologies, les architectes expliquent que «l’orientation du bâtiment est-ouest, la qualité de la structure et de la morphologie d’origine, ont conduit à proposer des logements mono-orientés avec un bon accès de lumière et une grande qualité spatiale, qui ont permis de déroger aux normes bruxelloises». La spatialité des différentes typologies de logements est définie par la hauteur généreuse de plus de 3 m, la trame structurelle de la façade qui rythme le volume intérieur et l’accès direct à un espace extérieur pour chaque pièce.

Enfin, à l’échelle urbaine, le projet ouvre un passage latéral auparavant fermé, active le rez-de-chaussée et complète le programme de logements avec un nouveau bâtiment indépendant de 26 appartements, qui établit une transition avec l’échelle des constructions du quartier. Ce projet témoigne du potentiel de transformation des structures tertiaires de la deuxième moitié du 20e siècle en logements. Il démontre qu’avec des stratégies d’intervention à différents niveaux, un bâtiment peut être réincorporé dans une échelle architecturale et urbaine.

Bruxelles, The Cosmopolitan

 

Maîtrise d’œuvre
Bogdan & Van Broeck

 

Maîtrise d’ouvrage
Besix Red

 

Surface
16 000 m²

 

Concours sur invitation
2014, 1er prix

 

Livraison
2019

Etichette

Articoli correlati