Se­kun­dar­schu­le Ro­man­shorn: Viel­schi­ch­ti­ger Zwi­schen­raum

Mit ihrem Ersatzneubau für die Sekundarschule Weitenzelg knüpfen BAK Gordon Arquitectos und Bernhard Maurer auf differenzierte Weise an den Bestand an. Das neue Schulhaus bildet einen klaren Auftakt für den Campus und eröffnet im Innern vielschichtige Raumfolgen.

Data di pubblicazione
21-08-2019

Die Absicht der Stadt Romanshorn, im Areal Weitenzelg entlang des Dorfbachs einen Bildungs-, Sport- und Freizeit-Campus zu entwickeln, bedeutet für die Sekundarschule Weitenzelg eine Neuorientierung. Der 2015 veranstaltete Projektwettbewerb im selektiven Verfahren hatte zum Ziel, den in die Jahre gekommenen Schultrakt (1950er-/1960er-Jahre) zu ersetzen. Das nun fertiggestellte neue Schulhaus von BAK Gordon Arquitectos aus Lissabon und Bernhard Maurer aus Zürich erreicht als südöstlicher Abschluss des Campus auch eine Verknüpfung mit den Gebäuden der Kantonsschule (1980er-/1990er-Jahre).

Klare Setzung auf dem Campus

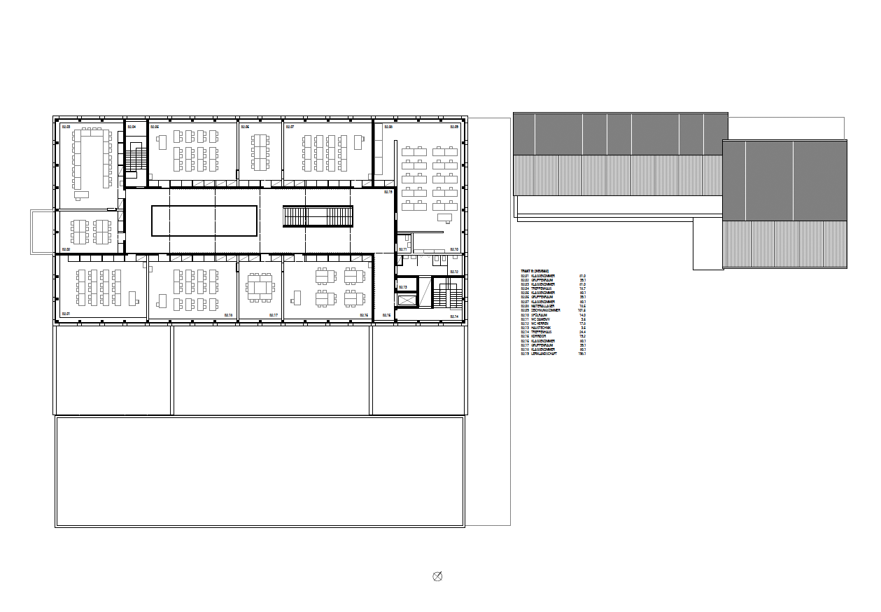
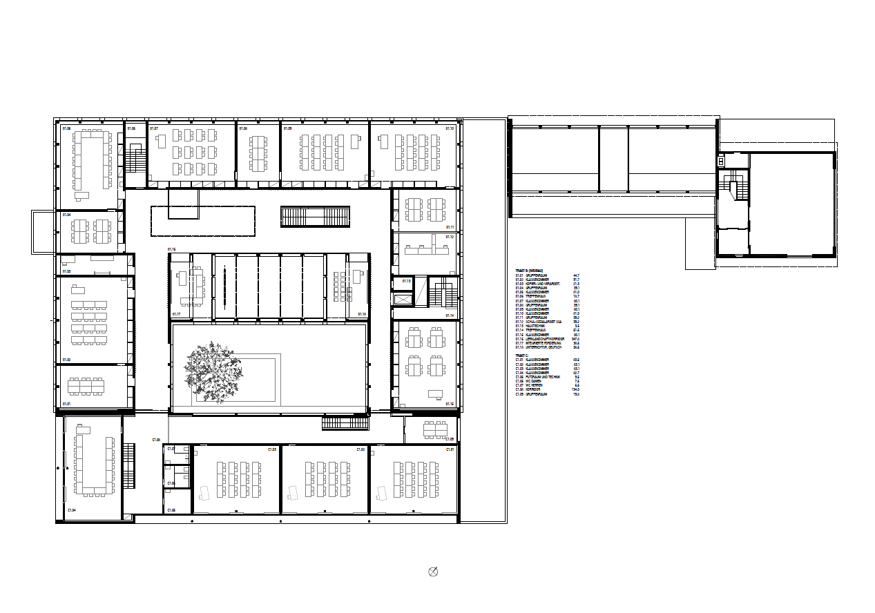
Der kompakte Baukörper des neuen Schulhauses setzt am Bestand an und verbindet ihn mit dem weiträumigen Campus-Areal. Sein quadratisches Volumen wurde aus dem zu erhaltenden Klassentrakt C (2010) entwickelt, der von den Architekten um vier Raumschichten (Patio – Lernatelier – Zwischenraum mit Erschliessung – Klassenzimmer) verbreitert wurde. Waren im Wettbewerbsprojekt Alt- und Neubau durch ihre Betonfassade nahezu unkenntlich miteinander verschmolzen, so gliedert der ausgeführte Fassadenaufbau mit seiner vorgehängten Keramikhaut das Volumen in Sockel, Attika, Laibung, Lisene und Fries.

Das weite Vordach bildet den Auftakt des neuen Gebäudeensembles; als gedeckter Bereich vor dem Pausen- und Ankunftsplatz leitet es aussenräumlich zur Kantonsschule mit Mensa und Sporthallen über. Vorbei am aus der Zeit gefallenen Gebäude mit Satteldach, das mit grellem Orange der Pastellfarbe der Neubaufassade angeglichen wurde. Dieser 1950er-Jahre-Bau ist durch seinen kleinen Vorgarten samt Wasserbecken und Skulptur geprägt und wird gemäss zukünftiger Planung in einer Dekade möglicherweise einem weiteren Neubau weichen.

Diagonale Raumbeziehungen

Das Foyer des neuen Hauses verbindet den Pausenplatz mit dem dahinter liegenden Garten und wird in Verbindung mit dem doppelgeschossigen Lernatelier zum Aufenthaltsraum, der auch nicht schulische Nutzungen ermöglicht. Der neue Patio dient als introvertierter Aussenraum und als Licht- und Verbindungsraum zwischen altem Klassentrakt und Neubau.

Der klaren städtebaulichen Anbindung stehen diagonale Elemente gegenüber, die die Wahrnehmung anregen: angefangen aussen bei den im Grundriss um 45° gedrehten Stützen sowie dem Turm für Frischluft und im Innern bei der hölzernen Auskleidung des Lernateliers, den Handläufen und Akustikpaneelen. Beziehungen werden auch zum Altbau aufgebaut: So prangt das triptychone Wandmosaik (1956) von Josef Emil Mehr nun an der Deckenuntersicht des Vordachs.

Alte figurative Ladenhalter dienen vereinzelt als Garderobenhaken und kontrastieren mit den neuen. Die von der britischen Künstlerin Rachel Lumsden integrierten Keramikmosaike unterstreichen durch ihre fragmentierte Anordnung die Sichtbezüge im Raum. Neben diesen Elementen schafft die Raumschichtung von Patio, Lernatelier und Foyer weitläufige Zwischenräume, die diagonale Raumbeziehungen über alle Etagen bietet.

Licht auf Beton und Holz

Im Kontext der Campus-Anlage ist der Umgang mit Beton sinnfällig: Er bestimmt die Materialität der Zwischenräume, und man fühlt sich an die Lichtstimmung von Schulhäusern aus den 1960er-/1970er-Jahren erinnert.

Die Treppenläufe und die Deckendurchbrüche verbinden alle Geschosse miteinander, die Raumschichtung führt zu spezifischen Belichtungen. Jede Etage scheint in ein anderes Licht gehüllt – als krönender Abschluss folgt die Reihung des Sheddachs, dessen Lichteinfall dem Sichtbeton eine weiche Oberfläche verleiht.

Der Zwischenraum und die Klassenzimmer sind klar voneinander getrennt und nicht, wie es das Wettbewerbsprojekt vorsah, flexibel schaltbar: die Wände in Beton gegossen, die Türen aus Holz. Dies lässt keine «Lernlandschaft» im eigentlichen Sinn entstehen, sondern zwei klar voneinander getrennte Welten: das gerichtete, zum Aussenraum orientierte, neutrale Klassenzimmer mit seinem Gruppenraum und der innen liegende, in indirektes Licht getauchte Zwischenraum.

Dem kompakten äusseren Auftritt stehen die Raumfolgen im Innern gegenüber, die nicht zuletzt an das «Querdenken» erinnern sollen, wie das Architektenteam an einem Sommermorgen im durch Seewasser gekühlten Schulhaus erläutert. Eine Möblierung des «informellen» Zwischenraums sei nicht geplant, dessen Aneignung solle den Nutzern überlassen bleiben.

Articoli correlati