Ein­ge­pas­st

Gebaute Beispiele

Der Wohnkomplex in Bry-sur-Marne von Eliet & Lehmann Architectes und der Zugangspavillon zu den Ausgrabungen von Artemision in Syrakus von Vincenzo Latina Architetti: zwei Beispiele, wie Bauten aus Naturstein heutzutage umgesetzt werden können.

Data di pubblicazione
15-11-2018
Revision
15-11-2018

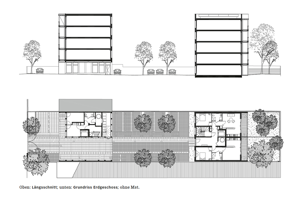
Sozialer Wohnungsbau, Bry-sur-Marne (F)

2010 haben Eliet & Lehmann Architectes einen Wohnkomplex in Bry-sur-Marne in der Agglomeration Paris mit 16 Sozialwohnungen realisiert. Bei den zwei Gebäuden kombinieren die Architekten eine massive Steinstruktur mit einer Holzausfachung und verleihen dem Projekt so eine nicht alltägliche ­Materialität. Auf dem 12.5 m breiten und 60 m tiefen Grundstück sind die Gebäude hintereinander positioniert, dazwischen erstreckt sich ein Innenhof, in dem sich auch die Garagen befinden. Die Appartements sind Durchschusswohungen, und jedes Wohnzimmer führt auf eine grosse Holzterrasse.

Beim strassenseitige Gebäude haben die Architekten mit 15 m Höhe die maximal zulässige Höhe des Stadtteilplans ausgenutzt. Das Sockelgeschoss besetzt nur die halbe Breite des Grundstücks, so kann ein grosszügiger Korridor (3.2 m lichte Breite) erhalten werden, der den Zugang zum Hofparkplatz ermöglicht. Durch die erhöhte Traufkante des hinteren Gebäudes (15 m) können die Sonnenkollektoren für die Warmwasser­bereitung verborgen werden. Der Gebäudekomplex ­besteht hauptsächlich aus kleinen Wohnungen (2 und 3 Zimmer) und zwei Duplexwohnungen (5 und 6 Zimmer). Die beiden Erdgeschosswohnungen im Gebäude am Ende des Innenhofs verfügen über eine grosse private Terrasse mit Rasenfläche.

Die Wände im Erdgeschoss sind in verputztem Stahlbeton konstruiert, um die Erschütterung durch die Fahrzeuge aufzunehmen; die oberen Ebenen sind an drei Seiten aus massivem Stein und an der vierten aus Holz. Der in den Steinbrüchen von Noyant in der Picardie abgebaute Kalkstein wird nach einem genauen Verlegeplan gemauert und sorgfältig verarbeitet. Um den thermischen Anforderungen zu ent­sprechen, sind alle Räume mit einer Innendämmung ­ausgestattet. Die elektrische Bodenheizung ist in den schwimmenden Estrich integriert.

Dieser Text basiert auf einem Projektbeschrieb der Architekten, zuerst erschienen in Archi 5/2018. Übersetzung: Franziska Quandt

Museumspavillon der Artemision-Ausgrabungen, Syrakus (I)

Der Pavillon befindet sich mitten im städtischen Gefüge an der Piazza Minerva auf der Insel ­Ortygia. Er bildet die neue Schutzhülle der Ausgrabungsstätte des Artemision-Tempels. In der zuvor bestehenden Lücke ­waren noch ­Überreste des in den 1960er-Jahren ab­gerissenen Gemeindegebäudes von Gaetano Rapisardi (1893–1988) vorhanden. Auf der anderen Seite des ­Platzes steht die Kathedrale ­Santa Maria delle Co­lonne, in deren nördliche Aussenwand die dorischen Säulen des ehemaligen Athenatempels integriert sind. Einen besonderen ­Akzent setzt ein ver­tikaler Schnitt in der Wand des Pavillons, der eine direkte visuelle und räumliche Verbindung zwischen den Ruinen des ionischen Tempels und der genau gegenüberliegenden ­Ecksäule des Athena­tempels herstellt.

Der neue Pavillon von Vincenzo Latina Architetti stellt die Kontinuität der Fronten der Piazza ­Minerva wieder her. Er schützt die Ausgrabungsstätte und schafft eine Verbindung zum Untergeschoss des Gemeindegebäudes, in dem weitere Zeugnisse der Geschichte der Insel Ortygia zu sehen sind. Neben den Überresten der Fundamente des ionischen Artemis-Tempels befinden sich dort Fragmente einiger sizilianischer Hütten aus der späten Bronze­zeit und die Krypta der Kirche San Sebastianello.

Die Hülle des Gebäudes aus Kalkstein­blöcken aus dem nah gelegenen Ort Palazzolo Acreide weist eine glatte Textur auf, die einen mittelalterlichen oder katalanischen ­Architekturstil referenziert. Diese Art der Fassadengestaltung ist in Syrakus oft anzutreffen, denn nach dem Erdbeben von 1693 erhielten viele Gebäude eine barocke Gestalt. Das Fassadenbild soll in einer zeitgenössischen Interpretation an die ­katalanisch-sizilianische Mauer­oberfläche der Kirche San Sebastianello erinnern, die sich auf dem Gelände des Pavillons befand und für den Bau der Gemeindegebäude Rapisardis abgerissen wurde.

Dieser Text basiert auf einem Projektbeschrieb der Architekten, zuerst erschienen in Archi 5/2018. Übersetzung: Zieltext

Am Bau Beteiligte
 

Sozialer Wohnungsbau, Bry-sur-Marne
 

Bauherrschaft
Immobilière 3f, Paris
 

Architektur
Eliet & Lehmann Architectes, Paris
 

Tragwerksplanung
C&E Ingénierie, Paris
 

RVCS-Anlagenplanung
LBE Fluides, Jouélès-Tours
 

Fertigstellung
2012
 

Zertifizierung/Energiestandard
THPE EnR (Très Haute Performance Energétique énergies renouve­lables) 2005 Cep Réf –30 % Habitat & Environnement
 

Museumspavillon der Artemision-Ausgrabungen, Syrakus
 

Bauherrschaft
Gemeinde Syrakus
 

Architektur
Vincenzo Latina Architetti, Syrakus
 

ARGE
2G Costruzioni srl, Messina; M.A.C. restauri srl, Agrigento
 

Tiefbau
Nicola Impollonia, Syrakus
 

Elektroinstallation
Sirgen srl, Floridia
 

Fertigstellung
2013

Magazine

Articoli correlati