Kol­lek­tiv und In­di­vi­duum

Projektwettbewerb Alterswohnungen, Kreuzlingen

«Erhalt oder Ersatzneubau?» lautete die Frage bei der Erweiterung des Alters- und Pflegeheims in Kreuzlingen. Berrel Berrel Kräutler brechen den Westflügel ab und bauen die 70 Alterswohnungen um einen Innenhof neu.

Data di pubblicazione
31-05-2018
Revision
31-05-2018

Das Alters- und Pflegeheim der Genossenschaft Alters­zentrum Kreuzlingen von Antoniol & Huber Architekten wurde 1976 eröffnet. Die Anlage besteht aus zwei winkelförmigen Trakten: dem fünfgeschossigen Hauptgebäude mit Alters- und Pflegeheim im Nordosten und der dreigeschossigen Alterssiedlung im ­Südwesten des Areals. Bereits 2001 wurde das Alters- und Pflegeheim erweitert und vor drei Jahren durch einen Neubau im Norden ergänzt (Architektur: Hubert Bischoff, Wolfhalden). Zurzeit wird der Mittelteil des Hauptgebäudes umgebaut (Grosjean Architekten, Kreuzlingen).

Ursprünglich hatte das Amt für Denkmalpflege des Kantons Thurgau der Stadt Kreuzlingen empfohlen, die architekturgeschichtlich bedeutende und für die Zeit typische Alterssiedlung unter Schutz zu stellen. Die charakteristischen Elemente wie Sichtbetonfassade und Schottenstruktur erschweren aber die energetische Sanierung und eine flexible Teilung der Grundrisse. Mit einer sorgfältigen Machbarkeitsstudie konnte die Denkmalpflege davon überzeugt werden, den Schutzumfang erst nach Abschluss des Wettbewerbs festzulegen und gegebenenfalls auf die Unterschutzstellung zu verzichten. Die Wettbewerbsaufgabe wurde deshalb offen formuliert. Es war den Teilnehmenden freigestellt, ob sie die bestehenden Alterswohnungen integrieren oder durch einen Neubau ersetzen.

Insgesamt sollen 70 altersgerechte, hindernisfreie Wohnungen mit Gemeinschaftsräumen sowie weitere Räume für die Verwaltung und Betreuung entstehen. Um entsprechende Vorschläge zu erhalten, schrieb die Genossenschaft Alters­zentrum Kreuzlingen einen Projektwettbewerb im offenen Verfahren aus. Das Verfahren wurde explizit so gewählt, dass auch jüngere Architekturbüros teilnehmen können. Leider wurden im Programm die Passagen der Ordnung für Wettbewerbe SIA 142 zu den Ansprüchen aus Wettbewerben und zu den Streitfällen wegbedungen, weil diese gemäss Weko den Bestimmungen des öffentlichen Beschaffungswesens widersprechen könnten. Dabei wäre dies gar nicht nötig gewesen, da die Ordnung nur subsi­diär zu diesen Bestimmungen gilt, also nur dort zur Anwendung kommt, wo gesetzliche Grundlagen fehlen. Bei Widersprüchen gehen grundsätzlich die Bestimmungen des öffentlichen Beschaffungswesens vor.

Japanisches Vorbild

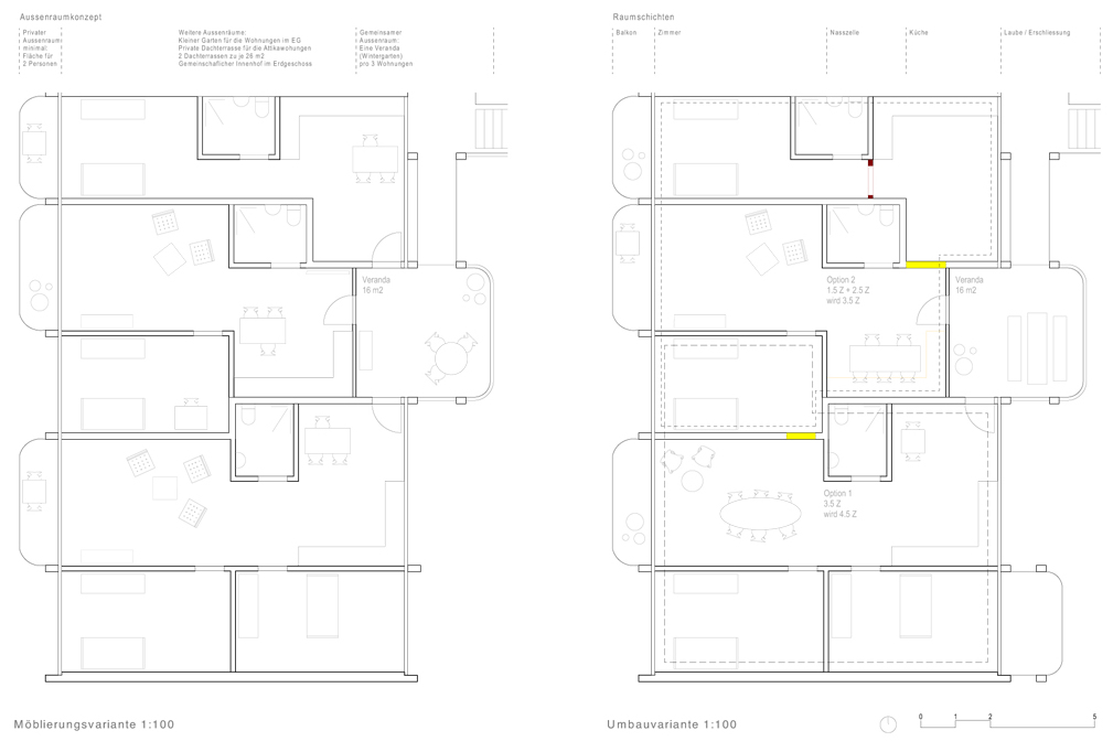
Der einstimmig zur Weiterbearbeitung empfohlene Beitrag «Shinsen-do» von Berrel Berrel Kräutler nimmt Bezug auf die gleichnamige buddhistische Tempelanlage in Kyoto. Die dreigeschossige Alterssiedlung wird durch einen fünfgeschossigen Neubau ersetzt, der einen klar gefassten Innenhof umschliesst. Das neue Gebäude ist im Südosten mit dem bestehenden Hauptbau verbunden und öffnet sich gegen Norden. Der Hof ist gut proportioniert, erreicht aber mit der unterirdischen Einstellhalle, die die Bepflanzung einschränkt, und den bescheidenen Dimensionen nicht die Qualitäten des japanischen Vorbilds.

Vom Haupteingang im Westen an der Kirchstrasse gelangt man in eine Eingangshalle mit Verbindung zum Innenhof. Von dort erschliessen zwei Treppenhäuser Tiefgarage, Kellerräume und die vier Obergeschosse. Laubengänge auf der Hofseite führen zu den dortigen Wohnungen. Die Lauben schliessen direkt an das Hauptgebäude an und sind so grosszügig bemessen, dass sie als Gemeinschaftsflächen genutzt werden können. Die privaten, umlaufenden Balkone auf der Aussenseite hingegen sind so schmal, dass sie nur beschränkt nutzbar sind.

Fast alle Wohnungen sind gegen Süden oder Westen orientiert. Die Tragstruktur aus Stützen sowie Erschliessungs- und Sanitärkernen ist sehr flexibel. Die Grossform schöpft die Möglichkeiten des Zonenplans und des Baureglements zur Verdichtung dieses zentrumsnahen Gebiets aus. Wie der Vorgänger setzt auch der Neubau auf die Effizienz der Erschliessung mit Laubengängen. Mit fünf statt drei Geschossen und einer Länge von über 50 m führt der Neubau in das Wohnquartier einen fast schon grossstädtischen Massstab ein.

Öffentlich und privat

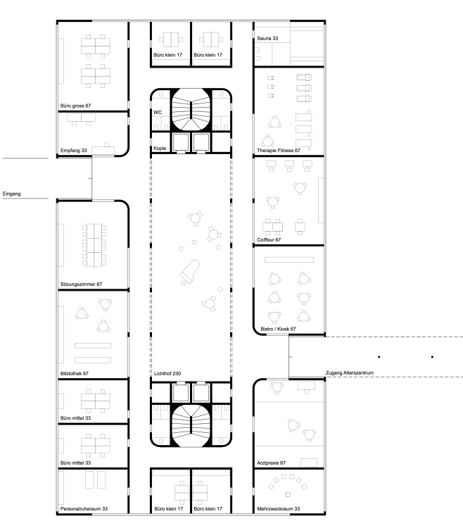
Anstelle der bestehenden Alters­wohnungen schlägt der zweitrangierte Entwurf «Lichthof» von AMZ Ar­chitekten einen fünfgeschossigen Solitär längs der Kirchstrasse vor. Dieser ist gegenüber den be­stehenden Gebäuden leicht von der Strasse abgerückt und kompensiert die Mehrhöhe mit respektvoller Distanz. Über einen offenen, gedeckten Durchgang ist der Neubau mit dem Hauptgebäude verbunden, setzt sich aber klar vom Bestand ab.

Der Beitrag zeichnet sich durch den Lichthof als kollektiven Raum mit umlaufenden Laubengängen und generösen, weit in das Gebäude eingeschnittenen Loggien aus. Leider ist die Tragstruktur unklar, und auch die Materialisierung bleibt schematisch. Trotzdem ist die visionäre Idee eines kollektiven Wohnens stark und konsequent im Ansatz. Sie basiert auf einem aus­tarierten Verhältnis von gemeinschaftlichen und privaten Aussenräumen, die beide gerade im Alter immer wichtiger werden.

Vorteil Städtebau

Das Projekt «Stonehenge» von Müller Architekten bleibt nah an der Konzeption der bestehenden Anlage. Auch bei diesem Beitrag muss die bestehende Alterssiedlung einer fünfgeschossigen Bebauung weichen. Der gegen Norden ganz ge­öffnete Hof fällt etwas grösser als vorher aus und wird zum neuen ­Zentrum der ganzen Anlage. Sechs Treppenhäuser erschliessen die dreispännig organisierten Wohnungen. Das Dach wird als Gemeinschaftsgarten aktiviert und mit Pergolen, Atelier- und Bastelräumen ausgestattet. Der Beitrag ist einfach und städtebaulich solide aufgebaut; die Grundrisse sind attraktiv und vielfältig. Die Erschliessung aber ist aufwendig, und im architekto­nischen Ausdruck stellte das Preisgericht Mängel fest.

Die Gemeinschaft zuerst

Konzepte, die versuchten, den Bestand in die Erweiterung zu in­te­grieren, konnten sich im Wett­bewerb nicht behaupten. Die winkelförmige Erweiterung von Müller Architekten lehnt sich an den bestehenden Komplex an und wirkt ein wenig blass. Der radikale Ansatz von AMZ Architekten mit Bezügen zu den gros­sen Visionen kollektiven ­Wohnens von Henri Sauvage war zu ­schematisch und musste mit dem undankbaren zweiten Platz vorlieb nehmen. Durchgesetzt hat sich der Beitrag von Berrel Berrel Kräutler, der mit dem Schwergewicht auf die gemeinschaftlichen Aussenräume Haltung zeigt und das bestehende Konzept gekonnt weiterentwickelt.

Weitere Infos und Pläne unter competitions.espazium.ch

Auszeichnungen
 

1. Rang / 1. Preis: «Shinsen-do»
Berrel Berrel Kräutler Architekten, Zürich; ASP Landschaftsarchitekten, Zürich

2. Rang / 2. Preis: «Lichthof»
AMZ Architekten, Zürich

3. Rang / 3. Preis: «Stonehenge»
Franziska / Sebastian Müller Architekten, Zürich

4. Rang / 4. Preis: «Marie & Heidi»
Schmutz & Marty Architekten, Zürich

5. Rang / 5. Preis: «Laubengesang»
Gut Deubelbeiss Architekten, Luzern

6. Rang / 6. Preis: «Deheim»
Mora Sidler Bergua Architekten, Zürich
 

FachJury
 

Ueli Laedrach, Architekt, Vertreter Stadtbildkommission (Vorsitz); Erol Doguoglu, Architekt, Kantons­baumeister Kanton Thurgau; Beat Consoni, Architekt, St. Gallen; Susanne Müller, Architektin, Zürich

Articoli correlati