Il dia­lo­go con il con­te­sto nel­le pro­po­ste di con­cor­so

Il caso dell’Istituto di ricerca oncologica a Bellinzona.

L’esito del concorso per il nuovo edificio della Fondazione dell’Istituto di ricerca oncologica a Bellinzona ha evidenziato il ruolo centrale del dialogo tra architettura e contesto. I progetti premiati si distinguono per l’approccio all’integrazione con l’esistente, tra affinità formali e nuove identità spaziali.

Data di pubblicazione
14-03-2025

Uno degli aspetti più importanti con cui confrontarsi nei concorsi di architettura è da sempre la relazione fra la proposta progettuale ed il territorio, il contesto costruito e culturale circostanti. È stato reso noto da poco l’esito del bando per la costruzione di un nuovo stabile laboratori e sala convegni per la Fondazione dell’Istituto di ricerca oncologica a Bellinzona. Di particolare interesse sono state le proposte architettoniche dei professionisti formulate nel cercare di far proprio il contesto e dare risposte convincenti agli interrogativi di integrazione. 

La zona di concorso ospita diversi importanti edifici di carattere pubblico e strutture della città, costruiti tutti dopo la seconda metà del secolo scorso. Le volumetrie più importanti si situano ai limiti di una zona verde, andando a definire un generoso vuoto urbano. Anche il sedime destinato ad ospitare il nuovo edificio, nella parte a nord ed ad ovest, si affaccia su questo grande parco, che nella parte ad est è confinato dal volume esistente che ospita l’edificio di ricerca biologica. L’area di concorso è una sorta di cerniera tra due maglie di sviluppo urbano della città. La prima corrisponde all’espansione di edifici residenziali risalente alla seconda metà del Novecento, dopo la fine delle due guerre mondiali, durante le quali era invece sede militare e costituisce altresì un ampliamento della parte di città giardino sviluppatasi dopo l’avvento della ferrovia. La seconda maglia è parallela all’asse del fiume Ticino ed ospita strutture di pubblico interesse come il Bagno pubblico diventate esempi emblematici di un modo di leggere il territorio della “Scuola Ticinese”.

Nell’ambito del concorso a venire in rilievo non era solo il profilo dell’inserimento territoriale, ma anche quello concernente la relazione con l’edificio esistente, di elevata qualità architettonica, sede dell’Istituto di ricerca biologica completato nel 2021 dal team dell’architetto Aurelio Galfetti. 

Il bando richiedeva, oltre agli spazi di laboratorio flessibili e modulari, una sala conferenze accessibile dall’esterno anche per l’uso da parte della comunità, un collegamento fisico con lo stabile esistente oltre a spazi di condivisione tra ricercatori come caffetterie e mense, nell’ottica quindi di organizzare tutte le funzioni e di metterle in chiare relazioni fra loro. 

I team di progetto ammessi alla seconda fase sono stati otto, di cui – all’esito di un’ulteriore scrematura – ne sono stati selezionati quattro, fra i quali emergono due differenti atteggiamenti nelle risposte alle domande che sorgono in merito a temi di identità e serialità nell’architettura.

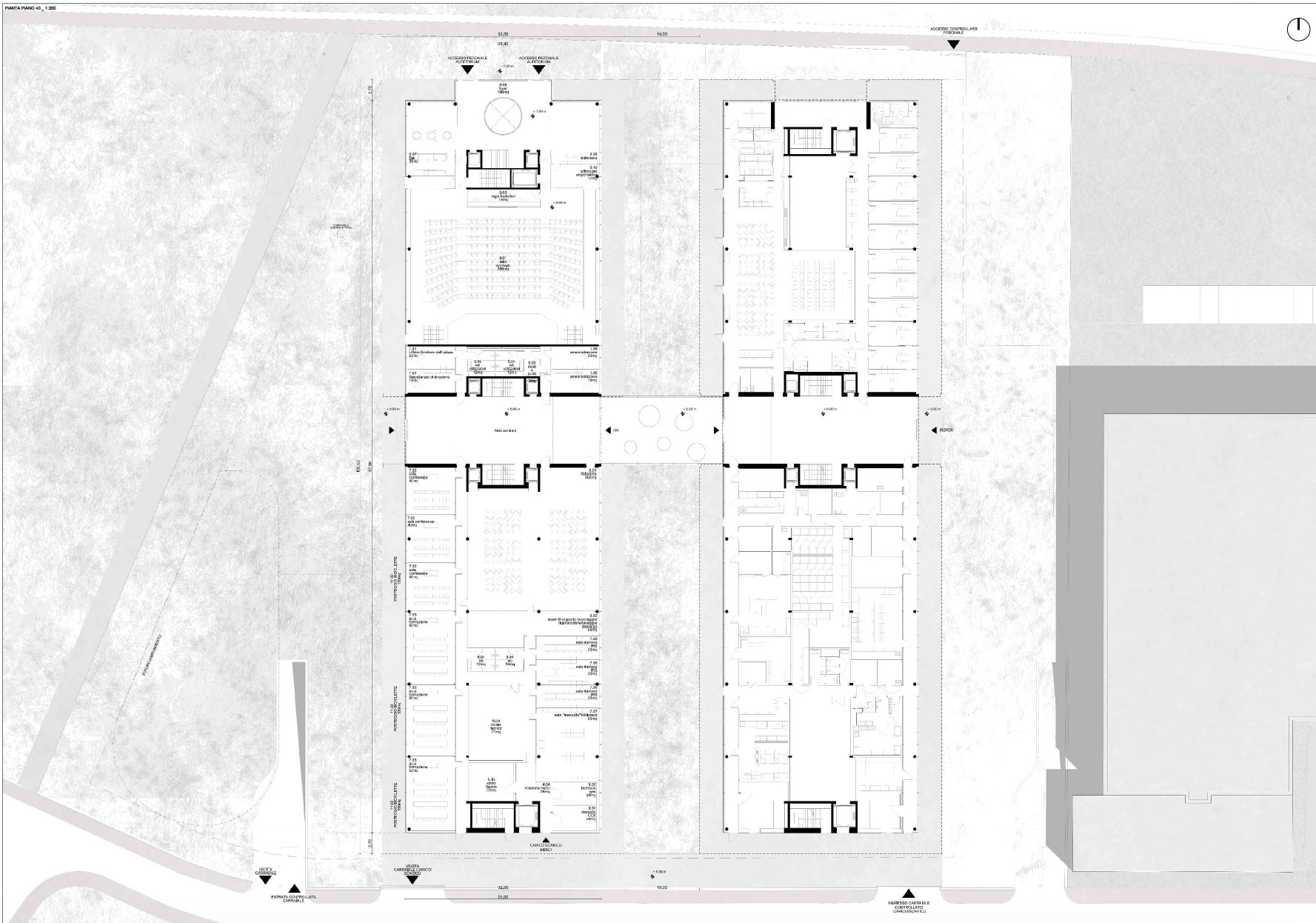
Si può infatti affermare che se i primi due progetti - quello vincitore degli architetti Ilg Santer e Buzzi Architettura - ed il secondo - di Itten Brechbühl - adottano un atteggiamento di “fratellanza” con lo stabile esistente, gli altri due - degli architetti Cruz ed Ortiz e Galfetti Associati, Bondini - adottano un atteggiamento di “gemellaggio”, andando a replicare la volumetria e certi elementi dello stabile di Galfetti per comporre una sola unità.

Nella proposta vincitrice degli architetti Ilg Santer e Buzzi Architettura allo stabile esistente vengono accostati due volumi liberi orientati secondo la maglia parallela al fiume e legati allo stabile esistente da un elemento basso. L’insieme dei volumi forma un piccolo campus di ricerca e formazione con edifici dalle funzioni riconoscibili: l’edificio di forma cubica ospiterà i laboratori, mentre l’elemento di forma cilindrica sarà adibito la sala congressi. La scelta di rendere la parte congressuale autonoma rispetto agli altri volumi, con una chiara identità, è stata molto apprezzata dalla giuria, in quanto farà emergere un altro elemento pubblico riconoscibile dell’insieme dato alla città. Il volume, infatti, oltre alla sala congressi presenta una generosa galleria di entrata a piano terra, che consente intensi rapporti spaziali tra dentro e fuori, utilizzabile anche per eventi ed utenti esterni. Nel volume dedicato ai laboratori si coglie una chiarezza strutturale e tipologica con spazi generosi ed aperti.

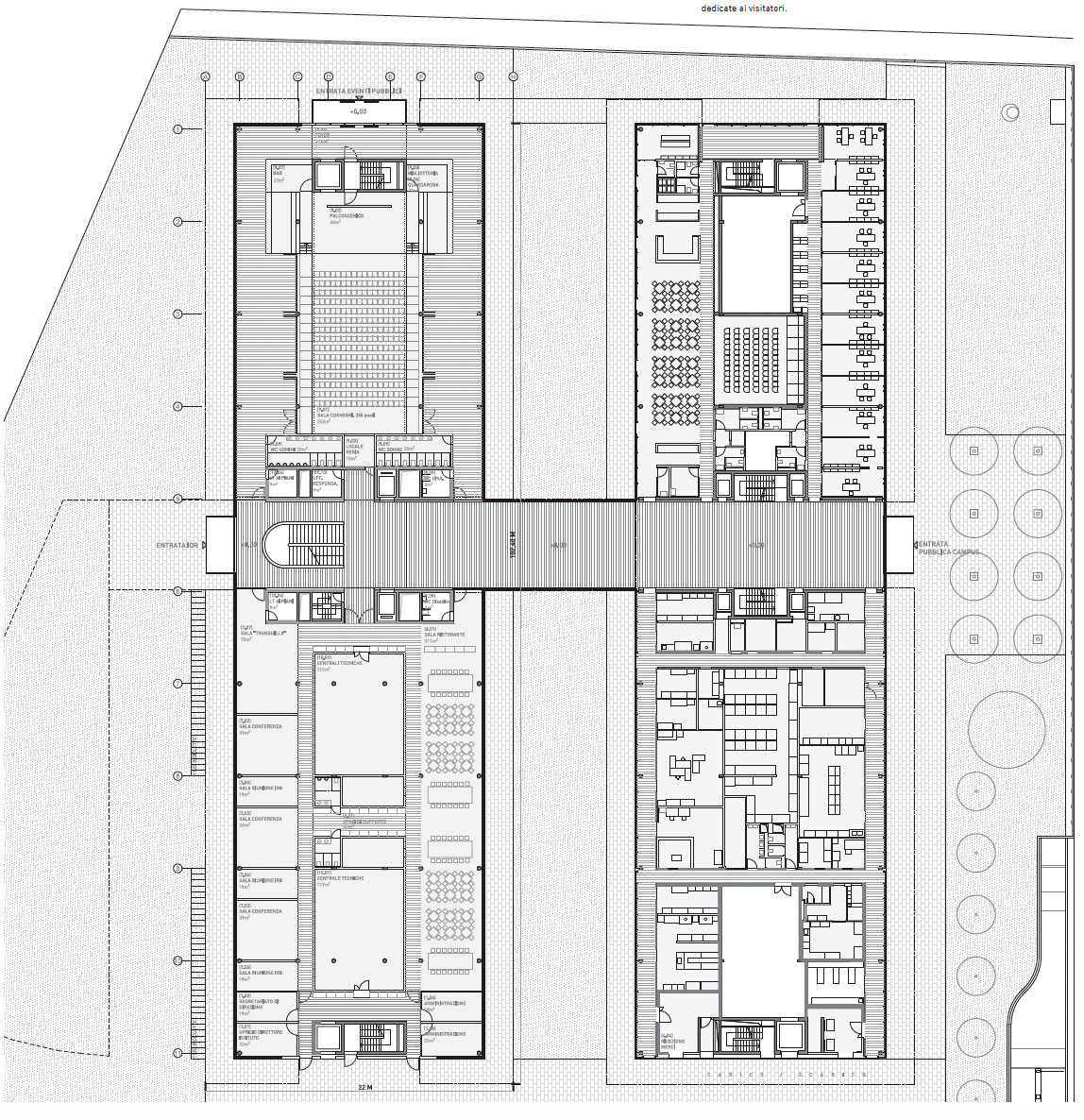
Il secondo progetto premiato - di Itten Brechbühl - risulta molto simile per attitudine al primo, inserendosi a cavallo tra la maglia urbana residenziale nord-sud e quella disposta parallela al fiume. In questo caso, un solo volume di pianta quadrata, ruotato secondo quest’ultima maglia, ribadisce il suo carattere pubblico e genera spazi esterni di carattere diverso e con chiare gerarchie. Nella parte nord si libera un generoso spazio di accesso al parco pubblico mentre ad est si offre un’area più protetta riservata agli utenti dello stabile.

Il terzo progetto premiato – di Cruz e Ortiz - replica invece la volumetria esistente, ampliandola e valorizzandola per avere una lettura di un’unità. La volontà dei progettisti è infatti quella di avere una grande affinità architettonica di modo che l’intero complesso sia percepito come un’unità di campus capace di generare sinergie dirette tra i ricercatori, dando l’impressione di un edificio unico costruito in due fasi. La sala congressi è collocata all’interno del nuovo volume e gli accessi si situano nella mezzeria degli stabili dirimpetto.

Anche i progettisti del quarto progetto premiato, Galfetti Associati e Bondini, che per volumetria riprende quella dello stabile esistente, sottolineano il fatto che la duplicazione non è questione della banalità della replica, bensì dello sviluppo armonico di un insieme con potenziali generativi di un organismo unitario per impostazione, forma e struttura. Una postura di continuità quindi anche in termini di linguaggio stante la non vetustà dell’edificio esistente e l’apprezzamento da parte degli utenti.

Vale la pena rimarcare come in questo caso tutti i progetti premiati, pur in forme differenti, abbiano cercato un dialogo finalizzato ad una relazione precisa con il territorio in primis e l’edificio esistente, mediante atteggiamenti architettonici di emulazione a differenti livelli e sfumature, con un grande controllo ed equilibrio negli approcci.


 

Articoli correlati