Stä­hler­nes Wa­ch­stum

Weiterbauen im Industriequartier

Mit der Aufstockung eines ehemaligen Produktionsgebäudes deuten Meier Hug Architekten das industrielle Erbe der Binz in Zürich für eine Büronutzung um. Dabei zeigen sie, wie die Stadt mit Stahl wachsen kann. 

Data di pubblicazione
03-11-2017
Revision
05-11-2017
Lucia Gratz
Dipl. Architektin TU/ MAS ETH SIA, Journalistin MAZ

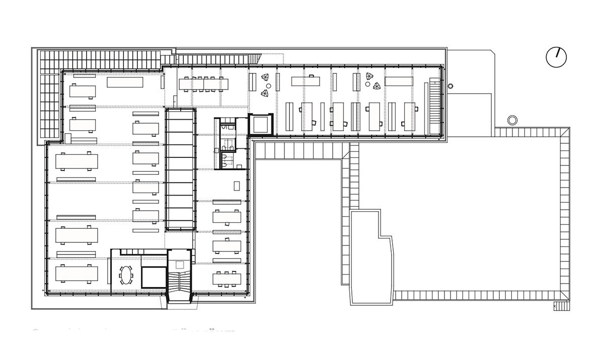
Fliessend, hell und leicht wirken die neuen Räume auf dem Dach der ehemaligen Speisefettfabrik Hans Kaspar in Zürich. Zwischen schlanken Fassadenprofilen und Glaswänden hindurch überblicken die Büromitarbeitenden von ihren Schreibtischen aus das Binzquartier. Nach einem Brand im Keller vor zwei Jahren haben Meier Hug Architekten das Produktionsgebäude aus den 1920er-Jahren mit einem eingeschossigen Stahlbau aufgestockt, die Fassaden aussen teils gedämmt und im Innern die Erschliessung auf seine jetzige Nutzung als Atelier- und Gewerbebau nachjustiert.

Das bauliche Update sichert eine Weiternutzung des bei Kreativschaffenden beliebten Bestands für die nächsten zwanzig Jahre. Mit der Erweiterung auf dem Dach machten die Architekten aus der Not eine Tugend. Um 700 m2 Geschossfläche zu gewinnen, gingen sie pragmatisch auf die Vorgaben aus dem Baugesetz ein, gewiss auch aus eigenem Interesse an der Sache: Als Mieter der Aufstockung trug das Architekturbüro die Er­stellungskosten des zusätzlichen Geschosses teils selber und erhielt im Gegenzug vom Eigentümer einen langfristigen Mietvertrag zu vergünstigten Kondi­tionen. 

Fein austariert zeigt sich der ausgeführte Zuschnitt – bei möglichst geringen Abstrichen in der Raumhöhe wurde die Fläche optimal genutzt. Der Grundriss folgt, vom Dachrand leicht zurückversetzt, dem L-förmigen Gebäude­umriss und greift die deutlichen Rücksprünge in der Nordwestecke der Fassade auf, um eine Dachterrasse zum Aufenthalt im Freien anzubieten. Das feilschende Entwerfen mit den begrenzten Raumressourcen setzt sich als abwägende Haltung durch das gesamte Projekt fort. 

Stahl überzeugt im industriellen Kontext

Den zahlreichen Vorteilen zum Trotz fiel die Wahl auf ein Tragwerk aus Stahl erst in Verbindung mit dessen in­dustriell geprägtem Ausdruck, der die Architekten im Kontext von Gebäude und Quartier überzeugte. Als oberstes Geschoss von den Anforderungen des Brandschutzes entbunden, prägt die sichtbare Stahlstruktur die Erscheinung des eingeschossigen Innenraums. Hell gestrichene Stahlrahmen gliedern die drei längs gerichteten, offenen Büro­bereiche in mehrere gleichartige Abschnitte und takten die Abstände der Arbeitskojen.

Die Eindeckung aus Trapezblechen mit Akustiklochung mäandert scheinbar schwerelos darüber. Statt wie bei manch modernen Stahlbauklassikern handwerklich präzise verschweisst, sind die Rahmen in der Binz pragmatisch biegesteif verschraubt. Ihre sichtbaren Verbindungen folgen einer durchgehenden architektonischen Logik: Immer gleich schliessen die auf den Träger­enden aufgeschweissten Stirnplatten mit vier Sechskantschrauben seitlich an die Stützen an. 

Innerhalb der begrenzten Optionen der Aufstockung spielt der Stahlbau seine Stärken aus: Stüt­zenfrei überspannen IPE-Träger die gesamten Raumtiefen zwischen 6 und 14 m. Die Lasten aus den einzelnen Stützenfeldern werden so über die massiven Aussenwände des Fabrikbaus abgetragen. Um der Durchbiegung der reduziert gehaltenen Querschnitte entgegenzuwirken, wurden die Träger mit den grössten Spannweiten um ein paar Zentimeter überhöht produziert und eingebaut. 

Aus der optimierten Hallenkonstruktion sind Räume zum Zusammenarbeiten entstanden. Innerhalb der offenen Struktur reihen sich Tischinseln entlang der vertikal gegliederten Pfosten-Riegel-Fassade. Ein Lichthof und die aus dem Bestand übernommenen Unregelmässigkeiten der Bodenhöhen erzeugen abwechslungsreiche Raumfolgen. Einzelne Bereiche wurden mit Wollvorhängen oder Glaswänden aus­gestattet, um sie vom Grossraum abtrennen zu können.

Mit Schreiner­einbauten fix eingehaust sind hingegen Sanitärbereiche, Technik- und Besprechungsraum, die an den Liftkern und das Treppenhaus gekoppelt sind. Ein Teil der für den Stahlbau klimatisch notwendigen Speichermasse kam mit dem geschliffenen Betonboden ins Haus, der über die gesamte Fläche eingebracht wurde. Ein ausgeglichenes Raumklima wird im Wesentlichen über dessen Aktivierung erreicht.

In der Binz ist das Verhältnis von Bestand zur Aufstockung als vordergründiger Kontrast formuliert. Erscheint der Aufbau, der das Fa­brikgebäude neu bekrönt, zunächst als Fremdkörper, so wirkt er gleich dar­auf wie herausgewachsen. Noch dünnhäutig gläsern, noch nicht ­mural erstarrt nimmt die Fassade der Aufstockung das tektonische ­Vo­kabular des Gebäudes auf, das in den 1950er-­Jahren erweitert und gesamthaft überform­t wurde. Wie gerippte Füllungen und Fenster­einfassungen aus Kunststein den Bestand akzentuieren, verleihen Lisenen und niedrige, fein gekantete Brüstungsbleche der neuen Glas-Metall-Fassade plastische Qualitäten. Aufeinander abgestimmte Farben unterstützen die Wahrnehmung des Gebäudes als Ganzes.

Die Büroaufstockung findet spezifische und zugleich übertragbare Antworten auf eine aktuelle Bauaufgabe. Auch mit einer heterogenen Aus­gangslage zeigt sich das Konstruktionsmaterial Stahl für das Weiterbauen im städtischen Umfeld so leistungsfähig wie im Ausdruck geeignet, starke Räume zu definieren. 

Am Bau Beteiligte
 

Bauherrschaft
Hans Kaspar, Zufikon


Architektur
Meier Hug Architekten


Tragwerk
Synaxis AG


Stahlbauunternehmung
Baltensperger Stahlbau, Höri
Schoch Metallbau AG

Articoli correlati