Sch­wer­gewi­ch­ti­ger Rock ’n’ Roll

Im Zürcher Freilager entstand schweizweit die bisher grösste Wohnüberbauung aus Holz. Das an den drei Bauten direkt in Erscheinung tretende Holz drückt selbstbewusst ein neues Verständnis zu dem Material aus. 

Data di pubblicazione
01-12-2016
Revision
14-06-2017
Paul Knüsel
Fach- und Wissenschaftsjournalist bei Faktor Journalisten

Im Zürcher Freilager entstand schweizweit die bisher grösste Wohnüberbauung aus Holz. Das an den drei Bauten direkt in Erscheinung tretende Holz drückt selbstbewusst ein neues Verständnis zu dem Material aus. 

 Vor 47 Jahren zelebrierte die Hippiebewegung das Woodstock-Festival. Die bunten Bilder schockierten anfänglich das Bürgertum; heute ist damit der Mythos einer friedliebenden, leicht chaotischen Jugendgeneration gemeint. Ob die drei Langhäuser im Zürcher Freilager-Areal eine ähnliche Karriere vor sich haben, sei dahingestellt. Tatsächlich lautete ihr ursprünglicher Name im Wettbewerbsprojekt «Woodstock»; Geblieben ist der von Architekt Rolf Mühlethaler entworfene Ausdruck eines «nonkonformen ausdrucksvollen Lebensgefühls». Der Werk- und Baustoff Holz ist dafür bewusst gewählt, weil das Material für eine Mischung aus Tradition, Handwerk, Innovation und Nachhaltigkeit steht. 

Seit gut zehn Jahren ist die architektonisch belebende Wirkung im Grossraum Zürich sichtbar: Über ein Dutzend mehrgeschossiger Wohnbauten aus Holz sind entstanden. Den urbanen Holzbau haben zuerst öffentliche und gemeinnützige Bauherrschaften salonfähig gemacht. Inzwischen gehören solche Projekte auch bei privaten und institutionellen Investoren zum guten Ton. Im Letziquartier kann die Zürcher Freilager AG nun das bisher grösstformatige Wohnbauprojekt aus Holz der Schweiz präsentieren: drei sechsgeschossige Langhäuser mit 187 Wohnungen. Als Wagnis erscheint vor allem, die gut erkennbare Holzarchitektur mitten in einem derart schwergewichtigen, urbanen Quartier. Die Begehung vor Ort, vor Abschluss der Bauarbeiten, lässt erahnen, dass die Strategie gelungen ist.

Ehrlich materialisiert

Die drei 70 m bis 100 m langen Holzbauten selbst sind ehrlich materialisiert sowie streng und ruhig strukturiert. Die Fassaden sind mit Weisstanne verschalt und dunkelbraun eingefärbt. Für hohe Wetterfestigkeit und Farbbeständigkeit sorgt ein spezielles, umweltverträgliches Druckimprägnier- und Behandlungsverfahren. 

Ebenso einprägsam ist die klare, einheitliche, aber nicht eintönig wirkende Gliederung der Gebäudeansichten: Raumhohe Fenster und Balkontüren wechseln sich mit identisch breiten Wandelementen ab; feine Stützen und Zwischenwände rhythmisieren die Balkongänge in vertikaler Hinsicht. Die beidseitigen, uniformen Verandaschichten sind gemäss Rolf Mühlethaler auch sozial gleichberechtigt gedacht. Sie eröffnen allen Wohnungen vom Parterre bis zum obersten Geschoss denselben grosszügigen Aus-senraum. Die Längsbauten besitzen eine einfache Volumetrie, weshalb die auf drei Seiten gefassten Zwischenräume nicht beengend wirken. Am Kopf der Woodstock-Häuser folgen seitlich leicht versetzte Hochhäuser aus Beton, ohne gestalterisch davon bedrängt zu werden.

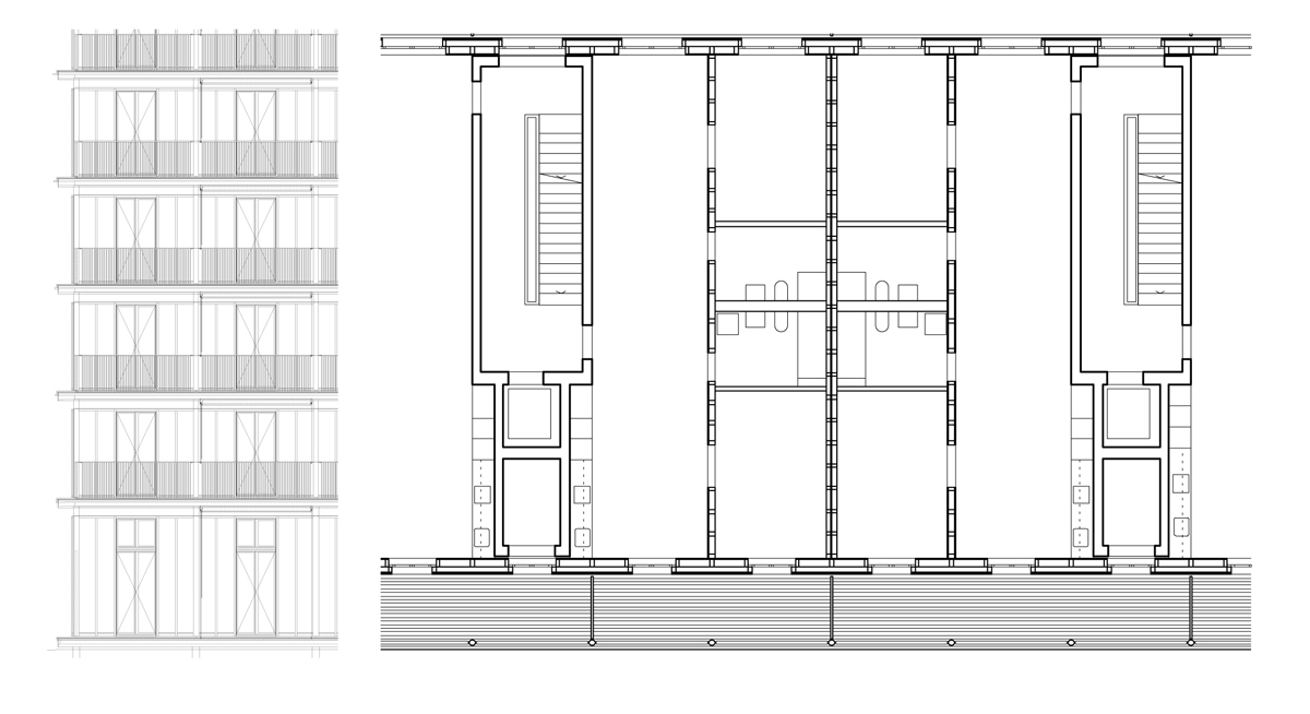
Pragmatische Gebäudestruktur

Die Baukörper sind als aneinandergereihte Zweispänner organisiert; dazwischen steifen Erschliessungskerne aus Beton die Zeilen aus. Die Grundrisse der meisten Wohnungen erstrecken sich auf beide gegenüberliegenden Gebäudeseiten. Sie gehorchen einem standardisierten, modularen Grundrissprinzip. Bereits das Entrée ist ein Raum mit passabler Grösse. Derweil sind die fassadenorientierten Raumeinheiten variabel eingeteilt. Auf der einen Seite öffnet sich die Küche zum kombinierten Wohn- und Essbereich. Der gespiegelte, identisch grosse Raum ist auf der gegenüberliegenden Seite in zwei Zimmer aufgeteilt. 

Das Raumklima wird mit einer Bodenheizung und einer mechanischen Belüftung organisiert. Als CO2-arme Energiequelle wird für das Freilager-Areal Erdwärme genutzt; die Erdsonden liefern im Winter die Grundwärme zum Beheizen. Dabei wird der Untergrund, der von 205 Erdsonden als Speicher bewirtschaftet wird, mit Abwärme aus einer Büroliegenschaft regeneriert.

Von der Wettbewerbsjury gelobt wurde die nachhaltige Qualität der Holzbauweise. Die Langhäuser wurden gemäss dem Standard Minergie-Eco zertifiziert. Die haustechnischen Installationen werden daher nach dem Prinzip der Systemtrennung durch die Holzbaustruktur geführt. Die Steigschächte befinden sich im Betonkern, der die Wand-, Decken- und Fassadenelemente aus Holz zusammenhält. 

Ein aus 3000 Elementen bestehendes Langhaus ist in drei bis vier Monaten zusammengesetzt und -geschraubt worden. Aus Platzgründen mussten die Systemelemente «just in time» angeliefert werden. Während der Hauptphase wurden so bis zu acht Lastwagenladungen am Tag verbaut. Die Woodstock-Langhäuser werden im architektonischen Entwurf mit dem Hippietum assoziert; ihre Entstehung erfolgte zeitweise aber mit Rock-’n’-Roll-Dampf.    

Dieses Projekt wurde realisiert mit Unterstützung des Bundesamtes für Umwelt (BAFU) im Rahmen des Aktionsplans Holz.

Der Artikel ist im Sonderheft «Stadt aus Holz II» erschienen. Weitere Beiträge zum Thema Holzbau finden sich im gleichnamigen E-Dossier.

Am Bau Beteiligte
 

Grundeigentum / Bauherr
Zürcher Freilager


TU
Allreal GU, Zürich


Architektur / GP Teilgebiet A
Rolf Mühlethaler Architekt, Bern


Bauingenieur
Ingenta, Bern


Holzbauingenieur
Indermühle Bauingenieure, Thun


Systembau
Renggli, Schötz


Brandschutz / HLKK-S-E-Planung
Amstein + Walthert, Zürich

Weitere Informationen


Gebäude
Teilgebiet A: Langhäuser A5–A7, 187 Wohnungen (Flächen inkl. UG)
Volumen GV: 94 500 m3
Geschossfläche: 28 100 m2
Nettowohnfläche: 16 800 m2
Verkehrsfläche: 4350 m2
Label: Minergie-P-Eco und HSH, Herkunftszeichen Schweizer Holz (Weisstanne)

 

Holz und Konstruktion
Wände: vorfabrizierte Holz-Rahmenelemente, mit vorgehängten Fassadenkassetten
Decken: vorfabrizierte Brettstapeldecken mit Trittschallschüttung / Bodenbelag und Abhangdecken für Akustik / Installationen
Fassadenkassetten: Weisstanne, druckimprägniert, geölt (Schweiz)
Volumen Holz: 1344 m3
Herkunft restl. Holz: Alpenländer/Schweiz

 

Daten
Bauzeit: 2013–2016


Kosten
Baukosten ganze Überbauung: 360 Millionen Fr.

Articoli correlati