L'al­tro mo­der­no di Bian­co­ni

Progettare con la luce e la trasparenza

Chissà cosa hanno pensato gli abitanti di Bellinzona quando furono realizzati i due edifici di Bianconi a Pratocarasso, soli soletti nella campagna tra Bellinzona e Arbedo.

Data di pubblicazione
21-12-2016
Revision
21-12-2016

Né città né campagna

E oggi, mica è molto meglio: da allora, dal 1972, lungo via Vallone sono stati costruiti pochi edifici, e quei pochi oltretutto con allineamenti e volumetrie diversi tra loro, mentre a prevalere sono gli spazi verdi, il campo di calcio, le aree agricole, i terreni incolti. Insomma, in questi decenni via Vallone non è mai diventata una strada, uno spazio urbano. La città non è ancora arrivata sin qui.

Il Comune di Bellinzona aveva promosso nel 2010 lo sviluppo dell’area di Pratocarasso all’interno di una variante di Piano Regolatore, un ambizioso piano urbanistico che si estendeva da via Tatti a ben oltre via Vallone, verso Arbedo. Per la zona di Pratocarasso il progetto contemplava un’urbanizzazione estesa a bassa densità, un percorso nel verde verso il centro città e una zona adibita a centro del nuovo quartiere. Una variante di Piano Regolatore che nel suo complesso trovò forti opposizioni: si deploravano la mancanza di una riflessione sulla città e il suo centro storico, l’aver trascurato l’opportunità di una densificazione dei quartieri già esistenti, l’ulteriore estensione acritica dell’edificato e l’assenza di concetti relativi agli spazi pubblici. Opposizione che sfociò in un referendum, con interessanti dibattiti pubblici e sulla stampa, da cui in particolare emersero critiche al Piano Regolatore in quanto «... va nella direzione contraria agli orientamenti della cultura urbanistica più condivisa e che preclude l’impegno a cercare strade diverse e nuove, dirette a densificare e a ridisegnare le aree interne alla città e già dotate di infrastrutture».1 Il 13 giugno 2010 il progetto comunale fu respinto in votazione popolare.

Fatto sta che oggi – come nel 1972 – i due edifici di Roberto Bianconi rimangono emergenti in un contesto che non ha mai trovato una propria identità, né città né campagna.

L’identità è nel paesaggio lontano

L’identità allora, assente nel contesto circostante, si trova nell’architettura degli edifici. È la forza di questo progetto, che non trovando i propri riferimenti nel quartiere in cui sorge, li va a pigliare in ciò che in quel luogo emerge: il paesaggio. Anzi, nei due differenti paesaggi verso cui dirige i fronti degli edifici. Entrambi di valore: da un lato – verso sud – è il paesaggio della luce e del sole, è l’ampio spazio geografico esteso fino al lontano orizzonte del Verbano, con in primo piano l’emergenza dei castelli a sovrastare il centro storico. Dall’altro lato – verso nord – il paesaggio è invece quello dell’ombra, è la ripida impennata delle montagne dominate dalla vetta del Pizzo Claro, con in basso il solco scuro delle valli che si diramano verso nord.

Così, a fronte di tale diversità Bianconi risolve le due facciate opposte in modo completamente differente. Verso sud ampie vetrate e logge e balconi spalancano gli appartamenti ad abbracciare un paesaggio ampio e luminoso, mentre verso nord sono le lunghe finestre a nastro – che tagliano in orizzontale il pieno delle facciate – ad aprire lo sguardo verso le montagne vicine e l’inizio del Ticino alpino.

Sono queste le scelte progettuali di Bianconi – fondate sui diversi paesaggi – che conducono all’architettura di queste due case d’appartamenti e all’articolazione progettuale dei loro fronti: che oltretutto si arricchiscono nella loro sommatoria figurativa. I due edifici l’uno affiancato all’altro vanno a formare un insieme unitario, con la sequenza ritmata dei due fronti a sud e la compattezza di quelli a nord, che hanno la forza di configurare lo spazio urbano in quel tratto di via Vallone.

Interpretare l’architettura

Certo, il paesaggio è quello lontano. Penso quindi abbia ragione André Bideau, che nel bell’articolo Tessiner und andere Tendenzen2 scrive (tradotto liberamente dal tedesco) che Bianconi «... tematizza nel linguaggio e nella struttura proprio la banalità di una periferia senza volto: si tratta di abitazioni speculative a basso costo, che devono rimanere all’interno delle prescrizioni delle abitazioni sovvenzioniate. Rispetto all’attenzione al contesto di questi anni sono assenti nel progetto i riferimenti al contesto storico: un luogo in cui si dorme e ci si riposa dopo aver lavorato in un altro luogo. Mediante un’astrazione stilistica Bianconi riesce a rendere evidenti le specificità di questa architettura, così come del resto scrive nel catalogo dell’esposizione zurighese del 1975 Tendenzen–Neuere Architektur im Tessin: “sarebbe un malinteso, con la costruzione di case d’appartamento, voler superare la banalità del luogo con delle enfasi formali“. Con la loro compassata serialità gli edifici abitativi assumono un valore proprio, dove il riferimento all’estetica delle macchine e al Neues Bauen ricordano i primi lavori di Roger Diener».

Se si ha a mente le architetture più conosciute degli anni Settanta in Ticino e i temi formali e di materializzazione che le accomunano, questa di Bianconi fa gioco a parte. È un’architettura che va per conto suo. Ed è forse questa sua unicità a motivare l’assenza di un’indagine approfondita, analitica di questa architettura. Finora, l’interpretazione più diffusa deriva soprattutto dalla vista del fronte sud, con i corpi verticali dei balconi e delle logge, la cadenza ritmica dei volumi e l’abbondanza di ferro e vetro. Da qui nascono affermazioni come quella di Bideau di un’architettura che si riferisce «all’estetica delle macchine e del Neues Bauen», oppure, come ho io stesso scritto «... che vuole rifarsi alle esperienze storiche del funzionalismo nordico, ma che non disdegna riferimenti al costruttivismo russo, specie nel libero montaggio di elementi formalmente e costruttivamente indipendenti tra loro».3 Oppure Tita Carloni che scrive: «... case d’appartamenti coraggiose, molto interessanti nelle piante e negli alzati, quasi un richiamo al costruttivismo degli anni ’20 e alle prime suggestioni del ferro, del vetro e dei materiali leggeri».4 

Si tratta di valutazioni, io credo, in sé pertinenti, motivate come detto dalla scomposizione volumetrica e dalla cadenza dei pieni e dei vuoti, nonché dall’impiego quasi disinvolto del vetro: appunto, le avanguardie russe e il Neues Bauen.

Una cosa è comunque certa. Questa è architettura che ama – anzi che cerca – la luce e la trasparenza, e la risposta è di tradurli non solo in soggetti formali per disegnare i fronti degli edifici, ma anche in temi fondamentali della ricerca tipologica interna, nel progettare gli spazi interni degli appartamenti e le loro relazioni con l’esterno. In questo senso diventa allora difficile disgiungere le scelte formali delle facciate da quelle spaziali interne, perché le une e le altre sono tra loro intimamente allacciate. Non nel senso, io credo, che la facciata esprima la funzione interna – anche se nessuno oserebbe dire che non siano degli appartamenti – ma proprio perché interno ed esterno appartengono entrambi a quel paesaggio solare verso cui sono rivolti.

Altre possibili interpretazioni

I riferimenti già citati della «estetica delle macchine e del Neues Bauen», del «funzionalismo nordico», del «costruttivismo russo degli anni ’20» sono senz’altro fondati, pur se ancora galleggianti nella lorio genericità in assenza di ulteriori approfondimenti. È però interessante volgere lo sguardo anche in un’altra direzione. E lo spunto nasce da un viaggio di studio nella primavera del 1964 in Olanda, fatto da noi studenti di architettura al Poly di Zurigo con il professor Alfred Roth, cui partecipò anche lo studente Roberto Bianconi.

In quel viaggio – oltre alle opere allora contemporanee – l’attenzione fu rivolta in particolare all’evoluzione storica dell’architettura dei primi decenni del Novecento a Amsterdam, Rotterdam e Utrecht. Luoghi di vicende fondamentali nel passaggio dall’Ottocento alle avanguardie tra gli anni Dieci e i Trenta, di cui l’Olanda fu una nazione di primo piano per il ruolo che l’architettura ebbe a livello urbano e sociale, e trainante nel rinnovo architettonico e nella ricerca anche teorica.

L’origine è possibile situarla alla fine dell’Ottocento con il ruolo e l’opera di Hendrik Petrus Berlage, autore in particolare dell’edificio della Borsa di Amsterdam (1903) e del piano urbanistico per l’area di Amsterdam Sud. Fu proprio da tale rinnovamento urbano ideato da Berlage e la sua successiva espansione urbanistica, che prese poi corpo quel movimento conosciuto come Scuola di Amsterdam: architetture di progettisti dai modi anche diversi tra loro, ma in cui in comune era prevalente l’enfasi espressionista, con fronti composti di materiche convesse murature in mattoni interrotte da vuoti vetrati. 

Fu la radice della fase successiva, anche se rivolta in tutt’altra direzione: cancellata l’enfasi espressionista, elaborata una ricerca teorica e radicalizzato il ruolo della geometria, nel 1917 per opera di Theo van Doesburg e Piet Mondrian viene pubblicato il primo numero della rivista «De Stijl», con in particolare il Manifesto De Stijl. In nome di un’architettura basata sulla razionalità, sulla geometria, sul rigore presero corpo opere – come la casa Schröder di Gerrit Rietveld a Utrecht del 1924 – in cui il muro è una lastra rettangolare o quadrata e la finestra è il vuoto tra due muri. Dove sia il muro, sia il vuoto hanno la stessa importanza e lo stesso ruolo nella composizione architettonica, dal disegno dei volumi a quello degli spazi interni. Incastri di pure forme geometriche i cui colori si rifanno unicamente a quelli primari.

È questo lo zoccolo su cui poggia lo sviluppo architettonico successivo – senza il radicalismo geometrico di De Stijl: ed è quella l’architettura che deve aver interessato Roberto Bianconi in quel viaggio di studio. Opere di architetti come J. Duiker (1890–1935), come W.M. Dudok (1884–1974), come J.A. Brinkman (1902–1949) e L. van der Flugt (1894–1936), come J.J.P. Oud (1890–1963).

Seppur in modo succinto, è qui importante citare almeno tre edifici. 

Il primo è la Open Air School a Amsterdam, realizzata nel 1930 da J. Duiker. Quasi utopica nei suoi intenti progettuali, la scuola è un edificio che ha nella trasparenza la sua matrice fondativa e nella vetrata il suo soggetto formale: ogni piano dell’edificio – determinato dalle fasce orizzontali di solette e architravi – è composto dalla maglia dei sottili profili in metallo delle vetrate e dai vuoti che le affiancano. 

Il secondo edificio è la scuola Vondel a Hilversum realizzata da W. M. Dudok nel 1929. Dudok, è importante rilevarlo, fu l’architetto della città di Hilversum, autore del famoso Municipio (1931), e di numerosi edifici scolastici. Ci sembra importante in questa sede citare la scuola Vondel: per il modo in cui Dudok risolve la parte concernente l’entrata dell’edificio, marcata dall’opposizione quasi brutale tra la grande parete in mattoni posta in primo piano e il volume verticale completamente vetrato che si trova leggermente arretrato.

Il terzo esempio è la Fabbrica Van Nelle a Rotterdam del 1931, opera degli architetti Brinkman e Van der Flugt. Questo grande edificio industriale formato da diversi corpi architettonici – uno dei capolavori di quel decennio e oggi patrimonio dell’Unesco – presenta un’architettura che esalta il ruolo del vetro – la cui trasparenza fu voluta per migliorare la qualità del lavoro degli operai – in cui i pieni delle murature determinano i volumi architettonici e la scansione dei diversi livelli, evidenziano la dinamica orizzontale dei fronti e sono di cornice alle parti vetrate.

È l’architettura di questi edifici che viene in mente osservando le facciate degli edifici di Roberto Bianconi. Perché qui in definitiva le scelte progettuali inerenti il disegno dei fronti poggiano su temi analoghi. È la volontà di affidare alle vetrate – e alle sottili strutture in ferro che le compongono – un ruolo compositivo primario, sia nei volumi verticali che nella facciata sud dell’edificio di Bianconi si ergono da terra fino in alto, fino alla parte terminale in muratura piena, sia nella cadenza delle lunghe finestre a nastro del fronte nord, che con la loro orizzontalità dentro il pieno delle murature costituisce – a mio parere – un pezzo di bravura.

Invenzioni tipologiche

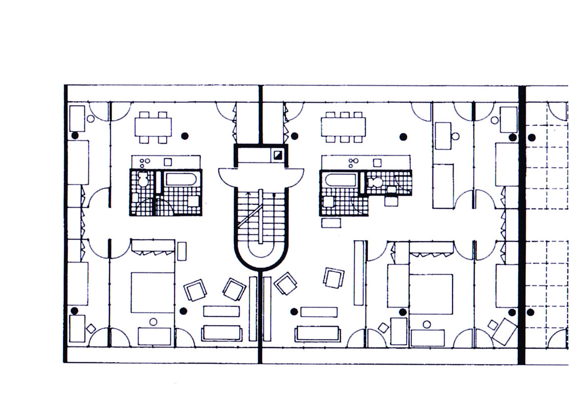
E poi vi sono gli interni degli appartamenti. Di superficie ridotta, conformi alle direttive federali in materia di edilizia sociale sussidiata. La loro impostazione tipologica è quella consueta: si entra in un piccolo atrio, da qui poi si accede alla zona giorno, esposta verso il lato migliore, mentre dall’altro lato si raggiunge la zona notte, rivolta verso il retro. 

Nulla di più banale. In apparenza.

Invece, in questi appartamenti di poco più di 80 metri quadri veranda compresa, il progetto propone sorprendenti invenzioni progettuali che permettono di realizzare valori spaziali e funzionali inaspettati.

Già l’atrio d’entrata con i suoi soli 6 metri quadrati è affatto un banale luogo d’ingresso. L’invenzione di una parete convessa proprio di fronte a chi accede all’appartamento è un piccolo segnale che qui nulla è scontato: perché ne qualifica lo spazio e rimanda con eleganza verso le due zone che compongono l’appartamento, quella del giorno e quella della notte. Una piccola cosa, si dirà, ma è comunque l’annuncio, l’anteprima, la premessa alle altre invenzioni architettoniche che caratterizzano l’appartamento e che ne determinano i valori.

Il modo in cui il soggiorno, il tinello – come lo definisce Bianconi –, la cucina e il balcone sono articolati tra loro costituiscono la straordinaria ricchezza spaziale del piccolo appartamento. Ricchezza determinata dai percorsi funzionali, che gravitano fondamentalmente attorno al tinello, vero cuore di eccellenza della vita familiare e fulcro dell’intero impianto tipologico. Luogo posto in comunicazione diretta – non solo visiva – con il soggiorno e la cucina e il balcone. E ricchezza determinata dalla trasparenza delle pareti vetrate che suddividono questi tre locali, che nella loro successione e articolazione determinano una continuità spaziale ininterrotta. Il piccolo appartamento è diventato grande: perché la trasparenza non è solo ottica, è anche funzionalmente di pregio nel succedersi di luoghi che sono tra loro interscambiabili. Come bene ha sostenuto Mercedes Daguerre in una discussione avuta sul progetto, l’impiego della successione di pareti vetrate e la conseguente continuità spaziale che ne deriva ricordano l’analoga soluzione di Giuseppe Terragni nell’asilo Sant’Elia a Como.

E ancora: vale la pena di spendere due parole sul breve corridoio che collega il soggiorno con la camera matrimoniale. Anche qui una scelta minima, ma una seppur piccola invenzione. Che ricchezza è capace di produrre: di qualità abitativa nel creare un’unione diretta tra giorno e notte, tra il dormire, il riposarsi, il parlarsi. Perchè qui il vivere non si svolge in scatole chiuse. Non solo: viene creato lo spazio per un armadio a due ante. Certo non è un boudoir con i fiocchi, ma è il fiocco per dare (ulteriore) qualità all’appartamento.

Varianti tipologiche negli anni Settanta

Ci sembra interessante concludere questo testo sui due edifici di Bianconi, con una breve sequenza di esempi tipologici dell’abitare – che appartengono a quegli anni Settanta in cui Bianconi è operativo a Bellinzona – nei quali è possibile cogliere, pur in modi completamente diversi, delle ricerche capaci di realizzare soluzioni innovative.

Con una premessa. Il tema dell’abitazione collettiva, in quegli anni di boom immobiliare, era caratterizzata da progetti prevalentemente affrettati e convenzionali, nei quali piuttosto che la qualità della ricerca progettuale, importanti erano gli aspetti economici e quelli delle facili e convenzionali soluzioni, tali da soddisfare qualsiasi possibile cliente.

È forse per questo che – sia detto per inciso – nello scorrere le maggiori e migliori opere di quel decennio, emerge un gran numero di case unifamiliari o di edifici pubblici, mentre poche sono invece le residenze plurifamiliari, le case d’appartamenti.

Malgrado questa premessa, si distinguono comunque alcune case d’appartamenti con proposte tipologiche nell’organizzazione funzionale interna e dei suoi spazi che sono oltremodo interessanti, frutto di ricerche sull’abitare per certi versi inedite o comunque particolari. Che talvolta favoriscono la continuità tra interno e esterno e le viste verso il paesaggio, talvolta invece privilegiano le relazioni spaziali interne o la flessibilità nell’utilizzo degli spazi. Oppure ancora riflettono in modo intelligente e adeguato ricerche che risalgono agli anni dell’Avanguardia e al Movimento Moderno.

Sono quattro gli esempi che si vogliono qui brevemente citare, con tipologie molto diverse tra loro, alcune all’interno di soluzioni che potremmo definire convenzionali, altre che propongono invece scelte inedite e alternative. Per concludere, un quinto esempio: gli appartamenti di un altro edificio realizzato a Bellinzona da Roberto Bianconi.

Prima variante

Con la casa rotonda di Hans e Silvia Witmer-Ferri si vuole però risalire addirittura al 1936. Due sono i motivi: primo, per la mirabile soluzione nel risolvere il difficile tema della pianta di un appartamento in una «casa rotonda», aperta a ventaglio a seguire lo spazio urbano, determinato dalla strada su cui si affaccia; secondo, per la sottile raffinatezza con cui è risolta l’organizzazione degli appartamenti.

Pur all’interno di dimensioni minime – 70 metri quadri – è mirabile il modo in cui la difficile geometria del progetto diviene non un impedimento, ma viceversa lo spunto per ottenere delle qualità particolari. Qualità che nasce con la divaricazione degli assi compositivi della pianta dell’appartamento e che determina quelle dinamiche spaziali agli interni che riescono a proiettare gli spazi dei singoli locali verso i balconi, verso l’esterno. Sia nell’affaccio principale verso la strada e il paesaggio, sia ancora – mirabilmente – nell’affaccio posteriore, in direzione del virtuale fulcro da cui si dipartono gli assi compositivi. 

Seconda variante

Certo, i trent’anni che separano l’edificio di Witmer–Ferri con la casa torre a Pazzallo di Bruno Bossi del 1962 si fanno sentire: mutati sono i modi di vivere e le necessità per gli spazi e le loro infrastrutture. Ciò non toglie però che il tema delle viste verso l’esterno, in questo caso verso il magnifico paesaggio – che in Witmer-Ferri è all’origine delle dinamiche spaziali interne –, siano anche qui matrice del progetto. 

Bossi elabora un progetto sensibile al luogo in cui sorge, casa alta e isolata sulle pendici del San Salvatore. La scelta volumetrica dell’edificio in primo luogo, dove l’articolazione complessiva dei quattro appartamenti che compongono ogni piano, disposti con una rotazione a elica attorno alla scala centrale, permette di aprire ogni singolo appartamento in tutte le direzioni: il panorama verso il lago, la vista delle montagne lontane o quelle delle colline a ovest, o ancora la parete verticale del San Salvatore.

In secondo luogo, è da sottolineare la semplicità tipologica dell’appartamento, dove il soggiorno assume il ruolo privilegiato di spazio centrale verso cui tutto converge e tutto accade, e gli spazi di circolazione sono ridotti al minimo.

Terza variante

A differenza degli esempi precedenti, qui non si lesina con l’abbondanza di metri quadri, ma il progetto di Oreste Pisenti per la casa d’appartamenti Landry–Andreoli a Minusio del 1964 merita di essere segnalata. Come in altri lavori di Pisenti, si tratta di un’architettura singolare: a «leggere» i disegni della pianta sembra di essere messi a confronto con un caos planimetrico, con una composizione di pianta disordinata. Qui di griglie compositive non vi è traccia. Ma se si rovescia il concetto di «disordine» in quello di «articolazione» e di «dinamiche spaziali», le cose si chiariscono.

Poiché per Pisenti il primo valore di un appartamento è la luce naturale. Da qui le differenti assialità dei muri, ognuno per conto suo teso a raggiungere una fonte di luce e a dare a ogni spazio anche interno un’illuminazione naturale. Facendo oltretutto ricorso a uno spazio verticale a tutt’altezza posto al centro dell’edificio, che dal piano entrata si apre fino in alto e prendere la luce dal tetto. 

Da queste ricerche di luce derivano allora all’interno dell’appartamento continuità spaziali inattese, cannocchiali puntati verso viste lontane, verso il paesaggio del Verbano. È da questa ricerca che nascono le disarticolazioni degli assi compositivi.

Quarta variante

È una bella capriola semantica saltare dall’edificio di Pisenti alla casa patriziale a Carasso di Luigi Snozzi e Livio Vacchini, del 1968. All’interno di una soluzione minimalista, il progetto è il risultato di una ricerca sulla continuità spaziale e la flessibilità nell’abitare.

Già due anni prima, nel 1966, Snozzi e Vacchini avevano realizzato le case popolari ai Saleggi a Locarno, dove – tipologie in duplex a parte – il progetto avvalorava lo spazio comune del soggiorno e del pranzo, verso cui convergono le stanze da letto e lo spazio aperto della cucina. Niente corridoi, ogni metro quadro è destinato all’abitare.

Qui a Carasso il riferimento è a Mies van der Rohe, agli studi che svolse attorno al 1952 con il progetto teorico della Core House, e al modello tipologico della Farnsworth House del 1951. Certo, qui siamo all’interno di una casa plurifamiliare, ma comunque la matrice è identica. Anzi, qui a Carasso l’idea è spinta ai suoi estremi: una pianta libera, un unico spazio attorno a un centro, il volume compatto della cucina e dei bagni. Attorno a questo blocco funzionale si dispongono i diversi spazi dell’abitare, senza alcuna superficie residua o di circolazione. Tutto fluisce in un’unica continuità che abbraccia l’intero spazio dell’appartamento, che acquista così una dimensione ben più importante di quella che in realtà occupa.

Inoltre l’appartamento ha una «doppia flessibilità»: l’una è insita nell’impostazione tipologica del progetto nei suoi diversi usi degli spazi liberi che attorniano il nucleo centrale; la seconda è la flessibilità dettata dalle pareti prefabbricate in metallo che suddividono le stanze, che possono essere smontate e ricollocate diversamente, cosi da poter modificare il numero o la dimensione dei locali.

Quinta variante

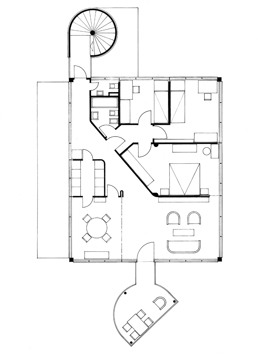
La conclusione è con un’altra opera di Roberto Bianconi, la casa per tre appartamenti a Bellinzona del 1972. Un piccolo edificio, un parallelepipedo di quattro piani, curiosamente affiancato nei due lati opposti da due corpi apparentemente estranei, in metallo e vetro.

Il miglior modo per descrivere e analizzare questa architettura è il percorrerla. Si accede in primo luogo nel cilindro in metallo che affianca l’edificio a nord, si salgono le scale, si attraversa un breve percorso vetrato – così da capire, dopo le giravolte della scala a chiocciola, a che altezza e dove ci si trova – e si apre poi la porta per accedere all’appartamento. Qui, il breve spazio d’entrata sarà largo poco più di un metro e qualche, ma – sorpresa – la parete interna si piega in diagonale e alla vista si presentano tutti i quattro lati del parallelepipedo che racchiude l’appartamento. Quattro facciate – la prima è quella da cui si è entrati – con ovviamente altrettante viste verso l’esterno. 

E se poi questo esterno si vuol vivere, oplà, si apre una porta in fondo al soggiorno, si esce all’esterno, si percorre un breve tratto e si accede a uno spazio semicircolare vetrato, un pseudo bow window, un’altana se si vuole così definirla, un balcone, detto in senso riduttivo. Un piccolo magico luogo aperto, che volta le spalle al rumore della strada e che sbircia in diagonale tra gli edifici attigui a prendere il sole del sud.

Note

  1. Presa di posizione della FAS Ticino.

  2. «Werk, Bauen und Wohnen», n. 12, 1997.

  3. Voce «Bianconi» in Architektenlexikon der Schweiz.

  4. Peter Disch (a cura di), 50 anni di architettura in Ticino 1930-1980, Bellinzona-Lugano 1983.

Articoli correlati