Ve­lo­blitz: Die Self­made-Zen­trale

KUF Architekten leiteten mit dem Bau der Veloblitz-Zentrale in der ehemaligen SBB-Werkstätte und im Grundausbau von baubüro in situ einen vielschichtigen Mieterausbau. Der partizipative Prozess bei Planung und Ausführung erfolgte mit vielen Re-use-Materialien.

Date de publication
10-10-2024

Der Kurierdienst Veloblitz brauchte, nach­­dem seine Zentrale in Zürich zu klein geworden war, neue Räumlichkeiten. In den alten Büros war viel Gemeinschaft möglich, man sah das Kommen und Gehen der Angestellten und der Kuriere und Kurierinnen, die mit ihren Velos direkt in eine wohnzimmerartige Aufenthaltszone gelangten. Das wollte man beibehalten – aber zusätzlich auch einen Ort der Ruhe und des Rückzugs schaffen. 

Die Grundlage für einen solchen Arbeitsplatz fanden die Angestellten des Veloblitz in der Werkstadt an der Hohlstrasse in Zürich, einem Areal, das der SBB Immobilien gehört (vgl. Wettbewerb «Neubau Gebäude X, Werkstadt Zürich». Sie mieteten dort zuerst eine, kurze Zeit später zwei Einheiten. Dass es ein aussergewöhnliches Projekt wurde, zeigt sich schon an der organisatorischen Struktur: Veloblitz war nicht nur als Bauherrschaft am parti­­zi­pativen Entwicklungsprozess beteiligt, sondern gleichzeitig ausführender Hauptunternehmer. 

Auch die anderen Beteiligten mussten mit einer komplexen Arbeitsteilung umgehen: Die denkmalgeschützten ehemaligen SBB-­Werkstätten wurden im Rahmen eines Grundausbaus von baubüro in situ saniert. Die wichtigsten Interventionen umfassten die zentralen Erschliessungs­achsen in der Halle, die Positionierung der einzelnen Mieteinheiten mit den denkmalpflegerisch erforderlichen Blickachsen, die Galeriegrössen sowie die grundlegenden technischen Installationen.

Weitere Beiträge zur Kreislaufwirtschaft finden sich in unserem digitalen Dossier.

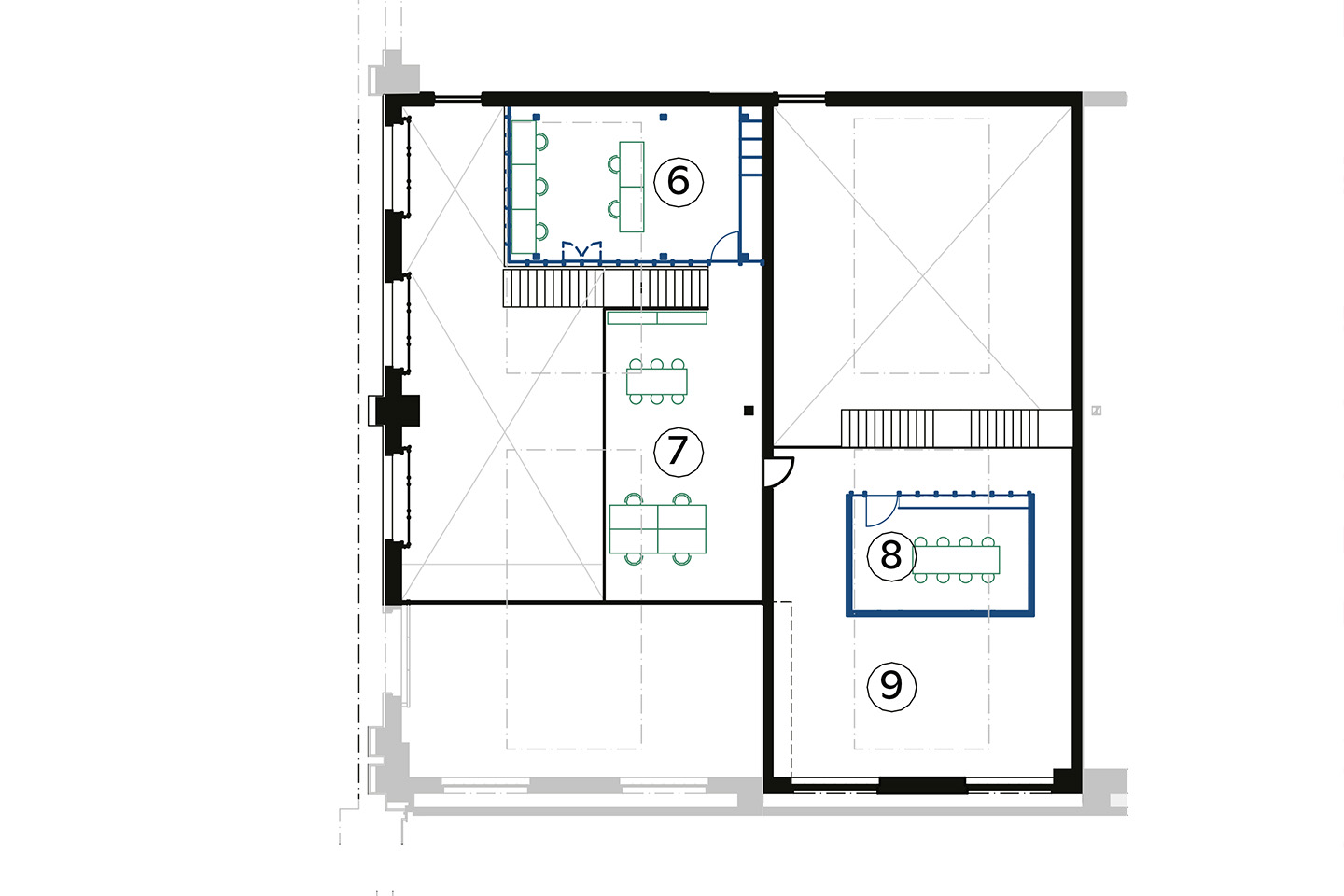
Die Detailplanung gingen dann KUF Architekten und die Kuriere und Kurierinnen von Veloblitz in einem intensiven gemeinsamen Prozess von innen her an. Die Galerie ist nun vom zentralen wohnzimmerartigen Aufenthaltsraum mit einem Esstisch, der Küche und der Velowerkstatt umgeben. Mit Ausnahme der zwei abgetrennten Arbeitsräume und des Sitzungszimmers ist der Raum mit einigen Nischen und Rückzugsorten fliessend angelegt.

Re-use mit situativer Koordination

Dabei gab vor allem das Re-use-Thema den Ablauf vor. Die Planer mussten einen Umgang damit finden, dass vieles nicht zum herkömmlichen Zeitpunkt bekannt war. Das Ziel war vorgegeben, der Weg dahin aber offen. Dabei waren sowohl die Materialien aus Wiederverwendung für den Mieterausbau wie auch jene für den Grundausbau lange unbekannt; Materialsuche und Planung verliefen dabei parallel.

Ein anschauliches Beispiel für das nicht lineare Timing, insbesondere bei der Suche der Gebraucht­teile, waren die Geländer. Sie wurden als sicherheitsrelevante Bauteile für die gesamte Halle im Grundausbau geregelt und ausgeführt. Im Mieterausbau galt es mit diesen Vorgaben einen Umgang zu finden. Die Ausführung erfolgte mit wiederverwendeten Bauteilen, die jedoch nicht für die gesamte Halle reichten. Deshalb musste die Mieteinheit des Veloblitz kurzfristig mit anderen Geländern ausgestattet werden. Diese passten dann wiederum nicht mit den ausgearbeiteten Detail­lösungen für den Mieterausbau zusammen; die dafür vorgesehenen Materialien aus Wiederverwendung waren zu diesem Zeitpunkt jedoch bereits eingelagert.

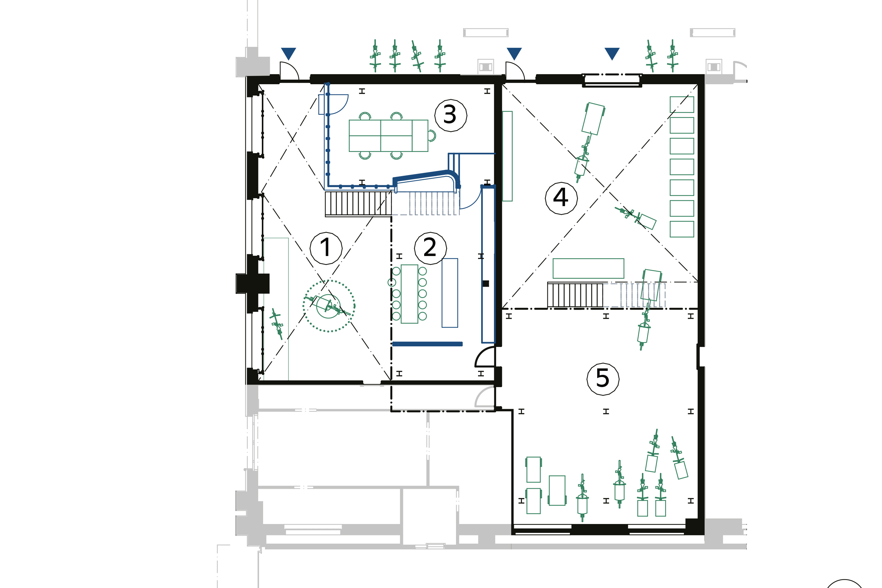
Die vordere Mieteinheit mit dem Tower

Ein wichtiges Element waren die Fenster für den von den Veloblitz-Angestellten humorvoll als «Tower» bezeichneten zweistöckigen Einbau mit den Büroräumen. Die Gläser stammen von einem Wintergarten, der nie ausgeführt wurde. Ihre zwei unterschiedlich hohen Formate bestimmten das Fassadenraster. In der unteren Etage wurden die niedrigeren Teile verwendet und oben die höheren. Aber für beide Etagen waren nicht genügend Gläser vorhanden. Beim Eingang zu den Büros im Galeriegeschoss gibt es nun zwei neue, auf Mass gefertigte schmalere Fenster, die auch das Restmass ausfüllen, das durch die gegebene Grösse der Re-use-Fenster entstand. Im Untergeschoss entschied man sich, die küchenseitige «Fensterlücke» unter der Treppe mit einem Wandsofa zu überbrücken, das Küche und Büros von­einander separiert. 

Der Büroraum im Erdgeschoss ist aus arbeitsgesetzlichen Gründen leicht erhöht. In die raumhohen Verglasungen sind Öffnungsflügel zum Haupt­raum integriert, um die Kommunikation in der Zentrale zu vereinfachen. Während in der Planungsphase die Notwendigkeit von stärkerer Unterteilung der Arbeits- und Aufenthaltsbereiche immer wieder diskutiert wurde, zeigt sich in der Nutzung, dass genau diese Offenheit und Direktheit heute geschätzt wird: Die Arbeitsplätze auf der offenen Galerie sind beliebt, während in den akustisch abgetrennten Büroräumen Fen­ster und Türen nur selten geschlossen sind. 

Alle Türen des Mieterausbaus sind ehemalige Wohnungstüren und die dunkelblau gestrichenen Teile – es sind einige hundert Quadratmeter – sind Abschnitte von Duripanel-Platten von einer Grossbaustelle. Sie mussten in der Zentrale noch einmal auf die dort erforderlichen Masse zugeschnitten werden. Das war ein Geduldsspiel, denn viele Platten zerbrachen. Doch der Aufwand lohnte sich trotzdem, denn die Platten weisen, doppelt verlegt, einen besseren Schallschutzwert auf als die Fenstergläser. Das ist vorteilhaft, weil es gerade im oberen Teil des Towers manchmal hektisch zu und her geht. So entstand eine vor Ort erstellte Pfosten-Riegel-Fassade aus unbehandeltem Konstruk­tions­holz, die mit Gläsern, Duripanel und Türen aus Wiederverwendung ausgefacht ist.

Im hinteren Teil des Raums befindet sich eine alte Wasch­anlage der SBB. Der Raum ist so konzipiert, dass er zu einem späteren Zeitpunkt in die Zentrale integriert werden kann. Der wachsende Kurierdienst benötigt weiteren Platz, und es wäre auch architektonisch begrüssenswert, denn gegenwärtig spürt man, dass räumlich etwas fehlt: der Abschluss mit den Fenstern an der alten Fassade. 

Die hintere Mieteinheit mit Lager

Von der Galerie gelangt man durch eine Brandschutz­türe zur zweiten, hinteren Mieteinheit. Im Gegensatz zur vorderen ist hier die Gesamttiefe des alten Raums ersichtlich. Da es keine Fenster gibt, durfte man keine Büros einbauen; stattdessen liegt auf dem Galeriegeschoss das Sitzungszimmer. Dieses war vor allen anderen Einbauten eine Art konstruktives Experimentallabor. Hier wurden die Konstruktionsdetails mit den Bauteilen aus Wiederverwendung für die Oblichter, Türen, Duripanel und Gläser getestet. 

Lesen Sie auch: 
Yves Ebnöther: Digital Hand anlegen
Wiederverwendete Materialien sparen Ressourcen. Yves Ebnöther erforscht mittels halbdigitaler Fertigung, wie sich Re-use-Möbel in grossem Stil herstellen lassen.

Das Erdgeschoss ist für Velos und zwei Elektroautos durch ein Tor zugänglich. In Kühlschränken und Hochregalen werden Produkte zwischengelagert. Es gibt Platz für die Ladestationen sowie Spinde und eine Velowaschanlage. Räumlich verbanden die Architekten die beiden Einheiten durch zwei meist offenstehende Türen. Die Durchgänge gewährleisten kurze Wege und gute Arbeitsabläufe. So schliesst sich der Rundgang im Erdgeschoss und man gelangt zurück in die Küche der vorderen Mieteinheit. Auch diese besteht inklusive Apparate aus Wiederverwendung. 

Kuriere als Handwerker? 

Erstaunlich ist, dass bis auf den Metallbau und das Verlegen der Elektro- und Sanitärleitungen zur Küche sowie der Linoleumbeläge alle Arbeiten von den Angestellten des Veloblitz ausgeführt worden sind, denn einige unter ihnen haben eine handwerkliche Ausbildung. Nicht nur die strukturellen Arbeiten am Tower, sondern auch andere Arbeiten wie das Nähen der Kissen für die Sitz­nischen und der Vorhänge wurden von den Angestellten ausgeführt. Während der Schlussphase der Baustelle wandelte Corina Sigrist von der Geschäftsleitung das Sitzungszimmer kurzerhand zum Nähatelier um. Die Kacheln an der Rückwand wurden anhand einer Zeichnung eines Kuriers von einem internen Team unter Anleitung der Vorarlberger Firma Karak in Raku-­Technik angefertigt.

Die Arbeit auf der Baustelle wurde in den Schicht­plan von Veloblitz integriert, und die ARGE Leo­nard Krättli und Leandro Destefani übernahm dabei als mitarbeitende Bauführung die Koordination der ­Kuriere und Kurierinnen auf der Baustelle, bildete die Schnittstelle zu den Architekten und kontrollierte die Kosten. Insbesondere die Aufwände für den Einbau der Bauteile aus Wiederverwendung wurden unterschätzt, konnten aber mit internen Arbeitsstunden aufgefangen werden, da diverse Angestellte von Velo­blitz Zusatzschichten einlegten. 

Die Zielvorgabe war klar: Durch den Einbau von Bauteilen aus Wiederverwendung sowie durch die Partizipation der Angestellten sollen keine Mehrkosten entstehen. Sämtliche Bauteile mussten auf Aufwand, Eignung und Logistik geprüft werden. Silvio Koch erläutert: «Als ich die Gläser für die innere Fassade gefunden und als geeignet eingestuft hatte, musste Leonard die technische Machbarkeit und die Aufwände berechnen und Veloblitz die Kosten für Logistik, Aufbereitung und Lagerung prüfen. Alles musste schnell gehen.» Teilweise wurde mit dem Verkäufer ein Vertrag mit einer Abnahmegarantie gemacht, um die Materialien bis zum Baustart vorerst am ursprünglichen Ort zu belassen.

Einmalige Ausgangslage

Auf die Frage, wo die Unterschiede zwischen dem Selfmade-Modell von Veloblitz und einem konventionellen Projekt liegen, meint Silvio Koch: «Ein wesentlicher Unterschied sind die sozialen Synergien. Auf der Baustelle herrschte eine gute und produktive Stimmung, und die Leute hatten für ein Problem meist eine Lösung bereit.» Einige Mitarbeitende können sich vorstellen, aufgrund der Erfahrungen beim Umbau der Zentrale wieder vermehrt in ihrem angestammten handwerklichen Beruf zu arbeiten. Ein anderer Mehrwert besteht vor allem auch in der Aneignung durch den partizipativen Prozess. «Das ist etwas anderes, als wenn man beim Einzug den Schlüssel erhält und alles bereit ist. Bei der Eröffnung der Zentrale konnten alle erzählen, was sie gemacht hatten», erinnert sich Silvio Koch. 

Für die Architekten war die grosse Herausforderung, mit einem heterarchischen Unternehmen als Bauherrschaft zusammenzuarbeiten, das viele Fragen gemeinsam mit den Angestellten diskutierte. Das war zeit­intensiv, in der Planung und Ausführung. Natürlich musste trotzdem das Budget eingehalten werden, die wiederverwendeten Teile waren aufwendiger im Einbau als neue. Dennoch war das Projekt am Ende insgesamt günstiger als ein konventionelles. Gründe dafür waren die tieferen internen Kosten und die hohe Flexibilität der Veloblitz-Leute verglichen mit professionellen Handwerkern. 

Auf die Frage, ob nun Handwerker konkurrenziert würden, wenn solche Projekte Schule machen, meint Silvio Koch, dass dieses Vorgehen nur in dieser spezifischen Angestellten-Konstellation gewinnbringend war, denn nur in seltenen Fällen sind Angestellte auch gleichzeitig Handwerker und die Bauherrschaft ein Logistikunternehmen, das auch Bauteile transportieren kann.  

Sur ce sujet