Le scuole No­sedo a Mas­sagno

Restaurare il cemento armato

Un restauro, quello curato da Durisch Nolli Giraudi Radczuweit, che non altera la sostanza dell'edificio di Alberto Finzi ma la reinterpreta per dare nuova vita alla struttura scolastica.

Inventare un luogo, Mettere radici

«La nuova scuola elementare di Massagno, nella sua complessa articolazione, prima ancora d’essere un luogo d’apprendimento e di ricreazione, serve il quartiere adattandosi all’orografia della collina, offrendo ai bambini e agli adulti terrazze dalle quali osservare il paesaggio, tetti sotto i quali ripararsi dalla pioggia, scale, passaggi e nuovi sorprendenti giardini. Come se l’edificio, crescendo e cambiando di forma, avesse allungato le sue radici in direzioni diverse, rafforzandosi. La rete di percorsi che la circonda consente infatti di utilizzare la scuola come un sistema di rampe e di piattaforme in continuità con la circolazione pedonale del quartiere. Un fuoriprogramma funzionale che ha permesso di adattare perfettamente il progetto al tessuto urbano e del quale la comunità di Massagno, appropriandosene con naturalezza, ha sancito silenziosamente l’efficacia (...). La scuola diviene così parte integrante del quartiere, del suo paesaggio architettonico, cessando di essere un oggetto isolato dal contesto (...). Talvolta conservare non significa congelare nel tempo un manufatto quanto invece coglierne l’essenza e accompagnarla verso un tempo futuro, tanto più se la qualità di ciò che ereditiamo è indubbia e le sue potenzialità evolutive ancora molte. La somma di public realm e nuove funzioni didattico-ricreative ha riportato la scuola al centro della comunità, giustificando ampiamente lo sforzo sostenuto per costruire la nuova palestra doppia e la mensa (...). Il progetto della scuola elementare di Massagno è dunque un palinsesto nel quale convivono codici diversi, armonizzati in un discorso nuovo. Una sintesi felice, operata a beneficio del quartiere e della città».1

Interpretare architettura

La nuova scuola elementare di Massagno, prima ancora di essere un intervento esemplare di recupero del moderno, rappresenta la reinterpretazione di un’architettura. Sarebbe riduttivo quanto inappropriato limitarsi a parlare di “restauro”, perché si è trattato invece di regalare un nuovo ciclo di vita alla struttura scolastica. Maggiori spazi dedicati alla didattica, più convenienti alle esigenze di una scuola moderna, caratterizzata da una didattica dinamica che si articola in diverse zone di attività.

Leggi l'articolo sul Centro scolastico Nosedo apparso in occasione della menzione al Premio SIA Ticino 2020 

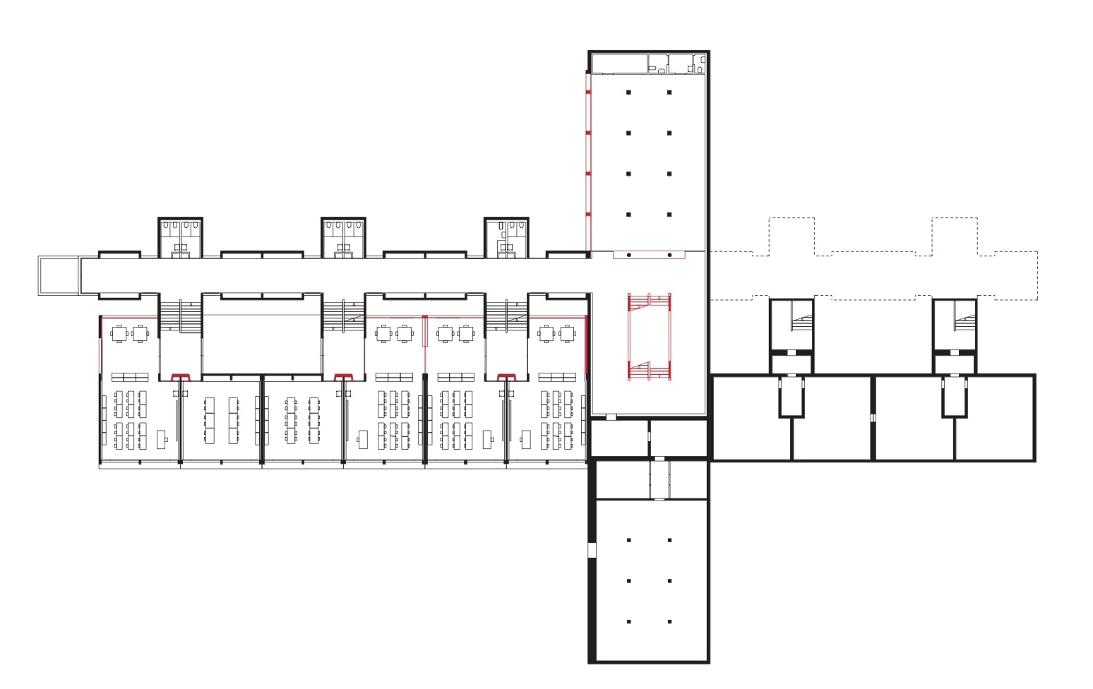
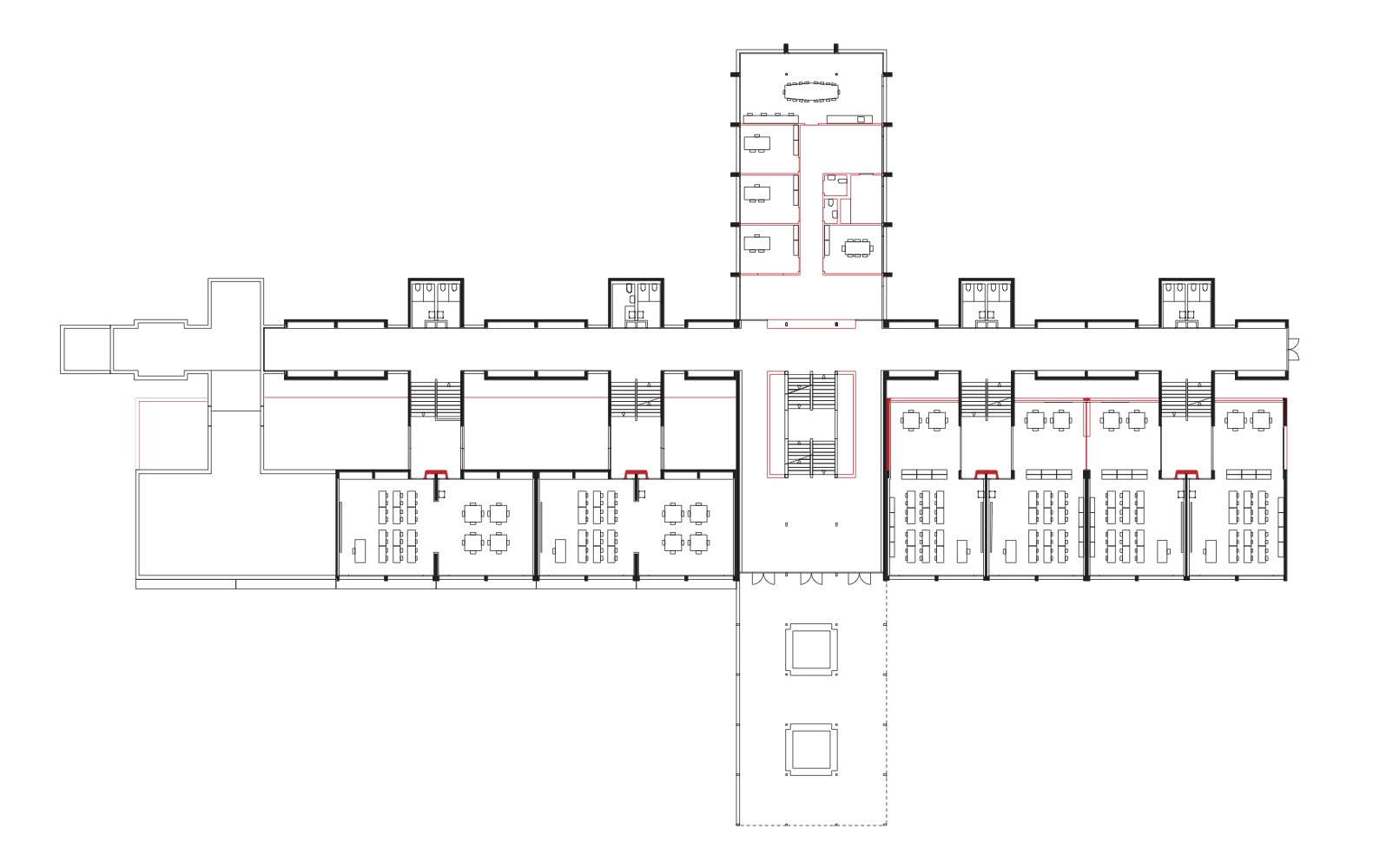
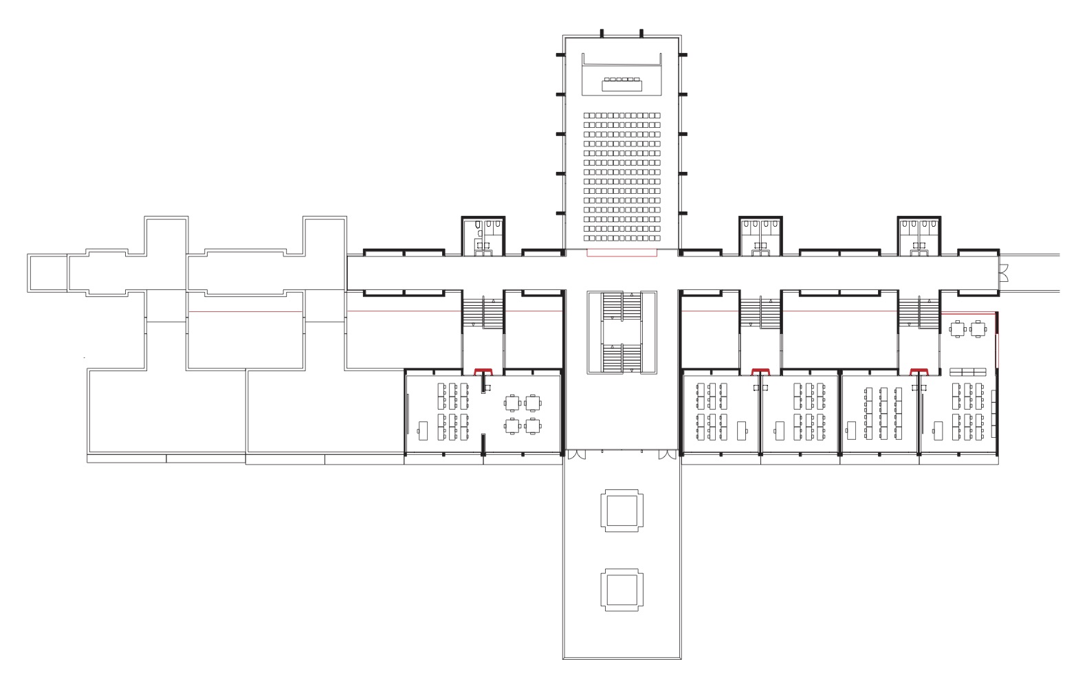
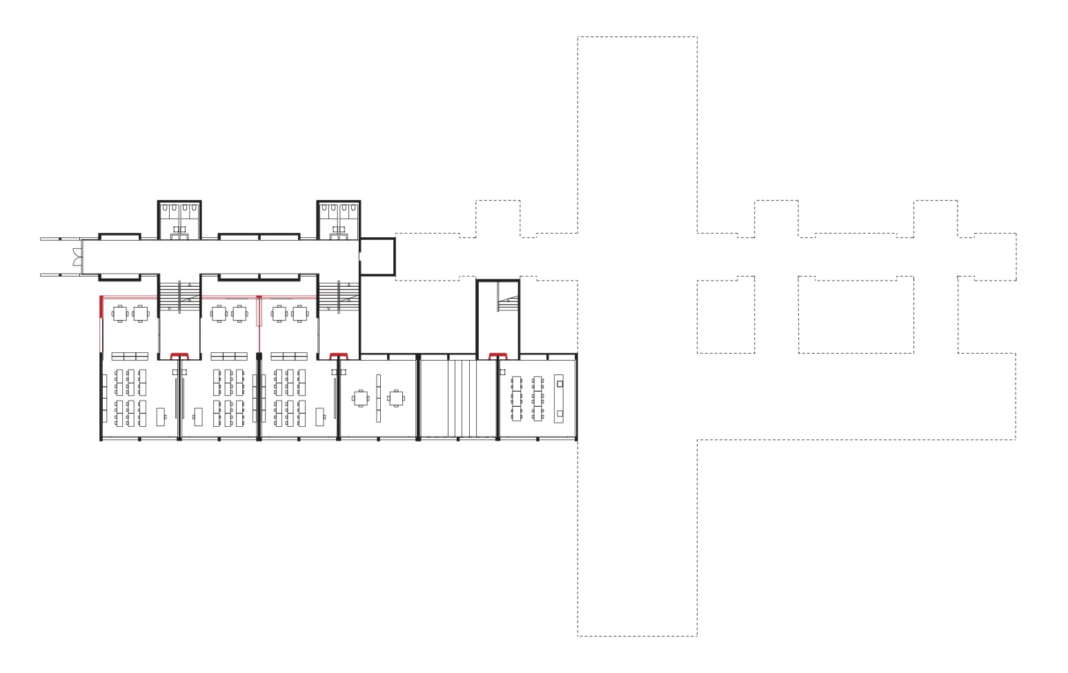
Questo intervento è stato possibile senza alterare la sostanza dell’impianto scolastico originale, progettato dall’architetto Alberto Finzi negli anni Sessanta. Al contrario, è proprio grazie alla validità e alla qualità della tipologia preesistente che è stato possibile inserire nel volume esistente un terzo in più di superfici dedicate alla didattica, senza aumentare l’ingombro e la volumetria esterna dell’edificio. Per rendere possibile questo aumento, lo spazio inutilizzato dei cortili è stato inglobato nello spazio delle aule, senza perdere la sua funzione di portare luce naturale fino nelle parti più interne della scuola, che ne sono prive. Le nuove aule di classe sono illuminate nel loro ampliamento con luce naturale proveniente dalle corti. Le corti si rafforzano e generano nuovi spazi didattici interni ed esterni. L’ampliamento in profondità delle aule permette il mantenimento integrale del concetto distributivo e tipologico originale: da ogni pianerottolo si accede sempre a due aule. L’articolazione spaziale della singola aula, derivante dall’ampliamento, favorisce la didattica moderna, la conseguente creazione di angoli di lavoro e la formazione di gruppi di studio.

Nella sua reinterpretazione, la nuova scuola di Nosedo mantiene intatta tipologia, impianto e sostanza architettonica, che è ritenuta di qualità e costituisce una memoria materiale da salvaguardare. Il nuovo intervento si sovrappone all’impianto preesistente come in un palinsesto, in cui le qualità e caratteristiche dell’architettura originale vengono soprascritte con un linguaggio più moderno, gli spazi funzionali sono ampliati e resi più luminosi e dotati di un’acustica migliore che favorisce l’insegnamento.

Il cemento faccia a vista che da sempre caratterizza l’espressione della scuola per la memoria storica dei cittadini, è risanato con l’aggiunta di un nuovo strato di cemento nei punti dove il vecchio calcestruzzo presentava segni di usura e corrosione.

Sempre in un concetto di palinsesto, grazie alla sostituzione dei materiali obsoleti con materiali moderni si è provveduto contemporaneamente al risanamento energetico dell’edificio scolastico in base ai più alti standard in vigore, raggiungendo i requisiti per il label Minergie®.

In sostanza, il progetto di ristrutturazione della Scuola Elementare di Massagno propone soluzioni progettuali innovative ed esemplari in merito al restauro del moderno, all’utilizzo parsimonioso del suolo, delle risorse energetiche e ai criteri della nuova didattica.

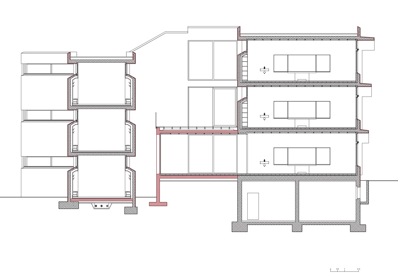
Risanare il calcestruzzo

Un punto fermo del progetto è stato quello del recupero integrale di tutte le strutture in calcestruzzo faccia a vista, interne ed esterne. Questo ha permesso di mantenere intatta integralmente l’architettura della facciata nella sua espressione forte e chiara, conseguenza diretta della chiarezza strutturale interna. Ma anche di conservare l’atmosfera originale della scuola nonostante l’integrazione di nuove aggiunte in calcestruzzo a vista.

Per definire l’intervento si è proceduto alla valutazione dello stato di degrado dell’opera mediante analisi visiva preliminare e successiva esecuzione di sondaggi. Sulla base di questi dati e delle esigenze progettuali si è definito l’intervento di risanamento.

Il calcestruzzo delle superfici esterne evidenziava un degrado piuttosto importante ed esteso a «macchia di leopardo» su buona parte dell’edificio. Localmente, a causa del distacco del copriferro erano visibili i ferri d’armatura e gli stessi presentavano evidenti segni di corrosione. Si è dunque scelto di eseguire un intervento di risanamento integrale di tutte le superfici esterne per garantire una durabilità costante per tutte le facciate e meglio uniformare il risultato estetico.

L’intervento di risanamento del calcestruzzo è stato strutturato secondo le seguenti fasi:

  • Irruvidimento della superficie tramite rimozione mediante idrodemolizione di uno strato superficiale di spessore pari a 5 mm.
  • Liberazione dei ferri di armatura nelle zone dove si presentavano evidenti distaccamenti del copriferro mediante idrodemolizione con adeguati approfondimenti per liberare completamente l’armatura (fino a 40 mm).
  • Trattamento dei ferri di armatura liberati e applicazione di un rivestimento protettivo a base cementizia contro la corrosione dell’armatura.
  • Messa in opera a spruzzo di malta cementizia tissotropica fibrorinforzata (malta di classe R3 secondo la norma EN 1504-3). Al termine della messa in opera della malta le superfici di calcestruzzo presentavano un incremento dello spessore pari a 5 mm rispetto allo spessore iniziale.
  • Esecuzione della superficie mediante riproduzione della struttura originale a tavole.
  • Protezione della superficie attraverso l’applicazione sia di un idrofobizzante sia di un prodotto per aumentare la resistenza alla carbonatazione. I prodotti applicati sono trasparenti in modo da non alterare la colorazione della superficie della malta applicata.

La durabilità del risanamento è stimata in vent’anni.

 

  Nota

  1. F. Tranfa, Mettere radici, in S. Milan, G. Zannone (a cura di), Tra beton e betulle. Le Scuole Nosedo a Massagno, Tarmac Publishing, Mendrisio 2017, pp. 49-50.

Luogo Massagno
Committenza Comune di Massagno
Architettura CDL Durisch Nolli Giraudi Radczuweit, Lugano
Collaboratori P. Durisch, S. Giraudi, A. Nolli, T. Radczuweit, N. Nessi, L. Pevere, B. Scotti
Ingegneria civile Lurati Muttoni Partner, Mendrisio
Impresa Giovanni Quadri, Cadempino
Risanamento calcestruzzo Tecton Spezialbau, Emmenbrücke
Progetto impianti RVCS Visani Rusconi Talleri, Taverne
Progetto impianti elettrici Piona Engineering, Manno
Fisica della costruzione IFEC ingegneria, Rivera
Acustica IFEC ingegneria, Rivera
Fotografia Tonatiuh Ambrosetti, Montricher
Date concorso 2007, realizzazione 2011-2015 Scuola Elementare, 2014-2017 Doppia Palestra e Mensa
Certificazione o Standard energetico Minergie, 2015, nr. TI-278 (scuola elementare); Minergie, 2018, nr. TI-461 (doppia palestra e mensa)
Intervento e tipo edificio Ristrutturazione e ampliamento della scuola elementare e costruzione della nuova doppia palestra e mensa
Categoria edificio (Ae) Scuole Ae risanamento = 4’541 mq Ae ampliamento = 509 mq
Fattore di forma (Ath/Ae) 1.55
Riscaldamento Pompe di calore aria-acqua
Acqua calda Non è presente un sistema di produzione e distribuzione di acqua calda sanitaria
Elettricità Superficie illuminata (riscaldata e non riscaldata) = 5’410 mq; Consumo illuminazione secondo SIA 380/4 = 12.3 kWh/mq (limite illuminazione Minergie edizione 2009 = 12.5 kWh/mq)
Requisito primario involucro dell’edificio 41 kWh/mq (nessun limite requisito primario Minergie edizione 2009) Indice Energetico Complessivo (da certificazione): 47.7 kWh/mq (limite indice ponderato Minergie edzione 2009 = 48,1 kWh/mq)
Valore limite energia grigia Non applicabile al caso specifico
Particolarità Installate 5 pompe di calore aria-acqua ad alta efficienza per un ottimale funzionamento a cascata

Qui è possibile acquistare Archi 3/2020. Qui si può invece leggere l'editoriale con l'indice del numero.

Étiquettes

Sur ce sujet