Flick­werk zu neu­er Har­mo­nie

Weiterbauen im Bestand in der Ziegelei in Kriens

Die Ziegelei in Kriens ist eines der von espazium publizierten Projekte, die zeigen, dass das Weiterbauen im Bestand, die Wiederverwendung von Bauteilen und das Umbauen mit regenerativen Materialien Ressourcen schonen und Energie sparen kann. Unterschiedliche Herangehensweisen führen dabei zu grosser architektonischer Vielfalt.


 

Publikationsdatum
17-12-2025
Isabel Borner
Redaktorin Umwelt/Energie und Architektur espazium magazin

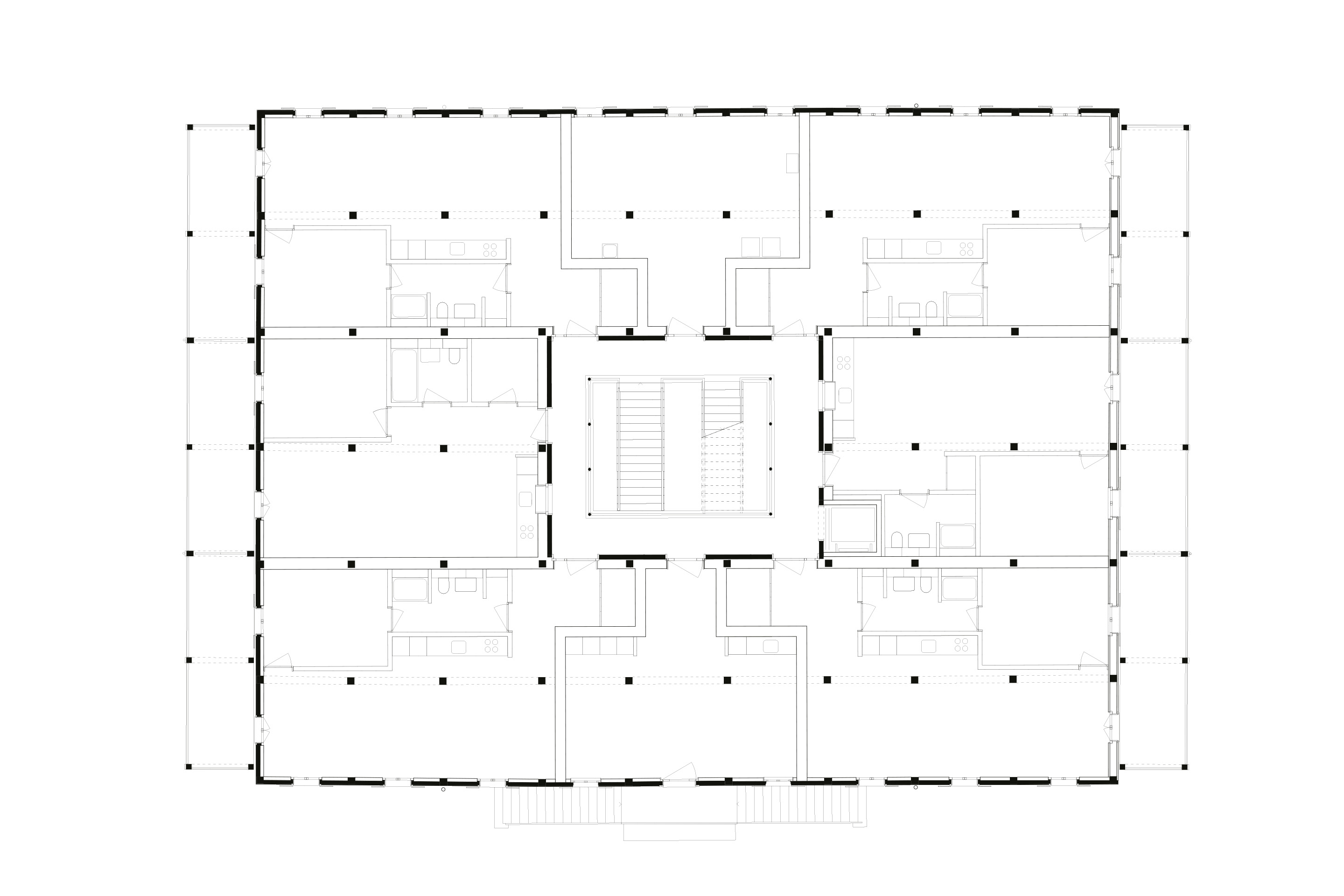
Die 1895 erbaute Ziegelei in Kriens diente zunächst als Dampfziegelei, bis Alfons Kuoni sie 1925 zum Wohnhaus umbaute. Er zog eine zusätzliche Hourdisdecke mit Stahlträgern in die zweigeschossige Maschinenhalle ein. Dadurch konnte das Erdgeschoss für Gewerbe und das erste Obergeschoss als Lagerraum für die zwei darüberliegenden Wohngeschosse genutzt werden. Diese Nutzung blieb bis heute weitgehend erhalten.

Nach Jahrzehnten mit kleineren Umbauten, zuletzt um 1950, hatte das Gebäude grossen Sanierungsbedarf. Zugleich barg es Potenzial für neue Wohnungen und Gewerbeflächen. Ziel des Projekts war nicht eine museale Rekonstruktion, sondern die Weiterentwicklung des Bestands und die Stärkung seiner Qualitäten. Die seitlichen Anbauten im Westen, Osten und Norden wurden zurückgebaut und die Erdgeschossfassade rekonstruiert. Tragstruktur und Innenhof blieben erhalten; zwei neue Betonstrukturen an Ost- und Westseite ergänzen den Kernbau mit wertvollen Aussenräumen.

Dieser Artikel ist erschienen im Sonderheft: «Immobilien und Energie VIII: Potenzial transformierter Produktionsareale»

Weitere Beiträge zum Thema finden Sie in unserem digitalen Dossier.

Im EG entstanden vier flexibel nutzbare Gewerberäume sowie Technik- und Kellerräume. Ein neuer Hauptzugang im Süden erschliesst das Gebäude barrierefrei. Zunächst gelangen Besuchende in den neuen Innenhof, der einen Blick auf alle Ebenen ermöglicht. Dieser wird von einem verglasten Dachaufbau gekrönt, der, einer Laterne ähnlich, viel Licht ins Zentrum des Gebäudes leitet. Über die mittige Treppenanlage oder den neu erstellten Lift gelangt man von hier auf direktem Weg in die Wohngeschosse.

Durch die Öffnung des Innenhofs im ersten Obergeschoss wird dieses für Wohnungen und Gemeinschaftsräume attraktiv. Eine Freitreppe verbindet letztere mit dem Aussenraum. So werden sie flexibler zugänglich und ermöglichen einen ungezwungenen Austausch der Bewohnenden.

In den oberen Geschossen sind insgesamt 18 Wohnungen entstanden. Sie verfügen über flexible Grundrisse sowie private Aussenräume in Form neuer Lauben. Alle Wohnungen werden über eine neue, vorgelagerte Galerie im Innenhof erschlossen. Sie dient ausserdem als nachbarschaftlicher Begegnungsort. Die ursprüngliche Holzskelettstruktur blieb erhalten, beschädigte Elemente wurden ergänzt. 

Alle Fassaden wurden saniert, teils neu gemauert und mit Wärmedämmung versehen. Die neuen Lauben aus Stahlbeton verleihen dem Haus einen zeitgenössischen Ausdruck, während die hellen Holzläden und das Stützenraster den historischen Charakter bewahren. 

Auch die Umgebung wurde neu gegliedert: Die Vorfahrt im Osten, der Spiel- und Aufenthaltsbereich im Süden, ein begrünter Platz im Westen und die Gärten im Nordwesten schaffen ein vielfältiges Umfeld. 

Das ehemalige Flickwerk strahlt nun eine Selbstverständlichkeit aus, als wäre es in dieser Form schon immer dagewesen. Dahinter steckt ein komplexer Prozess. Mit viel Kenntnis des Bestands haben Seiler Linhart Architekten Erhaltenswertes repariert, entfernt, was das Gebäude schwächte, und präzise ergänzt, wo sich die Raumwirkung verbessern liess.

Alte Ziegelei, Kriens

 

Bauherrschaft
Schmid Immobilien, Ebikon

 

Architektur
Seiler Linhart Architekten, Luzern/Sarnen

 

Projektleitung/Bauökonomie
Schmid Architektur & Baumanagement, Ebikon

 

Tragkonstruktion
Lauber Ingenieure, ­Luzern; Wälli Ingenieure, Horw

 

Landschaftsarchitektur
Freiraum Architektur, Luzern

 

Nutzung   
18 Wohnungen, 4 Ateliers

 

Realisierung 
2021–2025

 

Kosten (BKP2)    
9 Mio. CHF

 

Fläche (SIA 416)   
1825 m2

 

 

Verwandte Beiträge