Vom Ort um­garnt

Die Transformation einer ehemaligen Spinnerei auf dem Bühler-Areal in Sennhof führt das industriegeschichtlich wertvolle Ensemble in die Zukunft. Zudem werden historische Kleinwasserkraftwerke durch eine grosse Photovoltaik-Anlage ergänzt.

Eine Flussschleife der Töss schafft zwischen den Hügelzügen des Brünggbergs und des Eschenbergs eine Ebene. Rundherum nichts als Wald. Am Horizont ragt die Kyburg in den Himmel. Hier liegt Sennhof, eine grüne Oase vor den Toren von Winterthur. Doch von Stadt ist nichts zu spüren, auch wenn der Weiler dank bester Erschliessung deutlich gewachsen ist. 

Einen besonderen Beitrag zur Entwicklung leistet die Transformation des Bühler-Areals, das sich der Siedlung gegenüber auf der anderen Seite des Flusses befindet. Die erste Etappe ist abgeschlossen, die zweite in vollem Gang.

Spinnerei mit Kleinwasserkraftwerken und neuer PV-Anlage

Die Hermann Bühler AG gehörte zu den ersten mechanischen Spinnereien der Schweiz. Sie existierte auch am längsten, musste aber 2016, nach 204 Jahren, trotz grössten Anstrengungen schliessen. Seither entstehen in den freigewordenen Gebäuden Gewerbe- und Produktionsflächen sowie Wohnungen. Die Geschichte des Familienunternehmens begann 1812 mit der Einrichtung einer Spinnerei. 1832 folgte eine erste, 1835 eine zweite Fabrik in Kollbrunn. 

Später wurde das Geschäft aufgeteilt: Die Eduard Bühler & Co. bestand bis 1994 am angestammten Ort. Johann-Heinrich Bühler expandierte 1860 nach Sennhof und baute dort eine weitere Spinnerei. Das markante Gebäude wurde zum Sitz der Firma, die seit 1989 Hermann Bühler AG heisst und in der siebten Generation weitergeführt wird, heute als reine Immobiliengesellschaft.

Dieser Artikel ist erschienen im Sonderheft:

«Immobilien und Energie VIII: Potenzial transformierter Produktionsareale»

Weitere Beiträge zum Thema finden Sie in unserem digitalen Dossier.

Das Tösstal im Zürcher Oberland zählte schon früh zu den bedeutenden Industrieregionen Mitteleuropas. Begünstigt vom optimalen Gefälle des Flusses siedelten sich zahlreiche Betriebe an und nutzten die Wasserkraft. Kein Wunder also, stehen die Fabriken Bühlers genau hier. In Schöntal oberhalb von Kollbrunn wird das Wasser aus dem Flussbett ausgeleitet und über insgesamt sechs Kilometer lange Kanäle und zwei Fabrikweiher zu den Turbinen der ehemaligen Spinnereien geführt. Unterhalb von Sennhof, am Rand der Ebene, steht das letzte dieser Kleinwasserkraftwerke, bevor das Wasser in die Töss zurückfliesst.

Das zu grossen Teilen denkmalgeschützte Ensemble mit einer Gesamtleistung von zirka 1 MW erzeugt im Jahr im Mittel 3.6 Mio. kWh Strom. Dieser wird ins Netz eingespeist und reicht für rund 1000 Vierpersonenhaushalte. 2021 wurde auf dem Dach der Halle III eine der grössten Photovoltaik-Anlagen der Region installiert. Auf 3500 m2 werden mit einer Leistung von 586 kWp jährlich 530 000 kWh Strom produziert, wovon nur zirka 50 % vor Ort verbraucht werden. 

Auch auf der alten Spinnerei ist eine PV-Anlage mit zirka 120 kWp vorgesehen, so dass der Strombedarf der 89 geplanten Wohnungen grösstenteils hier erzeugt werden kann. Die Stromproduktion erfolgt somit komplett CO2-neutral. Dies gilt beinahe auch für die Heizung: Das Bühler-Areal wird mit Fernwärme von der städtischen Holzschnitzelheizung versorgt, die beim Schulhaus Sennhof steht. Früher war es umgekehrt: Die Abwärme der Spinnerei versorgte die Häuser des Weilers.

Fabrik: minimale Eingriffe, maximale Wirkung

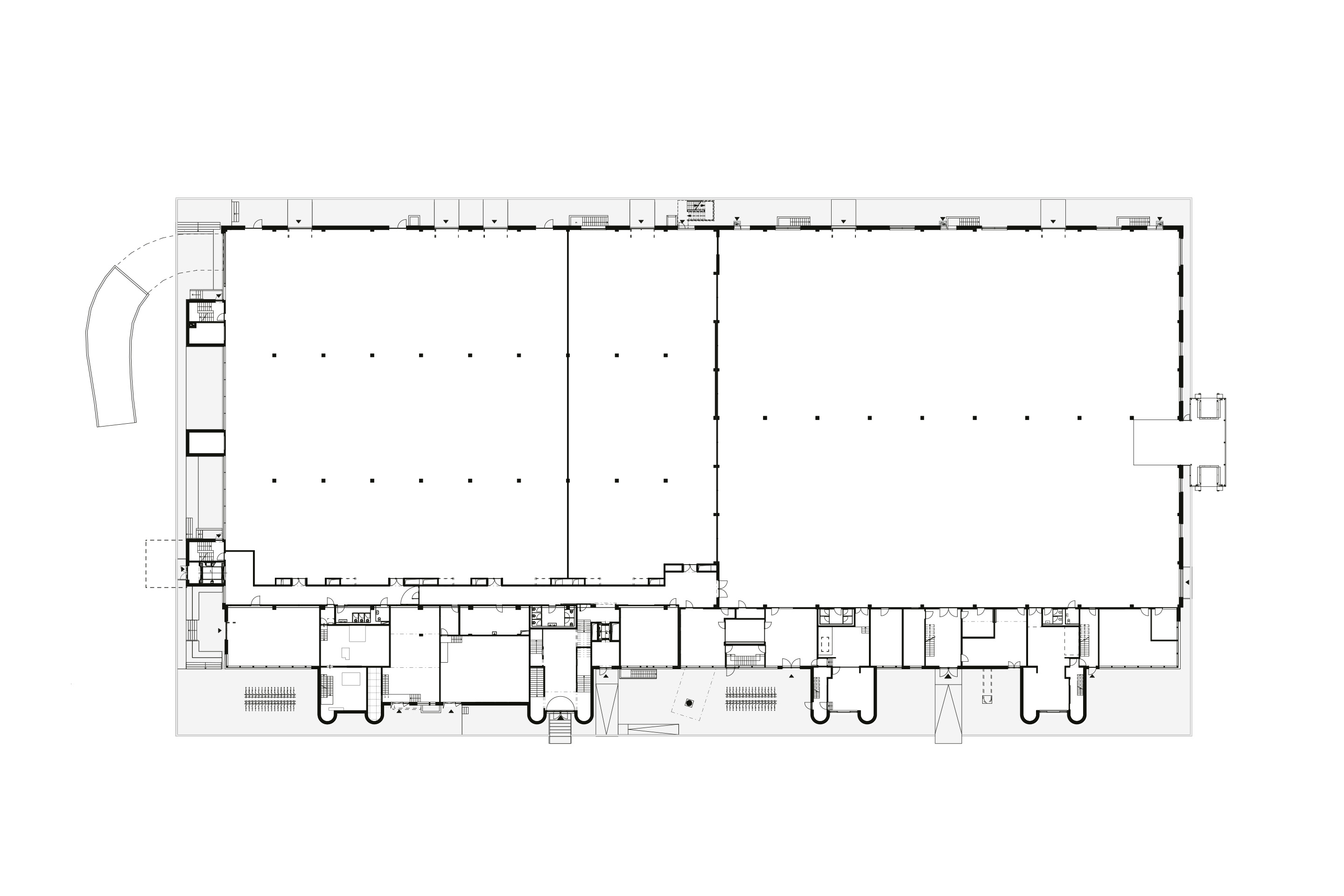
Aus Kapazitätsgründen und weil sich der Altbau für die neuen Maschinen nicht mehr eignete, erstellte Bühler in den 1980er-Jahren zwei grosse Erweiterungen: Zunächst entstanden ein Ballenlager und eine ein­geschossige Fabrikhalle (Halle II), später wurde eine zweigeschossige Halle (Halle III) angebaut. Das «Fabrik» genannte Gebäude mit seinen vier charakteristischen Klima­türmen, in denen sich die voluminösen Lüftungsanlagen befanden, wurde bis 2023 als erstes für neue Nutzungen angepasst. Aus einem Planerwahlverfahren hervorgegangen, erarbeitete das Architekturbüro RWPA eine Strategie, die den Bestand zur Minimierung der grauen Energie möglichst wenig verändert und dennoch eine hohe ­Flexibilität erzeugt.

Dies gelang mit vier Massnahmen: Erstens wurde der zweite Klimaturm zum Haupteingang und Treppenhaus umfunktioniert, was die Büroräume im ehemaligen Servicetrakt mit den Hallen verbindet, Orientierung schafft und atmosphärisch reizvoll ist. Zweitens wurden auf der Rückseite mehrere Öffnungen in die mehrheitlich geschlossene, stark profilierte Faserzementfassade geschnitten, die zur Belichtung und Erschliessung der einzelnen Mietflächen dienen. Drittens konnte das ehemalige Technikgeschoss unter den Hallen in eine Tiefgarage mit 90 Plätzen umgewandelt werden. Und viertens wurden zahlreiche Bauteile wiederverwendet. Alle Eingriffe erfolgten mit einer erfrischenden Direktheit, die Spuren der Bearbeitung und Veränderung wurden als Teil der Gebäudegeschichte sichtbar belassen.

Spinnerei: unkonventionelle Wohnungen

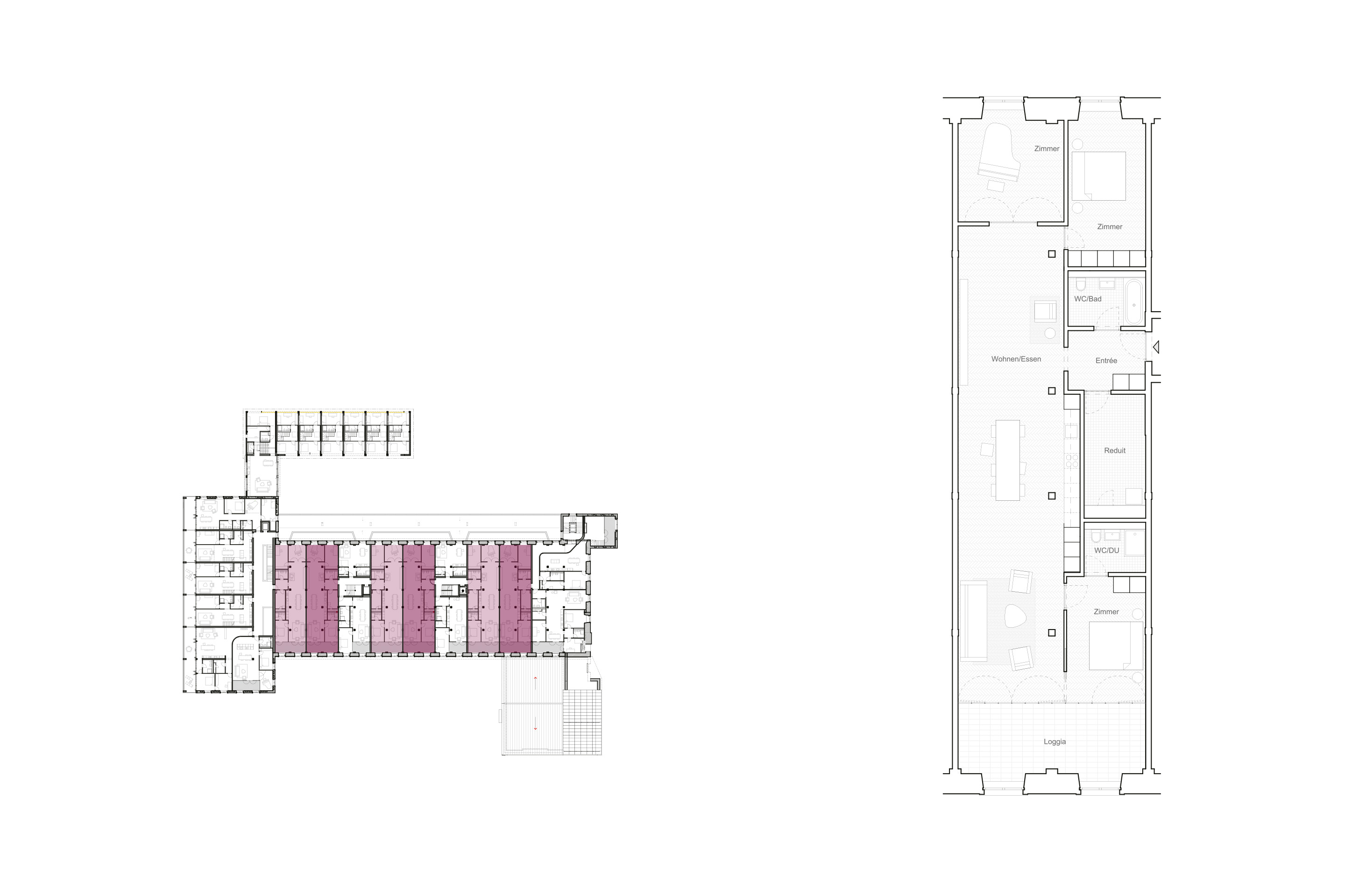
Diagonal Architekten gewannen den Studienauftrag für den Einbau von Wohnungen in die ehemalige Spinnerei, der bis 2027 realisiert wird. Indem sie verschiedene später hinzugefügte Teile abbrechen, erhält das Gebäude seine volumetrische Klarheit zurück. Neben dem Hauptbau bleiben einzig das Kraftwerk mit dem Schleppdach, der Kopfbau und das seitlich angegliederte Garnlager bestehen. 

Als neue Elemente kommen auf der Flussseite eine Plattform mit dem Hauptzugang, beim Kopfbau eine Balkonschicht und im Dachgeschoss grosse Gauben hinzu. Im Innern führen Treppenhäuser und zwei rues intérieures zu den Wohnungen. Die spektakulärsten sind zweifel­los diejenigen mit den durchgesteckten Grundrissen über die gesamte Tiefe von 26 m, die Maisonetten unter dem Dach und die zweigeschossigen Wohnungen im Kopfbau, wo die ungewöhnlichen Raumhöhen ihre volle Wirkung entfalten können.

Leider erwies es sich im Lauf der Planung als unmöglich, die innere Tragstruktur in Holzbauweise zu erhalten. Sie wird durch Stahlbeton ersetzt. Damit vergrössert sich zwar der Bedarf an grauer Energie beträchtlich, die Lebensdauer des Gebäudes wird aber deutlich verlängert. Die ursprünglichen Holzunterzüge und die Verstärkungen der Stützen mit Stahlelementen sollen wieder eingebaut werden, was den Wohnungen ein gewisses historisches Flair verleihen wird. Dank der sorgfältig transformierten Bauten und der weiteren Nutzung der Wasserkraft lebt auf dem Bühler-Areal die spezielle Geschichte des Orts auf eindrückliche Weise weiter.

Bühler-Areal, Sennhof 

Nutzung: Gewerbe und Wohnen

Fläche: 32 500 m2

Status: Fabrikumbau 2017–2023,
Spinnerei 2018–2027

Kosten: Fabrik: 22 Mio. CHF (BKP 1–9);
Spinnerei: – 

Bauherrschaft: 
Hermann Bühler, Winterthur

 

Architektur: 
Fabrik: Rwpa Architektur, Winterthur;
Spinnerei: Diagonal Architekten, 
Winterthur

Masterplan Areal: Gestaltungsplan 1982

 

Landschaftsarchitektur: 
Fabrik: Heinrich Landschaftsarchitektur, Winterthur; 
Spinnerei: Brogle Rüeger Landschafts­architekten, Winterthur

 

Energieplanung: 
Fabrik: F. Preisig, Zürich;
Spinnerei:  

Verwandte Beiträge