In­sti­tu­ti­on de La­vi­gny

Un bâtiment hybride du bureau bunq

Publikationsdatum
17-11-2017
Revision
17-11-2017

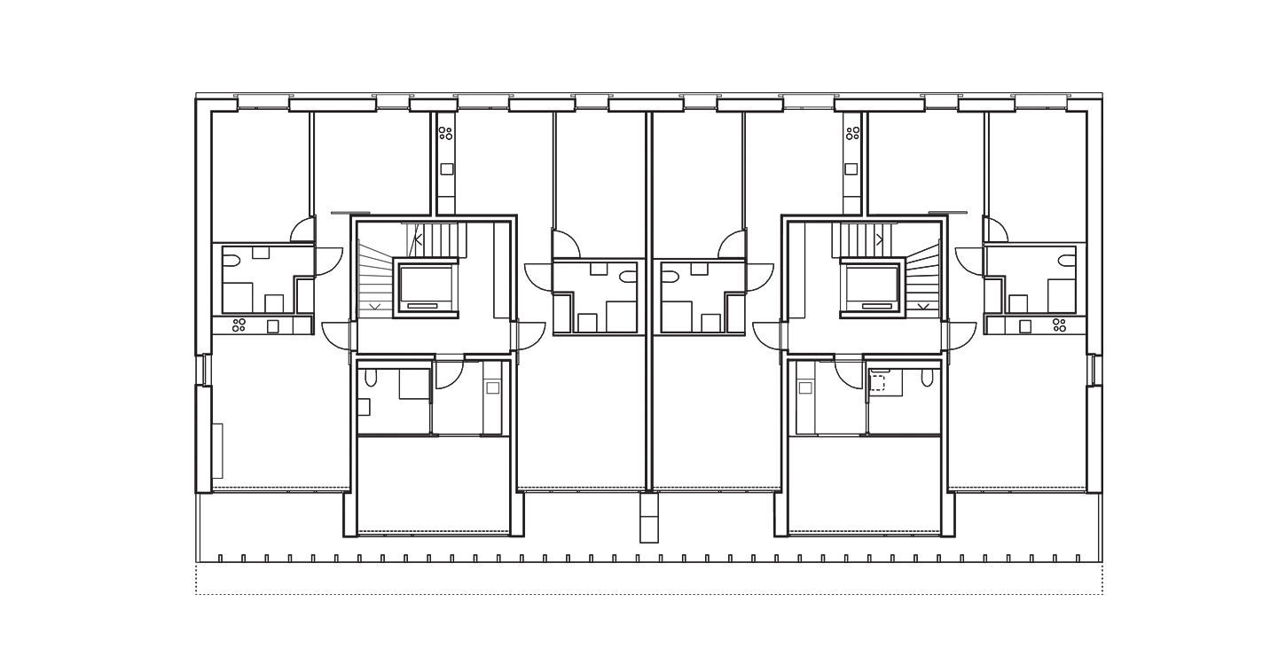
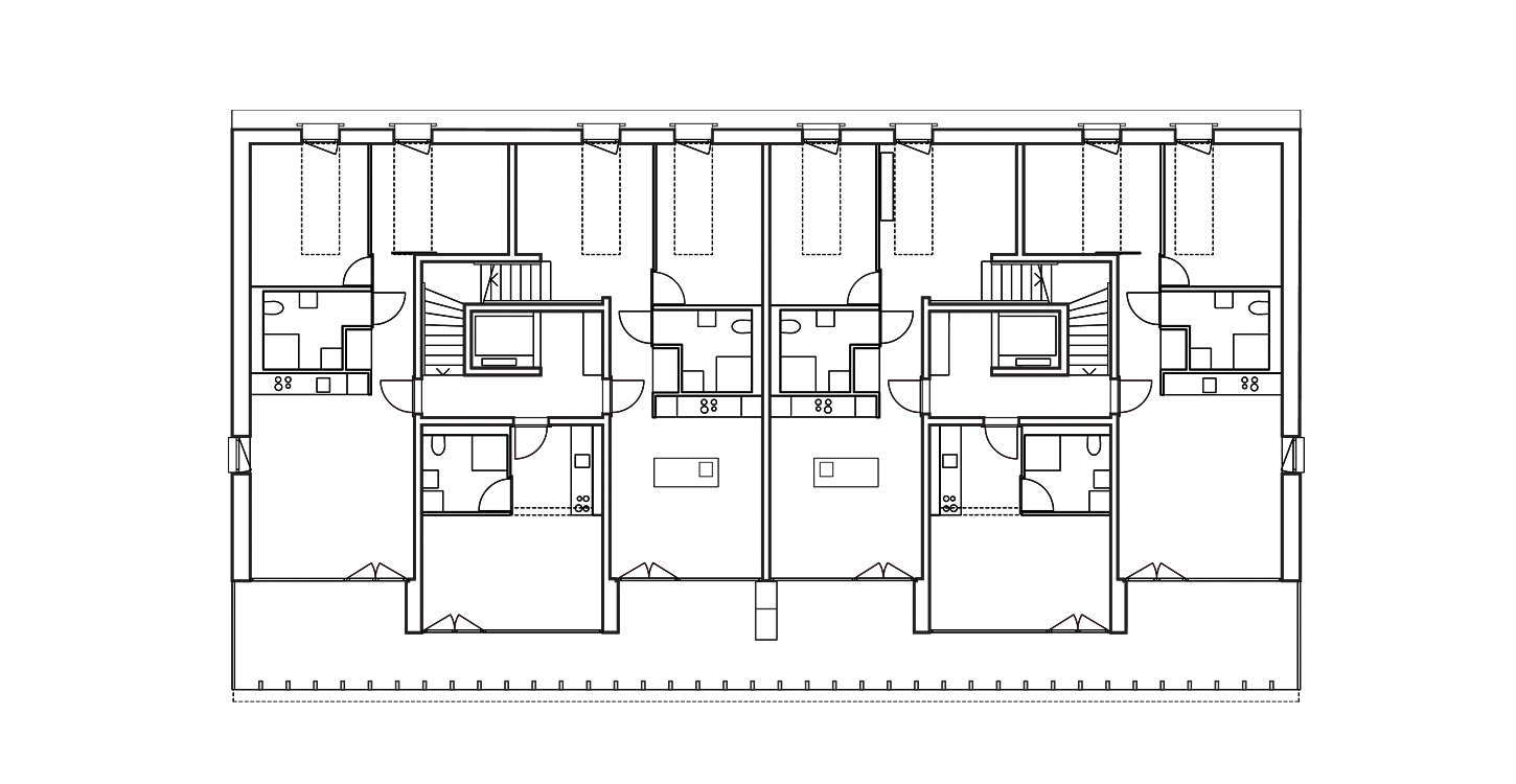
Le projet de développement d’un nouveau quartier à l’ouest du site de l’Institution de Lavigny (VD) est constitué de deux immeubles d’habitation (IL1), d’un internat (IL2) et d’un centre d’activités (IL3).

Ces bâtiments s’organisent autour d’un jardin commun, véritable espace de liaison entre les logements et l’institution. Les logements sont destinés à la location. Ils permettront d’accueillir des personnes travaillant pour l’institution ou à l’extérieur. Un internat pour les enfants s’implante à l’est du jardin. Les chambres et les salons s’organisent «en moulin» au premier étage. Au rez-de-chaussée se trouvent la salle à manger et deux appartements indépendants.   

A l’ouest, l’ancien rural sera rénové et réaménagé pour accueillir un semi-internat et un centre d’activités en lien avec l’internat. Un restaurant et une salle polyvalente occuperont le corps central du bâtiment. Des salles de réunion et l’administration seront aménagées dans l’aile est. Un balcon et un escalier donnant accès à l’appartement du premier étage composeront la façade sur le jardin. Des ateliers et des salles de cours occuperont la nouvelle aile ouest. Les grands volumes de tuiles des bâtiments reprennent le langage architectural et les systèmes constructifs des bâtiments ruraux que l’on trouve sur ce site. Les façades sur le jardin laissent apparaître l’ossature en bois. Celle-ci supporte la toiture et les balcons de logements. Le rythme serré des poteaux forme un filtre offrant l’intimité nécessaire entre les espaces privés et l’espace commun.

 

Participants au projet

Maître d’ouvrage: Institution de Lavigny
Architecture: bunq Architectes, Nyon
Statique bois: RLJ Ingénieurs Conseil, Penthalaz(IL1 et IL3) et Sollertia Ouest, Monthey (IL2)
Construction et maçonnerie: CF construction, Romanel-sur-Morges (IL1 et IL2), Walo Bertschinger, Dietikon (IL3)
Construction bois: Chabloz Chiovini, Bursins (IL1), Sochame, Sion (IL2), JPF-Ducret, Bulle et Robert & Pascal Sallin, Villaz-Saint-Pierre (IL3)

 

Informations générales

Surface du terrain: 234 500 m²
Surface du plancher SBP: 3700 m2 (IL1), 860 m(IL2), 1580 m2 (IL3) m² 
Volume: 12 000 m3 (IL1), 3600 m3 (IL2), 5600 m3 (IL3)

Bois et construction
Typ de construction: toiture et façade en charpente traditionnelle (IL1-2), toiture en charpente traditionnelle (restauration et neuf) (IL3)
Ossature porteuse / revêtement façade (IL1 + IL2): 155 m3 charpente et ossature de façade, 585 m2 bardage, 394 m2 terrasses et balcons

Coûts
Totaux (CFC 1–9), TTC: 10.5 mio CHF (IL1), 4.5 mio CHF (IL2), 6.5 mio CHF (IL3)
Dont CFC 214 TTC: 565 000 CHF (IL1), 490 000 CHF (IL2), 490 000 CHF (IL3)

Dates
Durée de construction: 2013–2017

 

Ville en bois n°3

 

Ville en bois n°3
Megatendances comme moteurs
Un hors-série d'espazium – Les éditions pour la culture du bâti
En collaboration avec: 
OFEV Office fédéral de l'environnement, Plan d'action bois, Berne
Wüest Partner, Zurich
Lignum, Économie suisse du bois

Verwandte Beiträge