Ver­stö­rend ra­di­kal

Wie wirkt der Raum, wenn das Tragwerk zwar inszeniert ist, aber rätselhaft bleibt? Im «Haus mit einer fehlenden Stütze» hat Christian Kerez eine neuartige Architektur geschaffen. Der ungewöhnliche Stahlbau von Dr. Joseph Schwartz Consulting ist integraler Bestandteil davon.

Publikationsdatum
12-03-2015
Revision
06-10-2015

Die exorbitanten Grundstückspreise am Zürichberg führen dazu, dass Liegenschaften nachverdichtet werden – durch zusätzliche Baukörper oder, falls das die Grösse des Areals nicht zulässt, durch Neubauten, die das mögliche Volumen bis auf den letzten Kubikzentimeter ausschöpfen. Auf eine verglichen mit den Abmessungen mancher Grundstücke in der Umgebung eher bescheidenen Parzelle an der Krönleinstrasse stand ein Einfamilienhaus, das die maximal erlaubte Baumasse nicht erreichte. Angesichts dieses Potenzials entschieden sich die Besitzer zu einem Neubau, der neben ihrer eigenen auch zwei weitere Wohnungen umfassen sollte. Mit dieser Idee traten sie an Christian Kerez heran, dessen eigenes Wohnhaus sich in der Nachbarschaft befindet und ihnen vertraut war. 2014 war der Neubau fertig.

Von der Strasse aus führt eine Zufahrt direkt in die Tiefgarage des ins Terrain zurückgesetzten Hauses. Verbirgt sich die Garagenebene völlig im Gelände, so tritt das darauffolgende Geschoss strassenseitig mit kleinen Fenstern aus dem Hang heraus. Damit wechselt die Materialisierung des Gebäudes: Während der Sockel als Betonvolumen in das Gelände eingetieft ist, wurden die als Hochbau errichteten Geschosse als Stahlstruktur ausgeführt. 

Umgestülpter Skelettbau

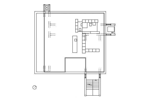
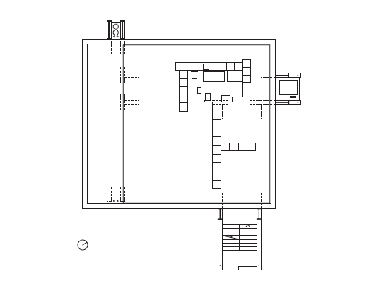
Die drei Wohnungen, so stellte es sich der Architekt vor, sollten jeweils ein Geschoss umfassen. Weil die Geschossflächen aber aufgrund der limitierten Parzelle und der erforderlichen Abstandsflächen zu den Grundstücksgrenzen hin knapp bemessen sind, entstand die Idee eines fliessenden Raums, der sich allseitig zur Umgebung öffnet. Diese Vorstellung hatte zur Folge, dass auf Wandscheiben und Stützen im Innern ver­zichtet wurde. Anders als bei einem üblichen Stahl­skelettbau erfolgt die vertikale Lastabtragung nicht innerhalb, sondern aus­serhalb des Gebäudes. So war es möglich, auch ­Erschliessungen und Infrastrukturleitungen auszu­lagern und die Geschossflächen weitestgehend freizuspielen. Jeweils zwei mächtige Stahlstützen bilden Türme und umfassen die Treppe im Osten, den Lift im Norden und die Versorgungsschächte im Westen des Gebäudes.

Die Treppe beansprucht am meisten Platz, sodass der Abstand des Stützenpaars hier am grössten ist; umsetzbar war die Konstruktion an dieser Stelle baurechtlich nur, weil das vorher bestehende Haus hier mit einer Terrasse in den Aussenraum ausgriff. Am kleinsten zeigt sich der Abstand des Stützenpaars im Westen, weil die Versorgungsleitungen nur wenig Raum benötigen. Rechtwinklig eingespannte Kragarme tragen als horizonale Elemente die betonierten Geschoss­platten. Sie verlaufen vom Treppenturm ausgehend Richtung Nordwesten, vom Liftturm aus Richtung ­Südwesten und vom Versorgungsturm aus Richtung Südosten. Hinten ist die Profilstärke am geringsten; vorn, zur Strassenseite hin, mit 62 cm am stärksten. 

Tragwerkstechnisch stellte die Südecke die ­eigentliche Herausforderung dar, weil an dieser Stelle auf eine Stütze verzichtet wurde. Dieses Fehlen einer vertikalen Kraftabtragung an dem Ort, an dem das Grundstück seinen tiefsten Punkt erreicht, ist für die gesamte Logik des Hauses konstitutiv; die südlichen Kragarme wurden zunächst vorgekrümmt und mit Zugstützen in Position gebracht, bevor sie die Auflast der Geschossdecken in eine dauerhafte Horizontale brachte.

Der Effekt der fehlenden Stütze ist für die Wahrnehmung der Innenräume von grosser Bedeutung: Die Hauptorientierung der Innenräume tendiert Richtung Süden, und so wird das Panorama von Stadt, See und den dahinter aufragenden Bergketten nur minimal durch die Fensterprofile und die Zugbänder rhythmisiert, nicht aber unterbrochen. «Haus mit einer ­fehlenden Stütze» nennt Christian Kerez sein Gebäude, und der Titel umreisst in aller prägnanten Kürze, ­worum es bei der Bauaufgabe ging.

Architektur neu gedacht

Immer wieder verwendet der Architekt derart beschreibende Projektnamen, etwa 2007 beim «Haus mit nur einer Wand» in Zürich Witikon. Man kann diese Titel gleichsam als Aufgabenstellungen verstehen, als Versuchsanordnungen, die es erlauben, eine zunächst ­wenig spezifische Bauaufgabe – Mehrfamilienhaus in exquisiter Wohnlage mit guter Aussicht – konzeptionell zu radikalisieren und damit in Entwurf und Ausführung auf eine ebenso konsequente wie singuläre Lösung zuzutreiben. Zielte die historische Stahl-Glas-Architektur auf Repetition und Modularisierung, so ist das Ziel hier das Gegenteil: eine extreme Individualisierung. Verstärkt wird diese durch die unterschiedliche Behandlung von Innen- und Aussenraum je Geschoss – bei gleich dimensionierten Geschossplatten. Die unterste Wohnebene besitzt als Aussenraum eine grosse fassadenbreite Terrasse zur Strassenseite, die mittlere eine etwas schmalere sowie eine eingeschnittene Loggia Richtung Südosten; die oberste Ebene weist Terrassen auf drei Seiten auf, wobei ungehinderte Ausblicke in fast alle Himmelsrichtungen möglich sind und man von einem Attikageschoss sprechen könnte.

Als Besucher fällt es einem schwer zu entscheiden, was die Wahrnehmung mehr anregt: das grandiose Panorama oder das ebenso grandiose Tragwerk, dessen Sichtbarkeit, ja Inszenierung ganz bewusst erfolgt und durch die räumliche Disposition des Innern noch unterstützt wird. Denn die Träger durchstossen dank ausgeklügelter Vermeidung von Kältebrücken nicht nur die thermische Hülle, sodass Innen und Aussen ein Kontinuum bilden, sie bleiben auch dadurch sichtbar, dass die ohnehin spärlichen inneren Einbauten, etwa für Küchen und Nasszellen, nicht bis an die Decke ­stossen, sondern durch eine Zone der Verglasung nach oben visuell permeabel werden. 

Man kennt derartige Details – wie auch die ­Verzahnung von Innen- und Aussenraum mithilfe von «spider legs» – von den Villen Richard Neutras, aber bei Kerez ist das Ziel nicht die Entmaterialisierung. Vielmehr geht es ihm um den Kontrast von schwer und leicht, von definierendem Tragwerk und gefasstem und sich dadurch entgrenzendem Raum, mit anderen Worten: um die Wechselwirkung von Rahmen und Bild. Die Stärke der generellen Themen erlaubt Freiheit bei bestimmten Details, die sich ganz bewusst der ästhetischen Perfektion widersetzen – beispielsweise die Glasscheiben, die sich in den Profilquerschnitt der ­Träger einschmiegen.

Welche räumlichen Qualitäten lassen sich gewinnen, wenn die Lastabtragung aussen erfolgt und eine Stütze zusätzlich entfällt? Gewiss ist es nicht notwendig, diese Frage aufzuwerfen, wenn am Zürichberg irgendein neues Mehrfamilienhaus gebaut wird. Angesichts der spezifischen Situation des Grundstücks sowie seiner räumlichen Begrenzungen und Potenziale ist es indes durchaus schlüssig, sie zu stellen. Architektur, wie Christian Kerez sie entwirft, basiert auf einem intellektuellen Prozess, der in aller Radikalität vorangetrieben wird und bewusst mit konventionalisierten Formeln und Lösungen bricht.

Am Ende steht ein bauliches Resultat, das verstören mag, weil es die Pfade des Gewohnten verlassen hat, aber in hohem Mass fasziniert und sinnfällig wird. Eine Stahlkonstruktion wie diese hat es bislang noch nicht gegeben. Architektur neu zu denken erfordert Mut – die Kraftanstrengung hat sich gelohnt. Architektur und Konstruktion an der Wurzel zu packen, das bedeutet zeitgemässe Radikalität. 

Am Bau Beteiligte


Architektur
Werner Schührer, Hannes Oswald, Lukas Ingold


Tragwerksplanung
Dr. Schwartz Consulting, Neven Kostic


Bauphysik
BAKUS Bauphysik und Akustik GmbH, Michael Herrmann, Clemens Moser

Magazine

Verwandte Beiträge