Hil­ti In­no­va­ti­ons­zen­trum, Scha­an

Die Industrien Europas sind auf Innovation angewiesen. Diese entsteht, wenn die Fachleute eines Betriebs aufeinandertreffen und sich austauschen. In Schaan haben giuliani.hoenger architekten für Hilti ein Gebäude entworfen, das Versuchslabor und Engineering vereint: von aussen streng gegliedert, von innen räumlich differenziert.

Publikationsdatum
10-11-2016
Revision
11-11-2016

Das Hilti Innovationszentrum verfolgt in gewisser Weise eine gegensätzliche Strategie [als der Firmensitz von Sky-Frame in Frauenfeld]. Nicht die Ausdifferenzierung eines Open System ist hier das Thema, sondern ein System, das von unterschiedlichen und spezifischen räumlichen Situationen ausgeht und diese zu einem kompakten Ganzen zusammenführt. Dieses System kann man als Schnitttypus beschreiben, der zwar auch eine gewisse Flexibilität garantiert, aber die Unterschiedlichkeit als Ausgangspunkt nimmt. Einheit und Nähe entstehen hier durch räumliche Verknüpfungen und erst sekundär über atmosphärische Ähnlichkeit. Das Tragwerk, das auch hier eine raumprägende Rolle spielt, ist ausdifferenziert und dabei auf das ­System der räumlichen Ordnung bezogen. 

Dem Architekturwettbewerb lag ein sorgfältig ausgearbeitetes Programm zugrunde. In Zusammenarbeit mit dem Fraunhofer Institut für Arbeitswirtschaft und Organisation (IAO) war bereits im Vorfeld systematisch untersucht werden, wie die Entwicklungsprozesse bei Hilti ablaufen und wie idealerweise eine Arbeitsumgebung aussehen müsste, die Innovation begünstigt. Fasst man die Resultate in Stichworten zusammen, sind diese allerdings wenig überraschend: räumliche Nähe zwischen allen Beteiligten, insbesondere zwischen theoretischer Forschung, Entwicklung, Labors und Prüffeldern; Sichtbarkeit und Transparenz; Interdisziplinarität; kurze Wege, aber viele Kreuzungen und damit Möglichkeiten der Begegnung; vielfältige und abwechslungsreiche Räume, insbesondere für den informellen Austausch. Ein wichtiger Aspekt war, dass rasch interdisziplinäre Projektteams zusammengestellt werden können, die je nach Art und Stand der Arbeiten wachsen oder auch wieder schrumpfen können.1

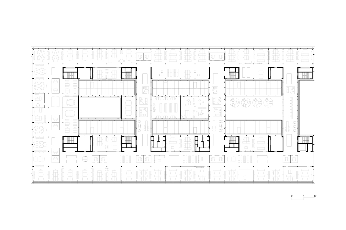
Die Gemeinschaftsräume als Brücken, die Versuchshalle als Herz

Der Bau reagiert darauf mit einer offenen Bürolandschaft, bei der die individuellen Arbeitsplätze grundsätzlich an den Fassaden liegen, während in der Tiefe des Gebäudes Gruppen- und Besprechungszonen angeordnet sind. Die Empfangsräume und Wandelhallen, Lounges und eine Bibliothek sind als Verbindungstrakte zwischen den Ring der Büros gehängt, ebenso die Konferenz- und Seminarräume sowie eine geschützte Dachterrasse, die daran anschliessen. Alle diese Gemeinschaftsräume sind im räumlichen und im übertragenen Sinn, aber auch konstruktiv als Brücken ausgebildet. Sie überspannen die grosse Versuchshalle, die das Herz der Anlage bildet und auf drei Seiten von Büros umgeben wird, während die vierte für zukünftige Erweiterungen offen bleibt. 

In der zentralen Halle werden die Lösungen erprobt, die um sie herum erarbeitet werden, und hier ergeben sich die Fragestellungen, die daneben und darüber gelöst werden müssen. Die Forderung nach kurzen Wegen wird damit auf exemplarische Weise erfüllt. Wichtiger aber ist, dass das Gebäude mit seinen Durchdringungen und seiner typologischen Klarheit eine ein­drückliche symbolische Form für die postulierte Zusammenarbeit findet. Durch die Denkfabrik der Ingenieure hindurch fällt das Licht direkt in die Werkhalle. 

Der Bau setzt alles daran, trotz seiner Grösse eine Atmosphäre der Teilhabe am Ganzen zu erzeugen. Die Versuchshalle wird von einem offenen Ring zu­dienender Werkstätten und Labors umgeben, darüber liegen bereits Büros, aus denen sich der ganze Grossraum überblicken lässt. In der Mitte greift die Halle nach oben in das Eingangs- und Empfangsgeschoss ein, sodass sie auch hier eine starke Präsenz entfaltet. Interne und seltener auch externe Gäste erhalten aus erhöhter Position einen begrenzten Einblick in das experimentelle Tun, finden im grossen Auditorium oder in den Konferenzräumen, an der Kaffeebar oder in der Wandelhalle den Kontakt mit den Mitarbeitern und können gegebenenfalls direkt zu einer Demon­s­tration in die Halle geführt werden. 

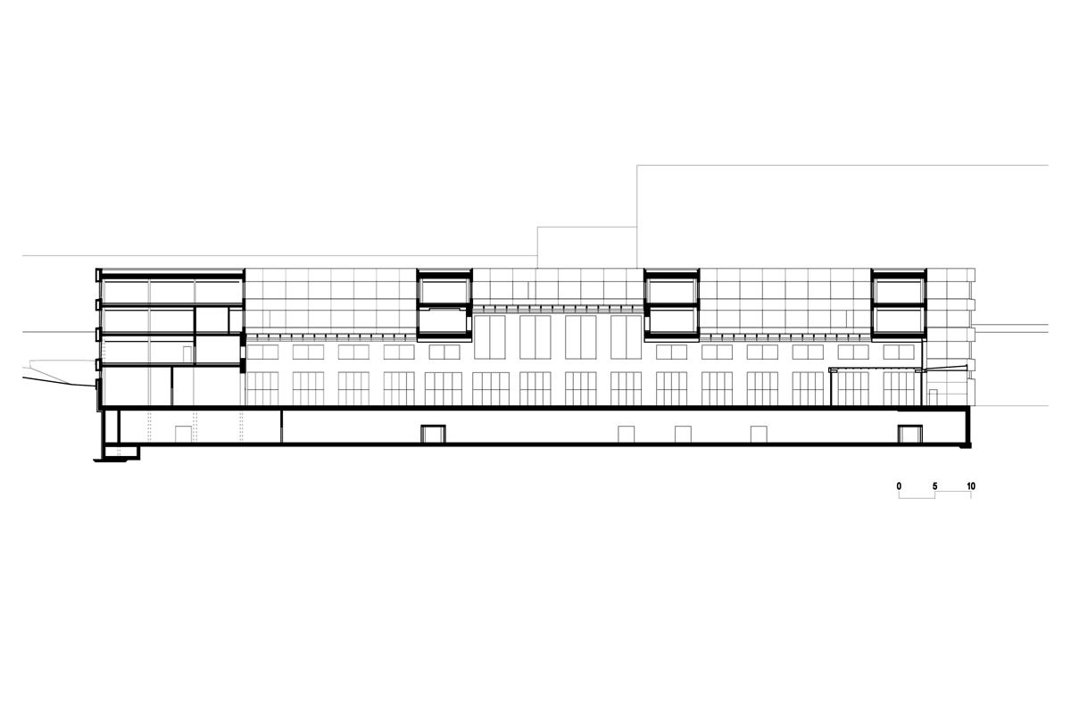
Das oberste Geschoss schliesslich liegt ganz über der Halle. Trotzdem bleibt die Beziehung zu ihr auch hier bestehen, nicht nur über die Oberlichter in den Höfen, sondern auch und vor allem durch die starke Präsenz der Tragstruktur in der Gebäudemitte. Das offen sicht- und tastbare Fachwerk aus Stahl macht mit seiner massiven Materialität jederzeit klar, dass man sich hier in einer Brückenkonstruktion und über jenem Raum befindet, den man beim Betreten des Gebäudes gesehen hat.

Vielheit in der Einheit

Die Räume sind, dem Programm gemäss, vielfältig ausgestaltet. Die halb öffentlichen Bereiche des Eingangsgeschosses zeichnen sich durch einen Steinboden und Gipsdecken aus, die mit Friesen profiliert sind, die Büros durch einen Teppich und offene Decken mit weissen Akustik-, Klima- und Lichtfeldern, die Mittelzonen schliesslich durch Holzböden und dieselben Deckenelemente, die hier allerdings dichter angeordnet sind.

Trotz dieser Ausdifferenzierung trägt auch die Gestaltung der Innenräume zur Einheit bei. Gewiss ist das Testfeld in der Versuchshalle bauphysikalisch sorgfältig vom Rest getrennt – immerhin werden hier Elemente bis zu ihrem Versagen belastet, Erdbeben simuliert und andere, durchaus heftige Versuche durchgeführt. Mit hellem Betonboden, glatten Wänden und Decken ist es aber ähnlich sorgfältig durchgestaltet wie alle anderen Räume. Umgekehrt gibt es auch in den Büros mit den nackten Betonstützen und der teilweisen Sichtbarkeit der rohen Decken und Installationen einen Hauch von Werkstatt.

Die Sozialbereiche schliesslich verbinden sich über die Decken mit den Büros, und die Häuslichkeit von Holzböden und Mobiliar wird durch die rohe Kraft der mächtigen Stahlfachwerke konter­kariert. Ganz beruhigt scheint der Bau einzig in den repräsentativen Bereichen des Eingangsgeschosses zu sein. Wo innovativ gearbeitet wird, gibt es stets leise, offensichtlich wohlkalkulierte Kontraste und Reibungsflächen.

Spezifisch und typisch

Mit seiner breit gelagerten, horizontal gegliederten Volumetrie am Übergang zur Rheinebene schreibt sich der Bau präzise in seine Umgebung ein. Die schwarzen, stark hervortretenden Brüstungsbänder unterstreichen die Schwere des Baus, deren mächtige Betonelemente beiläufig die Wirksamkeit der hier entwickelten Befestigungssysteme demonstrieren. Durch die Neugestaltung des höher gelegenen Hauptgebäudes auf der gegenüberliegenden Seite der Hauptstrasse wurde die Horizontalität des Innovationszentrums jüngst um eine kräftige Vertikale ergänzt. Aus der Ferne könnte man fast den Eindruck gewinnen, es bilde den Sockel für die hochragende Konzernzentrale und die anschliessenden Produktionsgebäude. Auch dies ist ein sinniges Bild.

Anmerkung
1 Wilhelm Bauer und Jörg Kelter: Vom Konzept in die Realität, in werk, bauen + wohnen 4/­2016, S. 18f).

Das Stahlfachwerk des Hilti Innovationszentrums in Schaan ist eine Brücke – konstruktiv wie räumlich. Hier beschreibt der Tragwerksplaner die Wirkungsweise.

Am Bau Beteiligte


Architektur
giuliani hönger ag

Baumanagement
Caretta + Weidmann Baumanagement AG

Tragwerkplanung
Dr. Schwartz Consulting

Wenaweser Partner Bauingenieure
Fassadenplanung (ab 2010)
gkp Fassadentechnik AG
Fassadenplanung (bis 2009)
Feroplan Engineering AG, Zürich

Elektroplanung
Sytek AG
HLK Planung
Aicher, De Martin, Zweng AG

Sanitärplanung
tib Technik im Bau

Industrieplanung (ab 2011)
Rapp OTB, Basel

Industrieplanung (bis 2011)
Resoplan, Brugg

Landschaftsarchitektur
Hager Landschaftsarchitektur

Lichtplanung
Reflexion AG

Bauphysik und Akustik
BAKUS Bauphysik und Akustik GmbH


Arbeit am Typus

So präzise das Innovationszentrum auf die Lage und die Bedürfnisse von Hilti in Schaan antwortet, so typisch sind das Problem, kleine Räume über gros­sen anzuordnen, und der Lösungs­ansatz, dies über ein raumhaltiges Tragwerk zu tun. giuliani.hönger architekten haben das Thema bereits mehrfach aufgegriffen und unterschiedlich variiert.

Beim Werk- und Bürogebäude Alpha eins in Köln (2005–2007), einem «gewöhnlichen» Gewerbebau, überspannen geschoss­hohe Vierendeelträger aus Beton eine stützenfreie Werkhalle. In den Trägern sind die Büros um zwei Lichthöfe herum organisiert, deren einer als Ausweitung der Halle ausgebildet ist. Dadurch werden auch bei diesem relativ einfachen Bau der Grossraum und das Bürogeschoss im Dach miteinander verzahnt.

Beim Projekt für die Universität und die Pädagogische Hochschule im Berner Von-Roll-Areal überbrücken Trakte mit Seminar- und Büroräumen den Grossraum einer Bibliothek zwei Geschosse unter der Erde (2005–2010, vor Ausschreibungsplanung abgetreten). Der Bau in Schaan schliesslich erreicht bei ähnlichen Dimensionen durch die gitterförmig längs wie quer über die Halle gespannte Struktur eine zusätzlich gesteigerte Komplexität und zeigt, wie sehr eine sorgfältige Ausführungsplanung die Konzeption stärkt.
(Martin Tschanz)

Verwandte Beiträge