So­lar­bau­ten zum Nach­schla­gen

Eine neue Webplattform soll Architekten, Planenden und Ingenieuren helfen, die Sonnenenergie zu nutzen – anhand von gebauten Beispielen. Die Informationen, die solarchitecture.ch liefert, reichen von der Projektübersicht über verwendete Solartechnologien bis tief in konstruktive Details hinein.

Publikationsdatum
27-01-2020

Wer sich auf dem Gebiet der Solararchitektur einen Überblick verschaffen möchte, findet beim Besuch der Onlineplattform, die auf Initiative der Supsi (Fachhochschule der italienischen Schweiz), der ETH Zürich und des Fachverbands Swissolar entstanden ist, eine vielfältige Mischung vor: von Nachrichten über aktuelle Markttrends oder den Europäischen Solarpreis 2019 bis zu beispielhaften Bauwerken, die das Herzstück der Seite sind.

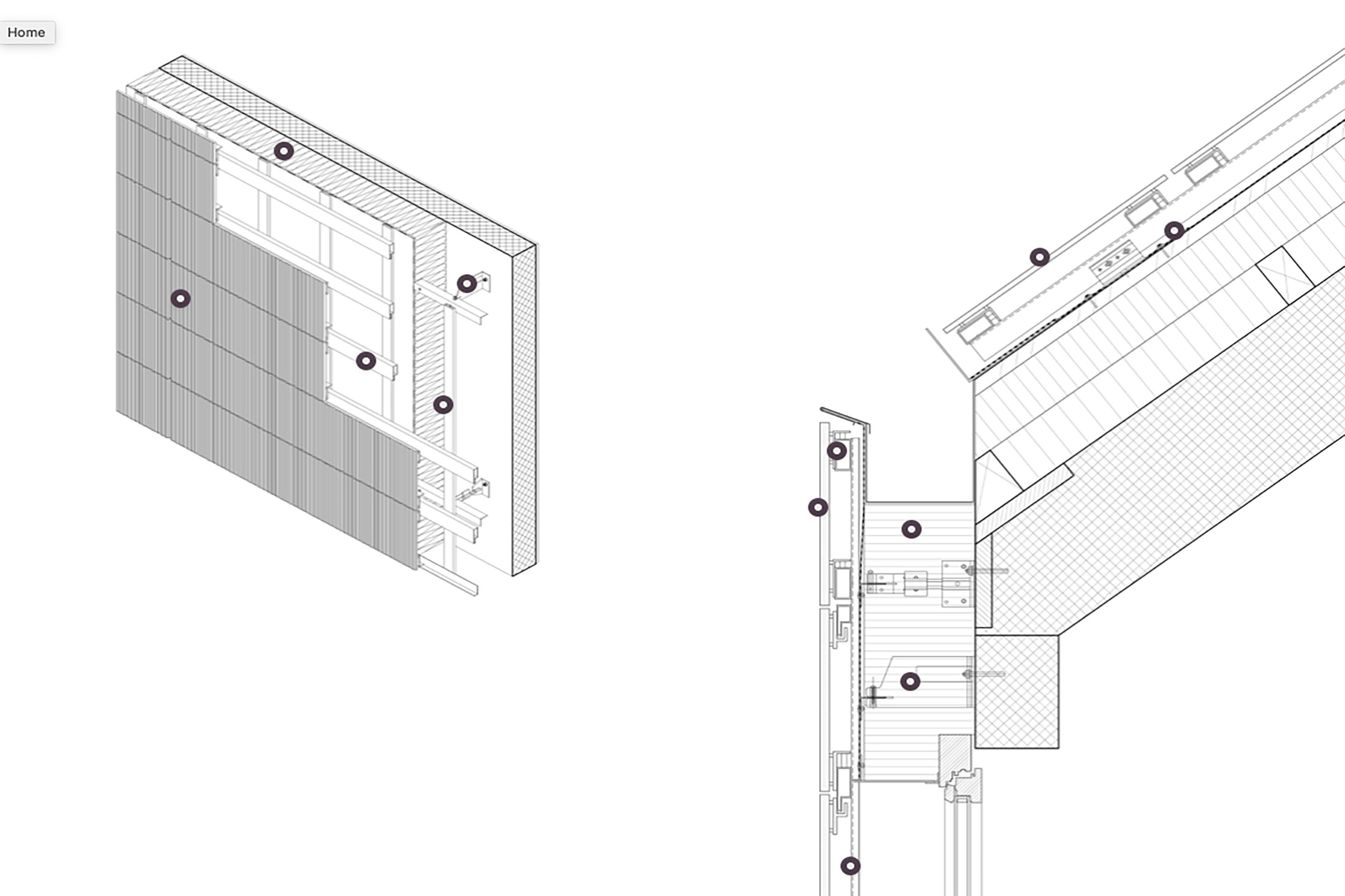
Solche Projekte lassen sich in der Kategorie «Showcases» auswählen und dann in mehreren Unterkategorien sortieren: Wählt man im Menü «Building Category» etwa «Residential», verdichtet sich die Auswahl auf Wohngebäude. Es erscheinen allerlei Fotos von Bauwerken und Grafiken zu konstruktiven Details von Projekten unterschiedlicher Nutzung.

Beispiel «Solaris 416» in Zürich-Wollishofen (siehe auch: «Seismograf des Himmels»): Beim Anklicken beginnt eine Reise, die immer tiefer in Details führt. Nach einer Gesamtansicht des Gebäudes zeigen sich beim Hinabscrollen Detailfotos, ein Grundriss, dann tabellarische Daten zum Bauwerk, zur aktiven Solarfläche, Energieproduktion und zum Eigenverbrauch. Es folgen die verwendeten Photovoltaikmodule, interaktive Zeichnungen, konstruktive Details sowie die Baukosten in Franken und pro m³.

Neben «Solaris 416» zeigt die Website auch grössere Bauwerke wie den Grosspeter Tower in Basel (siehe auch: «Durchdachte Gestaltung»). In der Kategorie «Commercial» erscheint dagegen nur ein Bauwerk, nämlich die Umwelt-Arena in Spreitenbach (siehe auch: «Stromlinienförmige Energiemaschine»). Und bei Auswahl von «Sport Facilities» oder «Public Places» bleibt es bei der Meldung «No Results». Doch in Zukunft sollen mehr gebaute Beispiele hinzukommen und sämtliche Rubriken füllen. Nach Angaben von Swissolar sind pro Jahr rund 20 neue Showcases geplant.

In Zukunft auch in drei Landessprachen

Zudem wird die Website, die seit September vergangenen Jahres in englischer Sprache online ist, ab März auch auf Deutsch, Französisch und Italienisch zu lesen sein. Die Nutzerzahlen in den ersten Monaten waren laut Swissolar erfreulich. Das Ziel der Initiative sind 10'000 «wiederkehrende Besucher» pro Jahr – die Zielgruppe vor allem Architekten und andere Planende.

Neben Baubeispielen bietet solarchitecture.ch einige Hintergründe: Eine Zeitleiste illustriert die Entwicklung der Solararchitektur anhand von bekannten und weniger bekannten Projekten, zurück bis in die 1980er-Jahre. Zudem informiert eine Agenda über kommende Fachveranstaltungen. Und wer einen Newsletter bestellen möchte, findet das bekannte Kästchen zum Anklicken unter «Contact us». Die erste Ausgabe ist laut Swissolar im März zu erwarten.

Tags

Verwandte Beiträge