Platz da!

Projektwettbewerb Neubau Gemeindeverwaltung Oberwil BL

Mit einem imposanten Eckturm und einer grosszügigen Freiraumkaskade gewinnen BGM Architekten den Wettbewerb für die neue Gemeindeverwaltung in Oberwil.

Publikationsdatum
06-09-2018
Revision
06-09-2018

Die heute auf sechs Standorte verteilte Verwaltung der basel-landschaftlichen Gemeinde Oberwil soll am Standort Hauptstrasse 24 zentralisiert werden. Der heutige Bau aus den 1960er-Jahren wird dafür einem Ersatz­neubau weichen. Alle bisherigen Dependancen sind nicht hindernisfrei zugänglich und müssen mit hohen Kosten unterhalten, in­standgesetzt oder ersetzt werden. Das ehemalige «Däge-Lädeli», der En­de des 19. Jahrhunderts gegründete und bis 2007 betriebene Dorf­laden östlich des Grundstücks, ist erhaltenswert und soll zusammen mit der mächtigen Linde davor bestehen bleiben. Um Lösungen für die Bauaufgabe zu erhalten, schrieb die Gemeinde Oberwil einen Projektwettbewerb im selektiven Verfahren aus und lud zwölf Planerteams ein.

Selbstbewusst

Das zur Weiterbearbeitung empfohlene Projekt «Grande rue» von BGM Architekten fusst auf einer sorg­fältigen Analyse der Entwicklung von Oberwil. Der für das bäuerliche Strassendorf typische «Wechsel von Bauernhäusern, baumbestandenen ‹Grüntaschen›, ehemaligen Bauerngärten und Hofvorfahrten» soll im Sinn einer «kritischen Rekonstruktion» gestärkt werden.

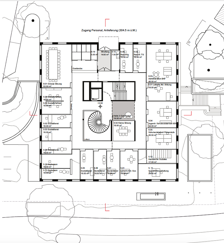
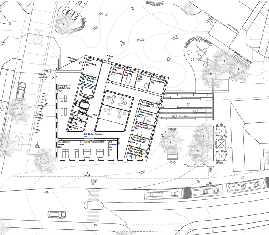
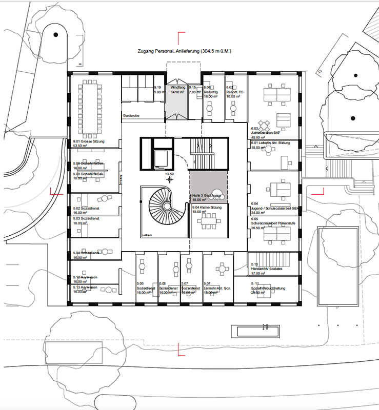
Der «Eckturm» für die Gemeindeverwaltung besteht aus einem viergeschossigen, polygo­na­len Baukörper entlang der Hauptstrasse und zwei quadratischen Attikageschossen. Dank dem kleinen Fussabdruck gelingt es, zum «Däge-Lädeli» einen veritablen Dorfplatz auszubilden, der zum Ausgangspunkt einer «Freiraum­kaskade» wird, die über eine breite Sitztreppe zum höher gelegenen Wehrlinplatz führt. Die übersichtliche Eingangshalle der Gemeindeverwaltung ist über einen Lichthof natürlich belichtet. Das Tragwerk mit einer tragenden Fassade, aussteifenden Wänden bei Treppe und Lift sowie einem Stützenkranz in der Mitte des Gebäudes erlaubt flexible Raumeinteilungen. Die Architektur unterstützt die Vorgaben einer transparenten und bürgernahen Verwaltung.

Tugendhaft

Der zweitplatzierte Beitrag von Müller Sigrist Architekten bringt die Verwaltung in einem schlichten, rechteckigen Volumen unter, das pa­rallel zur Hauptstrasse verläuft und leicht zurückversetzt ist. Der viergeschossige Neubau mit Attikageschoss und vorgelagertem Boulevard fügt sich gut ins dörfli­che Umfeld ein. Zum «Däge-Lädeli» ist ein Pocket-Park mit Wasserspiel, Staudenbändern und lichtem Baum­dach angelegt. Die Statik mit tragenden Fassaden und aussteifendem Kern erlaubt bei der Raumein­teilung alles, vom Grossraumbüro bis zu einzelnen Bürozellen. Das unspektakuläre Projekt weist viele Tugenden auf: Angemessenheit, Zurückhaltung, Schlichtheit und Sparsamkeit.

Sorgfältig

Der mit dem dritten Preis ausgezeichnete Beitrag von Ackermann Architekt besteht aus einem viergeschossigen quadratischen Gebäude, das von der Strasse über einen Vorplatz mit frei stehender Linde, Brunnen und drei Fahnenmasten zugänglich ist. Eine grosse Wendeltreppe verbindet das Erd- mit dem ersten Obergeschoss. Im quadratischen Kern öffnen sich immer wieder Durchblicke in der Vertikalen zwischen den verschiedenen Geschossen. Mit seiner klaren Form hat das sorgfältig detaillierte Projekt genügend Gewicht für das neue Zentrum Oberwils, die grosse Geste fehlt aber.

Vermittelnd

Das kompakte, fünfgeschossige Projekt «Quinque» von phalt Architekten auf dem letzten Rang bietet viel Freiraum und eckt nirgends an. Es vermittelt gekonnt zwischen den bestehenden Bauten, Strassen und Plätzen. Zum «Däge-Lädeli» entsteht ein stimmiger Dorfplatz. Der fünfeckige Kubus ordnet sich perfekt in den Bestand ein, schwächelt aber gemäss Jury wegen seines rigiden und unflexiblen Kerns.

Mehr Dichte, mehr Freiraum

Mit «Grande rue» gewinnt ein sehr kompaktes Projekt, das mit der imposanten Ecke ein markantes Zeichen setzt und mit generösen Freiräumen besticht. Es ist auf die hohen Anforderungen getrimmt, die heute bezüglich Wirtschaftlichkeit, Effizienz und Flexibilität an Wettbewerbsbeiträge gestellt werden. Das Ergebnis erinnert an den neuen Gebäudetyp «Klumpen».1 Im Gegensatz zu Investoren, die damit ver­suchen, ihre Rendite zu maximieren, geht es BGM Architekten um einen Mehrwert im Aussenraum. Sie verankern die neue Gemeindeverwaltung nicht nur im Dorfkern, sondern setzen auch ein Fanal für die öffentlichen Nutzungen im Hinterland.

Anmerkung

  1. Lisa Euler, Tanja Reimer; ­Klumpen, Auseinandersetzung mit einem Gebäudetyp; gta Verlag, Zürich 2014.

Weitere Pläne und Bilder finden Sie in der Rubrik Wettbewerbe.

Auszeichnungen
 

1. Rang, 1. Preis: «Grande rue»
BGM Architekten, Basel; Hager Partner, Zürich; Ulaga Partner, Basel; Amstein + Walthert, Zürich; suisse­plan Ingenieure, Zürich

2. Rang, 2. Preis: «Paley»
ARGE Müller Sigrist Architekten, Zürich und Rapp Architekten, Basel; DGJ Landscapes, Zürich; Schnetzer Puskas Bauingenieure, Basel; Waldhauser + Hermann, Münchenstein; Rapp Trans, Münchenstein; Studio Durable, Zürich; Rapp Gebäudetechnik, Münchenstein

3. Rang, 3. Preis: «Jacques»
Ackermann Architekt, Basel; Zwahlen + Zwahlen, Cham; Schnetzer Puskas Ingenieure, Basel; Wald­hauser + Hermann, Münchenstein; IBV Hüsler, Zürich; Visiotec, Allschwil; Pirmin Jung Ingenieure, Thun

4. Rang,4. Preis: «Quinque»
phalt Architekten, Zürich; Balliana Schubert Landschaftsarchitekten, Zürich; Rothpletz, Lienhard + Cie, Aarau; Enerconom, Solothurn; wam ingenieure und planer Bern
 

FachJury
 

Peter Ess, Architekt, Zürich (Vorsitz)


Esther Brogli, Architektin, Basel


Anne Marie Wagner, Architektin, Basel


Pascal Gysin, Landschaftsarchitekt, Sissach
 

SachJury
 

Hanspeter Ryser, Gemeindepräsident Oberwil


André Schmassmann, Gemeindeverwalter; Raphael Zenhäusern, Mitglied Bau-, Planungs- und Verkehrs­kommission


Urs Hänggi, Gemeinderat (Ersatz)
 

Wettbewerbsbegleitung
 

Nicole Wirz, raumplan wirz, Basel


Nicole Hatz, Volpatohatz, Birsfelden

Verwandte Beiträge