Pro­jekt­wett­be­werb Er­satz­neu­bau Se­kun­dar­schu­le Tan­nen­brunn ent­schie­den

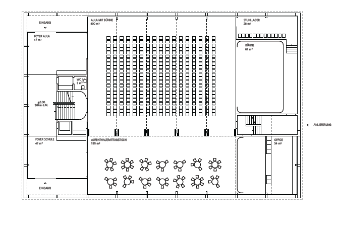
Der Wettbewerb für den Ersatzneubau der Schulanlage Tannenbrunn in Sissach ist abgeschlossen. Gewonnen hat das Projekt «Enkelin» des Architekturbüros Lukas Back aus Basel. Der Neubau soll die Altbautrakte ersetzen und die Anlage durch eine Aula erweitern.

Publikationsdatum
20-01-2015
Revision
01-09-2015

Mit dem Projekt «Enkelin» setzte sich das Architekturbüro Lukas Back aus Basel gegen 25 Mitbewerbende durch. Das Projekt überzeugte die Jury sowohl städtebaulich als auch in der architektonischen Ausgestaltung. In der Umsetzung des Raumprogramms entspricht es weitgehend den Vorstellungen der Nutzer und besticht durch seine präzise städtebauliche Setzung und den subtilen Umgang mit dem Bestand, wie die Bau- und Umweltschutzdirektion Kanton Basel-Landschaft in einer Mitteilung schreibt. Die Nutzungsverteilung und die klare Organisation im Innern schaffen räumliche Qualitäten. Die neuen Aussenräume sind stringent aus den funktionalen Bedürfnissen entwickelt und beleben das schulische Gesamtensemble der Sekundarschule Sissach. 

Ausstellung
Die Wettbewerbsbeiträge sind bis 29. Januar 2014 im Spenglerpark an der Emil Frey-Strasse 100 in Münchenstein öffentlich ausgestellt. 
Öffnungszeiten: Mo–Sa 9–17 Uhr, So 11–15 Uhr

Verwandte Beiträge