Plat­te mit Ni­schen

Um einer Restfläche an attraktivster Luzerner Hanglage Bauland für vier Stadtvillen abzutrotzen, wurde die Fläche zweier bebauter Grundstücke um je die Hälfte gekappt, sodass insgesamt sechs Parzellen entstanden. Zur höheren Mathematik der Parzellierung gesellte sich die Kalkulation mit der auf 3.60m limitierten Höhe der Baukörper. Architekt Daniel Lischer grub die vier zwischen dem Hotel Palace am See und dem Hotel Montana gelegenen Villen daher so in den Hang, dass sie das Terrain mit nur einem Geschoss überragen.

Publikationsdatum
13-11-2013
Revision
30-10-2015

Das Grundstück befindet sich an zentraler Lage in Luzern, im sogenannten Haldengebiet, einem grossbürgerlichen Villenquartier am rechten Seeufer. Das Gebiet zwischen Vierwaldstättersee und Hitzlisbergstrasse, in dem auch die Adligenswilerstrasse liegt, gilt als «Aussichtstribüne» Luzerns.1 Die Südhanglage ist durch den Blick auf See und Alpen privilegiert. Anfang des 20. Jahrhunderts etablierten sich hier Pensionen, Sanatorien und Hotels. So grenzt das Grundstück der Stadtvillen direkt an das 1908–1910 von den Architekten Möri & Krebs erstellte Jugendstilhotel Montana. 2009 erhielten Lischer Partner Architekten den Auftrag, die benachbarte spätklassizistische Villa an der Adligenswilerstrasse 18 zu sanieren. Im Lauf des Projekts entstand bei der Bauherrschaft der Wunsch, ein Bebauungsprojekt für die brachliegende Freifläche des eigenen sowie des benachbarten Grundstücks zu erstellen. 

Die Bedingungen waren indes alles andere als komfortabel: In den zugehörigen Grunddienstbarkeiten gab es die Auflage, dass auf dem Grundstück nicht höher als 3.60m gebaut werden darf. Mit solchen privatrechtlichen und schwer angreifbaren Mitteln schützen Eigentümer von Liegenschaften am Hang ihren Blick auf See und Berge. Ausserdem mussten sich die Architekten mit einem Gefälle von 20% arrangieren.

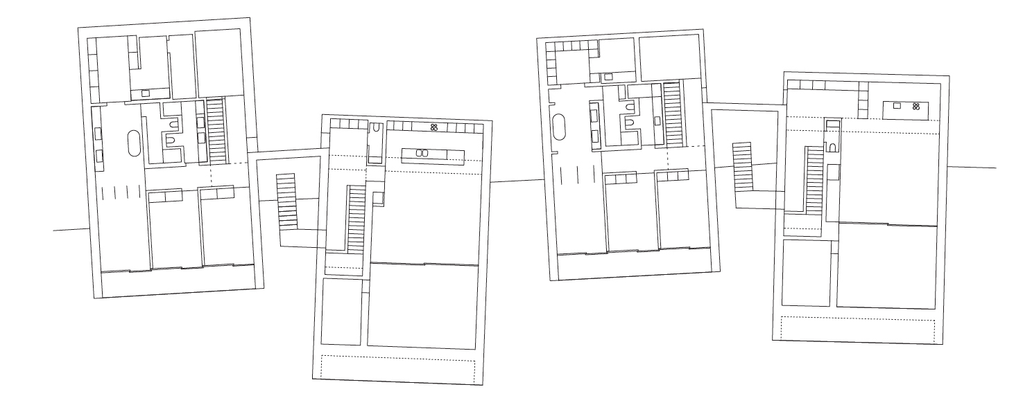
Sie schlugen daher eine Bebauung mit vier in den Hang geschobenen Stadtvillen vor und strebten eine Einheit von Garten und Bauten an. Die Gebäude platzierten sie wie Findlinge in den Garten. Verstreut liegen die vier Villen auf dem Gelände. Die im Innern zweigeschossigen Bauten ragen gerade einmal eingeschossig aus der Erde. Die Dachlinie verläuft parallel zum Hang.

Was städtebaulich nach einer unauffälligen Lösung klingt, bedurfte eines massiven Eingriffs in das Erdreich. Heute ist jedoch von der Adligenswilerstrasse aus nur das Eingangstor sichtbar. Von hier führt kaskadenartig eine steile Treppe zwischen den bestehenden Bauten hindurch zu den vier Neubauten hinunter, gabelt sich und erschliesst diese jeweils paarweise. Die beiden unteren Häuser sind nach der Haldenstrasse ausgerichtet, die beiden oberen liegen parallel zur Adligenswilerstrasse. Durch die abwechselnde Setzung in Höhe und Winkel entstehen unterschiedliche Zwischenräume und Sichtachsen, und trotz der Nähe bilden sich Rückzugsnischen. 

Die Landschaftsgestaltung ist ruhig und unauffällig. Das Wegenetz inklusive Treppen besteht aus grossformatigen Betonelementen. Die Bepflanzung mit Bodendeckern bildet einen ruhigen Rahmen für die Architektur, höhere Büsche setzen einzelne Akzente. Die privaten Gärten sind als offene Wiesen gestaltet und wegen ihrer bescheidenen Grösse und starken Steigung eher Abstandsgrün als Nutzflächen. 

Die Stärke des Projekts liegt im handwerklichen Detail. Die Architekten formten ihre Neubauten zu klaren Baukörpern. Um eine möglichst massive Wirkung zu erzielen, sind die Fassaden dreiseitig geschlossen. So bleibt man auch vor Blicken der angrenzenden Nachbarn geschützt. Statt Fenstern sind Oberlichter, Terrassen und Loggien eingeschnitten. Als Material wählten die Architekten gelben Jurakalk, der mit seiner Oberflächenstruktur den Gebäuden einen steinernen Ausdruck verleiht. Allseitig sind die Gebäude mit diesem Stein verkleidet. Die Wände bestehen aus massivem Mauerwerk, Dächer und Loggien sind mit Platten aus dem gleichen Material ausgeführt. An den Ecken zeigen speziell geformte, von unten nach oben leicht angeschrägte Steine die präzise Massarbeit. Den Architekten war wichtig, den umliegenden klassizistischen Villen ein handwerklich hochwertiges Gegenüber zu bieten. 

Da die Villen nicht parallel zum Hang stehen, sondern wie früher die Bauernhäuser mit der Schmalseite zum See weisen, mussten die gewünschten Quadratmeter durch eine Grundrisstiefe von 18m erzielt werden. Das erforderte eine durchdachte Raumaufteilung und Kreativität, um das Licht ins Innere zu führen. Die Architekten erreichten dies, indem sie die Räume mittels Schiebe- und Drehelementen durchlässig gestalteten. Heute sind die Gebäude zu zwei Dritteln natürlich belichtet. 

Als Lichtquellen dienen die grossflächigen Verglasungen auf der Südfassade, die Loggia und die Oberlichter. Die Sicht auf den See ist durch die relativ geringe Höhe der Gebäude gemindert, aber ausschnitthaft immer wieder präsent.

Drehelemente verbinden Räume und schaffen Blickachsen

Man betritt die Stadtvillen auf der Ebene des Wohngeschosses. Unter dem hohen, gefalteten Dach liegt jeweils ein grosszügiger zweigeschossiger Wohnraum mit offener Küche, der über ein gebäudelanges Oberlicht erhellt wird. Seeseitig schliesst sich eine aus dem Gebäude geschnittene Terrasse an, die durch ihre flächige Steinverkleidung wie eingehauen wirkt. Eine Herausforderung stellte die Belichtung des unteren Geschosses dar. Hier sind die Schlafräume zum Garten hin orientiert. Hangseitig befinden sich die Sanitär- und Nebenräume.

Da die Bauten extrem in die Tiefe entwickelt sind, entwarf Daniel Lischer spezielle räumliche Verbindungen, um Licht ins Innere zu holen bzw. Blickachsen nach aussen zu schaffen. So ist das Elternschlafzimmer durch Drehelemente mit dem – ähnlich grossen – Badezimmer verbunden, das wiederum in das rückwärtige Ankleidezimmer übergeht. Auch das Arbeitszimmer befindet sich im hintersten Bereich, profitiert jedoch durch den davor liegenden, nicht abgetrennten Flur von einem Stück Seeblick. Die Farbtöne im Gebäudeinnern sind erdig und verstärken den Charakter des eingegrabenen Hauses. An den Wänden ist ein weisser, teilweise hydrophobierter Schlämmputz aufgebracht. 

Die Villen sind ein typisches Beispiel für den aktuellen Wunsch, auf grossflächigen innerstädtischen Grundstücken nachzuverdichten. Ein kompaktes Bauvolumen auf kleinerer Grundfläche war aufgrund der Dienstbarkeiten nicht möglich. Selbstverständlich ist ein Einfamilienhaus in der Stadt mit Seeblick in dieser Lage für die potenziellen Bewohner erstrebenswert.
Doch gerade im Sinn einer Nachverdichtung ist eine solch flächenverbrauchende Bauform in der Stadt infrage zu stellen. Die Stadtvillen behindern zwar weder den Seeblick der angrenzenden Nachbargebäude noch treten sie in der Höhe massiv in Erscheinung. Aber sie besetzen einen grossen Teil der Fläche, die als grüne Topografie wichtiger Bestandteil der klassizistischen Villenbebauung am rechten Seeufer ist.
Die ehemals zwei grossen Bauparzellen haben jeweils etwa die Hälfte ihrer Grundstücksfläche zugunsten vier neuer Parzellen abgegeben, sodass insgesamt sechs Grundstücke entstanden sind. Umso mehr sind die Stadtvillen als Einzellösung für ein Grundstück mit schwierigen baugesetzlichen Einschränkungen zu betrachten und nicht als städtebauliches Patentrezept. 

Anmerkung
Gesellschaft für Schweizerische Kunstgeschichte (Hg.), INSA Inventar der neueren Schweizer Architektur, Bern 1991, S. 417

Verwandte Beiträge